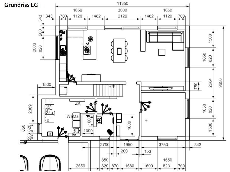
ᐅ Einfamilienhaus 11,35x9,65 Grundrissplanung und platzierung auf dem Grundstück
Erstellt am: 28.04.20 18:53
F
FloDerMeisterF
FloDerMeister28.04.20 18:53Bebauungsplan/Einschränkungen
Größe des Grundstücks
840 qm
Hang
Nein
Grundflächenzahl
0,4
Geschossflächenzahl
0,6
Baufenster, Baulinie und -grenze
siehe Abbildung
Randbebauung
ja
Anzahl Stellplatz
2
Geschossigkeit
2
Dachform
Satteldach
Stilrichtung
Ausrichtung
siehe Bilder
Maximale Höhen/Begrenzungen
Traufhöhe maximal 6m FHmax 10m
weitere Vorgaben
Anforderungen der Bauherren
Stilrichtung, Dachform, Gebäudetyp
Satteldach
Keller, Geschosse
Nein, 2
Anzahl der Personen, Alter
3, 34,34,2
Raumbedarf im EG, OG
Büro: Familiennutzung oder Homeoffice?
beides
Schlafgäste pro Jahr
---
offene oder geschlossene Architektur
offen
konservativ oder moderne Bauweise
modern
offene Küche, Kochinsel
offene Küche
Anzahl Essplätze
4
Kamin
Nein
Musik/Stereowand
Nein
Balkon, Dachterrasse
Nein
Garage, Carport
ja, Garage
Nutzgarten, Treibhaus
ja, allerdings steht mir nicht weit vom Bauplatz noch ein ca. 1000qm großer Garten zur Verfügung
weitere Wünsche/Besonderheiten/Tagesablauf, gern auch Begründungen, warum dieses oder das nicht sein soll
Hausentwurf
Von wem stammt die Planung:
Habe ich selbst angepasst, auf Basis eines bestehenden Entwurfs
Was gefällt besonders? Warum?
Ausrichtung mit den Wohnräumen nach Süden und Eingang im Norden
Was gefällt nicht? Warum?
Haus könnte etwas näher an der Straße stehen, würde aber zu Lasten der Garage gehen, auf die wir in keinem Fall verzichten möchten
Preisschätzung lt Architekt/Planer:
350k ohne Nebenkosten, ohne Grundstück
Persönliches Preislimit fürs Haus, inkl Ausstattung:
550K
favorisierte Heiztechnik:
Luft-Wasser-Wärmepumpe
Wenn Ihr verzichten müsst, auf welche Details/Ausbauten
-könnt Ihr verzichten:
Wenn möglich der Erker am Hauswirtschaftsraum aus Kostengründen. Wir haben aber bedenken, dass dieser Raum dann zu klein wird.
-könnt Ihr nicht verzichten:
Dusche im EG
Warum ist der Entwurf so geworden, wie er jetzt ist?
Ein Gemisch aus dem Standardgrundriss und unseren Wünschen und Ideen aus Magazinen und Internet
Hallo zusammen, ich hoffe ich habe alle korrekt ausgefüllt. Anbei mal unser Entwurf wie er bis jetzt ist. Das Grundstück wird demnächst gekauft und der Termin mit unserem Architekten ist im Mai. Ich hoffe wir sind gut vorbereitet und würde dazu gerne noch mal eure Meinungen und Ideen vor allem auch Kritik hören.
Was mich noch etwas verunsichert ist die Lage auf dem Grundstück, da wir das Haus doch sehr mittig platziert haben. Die meisten Häuser stehen ja eher dicht an der Straße. im hinteren Bereich müssen laut Bebauungsplan auf eine breite von 5m Sträucher und Bäume gepflanzt werden, seitlich müssen wir ebenfalls 5m Abstand einhalten, da das Baugebiet dort endet.





Größe des Grundstücks
840 qm
Hang
Nein
Grundflächenzahl
0,4
Geschossflächenzahl
0,6
Baufenster, Baulinie und -grenze
siehe Abbildung
Randbebauung
ja
Anzahl Stellplatz
2
Geschossigkeit
2
Dachform
Satteldach
Stilrichtung
Ausrichtung
siehe Bilder
Maximale Höhen/Begrenzungen
Traufhöhe maximal 6m FHmax 10m
weitere Vorgaben
Anforderungen der Bauherren
Stilrichtung, Dachform, Gebäudetyp
Satteldach
Keller, Geschosse
Nein, 2
Anzahl der Personen, Alter
3, 34,34,2
Raumbedarf im EG, OG
Büro: Familiennutzung oder Homeoffice?
beides
Schlafgäste pro Jahr
---
offene oder geschlossene Architektur
offen
konservativ oder moderne Bauweise
modern
offene Küche, Kochinsel
offene Küche
Anzahl Essplätze
4
Kamin
Nein
Musik/Stereowand
Nein
Balkon, Dachterrasse
Nein
Garage, Carport
ja, Garage
Nutzgarten, Treibhaus
ja, allerdings steht mir nicht weit vom Bauplatz noch ein ca. 1000qm großer Garten zur Verfügung
weitere Wünsche/Besonderheiten/Tagesablauf, gern auch Begründungen, warum dieses oder das nicht sein soll
Hausentwurf
Von wem stammt die Planung:
Habe ich selbst angepasst, auf Basis eines bestehenden Entwurfs
Was gefällt besonders? Warum?
Ausrichtung mit den Wohnräumen nach Süden und Eingang im Norden
Was gefällt nicht? Warum?
Haus könnte etwas näher an der Straße stehen, würde aber zu Lasten der Garage gehen, auf die wir in keinem Fall verzichten möchten
Preisschätzung lt Architekt/Planer:
350k ohne Nebenkosten, ohne Grundstück
Persönliches Preislimit fürs Haus, inkl Ausstattung:
550K
favorisierte Heiztechnik:
Luft-Wasser-Wärmepumpe
Wenn Ihr verzichten müsst, auf welche Details/Ausbauten
-könnt Ihr verzichten:
Wenn möglich der Erker am Hauswirtschaftsraum aus Kostengründen. Wir haben aber bedenken, dass dieser Raum dann zu klein wird.
-könnt Ihr nicht verzichten:
Dusche im EG
Warum ist der Entwurf so geworden, wie er jetzt ist?
Ein Gemisch aus dem Standardgrundriss und unseren Wünschen und Ideen aus Magazinen und Internet
Hallo zusammen, ich hoffe ich habe alle korrekt ausgefüllt. Anbei mal unser Entwurf wie er bis jetzt ist. Das Grundstück wird demnächst gekauft und der Termin mit unserem Architekten ist im Mai. Ich hoffe wir sind gut vorbereitet und würde dazu gerne noch mal eure Meinungen und Ideen vor allem auch Kritik hören.
Was mich noch etwas verunsichert ist die Lage auf dem Grundstück, da wir das Haus doch sehr mittig platziert haben. Die meisten Häuser stehen ja eher dicht an der Straße. im hinteren Bereich müssen laut Bebauungsplan auf eine breite von 5m Sträucher und Bäume gepflanzt werden, seitlich müssen wir ebenfalls 5m Abstand einhalten, da das Baugebiet dort endet.
Wurde das Grundstück (von 76 auf 71 im selben "Block" ?) gewechselt, oder warum geht es nicht im Thread https://www.hausbau-forum.de/threads/Fertighaus-Grundriss-Kritik-und-Anregungen.30961/ weiter, wo das Haus ja an sich schon besprochen wurde ?
https://www.instagram.com/11antgmxde/
https://www.linkedin.com/company/bauen-jetzt/
https://www.instagram.com/11antgmxde/
https://www.linkedin.com/company/bauen-jetzt/
F
FloDerMeister28.04.20 20:01Korrekt, wir haben uns dann letztendlich für ein anderes Grundstück entschieden und daher auch den Grundriss komplett anders gestaltet.
F
FloDerMeister28.04.20 20:17Kniestock ist 2,15m nutzbare Innenraumhöhe ab Oberkante Fertigfußboden ist dann ca. 2,03m der Duschkopf kann aber auch an der seitlichen Wand montiert werden, dann sollte es keine Probleme geben, falls es eins werden sollte. Dachneigung ist übrigens 25°.
Grundriss find ich gut. Ist wohl mit dem Sento verwandt. Ein paar Kleinigkeiten, wie die Badaufteilung oder den Zugang des Schlafzimmer über die Ankleide würde ich ändern.
Die Anordnung der Gebäude auf dem Grundstück ist allerdings tatsächlich blöd. So baut Ihr ja das komplette Grundstück zu. Von dem Garten bleibt nur noch ein schmaler Streifen. Wie breit ist denn das Grundstück und was grenzt planlinks an?
Die Anordnung der Gebäude auf dem Grundstück ist allerdings tatsächlich blöd. So baut Ihr ja das komplette Grundstück zu. Von dem Garten bleibt nur noch ein schmaler Streifen. Wie breit ist denn das Grundstück und was grenzt planlinks an?
Ähnliche Themen