ᐅ Grundstück mit Hanglage, Berg hinterm Haus und fehlende Abendsonne
Erstellt am: 06.06.21 22:15
R
RogsagrHallo zusammen,
wir planen unser erstes Haus. Wir haben einen Grundriss vom Architekten einem Anbieter (Haus der Handwerker). Der ist sehr nah an deren Standardausführung und war ursprünglich für ein kinderloses Paar geplant.
Eine Anpassung wird noch durch den Architekten stattfinden. So sollen die Kinderzimmer auf die Ostseite und größer sein als das Schlafzimmer. Wichtig ist uns möglichst viel Aussicht mitzunehmen, weswegen wir über ein Erker nachdenken oder alternativ das Haus einfach vorzuziehen. Mein Schwiegervater liegt uns auf den Ohren, dass wir die Terrasse auf die Südseite packen sollen. Da haben wir jedoch keine schöne Aussicht, sondern können uns bestenfalls den Flüssiggastank des Nachbars anschauen.
Der Hauswirtschaftsraum Raum kommt in den z. T. ausgebauten Keller.
Ich würde mich über Ratschläge freuen, um selber einen groben Entwurf zu stellen bzw. auch dem Architekten mit konkreten Ideen entgegentreten zu können. Der hat mit dem HdH nur einen Pauschalvertrag und wird sich wohl nicht allzu viel Arbeit mit uns machen 🙂
Vielen Dank im Voraus!
Anbei die Fakten:
Bebauungsplan/Einschränkungen
Größe des Grundstücks: 475 m2
Hanglage: Jupp
Grundflächenzahl: 0,4
Geschossflächenzahl: 0,5
Randbebauung: SW ist ein Haus Die Grundstücke im Norden sind aktuell eine Schafsweide und werden wohl so schnell nicht verkauft. Eine Bebauung wäre aber grundsätzlich möglich.
Anzahl Stellplatz: 2
Geschossigkeit: maximal 1,5 (auf der gegenüberliegenden Seite der Straße 2... wieso das auf dieser Seite anders ist, wissen wir nicht)
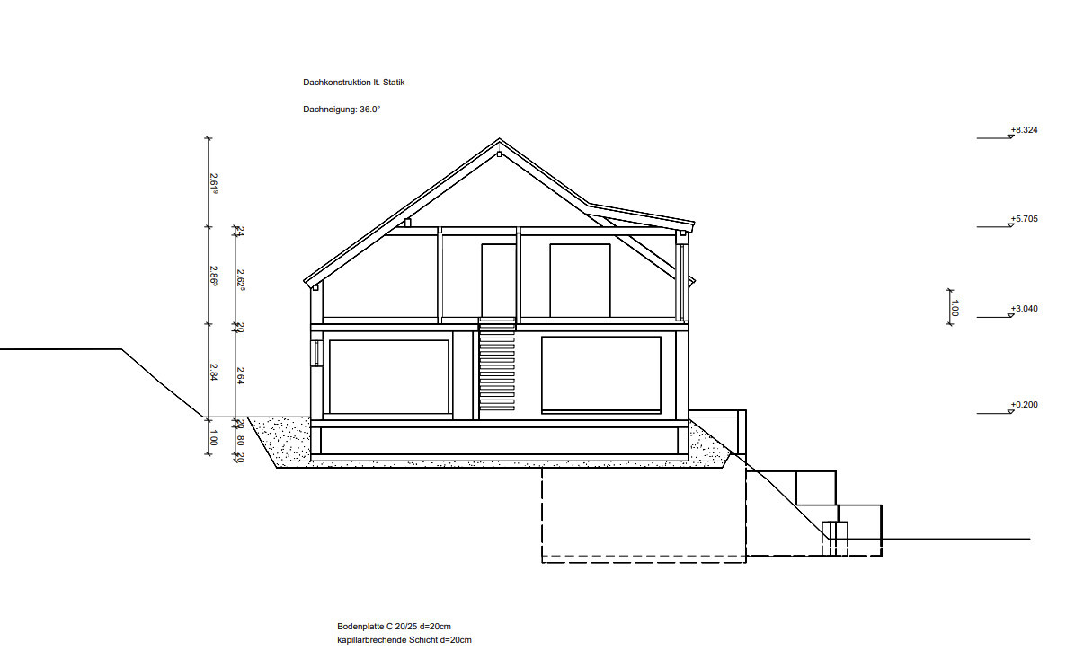
Dachform: Satteldach 35°, aber der Architekt plant mit 36, weil 1° toleranz drin sei...
Stilrichtung: Modern und praktisch.
Ausrichtung: Noch flexibel?
Maximale Höhen/Begrenzungen: 3,5/6,5
weitere Vorgaben: Garage muss 3 m Abstand zur Straße haben und der Abstand zu den Gullys (Nordgrenze des Grundstücks) muss eingehalten werden. Wieviel weiß ich noch nicht.
Anforderungen der Bauherren
Stilrichtung, Dachform, Gebäudetyp: Satteldach ist Vorgabe. Stil eher modern und praktisch.
Keller, Geschosse: Teilausbau des Kellers ist angedacht. Hier soll das Heizungssystems hin, wie auch ein Lager und Fitnessraum sowie ein WC.
Anzahl der Personen, Alter: 2 Erwachsene und 1 Kind + ein weiteres Kind in Planung sowie ein Hund.
Raumbedarf im EG, OG: Im EG: Wohn und Kochbereich sowie Waschraum. Heizung wird im Keller landen. Oben sollen die Schlafräume sein, wie ein großes Bad ggf. Abtrennung vom WC.
Büro: Homeoffice und ggf. auch als Gästezimmer genutzt.
Schlafgäste pro Jahr: Schwiegereltern primär. 5-6 mal? Hoffentlich nicht mehr... Vielleicht 3-4 mal im Jahr Freunde. Deswegen eher Büro/Gästezimmer.
offene oder geschlossene Architektur: flexibel
konservativ oder moderne Bauweise: Modern.
offene Küche, Kochinsel: Offene Küche muss nicht, wird aber bevorzugt, aber ein wenig Abgrenzung zum Wohnbereich sollte schon sein.
Anzahl Essplätze: Unser Tisch ist 2.40 lang…
Kamin: Nein.
Musik/Stereowand: Wird an Fernseher angedockt.
Balkon, Dachterrasse: Balkon auf einem Erker, um die Aussicht zu nutzen.
Garage, Carport: Garage auf Keller-/Straßenebene.
Nutzgarten, Treibhaus: Eher nein.
weitere Wünsche/Besonderheiten/Tagesablauf, gern auch Begründungen, warum dieses oder das nicht sein soll: Kinderzimmer sollen die größten und hellsten Räume sein.
Hausentwurf
Von wem stammt die Planung:
-Planer eines Bauunternehmens: <-
Was gefällt besonders? Warum?: Große Küche und die Möglichkeit den Esstisch in der Nähe der Küche zu haben. Dachlaube.
Was gefällt nicht? Warum? Platzverschwendung. Das Gefühl viel nutzlose Fläche zu haben ohne, dass die besonders angenehm wirkt. Aussicht fließt nicht ausreichend in die Architektur ein.
Preisschätzung lt Architekt/Planer: 462.000 Euro
Persönliches Preislimit fürs Haus, inkl Ausstattung:490.000 Euro




wir planen unser erstes Haus. Wir haben einen Grundriss vom Architekten einem Anbieter (Haus der Handwerker). Der ist sehr nah an deren Standardausführung und war ursprünglich für ein kinderloses Paar geplant.
Eine Anpassung wird noch durch den Architekten stattfinden. So sollen die Kinderzimmer auf die Ostseite und größer sein als das Schlafzimmer. Wichtig ist uns möglichst viel Aussicht mitzunehmen, weswegen wir über ein Erker nachdenken oder alternativ das Haus einfach vorzuziehen. Mein Schwiegervater liegt uns auf den Ohren, dass wir die Terrasse auf die Südseite packen sollen. Da haben wir jedoch keine schöne Aussicht, sondern können uns bestenfalls den Flüssiggastank des Nachbars anschauen.
Der Hauswirtschaftsraum Raum kommt in den z. T. ausgebauten Keller.
Ich würde mich über Ratschläge freuen, um selber einen groben Entwurf zu stellen bzw. auch dem Architekten mit konkreten Ideen entgegentreten zu können. Der hat mit dem HdH nur einen Pauschalvertrag und wird sich wohl nicht allzu viel Arbeit mit uns machen 🙂
Vielen Dank im Voraus!
Anbei die Fakten:
Bebauungsplan/Einschränkungen
Größe des Grundstücks: 475 m2
Hanglage: Jupp
Grundflächenzahl: 0,4
Geschossflächenzahl: 0,5
Randbebauung: SW ist ein Haus Die Grundstücke im Norden sind aktuell eine Schafsweide und werden wohl so schnell nicht verkauft. Eine Bebauung wäre aber grundsätzlich möglich.
Anzahl Stellplatz: 2
Geschossigkeit: maximal 1,5 (auf der gegenüberliegenden Seite der Straße 2... wieso das auf dieser Seite anders ist, wissen wir nicht)
Dachform: Satteldach 35°, aber der Architekt plant mit 36, weil 1° toleranz drin sei...
Stilrichtung: Modern und praktisch.
Ausrichtung: Noch flexibel?
Maximale Höhen/Begrenzungen: 3,5/6,5
weitere Vorgaben: Garage muss 3 m Abstand zur Straße haben und der Abstand zu den Gullys (Nordgrenze des Grundstücks) muss eingehalten werden. Wieviel weiß ich noch nicht.
Anforderungen der Bauherren
Stilrichtung, Dachform, Gebäudetyp: Satteldach ist Vorgabe. Stil eher modern und praktisch.
Keller, Geschosse: Teilausbau des Kellers ist angedacht. Hier soll das Heizungssystems hin, wie auch ein Lager und Fitnessraum sowie ein WC.
Anzahl der Personen, Alter: 2 Erwachsene und 1 Kind + ein weiteres Kind in Planung sowie ein Hund.
Raumbedarf im EG, OG: Im EG: Wohn und Kochbereich sowie Waschraum. Heizung wird im Keller landen. Oben sollen die Schlafräume sein, wie ein großes Bad ggf. Abtrennung vom WC.
Büro: Homeoffice und ggf. auch als Gästezimmer genutzt.
Schlafgäste pro Jahr: Schwiegereltern primär. 5-6 mal? Hoffentlich nicht mehr... Vielleicht 3-4 mal im Jahr Freunde. Deswegen eher Büro/Gästezimmer.
offene oder geschlossene Architektur: flexibel
konservativ oder moderne Bauweise: Modern.
offene Küche, Kochinsel: Offene Küche muss nicht, wird aber bevorzugt, aber ein wenig Abgrenzung zum Wohnbereich sollte schon sein.
Anzahl Essplätze: Unser Tisch ist 2.40 lang…
Kamin: Nein.
Musik/Stereowand: Wird an Fernseher angedockt.
Balkon, Dachterrasse: Balkon auf einem Erker, um die Aussicht zu nutzen.
Garage, Carport: Garage auf Keller-/Straßenebene.
Nutzgarten, Treibhaus: Eher nein.
weitere Wünsche/Besonderheiten/Tagesablauf, gern auch Begründungen, warum dieses oder das nicht sein soll: Kinderzimmer sollen die größten und hellsten Räume sein.
Hausentwurf
Von wem stammt die Planung:
-Planer eines Bauunternehmens: <-
Was gefällt besonders? Warum?: Große Küche und die Möglichkeit den Esstisch in der Nähe der Küche zu haben. Dachlaube.
Was gefällt nicht? Warum? Platzverschwendung. Das Gefühl viel nutzlose Fläche zu haben ohne, dass die besonders angenehm wirkt. Aussicht fließt nicht ausreichend in die Architektur ein.
Preisschätzung lt Architekt/Planer: 462.000 Euro
Persönliches Preislimit fürs Haus, inkl Ausstattung:490.000 Euro
H
HilfeHilfe07.06.21 06:38immer da die Terrasse bauen wo ihr die meiste sonne am tag habt & vor allem abends.
Am Wochenende sollte es eher egal sein, aber unter der woche ist es wichtig viel sonne zu haben.
Nachbarn von uns haben eine schöne Dachterrasse gebaut die sie 0,00000 nutzen und jetzt vor dem haus auf 4 qmtr und biergartenbänken lungern
Am Wochenende sollte es eher egal sein, aber unter der woche ist es wichtig viel sonne zu haben.
Nachbarn von uns haben eine schöne Dachterrasse gebaut die sie 0,00000 nutzen und jetzt vor dem haus auf 4 qmtr und biergartenbänken lungern
H
hanghaus200007.06.21 11:05Zeig mal die Suedaussicht. Ist die so schlimm, dass man die grossen Fenster Alle nach Norden plant?
Gibt es einen Bebauaungsplan? Oder 34er?
Bitte zeig und doch mal die Textversion vom Bebauungsplan und den Panausschnitt.
Gibt es einen Bebauaungsplan? Oder 34er?
Bitte zeig und doch mal die Textversion vom Bebauungsplan und den Panausschnitt.
hanghaus2000 schrieb:
Zeig mal die Suedaussicht. Ist die so schlimm, dass man die grossen Fenster Alle nach Norden plant?
Gibt es einen Bebauaungsplan? Oder 34er?
Bitte zeig und doch mal die Textversion vom Bebauungsplan und den Panausschnitt.Danke für die Rückmeldungen.
Es gibt einen Bebauungsplan. Den muss ich aber noch bestellen und bezahlen. Die bisherigen Daten habe ich telefonisch erfragt. Gemeinerweise dürfen wir nur 1,5 Geschosse bauen, die auf der gegenüberliegenden Seite (gleiche Straße) dürfen 2 Geschosse ausbauen :/
Welchen Planausschnitt meinste?
Direkt in der Nähe des Nachbars würde ich ungern bauen, da der dort einen Flüssiggastank hat und weil die da in der kleinen Gartenhütte ihren Partyraum haben und ordentliche Raucher sind.
HilfeHilfe schrieb:
immer da die Terrasse bauen wo ihr die meiste sonne am tag habt & vor allem abends.
Am Wochenende sollte es eher egal sein, aber unter der woche ist es wichtig viel sonne zu haben.
Nachbarn von uns haben eine schöne Dachterrasse gebaut die sie 0,00000 nutzen und jetzt vor dem haus auf 4 qmtr und biergartenbänken lungernDer Berg ist da etwas hinderlich und zur anderen Seite wären direkt die Nachbarn sehr nah. ggf. ist es Sinnvoll auf einer Seite den Wintergarten zu haben und auf der anderen die Terrasse?
H
hanghaus200007.06.21 15:05Rogsagr schrieb:
Danke für die Rückmeldungen.
Es gibt einen Bebauungsplan. Den muss ich aber noch bestellen und bezahlen. Die bisherigen Daten habe ich telefonisch erfragt. Gemeinerweise dürfen wir nur 1,5 Geschosse bauen, die auf der gegenüberliegenden Seite (gleiche Straße) dürfen 2 Geschosse ausbauen :/
Welchen Planausschnitt meinste?Dein Planer muss doch mindestens den Bebauungsplan haben. Das gehoert zur Grundlagenermittlung. Der Planer verlangt Geld von Dir fuer den Bebauungsplan? Heutzutage sind doch Bebauungsplan online? einfach mal google map nehmen und in den Umgebungsbereich Dein Grundstück einzeichnen. Einfacher geht das im Geoportal von BW. Da findest vermutlich auch den Bebauungsplan.
Wenn Du hier den Ort und den Namen des Baugebiets angibst findet das @11ant bestimmt gern fuer Dich. Du hast doch das Grundstück schon?
Planausschnitt mit Deinem Grundstück und den umliegenden Bebauungen.
Ähnliche Themen