ᐅ Grundriss Einfamilienhaus 154m2 + Keller in Hanglage
Erstellt am: 14.10.24 19:35
O
oadna471114.10.24 19:35Hallo zusammen,
ich bin nun schon seit einiger Zeit in der Planungsphase.
Den Grundriss habe ich basierend auf Musterhäuser selbst erstellt.
Um ein professionelle Meinung einzuholen war ich bereits im Gespräch mit einer Baufirma.
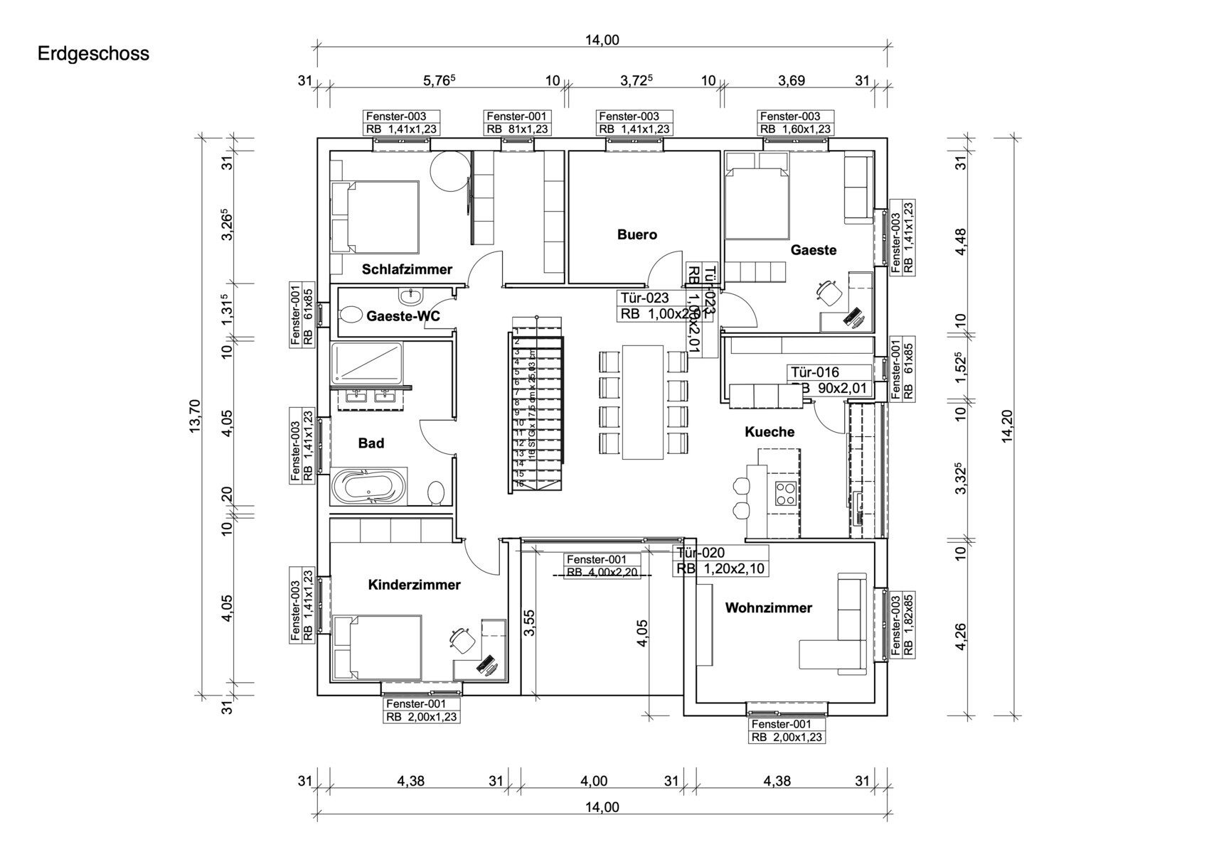
Der Planer zeichnete mir einen Plan, der mir jedoch nicht gefallen hat. Beim nächsten Termin zeigte ich ihm meinen Vorschlag und dieser gefiel im auch ganz gut. Wir besprachen einige Korrekturen und somit war der erste Entwurf gefunden.
Ich würde mich um jede Kritik bzw. Vorschlag freuen und bin über eure Meinung gespannt.
Bebauungsplan/Einschränkungen
Größe des Grundstücks: ~1000 m2 (wurde noch nicht vermessen)
Hang: durchschnittliche Neigung 7 Grad (ca. 1,5m höhe auf 10m länge)
Geschossflächenzahl: 2
Dachform: Walmdach
weitere Vorgaben bezüglich Bebauungsplan unbekannt
Anforderungen der Bauherren
Stilrichtung, Dachform, Gebäudetyp: Bungalow mit Keller und Walmdach
Keller, Geschosse: Keller + 1 Geschoss
Anzahl der Personen, Alter: 2 Personen (29 & 34)
Raumbedarf im KG: Garage (2 Stellplätze), Büro, Eingangsbereich + Garderobe, Waschraum (Waschmaschine, WC, eventuell kleine Dusche), Technikraum & Abstellplatz
Raumbedarf im OG: Küche, Wohnzimmer, Esszimmer, Schlafzimmer + Schrankraum, Kinderzimmer, Büro & Gästezimmer
Büro: Familiennutzung oder Homeoffice: Familiennutzung + Homeoffice (sind beide im Homeoffice also werden 2 Büros benötigt)
Schlafgäste pro Jahr: ca. 4x
offene oder geschlossene Architektur: eher geschlossen; Küche zum Esstisch offen
konservativ oder moderne Bauweise: eher modern bevorzugt
offene Küche, Kochinsel: offene Küche + Kochinsel
Anzahl Essplätze: ein Esstisch für 8 Personen sollte Platz finden
Kamin: kein muss
Musik/Stereowand: nein
Balkon, Dachterrasse: nein
Garage, Carport: Garage, Carport eventuell später
Nutzgarten, Treibhaus: nein
weitere Wünsche/Besonderheiten/Tagesablauf, gern auch Begründungen, warum dieses oder das nicht sein soll:
Wir bevorzugen den Eingang im Kellergeschoss, da wir zu 90% mit dem Auto unterwegs sind und dadurch oben keine Eingangstür benötigen.
In der Küche haben wir über ein Fenster als Rückwand (zwischen Arbeitsplatte und Hängeschränke) nachgedacht, da es uns im Musterhaus sehr gut gefallen hat. Jedoch zerstört es etwas die Außenansicht. Wir sind uns noch unschlüssig ob es diesen Mehrwert wert ist.
Hausentwurf
Von wem stammt die Planung: -Do-it-Yourself
Was gefällt besonders? Warum? Das etwas abgegrenzte Wohnzimmer hat uns in einem Musterhaus besonders gefallen, da es Wohnlich wirkt. Somit haben wir es in unseren Plan übernommen.
Was gefällt nicht? Warum? Anordnung der Fenster von Außen
Preisschätzung laut Planer: Für das Erdgeschoss: ~ 250.000 für Leistungsstufe (Rohbau + Dach und Fenster) fertig für den Innenausbau, welcher in Eigenarbeit gemacht wird. Elektrik, Sanitär und Estrich wird separat vergeben
Keller: noch keine Abschätzungen
Persönliches Preislimit fürs Haus, inkl. Ausstattung: 600.000
favorisierte Heiztechnik: Erdwärme mit Flächenkollektor
Wenn Ihr verzichten müsst, auf welche Details/Ausbauten
-könnt Ihr verzichten: Gästezimmer (könnte eventuell mit einem Büro geteilt werden)
-könnt Ihr nicht verzichten: 2 Büros für Homeoffice, wobei sich mein Büro gerne im Keller befinden kann.
Warum ist der Entwurf so geworden, wie er jetzt ist? ZB
Wir haben erstmal all unsere Wünsche in diesem Plan abgedeckt um uns erste Kostenvoranschläge einzuholen.
Bin gespannt auf eure Meinungen.
Beste Grüße aus Österreich






ich bin nun schon seit einiger Zeit in der Planungsphase.
Den Grundriss habe ich basierend auf Musterhäuser selbst erstellt.
Um ein professionelle Meinung einzuholen war ich bereits im Gespräch mit einer Baufirma.
Der Planer zeichnete mir einen Plan, der mir jedoch nicht gefallen hat. Beim nächsten Termin zeigte ich ihm meinen Vorschlag und dieser gefiel im auch ganz gut. Wir besprachen einige Korrekturen und somit war der erste Entwurf gefunden.
Ich würde mich um jede Kritik bzw. Vorschlag freuen und bin über eure Meinung gespannt.
Bebauungsplan/Einschränkungen
Größe des Grundstücks: ~1000 m2 (wurde noch nicht vermessen)
Hang: durchschnittliche Neigung 7 Grad (ca. 1,5m höhe auf 10m länge)
Geschossflächenzahl: 2
Dachform: Walmdach
weitere Vorgaben bezüglich Bebauungsplan unbekannt
Anforderungen der Bauherren
Stilrichtung, Dachform, Gebäudetyp: Bungalow mit Keller und Walmdach
Keller, Geschosse: Keller + 1 Geschoss
Anzahl der Personen, Alter: 2 Personen (29 & 34)
Raumbedarf im KG: Garage (2 Stellplätze), Büro, Eingangsbereich + Garderobe, Waschraum (Waschmaschine, WC, eventuell kleine Dusche), Technikraum & Abstellplatz
Raumbedarf im OG: Küche, Wohnzimmer, Esszimmer, Schlafzimmer + Schrankraum, Kinderzimmer, Büro & Gästezimmer
Büro: Familiennutzung oder Homeoffice: Familiennutzung + Homeoffice (sind beide im Homeoffice also werden 2 Büros benötigt)
Schlafgäste pro Jahr: ca. 4x
offene oder geschlossene Architektur: eher geschlossen; Küche zum Esstisch offen
konservativ oder moderne Bauweise: eher modern bevorzugt
offene Küche, Kochinsel: offene Küche + Kochinsel
Anzahl Essplätze: ein Esstisch für 8 Personen sollte Platz finden
Kamin: kein muss
Musik/Stereowand: nein
Balkon, Dachterrasse: nein
Garage, Carport: Garage, Carport eventuell später
Nutzgarten, Treibhaus: nein
weitere Wünsche/Besonderheiten/Tagesablauf, gern auch Begründungen, warum dieses oder das nicht sein soll:
Wir bevorzugen den Eingang im Kellergeschoss, da wir zu 90% mit dem Auto unterwegs sind und dadurch oben keine Eingangstür benötigen.
In der Küche haben wir über ein Fenster als Rückwand (zwischen Arbeitsplatte und Hängeschränke) nachgedacht, da es uns im Musterhaus sehr gut gefallen hat. Jedoch zerstört es etwas die Außenansicht. Wir sind uns noch unschlüssig ob es diesen Mehrwert wert ist.
Hausentwurf
Von wem stammt die Planung: -Do-it-Yourself
Was gefällt besonders? Warum? Das etwas abgegrenzte Wohnzimmer hat uns in einem Musterhaus besonders gefallen, da es Wohnlich wirkt. Somit haben wir es in unseren Plan übernommen.
Was gefällt nicht? Warum? Anordnung der Fenster von Außen
Preisschätzung laut Planer: Für das Erdgeschoss: ~ 250.000 für Leistungsstufe (Rohbau + Dach und Fenster) fertig für den Innenausbau, welcher in Eigenarbeit gemacht wird. Elektrik, Sanitär und Estrich wird separat vergeben
Keller: noch keine Abschätzungen
Persönliches Preislimit fürs Haus, inkl. Ausstattung: 600.000
favorisierte Heiztechnik: Erdwärme mit Flächenkollektor
Wenn Ihr verzichten müsst, auf welche Details/Ausbauten
-könnt Ihr verzichten: Gästezimmer (könnte eventuell mit einem Büro geteilt werden)
-könnt Ihr nicht verzichten: 2 Büros für Homeoffice, wobei sich mein Büro gerne im Keller befinden kann.
Warum ist der Entwurf so geworden, wie er jetzt ist? ZB
Wir haben erstmal all unsere Wünsche in diesem Plan abgedeckt um uns erste Kostenvoranschläge einzuholen.
Bin gespannt auf eure Meinungen.
Beste Grüße aus Österreich
Interessant! .. energetisch natürlich eine Sau.
Hat der Planer das jetzt gezeichnet? Mit den 35er Wänden im UG, 31er im EG? Ich wundere mich.
Welchen Energiestandard wollt Ihr (nicht) erreichen? Man könnte, wenn man sich die Frage stellt, ob die Garage mit in die thermische Hülle soll, auf den Gedanken kommen, ob alles außerhalb der thermischen Hülle liegen soll.
Insofern hoffe ich, dieser Plan ist noch von Dir.
Vom Grundsatz finde ich das ganz gut. Zu zweit kann man darum wunderbar leben. Allerdings ist es mit Kind zu offen. Das Kinderzimmer liegt zu sehr in Präsenz der Aktiv- und Gästezone, als dass es genug Ruhe bekommt.
Scherz beiseite: die Eingangstür macht dort unten Sinn, weil es ein Hanggrundstück ist.
Bevor ich zum wertvollsten Punkt komme, einige Anmerkungen:
- Das Dach wirkt wie ein Deckel aufgesetzt, da der Überstand zu groß ist. Wieviel soll der geplant sein?
- Dem Flur fehlt ein garderobenschrank. Nicht so eine kleine Besuchergarderobe, die vor dem Fenster steht, sondern ein eingeplanter Garderobenschrank, für drei Personen so 150 - 200cm breit.
- im Eingangsbereich fehlt eine Toilette. Die ist tatsächlich nötig. Im EG würde ich auf die separate Toi verzichten.
- dass das Kinderzimmer zu dicht am Essbereich ist, erwähnte ich schon
- oben ist alles schön offen, aber ist es dort auch hell? Durch das U und dem Dachüberstand wird es recht dunkel im Hauptbereich sein. Da kommt ja gerade mal für eine Stunde das Sonnenlicht in den Raum. Von innen schaut ihr erst einmal in einen Tunnel. Eigentlich müsste auf dem Dach eine Lichtkuppel sein..
Allerdings wird das Geld nicht reichen.
oadna4711 schrieb:Ihr habt da kein Keller plus Geschoss, Ihr habt da ein UG (vollwertiges Geschoss) mit einem EG.
Keller + 1 Geschoss
Hat der Planer das jetzt gezeichnet? Mit den 35er Wänden im UG, 31er im EG? Ich wundere mich.
Welchen Energiestandard wollt Ihr (nicht) erreichen? Man könnte, wenn man sich die Frage stellt, ob die Garage mit in die thermische Hülle soll, auf den Gedanken kommen, ob alles außerhalb der thermischen Hülle liegen soll.
Insofern hoffe ich, dieser Plan ist noch von Dir.
Vom Grundsatz finde ich das ganz gut. Zu zweit kann man darum wunderbar leben. Allerdings ist es mit Kind zu offen. Das Kinderzimmer liegt zu sehr in Präsenz der Aktiv- und Gästezone, als dass es genug Ruhe bekommt.
oadna4711 schrieb:Welchen Mehrwert meinst Du? Den der Fassade oder den des Tageslichts in der Küche? Ich würde dahingehend die Fassade mit Bepflanzung ausgleichen. So wie Du das Haus digital siehst, wirst Du es gebaut auf dem Grundstück ja nicht sehen.
Jedoch zerstört es etwas die Außenansicht. Wir sind uns noch unschlüssig ob es diesen Mehrwert wert ist.
oadna4711 schrieb:Das Kind ist auch mit dem Auto unterwegs oder kommt es auch mal nach Hause?
Wir bevorzugen den Eingang im Kellergeschoss, da wir zu 90% mit dem Auto unterwegs sind und dadurch oben keine Eingangstür benötigen.
Scherz beiseite: die Eingangstür macht dort unten Sinn, weil es ein Hanggrundstück ist.
Bevor ich zum wertvollsten Punkt komme, einige Anmerkungen:
- Das Dach wirkt wie ein Deckel aufgesetzt, da der Überstand zu groß ist. Wieviel soll der geplant sein?
- Dem Flur fehlt ein garderobenschrank. Nicht so eine kleine Besuchergarderobe, die vor dem Fenster steht, sondern ein eingeplanter Garderobenschrank, für drei Personen so 150 - 200cm breit.
- im Eingangsbereich fehlt eine Toilette. Die ist tatsächlich nötig. Im EG würde ich auf die separate Toi verzichten.
- dass das Kinderzimmer zu dicht am Essbereich ist, erwähnte ich schon
- oben ist alles schön offen, aber ist es dort auch hell? Durch das U und dem Dachüberstand wird es recht dunkel im Hauptbereich sein. Da kommt ja gerade mal für eine Stunde das Sonnenlicht in den Raum. Von innen schaut ihr erst einmal in einen Tunnel. Eigentlich müsste auf dem Dach eine Lichtkuppel sein..
Allerdings wird das Geld nicht reichen.
oadna4711 schrieb:Das wird für Deinen Traum nicht reichen. Auch mit Eigenleistungen nicht.
Persönliches Preislimit fürs Haus, inkl. Ausstattung: 600.000
O
oadna471115.10.24 07:24Erstmals vielen Dank für dein Feedback und den Anstoß für weitere Überlegungen.
Das hat so der Planer gezeichnet, ich habe es nur so übernommen. Ich denke er hat das UG nicht im Detail gezeichnet, da es sich um eine Fertigteil Firma handelt und ich nur das EG angefragt habe. Da muss ich mich noch befassen ob die Garage teil der thermischen Hülle ist. Durch die offene Stiege sollte das UG auch gut gedämmt sein. Über den Energiestandard habe ich mir noch keine Gedanken gemacht...
- Die Garderobe wäre unter der Stiege geplant und ein weiterer größerer Schrank in einem der Abstellräume.
- Ich hoffe, dass es nicht zu dunkel wird. Im Musterhaus elegance136w-newlife war es sehr hell, jedoch ist das Wohnzimmer offener und hat ein größeres Fenster.
ypg schrieb:
Hat der Planer das jetzt gezeichnet? Mit den 35er Wänden im UG, 31er im EG? Ich wundere mich.
Welchen Energiestandard wollt Ihr (nicht) erreichen? Man könnte, wenn man sich die Frage stellt, ob die Garage mit in die thermische Hülle soll, auf den Gedanken kommen, ob alles außerhalb der thermischen Hülle liegen soll.
Insofern hoffe ich, dieser Plan ist noch von Dir.
Das hat so der Planer gezeichnet, ich habe es nur so übernommen. Ich denke er hat das UG nicht im Detail gezeichnet, da es sich um eine Fertigteil Firma handelt und ich nur das EG angefragt habe. Da muss ich mich noch befassen ob die Garage teil der thermischen Hülle ist. Durch die offene Stiege sollte das UG auch gut gedämmt sein. Über den Energiestandard habe ich mir noch keine Gedanken gemacht...
ypg schrieb:Über das haben wir uns auch Gedanken gemacht. Denkst du mit 2 Schiebetüren könnte man den Gang vom Essbereich/Stiegenbereich genug abschirmen?
Vom Grundsatz finde ich das ganz gut. Zu zweit kann man darum wunderbar leben. Allerdings ist es mit Kind zu offen. Das Kinderzimmer liegt zu sehr in Präsenz der Aktiv- und Gästezone, als dass es genug Ruhe bekommt.
ypg schrieb:- Das Dach ist nur im Entwurf von mir so. Der Planer hatte ein Pultdach gezeichnet obwohl wir gerne ein Satteldach wollen. Wie groß der Überstand sein soll weiß ich nicht.
Bevor ich zum wertvollsten Punkt komme, einige Anmerkungen:
- Das Dach wirkt wie ein Deckel aufgesetzt, da der Überstand zu groß ist. Wieviel soll der geplant sein?
- Dem Flur fehlt ein Garderobenschrank. Nicht so eine kleine Besuchergarderobe, die vor dem Fenster steht, sondern ein eingeplanter Garderobenschrank, für drei Personen so 150 - 200cm breit.
- im Eingangsbereich fehlt eine Toilette. Die ist tatsächlich nötig. Im EG würde ich auf die separate Toi verzichten.
- dass das Kinderzimmer zu dicht am Essbereich ist, erwähnte ich schon
- oben ist alles schön offen, aber ist es dort auch hell? Durch das U und dem Dachüberstand wird es recht dunkel im Hauptbereich sein. Da kommt ja gerade mal für eine Stunde das Sonnenlicht in den Raum. Von innen schaut ihr erst einmal in einen Tunnel. Eigentlich müsste auf dem Dach eine Lichtkuppel sein..
Allerdings wird das Geld nicht reichen.
- Die Garderobe wäre unter der Stiege geplant und ein weiterer größerer Schrank in einem der Abstellräume.
- Ich hoffe, dass es nicht zu dunkel wird. Im Musterhaus elegance136w-newlife war es sehr hell, jedoch ist das Wohnzimmer offener und hat ein größeres Fenster.
ypg schrieb:Ich hole mal Angebote ein. Wahrscheinlich werden diese mich zurück auf den Boden der Realität holen und dann muss man Abstriche in Kauf nehmen.
Das wird für Deinen Traum nicht reichen. Auch mit Eigenleistungen nicht.
Der Grundriss an sich könnte an der Treppe haken ... sehr bequeme Stufenhöhe, allerdings sehr geringe Auftrittstiefe der Stufen mit nur 25 cm. Die sollte auf 27 cm angepasst werden und damit wird die Treppe rund 35 cm länger und das könnte knapp mit der Einpassung im EG werden.
14x14 m mit Satteldach ... sollte dann ein sehr flaches sein. Insgesamt könnte es im Inneren recht dunkel werden, der Esstisch so mitten im Durchgangsbereich gefällt mir auch nicht so ganz.
Die grundsätzliche Raumverteilung etc. ist schon ganz ok. Wobei Schlafzimmer mit 326 cm Breite echt knapp ist, ist ja Rohbaumaß. Und sich die Frage stellt, ob ein Gästezimmer so groß sein muss und noch einen dritten Büroplatz bietet.
14x14 m mit Satteldach ... sollte dann ein sehr flaches sein. Insgesamt könnte es im Inneren recht dunkel werden, der Esstisch so mitten im Durchgangsbereich gefällt mir auch nicht so ganz.
Die grundsätzliche Raumverteilung etc. ist schon ganz ok. Wobei Schlafzimmer mit 326 cm Breite echt knapp ist, ist ja Rohbaumaß. Und sich die Frage stellt, ob ein Gästezimmer so groß sein muss und noch einen dritten Büroplatz bietet.
O
oadna471115.10.24 10:58Hi kbt09,
da hast du recht, die Treppe muss ich mir nochmal ansehen. 35cm länger würde sich so nicht passen.
Das Dach sollte relative flach werden. Wenn es zu dunkel ist, wäre das blöd. Eventuell könnte man mit Tageslichtspots arbeiten? Wie findet man am besten heraus ob der Raum zu dunkel wird?
Gästezimmer müsste nicht so groß sein, ist der Raumaufteilung und der Tür geschuldet. Wäre über Vorschläge sehr froh. Es wäre auch eine Überlegung wert, dass man das Gästezimmer im UG unterbringt.
da hast du recht, die Treppe muss ich mir nochmal ansehen. 35cm länger würde sich so nicht passen.
Das Dach sollte relative flach werden. Wenn es zu dunkel ist, wäre das blöd. Eventuell könnte man mit Tageslichtspots arbeiten? Wie findet man am besten heraus ob der Raum zu dunkel wird?
Gästezimmer müsste nicht so groß sein, ist der Raumaufteilung und der Tür geschuldet. Wäre über Vorschläge sehr froh. Es wäre auch eine Überlegung wert, dass man das Gästezimmer im UG unterbringt.
oadna4711 schrieb:
Denkst du mit 2 Schiebetüren könnte man den Gang vom Essbereich/Stiegenbereich genug abschirmen?Schiebetüren dämmen kaum Geräusche.Bei Familienhäusern rate ich immer zu einem separatem Flur. Aber auch bei Paaren bietet sich ein offenes Wohnkonzept bei der Privatzone nicht an, da man auch mal unabhängig voneinander Besuch hat und dann dem Besuch sich nicht unbedingt beim Spa-en oder ähnlich präsentieren möchte.
oadna4711 schrieb:
Der Planer hatte ein Pultdach gezeichnet obwohl wir gerne ein Satteldach wollen.Pult, also ein versetztes Pult, wäre zb eine gute Möglichkeit, in einem innenliegenden Raum Tageslicht zu bekommen, würde hier aber für eine ganz andere Optik sorgen.oadna4711 schrieb:
- Ich hoffe, dass es nicht zu dunkel wird. Im Musterhaus „Harthaus Elegance 136“ war es sehr hell, jedoch ist das Wohnzimmer offener und hat ein größeres Fenster.Musterhäuser sind sehr gut ausgeleuchtet. Zudem hast Du einen anderen Raumschnitt.Wenn Du Dir mal die Ansichten (Fotos) im www anschaust, dann siehst Du schon außen, dass dort das Licht abnimmt. Entsprechend wird es innen noch dunkel - das liegt an den zwei Vorsprüngen links und rechts sowie der Dachüberstand. Im Musterhaus ist der Raum quer, also gerade mal 3,50 tief, Deiner knapp an die 6 Meter.
Ähnliche Themen