Ausführungspläne geändert ohne Absprache!!

4,80 Stern(e) 13 Votes
Zuletzt aktualisiert 20.11.2025
Sie befinden sich auf der Seite 3 der Diskussion zum Thema: Ausführungspläne geändert ohne Absprache!!
>> Zum 1. Beitrag <<

D

DaniMartinez

Also die Genehmigung kam an Euch. Daraus lese ich, Ihr seid die Bauherren, keine Käufer eines Bauträgerhauses. Was ist dann damit gemeint, daß Ihr mit dem Planungsbüro "zusammen" baut - welche Aktien haben die in der Sache drin ?

Änderungen zwischen den Entwurfs- und den Bauantragsplänen hätten Euch mitzuteilen gehört. Änderungen nach den Bauantragsplänen hätten Tekturen bedurft.

Ich vollziehe nicht nach, weshalb die Änderung der Fensterlage zu einer Änderung der Raumgrößen geführt hat (und warte also auf Deine Planzeichnungen). Normalerweise sind es die Bauherren, die "während der Fahrt" noch die Fenster verschieben. Was einen Architekten dabei reiten könnte, erschließt sich mir nicht. Vom Urheberrecht allein sehe ich das nicht gedeckt.
Also die Genehmigung kam an Euch. Daraus lese ich, Ihr seid die Bauherren, keine Käufer eines Bauträgerhauses. Was ist dann damit gemeint, daß Ihr mit dem Planungsbüro "zusammen" baut - welche Aktien haben die in der Sache drin ?

Änderungen zwischen den Entwurfs- und den Bauantragsplänen hätten Euch mitzuteilen gehört. Änderungen nach den Bauantragsplänen hätten Tekturen bedurft.

Ich vollziehe nicht nach, weshalb die Änderung der Fensterlage zu einer Änderung der Raumgrößen geführt hat (und warte also auf Deine Planzeichnungen). Normalerweise sind es die Bauherren, die "während der Fahrt" noch die Fenster verschieben. Was einen Architekten dabei reiten könnte, erschließt sich mir nicht. Vom Urheberrecht allein sehe ich das nicht gedeckt.
Wir haben mit dem Planungsbüro die weitere Zusammenarbeit vereinbart, dass die die Entwurfspläne für den Bauantrag erstellen und einreichen,die Ausschreibung der Gewerke übernehmen, die Bauleitung, etc.

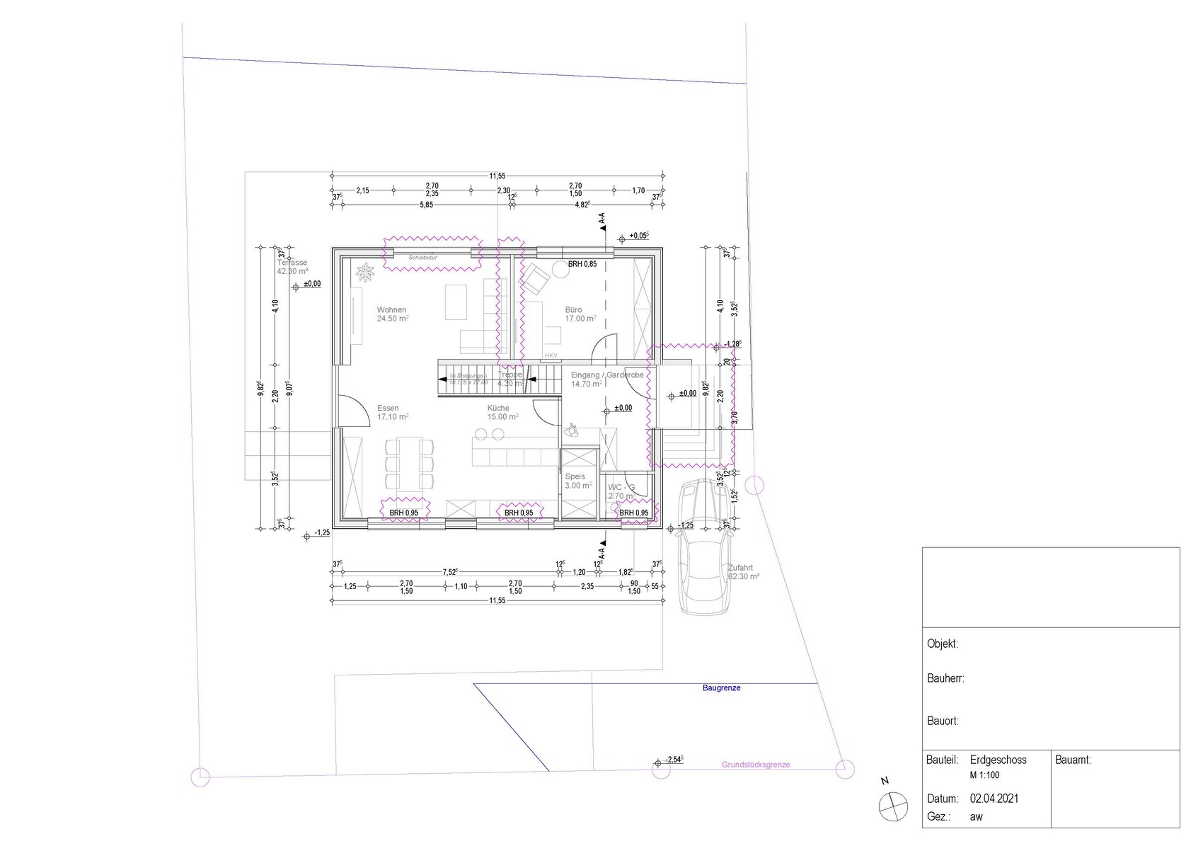
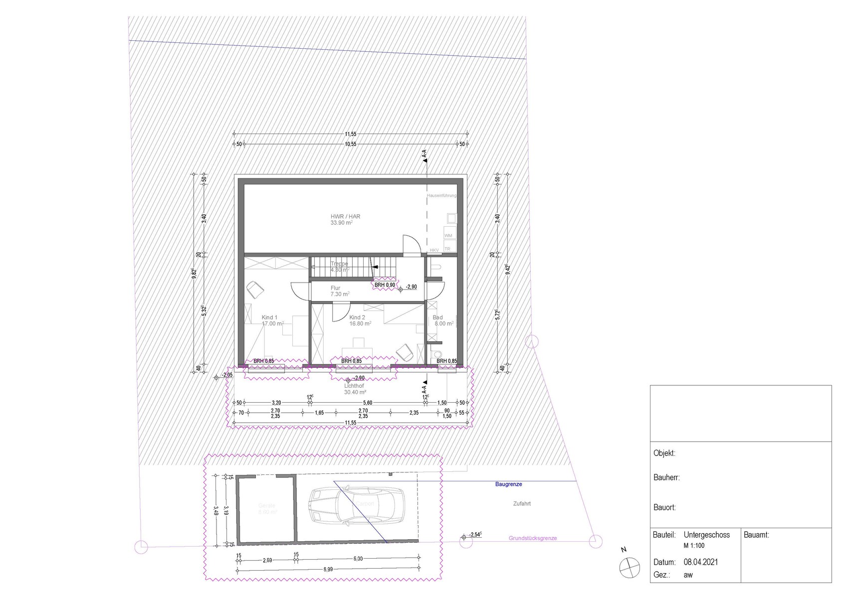
Wie sich die Raumgröße ändert zeigen die Bilder, die ich eingefügt habe! In den Emtwurfsplänen waren die Fenster der Südseite von EG und KG nicht plan! Anstatt jetzt aber das Fenster im EG um die entsprechenden 55cm nach links zu verschieben, hat der Architekt in der Ausführungsplanung das Fenster/Tür im KG um 55cm nach rechts verschoben!
Dadurch ist das mittlere Zimmer im KG kleiner geworden und das andere Zimmer größer mit einem Versatz durch die Treppe, der so auch nicht geplant war! Ich hoffe man kann das auf dem Bildern erkennen !!
Warum der Architekt nicht einfach das Fenster im EG um die entsprechenden cm nach links verschoben hat, was keinerlei räumliche Änderungen nach sich gezogen hätte, weiß ich aktuell noch nicht, da eine Antwort noch aussteht!

Architektur-Grundriss: Erdgeschoss mit Wohnzimmer, Essbereich, Küche, Büro und Garage.


Grundriss eines Hauses mit Flur, zwei Kinderzimmern, Bad, HWR und separatem Garagenbereich.


Grundriss Untergeschoss mit Flur, Treppe, Bad, HWR/HAR, Kind 1 und Kind 2.
 
G

guckuck2

Werde euch auf dem Laufenden halten was als Antwort kommt! Mit reicht nicht meinte ich die 1.000€ für einen möglichen Rückbau! Das wird etwas mehr werden… ‍♂
Die 1000€ sind ja auch nicht für einen etwaige Rückbau, der unverhältnismäßig ist, sondern das „Schmerzensgeld“ für die falsch stehende Wand. Siehe:
Ein vollständiger Rückbau ist nicht verhältnismäßig. Man einigt sich und versucht, ein Gimmick beim GU rauszuschlagen.
Änderungen nach den Bauantragsplänen hätten Tekturen bedurft.
Das ist schlicht falsch. Verschobenes Fenster, verschobene Innenwand, ist für die Baugenehmigung irrelevant.

Man möge bitte auch Berücksichtigen, dass für den Bauantrag noch gar keine Ausführungsplanung (1:50) vorliegt.

Bin gespannt was das Planungsbüro anbietet.
 
D

DaniMartinez

Die 1000€ sind ja auch nicht für einen etwaige Rückbau, der unverhältnismäßig ist, sondern das „Schmerzensgeld“ für die falsch stehende Wand. Siehe:




Das ist schlicht falsch. Verschobenes Fenster, verschobene Innenwand, ist für die Baugenehmigung irrelevant.

Man möge bitte auch Berücksichtigen, dass für den Bauantrag noch gar keine Ausführungsplanung (1:50) vorliegt.

Bin gespannt was das Planungsbüro anbietet.
Stimmt hatte ich falsch verstanden mit den 1.000€! Was wäre denn ein adäquates Angebot was man annehmen sollte, falls was angeboten wird? Hat schon jemand so etwas mitgemacht?
 
M

Myrna_Loy

Versteh ich die Zeichnung richtig, dass es in beiden Zimmern eine Tür und ein Fenster nach außen gibt und vorher in dem einen Kinderzimmer nur ein Fenster geplant war?
 
hanghaus2000

hanghaus2000

War es eine Bedingung im Vertrag gleich grosse KZ zu bekommen?

Die Aenderung hat doch architektonische Gruende. Sieht einfach Blödsinn aus wenn die Linien von den Fenstern sich oben und unten nicht treffen. ;) Das haette man aber bei den Ansichten sehen muessen. Zeig uns die doch mal vom Bauantrag.
 
Zuletzt aktualisiert 20.11.2025
Im Forum Bauland / Baurecht / Baugenehmigung / Verträge gibt es 3159 Themen mit insgesamt 42905 Beiträgen


Ähnliche Themen zu Ausführungspläne geändert ohne Absprache!!
Nr.ErgebnisBeiträge
1Schalter für Rollläden am Fenster oder an der Tür? 38
2Umbau Kinderzimmer - Fenster in zwei Fenster aufteilen? - Seite 320
3Aufteilung?! Kleines Zimmer / starke Schräge / Heizkörper - Seite 361
4Mehrkosten / Aufpreis Höhere Fenster - Seite 548
5Fenster & Türen einbau nicht normgerecht - Seite 328
6Einfamilienhaus,Zwei Varianten Grundriss vom Architekt 39
7Architekt total geschlampt - Erfahrungen? 17
8Meinungen zu Brüstungshöhe Fenster gesucht 30
9 Küchenplanung mit tiefen Fenster 43
10Grundrissfrage, Treppe, Fenster, Ausrichtung 12
11Kniestockhöhe 2 GeschossIg Fenster Traufseite - Seite 214
12Grundriss Einfamilienhaus geplant, Fenster gefallen uns - Seite 543
13Reedkontakt Alarmanlage Fenster. Wie habt ihr das gelöst? - Seite 212
14Mehrkosten falsch geplante Belüftungsanlage + Bodentiefe Fenster? - Seite 550
15Bodentiefe Fenster - wie Sofa stellen? - Seite 212
16Einbruchschutz - WK2 auf WK3 Fenster aufrüsten - Meldeanlage? 65
17Welche Sicherheitsstufe für Fenster wählen? 29
18Praxistaugliche Größe für Fenster und Rollladen 13
19Tür nach innen oder außen aufgehend? Was ist normal? - Seite 432
20Grundriss Neubau Einfamilienhaus: Fenster/Türen/Innenwände Größe/Anordnung ok? - Seite 220

Oben