ᐅ Grundriss Einfamilienhaus geplant, Fenster gefallen uns
Erstellt am: 27.10.15 17:55
W
Watcher7827.10.15 17:55Hallo zusammen,
wir haben einen überarbeiteten Entwurf von unserem Bauunternehmen bekommen. Vorlauf. erinnert sich der eine oder andere an die vorherigen Entwürfe Einfamilienhaus 140 m² + Wohnkeller. Hanggrundstück von SW nach NW. Nordgrundstück. Gefälle von SW nach NO.
Wir haben das Haus nun mit einem 2,30 Drempel geplant, dadurch bekommen die obigen Zimmer
70cm hohe Lichtbänder, sodaß die vorderen Kinderzimmer noch Sonne von SW bekommen. Uns gefällt diese Art Fenster, aber es macht im Moment die Kinderzimmermöblierung noch schwierig. Wir hatten das so in den Musterparks gesehen und meistens war dort ein schreibtisch(*) drunter. Bei den Türen zu den Kinderzimmers sollte man Vorlauf.
schauen ob man die nicht bündig zur Wand plant. Sehe im Moment keinen Mehrwert das dahinter noch Platz ist, oder? Ein Schrank passt da auch nicht hin. Ansonsten passt für uns das OG. Vorlauf. das Lichtband über der Badewanne größer so wie die Badewanne ist.
Die Ansichten müssen wir noch mal anpassen das gefällt uns noch nicht 100%. Frage ist ob man im Wohn / Essbereich lieber auf bodentiefe Fenster setzt, anstatt wie hoch halbe ? Ansonsten sind wir im EG mit dem Grundriss eigentlich zufrieden, außer halt wg. den Fenstern noch mal schauen.
Zur Erklärung, wir haben extra zur SW Seite im Whz. ein grosses Fenster geplant um nachmittags die Sonne ins Haus zu bekommen. Und nach hinten hin Esszimmer haben wir einen freien Blick, daher ist dort eine Schiebetür mit 3 m geplant
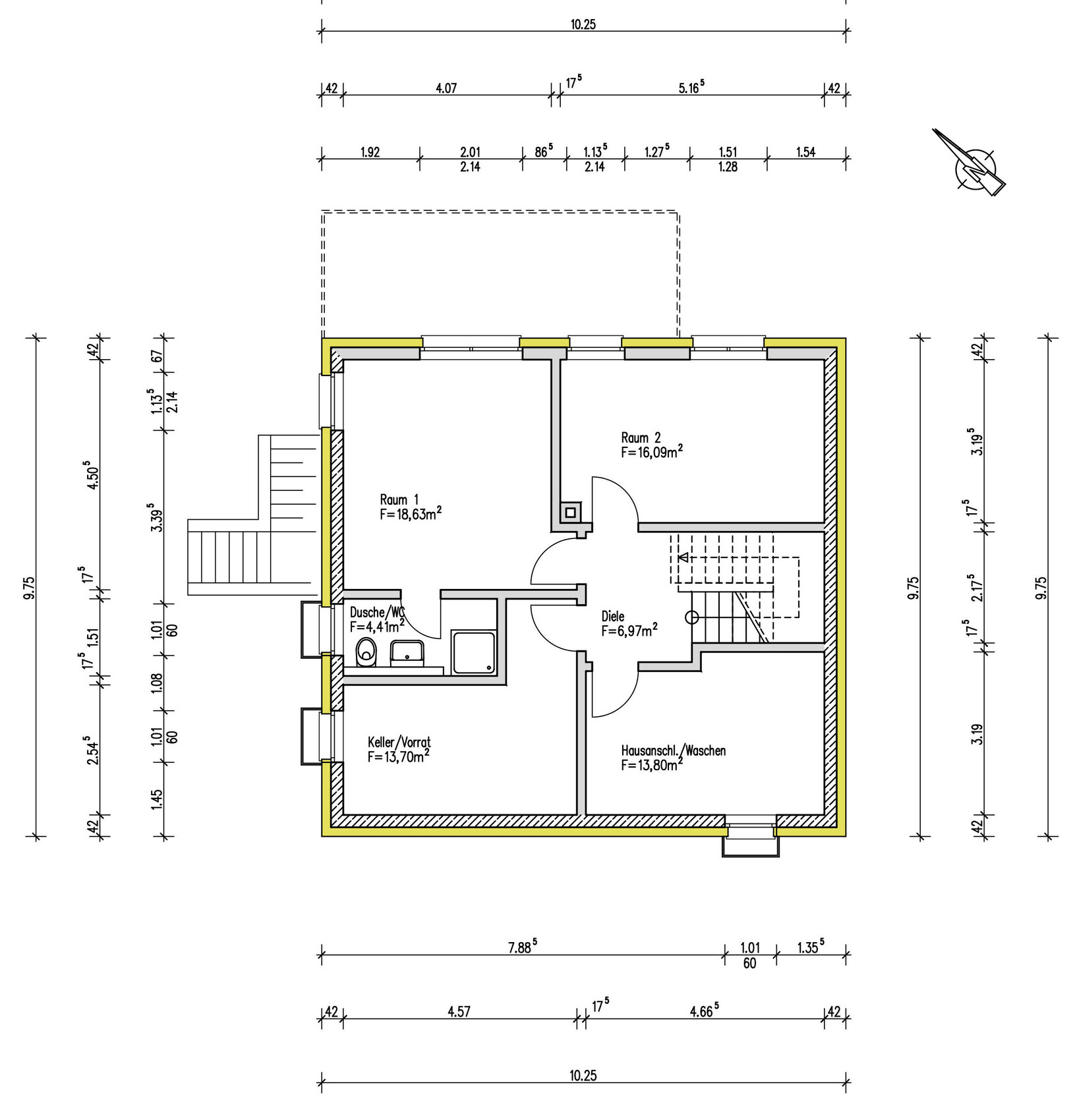
Der Keller ist ein Wohnkeller mit den vorderen Räumen als Arbeitszimmer und Gästezimmer geplant. Mit dem Bad bin ich noch nicht ganz glücklich, da durch die Tür eine schöne lange Wand nicht wirklich möblierbar ist. Aber irgendwie bekomme ich die Tür nicht in die Ecke geplant wg. der Dusche. Ansonsten müsste man noch mal schauen ob die Eingangstür zum Keller da so gut sitzt. Hintergrund für die Eingangstür ist, falls evtl. mal die Schwiegereltern einziehen und man dann die Wohnräume vom restlichen KG abtrennen möchte. Ob
das irgendwann eintrifft wissen wir nicht.
Wir würden Uns freuen, wenn ihr mal drüber schaut und wir sind für jede Anmerkung dankbar. Wir möchten die Planung nämlich endlich zu Ende bringen
Danke im voraus







wir haben einen überarbeiteten Entwurf von unserem Bauunternehmen bekommen. Vorlauf. erinnert sich der eine oder andere an die vorherigen Entwürfe Einfamilienhaus 140 m² + Wohnkeller. Hanggrundstück von SW nach NW. Nordgrundstück. Gefälle von SW nach NO.
Wir haben das Haus nun mit einem 2,30 Drempel geplant, dadurch bekommen die obigen Zimmer
70cm hohe Lichtbänder, sodaß die vorderen Kinderzimmer noch Sonne von SW bekommen. Uns gefällt diese Art Fenster, aber es macht im Moment die Kinderzimmermöblierung noch schwierig. Wir hatten das so in den Musterparks gesehen und meistens war dort ein schreibtisch(*) drunter. Bei den Türen zu den Kinderzimmers sollte man Vorlauf.
schauen ob man die nicht bündig zur Wand plant. Sehe im Moment keinen Mehrwert das dahinter noch Platz ist, oder? Ein Schrank passt da auch nicht hin. Ansonsten passt für uns das OG. Vorlauf. das Lichtband über der Badewanne größer so wie die Badewanne ist.
Die Ansichten müssen wir noch mal anpassen das gefällt uns noch nicht 100%. Frage ist ob man im Wohn / Essbereich lieber auf bodentiefe Fenster setzt, anstatt wie hoch halbe ? Ansonsten sind wir im EG mit dem Grundriss eigentlich zufrieden, außer halt wg. den Fenstern noch mal schauen.
Zur Erklärung, wir haben extra zur SW Seite im Whz. ein grosses Fenster geplant um nachmittags die Sonne ins Haus zu bekommen. Und nach hinten hin Esszimmer haben wir einen freien Blick, daher ist dort eine Schiebetür mit 3 m geplant
Der Keller ist ein Wohnkeller mit den vorderen Räumen als Arbeitszimmer und Gästezimmer geplant. Mit dem Bad bin ich noch nicht ganz glücklich, da durch die Tür eine schöne lange Wand nicht wirklich möblierbar ist. Aber irgendwie bekomme ich die Tür nicht in die Ecke geplant wg. der Dusche. Ansonsten müsste man noch mal schauen ob die Eingangstür zum Keller da so gut sitzt. Hintergrund für die Eingangstür ist, falls evtl. mal die Schwiegereltern einziehen und man dann die Wohnräume vom restlichen KG abtrennen möchte. Ob
das irgendwann eintrifft wissen wir nicht.
Wir würden Uns freuen, wenn ihr mal drüber schaut und wir sind für jede Anmerkung dankbar. Wir möchten die Planung nämlich endlich zu Ende bringen
Danke im voraus
Ich mag den Grundriss.
Zum Keller: ich würde das WC auf jeden Fall auch irgendwie vom Flur aus zugänglich machen.
Zum OG: diese schmalen Fenster im OG, welche Brüstungshöhe haben die?
Ich persönlich mag es nicht, wenn Türen direkt an der Wand liegen. Bei uns passen hinter alle Türen noch 60cm tiefe Schränke und ich finde das auch gut so. Bei der Ankleide bietet es sich bei euch ja förmlich an, da noch ne Tür zum Flur zu machen.
Zum Keller: ich würde das WC auf jeden Fall auch irgendwie vom Flur aus zugänglich machen.
Zum OG: diese schmalen Fenster im OG, welche Brüstungshöhe haben die?
Ich persönlich mag es nicht, wenn Türen direkt an der Wand liegen. Bei uns passen hinter alle Türen noch 60cm tiefe Schränke und ich finde das auch gut so. Bei der Ankleide bietet es sich bei euch ja förmlich an, da noch ne Tür zum Flur zu machen.
W
Watcher7827.10.15 19:33Hallo Manu,
danke für deine Rückmeldung. Die kleine Fenster fangen ab 85 cm ab fertigen Fußboden an, sodaß ein Schreibtisch / Bett etc. drunter passt.
Ja der Keller mit dem WC ist noch ein wenig mein Sorgenkind. Finde die Tür da nicht so schön platziert.
Wg dem Platz hinter der Tür da ist eine gute Anmerkung. Nur bei Kind 1 sind es leider nur 34 cm, ist die Frage ob es dort Sinn macht
danke für deine Rückmeldung. Die kleine Fenster fangen ab 85 cm ab fertigen Fußboden an, sodaß ein Schreibtisch / Bett etc. drunter passt.
Ja der Keller mit dem WC ist noch ein wenig mein Sorgenkind. Finde die Tür da nicht so schön platziert.
Wg dem Platz hinter der Tür da ist eine gute Anmerkung. Nur bei Kind 1 sind es leider nur 34 cm, ist die Frage ob es dort Sinn macht
Watcher78 schrieb:
Nur bei Kind 1 sind es leider nur 34 cm, ist die Frage ob es dort Sinn macht reicht für ein schönes Bücherregal.W
Watcher7827.10.15 19:45Ja top da wäre ich gar nicht darauf gekommen
Ähnliche Themen