ᐅ Grundriss Neubau Einfamilienhaus: Fenster/Türen/Innenwände Größe/Anordnung ok?
Erstellt am: 13.05.18 19:00
H
Hausherrin47H
Hausherrin4713.05.18 19:00Hallo,
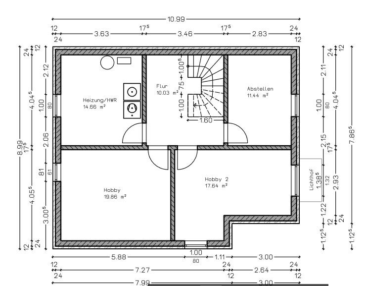
wir sind gerade dabei, unser Einfamilienhaus zu planen. Der Entwurf wurde nach unserer Vorgabe vom Architekten gemacht und eingereicht; die Gemeinde hat auch das ok gegeben bzgl. der Außenmaße und der paar Abweichungen zum Bebauungsplan. Jetzt ist der Entwurf beim Landratsamt und wir warten auf die endgültige Genehmigung. Die Außenmaße sind wie gesagt fest, innen können wir noch optimieren, und da wollte ich weitere Meinungen einholen bezüglich Fenster (Anzahl, Größe) und allgemeine Anregungen – ist etwas zu groß/ zu klein? Sind die Abstände so ok? Was sollte man berücksichtigen? Der Grundriss ist stark an die Doppelhaushälfte meiner Eltern angelehnt, da sind wir mit der Aufteilung sehr zufrieden, vielleicht sehen wir aber hier die weiteren Möglichkeiten nicht, da wir quasi „betriebsblind“ geworden sind…
Im EG und OG habe ich schonmal versucht die Möbel einzuplanen. "S" wären mögliche Steckdosenplätze. Wem was auffällt, kann sich gern auch dazu äußern 🙂
Küche wurde noch nicht geplant...
Danke schonmal für alle Ideen!
Grüße 🙂
Bebauungsplan/Einschränkungen
Größe des Grundstücks: 400 qm, geplante Fläche des Hauses 170 m2
Hang: minimal, von Nord nach Süd
Grundflächenzahl 0,53
Geschossflächenzahl
Baufenster, Baulinie und -grenze
Randbebauung
Anzahl Stellplatz
Geschossigkeit
Dachform Satteldach
Stilrichtung
Ausrichtung
Maximale Höhen/Begrenzungen
weitere Vorgaben
Anforderungen der Bauherren
Stilrichtung, Dachform, Gebäudetyp klassisch
Keller, Geschosse mit Keller, 2 Vollgeschosse
Anzahl der Personen, Alter 2 Erwachsene, Anfang 30; später wahrsch. 1-2 Kinder
Raumbedarf im EG, OG EG: WZ, Küche, Bad mit Dusche, Büro, Garderobe/Abstellmöglichkeit. OG: Schlafzimmer, Bad mit Wanne, Abstellmöglichkeit
Büro: Familiennutzung oder Homeoffice? Familiennutzung
Schlafgäste pro Jahr eher wenig; 2-4 ÜN pro Jahr?
offene oder geschlossene Architektur eher geschlossen
konservativ oder moderne Bauweise eher modern
offene Küche, Kochinsel Küche im Eck; keine Insel; evtl. Schiebetür zum WZ
Anzahl Essplätze 3-4
Kamin ja
Musik/Stereowand nein
Balkon, Dachterrasse nein
Garage, Carport Garage für zwei Autos
Nutzgarten, Treibhaus eher nicht
weitere Wünsche/Besonderheiten/Tagesablauf, gern auch Begründungen, warum dieses oder das nicht sein soll
Hausentwurf
Von wem stammt die Planung: eigene Planung, eng angelehnt an die Doppelhaushälfte von Eltern
Was gefällt besonders? Warum? EG: WC mit Dusche; Abstellraum und Büro; Ausrichtung der Terrasse; OG: große Zimmer; Abstellmöglichkeit für Bügelbrett etc.; Wanne
Was gefällt nicht? Warum?
Preisschätzung lt Architekt/Planer:
Persönliches Preislimit fürs Haus, inkl Ausstattung:
favorisierte Heiztechnik: Gas mit Solarunterstützung
Wenn Ihr verzichten müsst, auf welche Details/Ausbauten
-könnt Ihr verzichten: Kamin
-könnt Ihr nicht verzichten:
Warum ist der Entwurf so geworden, wie er jetzt ist? ZB
Standardentwurf vom Planer?
Entsprechende/Welche Wünsche wurden vom Architekten umgesetzt?
Ein Gemisch aus vielen Beispielen aus div. Magazinen...
Was macht ihn in Euren Augen besonders gut oder schlecht?
Was ist die wichtigste/grundlegende Frage zum Grundriss in 130 Zeichen zusammengefasst?
Ideen für Optimierungsvorschläge bzgl. Innengestaltung/Fenster/Türen, da könnte man noch was verändern. Z.B. kann ich den Esstisch im Moment nicht so ganz unterbringen… Allgemein Anmerkungen bzgl. Größe – welche Zimmer sind zu groß/zu klein?





wir sind gerade dabei, unser Einfamilienhaus zu planen. Der Entwurf wurde nach unserer Vorgabe vom Architekten gemacht und eingereicht; die Gemeinde hat auch das ok gegeben bzgl. der Außenmaße und der paar Abweichungen zum Bebauungsplan. Jetzt ist der Entwurf beim Landratsamt und wir warten auf die endgültige Genehmigung. Die Außenmaße sind wie gesagt fest, innen können wir noch optimieren, und da wollte ich weitere Meinungen einholen bezüglich Fenster (Anzahl, Größe) und allgemeine Anregungen – ist etwas zu groß/ zu klein? Sind die Abstände so ok? Was sollte man berücksichtigen? Der Grundriss ist stark an die Doppelhaushälfte meiner Eltern angelehnt, da sind wir mit der Aufteilung sehr zufrieden, vielleicht sehen wir aber hier die weiteren Möglichkeiten nicht, da wir quasi „betriebsblind“ geworden sind…
Im EG und OG habe ich schonmal versucht die Möbel einzuplanen. "S" wären mögliche Steckdosenplätze. Wem was auffällt, kann sich gern auch dazu äußern 🙂
Küche wurde noch nicht geplant...
Danke schonmal für alle Ideen!
Grüße 🙂
Bebauungsplan/Einschränkungen
Größe des Grundstücks: 400 qm, geplante Fläche des Hauses 170 m2
Hang: minimal, von Nord nach Süd
Grundflächenzahl 0,53
Geschossflächenzahl
Baufenster, Baulinie und -grenze
Randbebauung
Anzahl Stellplatz
Geschossigkeit
Dachform Satteldach
Stilrichtung
Ausrichtung
Maximale Höhen/Begrenzungen
weitere Vorgaben
Anforderungen der Bauherren
Stilrichtung, Dachform, Gebäudetyp klassisch
Keller, Geschosse mit Keller, 2 Vollgeschosse
Anzahl der Personen, Alter 2 Erwachsene, Anfang 30; später wahrsch. 1-2 Kinder
Raumbedarf im EG, OG EG: WZ, Küche, Bad mit Dusche, Büro, Garderobe/Abstellmöglichkeit. OG: Schlafzimmer, Bad mit Wanne, Abstellmöglichkeit
Büro: Familiennutzung oder Homeoffice? Familiennutzung
Schlafgäste pro Jahr eher wenig; 2-4 ÜN pro Jahr?
offene oder geschlossene Architektur eher geschlossen
konservativ oder moderne Bauweise eher modern
offene Küche, Kochinsel Küche im Eck; keine Insel; evtl. Schiebetür zum WZ
Anzahl Essplätze 3-4
Kamin ja
Musik/Stereowand nein
Balkon, Dachterrasse nein
Garage, Carport Garage für zwei Autos
Nutzgarten, Treibhaus eher nicht
weitere Wünsche/Besonderheiten/Tagesablauf, gern auch Begründungen, warum dieses oder das nicht sein soll
Hausentwurf
Von wem stammt die Planung: eigene Planung, eng angelehnt an die Doppelhaushälfte von Eltern
Was gefällt besonders? Warum? EG: WC mit Dusche; Abstellraum und Büro; Ausrichtung der Terrasse; OG: große Zimmer; Abstellmöglichkeit für Bügelbrett etc.; Wanne
Was gefällt nicht? Warum?
Preisschätzung lt Architekt/Planer:
Persönliches Preislimit fürs Haus, inkl Ausstattung:
favorisierte Heiztechnik: Gas mit Solarunterstützung
Wenn Ihr verzichten müsst, auf welche Details/Ausbauten
-könnt Ihr verzichten: Kamin
-könnt Ihr nicht verzichten:
Warum ist der Entwurf so geworden, wie er jetzt ist? ZB
Standardentwurf vom Planer?
Entsprechende/Welche Wünsche wurden vom Architekten umgesetzt?
Ein Gemisch aus vielen Beispielen aus div. Magazinen...
Was macht ihn in Euren Augen besonders gut oder schlecht?
Was ist die wichtigste/grundlegende Frage zum Grundriss in 130 Zeichen zusammengefasst?
Ideen für Optimierungsvorschläge bzgl. Innengestaltung/Fenster/Türen, da könnte man noch was verändern. Z.B. kann ich den Esstisch im Moment nicht so ganz unterbringen… Allgemein Anmerkungen bzgl. Größe – welche Zimmer sind zu groß/zu klein?
Hausherrin47 schrieb:
Der Entwurf wurde nach unserer Vorgabe vom Architekten gemacht und eingereicht; die Gemeinde hat auch das ok gegeben bzgl. der Außenmaße und der paar Abweichungen zum Bebauungsplan. Jetzt ist der Entwurf beim Landratsamt und wir warten auf die endgültige Genehmigung.Außer nichttragende Wände oder Türen bzw. Fenster zu verschieben, sehe ich dann nur noch wenig zu "retten" - aber dies auch nicht wesentlich geboten. Für Bad und Küche rechne ich hier noch mit Vorschlägen, "Fehler" habe ich keine gefunden.https://www.instagram.com/11antgmxde/
https://www.linkedin.com/company/bauen-jetzt/
ypg schrieb:
Aber ansonsten ist nichts mehr zu machen. Zwar kann man ein Fenster mal um 20cm verschieben, aber nicht vergrößern (Energieeinsparverordnung) oder die Fassadengestaltung ändern, ohne einen erweiterten Bauantrag.Uns wurde gesagt, Fenster sind ohne Tektur ohne weiteres zu ändern, wenn sich damit die angegebene Effizienz nicht verändert (was in meinen Augen auch so Sinn macht)
Climbee schrieb:
Uns wurde gesagt, Fenster sind ohne Tektur ohne weiteres zu ändern, wenn sich damit die angegebene Effizienz nicht verändert (was in meinen Augen auch so Sinn macht)Eben, sag ich ja.
Ein Fenster zu vergrößern zb oder statt eines Fensters eine Terrassentür muss wieder neu berechnet werden.
Manches mag dem Bauamt egal sein, aber manches nicht für Statiker und Kfw
ypg schrieb:
Eben, sag ich ja.Jein, Du sagtest auch "oder die Fassadengestaltung ändern", und das täte auch ein nur verschobenes Fenster (ibs. wenn man ein korrespondierendes nicht mitverschiebt). Da begrüße ich die Haltung des Bauamtes, wenn die dafür keine formelle Änderung sehen wollen - das läßt die Kirche im Dorf.https://www.instagram.com/11antgmxde/
https://www.linkedin.com/company/bauen-jetzt/
Ähnliche Themen