Hallo Forum
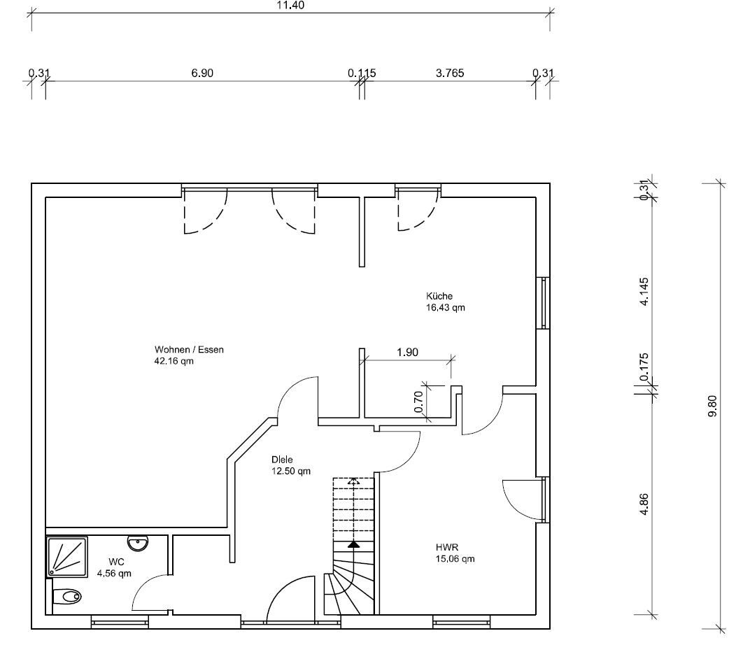
wir bauen eine Stadtvilla, 180qm nach WoFl und quälen uns grade mit dem Grundriss für das EG. Anbei die ersten beiden Skizzenentwürfe von unserem Bauträger. Beide sind nahezu identisch, bis auf das in der zweiten Variante aufgrund der größeren Küche die Tür von der Diele zu Hauswirtschaftsraum soweit unter die Treppe rutscht, dass dort der geplante Abstellbereich wegfällt.
Würdet Ihr denn komplett auf den Durchgang zum Hauswirtschaftsraum von der Diele aus verzichten?
Wie vorteilhaft oder nachteilig ist die eher quadratische Form des Wohn-/Essbereichs?




wir bauen eine Stadtvilla, 180qm nach WoFl und quälen uns grade mit dem Grundriss für das EG. Anbei die ersten beiden Skizzenentwürfe von unserem Bauträger. Beide sind nahezu identisch, bis auf das in der zweiten Variante aufgrund der größeren Küche die Tür von der Diele zu Hauswirtschaftsraum soweit unter die Treppe rutscht, dass dort der geplante Abstellbereich wegfällt.
Würdet Ihr denn komplett auf den Durchgang zum Hauswirtschaftsraum von der Diele aus verzichten?
Wie vorteilhaft oder nachteilig ist die eher quadratische Form des Wohn-/Essbereichs?
N
nordanney22.05.13 14:41Zu Deinen Fragen: Ich persönlich kann auf einen Durchgang zur Diele verzichten (es müssen doch Max. die Einkäufe ein paar Meter weiter getragen werden). Ihr habt ja auch noch einen Zugang von außen. Wenn aber im Hauswirtschaftsraum noch die Heizung aufgestellt wird, würde ich allerdings eher auf die Tür zur Küche verzichten (evtl. Geräusche von der Heizung o.ä.).
Ein quadratischer Grundriss schafft Dir natürlich bessere Möglichkeiten, Eure Möbel zu stellen. Ich stelle mir aber eher die Frage der Besonnung bei Eurem Grundriss. Lediglich eine Terrassentür? Gibts keine Fenster auf der linken Seite (Himmelsrichtung?).
Ihr könntet auch die Tür zum Wohnzimmer von der geraden Wand auf die schräge Wand Verlegen - ergibt bessere Stellmöglichkeiten.
Eure Küche ist schön groß, bietet aber durch Fenster/Tür/Nische/Öffnung zum Wohnzimmer nur begrenzte Möglichkeiten, eine Küche und/oder einen Essplatz einzurichten.
Gruß Nordanney
Ein quadratischer Grundriss schafft Dir natürlich bessere Möglichkeiten, Eure Möbel zu stellen. Ich stelle mir aber eher die Frage der Besonnung bei Eurem Grundriss. Lediglich eine Terrassentür? Gibts keine Fenster auf der linken Seite (Himmelsrichtung?).
Ihr könntet auch die Tür zum Wohnzimmer von der geraden Wand auf die schräge Wand Verlegen - ergibt bessere Stellmöglichkeiten.
Eure Küche ist schön groß, bietet aber durch Fenster/Tür/Nische/Öffnung zum Wohnzimmer nur begrenzte Möglichkeiten, eine Küche und/oder einen Essplatz einzurichten.
Gruß Nordanney
Hallo Nordanney,
danke für die Antworten. Wir sind uns da nicht ganz sicher, ob wir auf den Durchgang verzichten sollen. Den Durchgang von der Küche würden wir behalten, da der Hauswirtschaftsraum recht Groß ist und auch mit Regalen als Speisekammer genutzt werden kann.
Lass Dich nicht irritieren von dem Grundriss was die Fenster angeht. Auf der Linken Seite sind noch 3 weitere bodentiege Fenster vorgesehen nur nicht dargestellt weil wir grundsätzlich erst mal die Form bzw. Tür zum Hauswirtschaftsraum Ja/Nein entscheiden müssen.
Die Küche ist in Wahrheit sogar noch ein tickchen größer, denn die 3,765m stimmen nicht das sind exakt 4,00m. Wir haben eine große Kochinsel als zentralen Punkt, diese Insel ist 2,1m x 1,2m groß und wird Rückseitig (also zum Essbereich hin wenn man so will) als Ess"Tisch" mitgenutzt (in der Woche schnell Frühstücken, oder damit die kleine mit Mama schnacken kann wenn sie von der Schule kommt während Mama oder Papa irgendwas in der Küche zubereiten). Die Nische erhält die Technikwand mit Ofen, Kühlschrank, Dampfgarer etc, ist 180cm breit und auch 180cm hoch. Das Fenster auf der rechten Seite ist eher eine Lichtzeile, denn Sie ist sehr schmal und liegt zwischen der Zeile und den Oberschränken.
Anbei eine Skizze der Küche (ist nicht mehr die aktuellste aber stimmt schon zu 80% mit dem überein was da rein soll bis auf die Tischplatte die über Eck angedeutet ist, die gibts nicht mehr)
Ist es nicht eher vorteilhaft wenn das Wohnzimmer etwas länglicher ist damit man Wohnbereich und Essbereich räumlich besser trennen kann, einfach auch durch den Abstand?


danke für die Antworten. Wir sind uns da nicht ganz sicher, ob wir auf den Durchgang verzichten sollen. Den Durchgang von der Küche würden wir behalten, da der Hauswirtschaftsraum recht Groß ist und auch mit Regalen als Speisekammer genutzt werden kann.
Lass Dich nicht irritieren von dem Grundriss was die Fenster angeht. Auf der Linken Seite sind noch 3 weitere bodentiege Fenster vorgesehen nur nicht dargestellt weil wir grundsätzlich erst mal die Form bzw. Tür zum Hauswirtschaftsraum Ja/Nein entscheiden müssen.
Die Küche ist in Wahrheit sogar noch ein tickchen größer, denn die 3,765m stimmen nicht das sind exakt 4,00m. Wir haben eine große Kochinsel als zentralen Punkt, diese Insel ist 2,1m x 1,2m groß und wird Rückseitig (also zum Essbereich hin wenn man so will) als Ess"Tisch" mitgenutzt (in der Woche schnell Frühstücken, oder damit die kleine mit Mama schnacken kann wenn sie von der Schule kommt während Mama oder Papa irgendwas in der Küche zubereiten). Die Nische erhält die Technikwand mit Ofen, Kühlschrank, Dampfgarer etc, ist 180cm breit und auch 180cm hoch. Das Fenster auf der rechten Seite ist eher eine Lichtzeile, denn Sie ist sehr schmal und liegt zwischen der Zeile und den Oberschränken.
Anbei eine Skizze der Küche (ist nicht mehr die aktuellste aber stimmt schon zu 80% mit dem überein was da rein soll bis auf die Tischplatte die über Eck angedeutet ist, die gibts nicht mehr)
Ist es nicht eher vorteilhaft wenn das Wohnzimmer etwas länglicher ist damit man Wohnbereich und Essbereich räumlich besser trennen kann, einfach auch durch den Abstand?
N
nordanney22.05.13 15:18Hallo aytex,
vorteilhaft für Euch mag etwas anderes bedeuten, als für mich z.B.
Wir selber bauen ebenfalls eine Stadtvilla und haben uns für den angehängten Grundriss entschieden (Außenmaße Haus: 11x11m). Die im Wohnzimmer beginnende Treppe ist bedingt durch die Gestaltung des OG, das Rechteck neben "Wohnen/Essen" ist ein Durchsichtkamin um die beiden Bereich zu trennen. Vielleicht können der Zuschnitt bzw. die Proportionen Dir bei Eurer Entscheidungsfindung helfen...


vorteilhaft für Euch mag etwas anderes bedeuten, als für mich z.B.
Wir selber bauen ebenfalls eine Stadtvilla und haben uns für den angehängten Grundriss entschieden (Außenmaße Haus: 11x11m). Die im Wohnzimmer beginnende Treppe ist bedingt durch die Gestaltung des OG, das Rechteck neben "Wohnen/Essen" ist ein Durchsichtkamin um die beiden Bereich zu trennen. Vielleicht können der Zuschnitt bzw. die Proportionen Dir bei Eurer Entscheidungsfindung helfen...
nordanney schrieb:
Die im Wohnzimmer beginnende Treppe ist bedingt durch die Gestaltung des OGGefällt mir sehr gut euer Grundriss! Wie löst ihr das mit der Treppe? Ist die "offen" oder geschlossen? Habt ihr da ne Tür oder ne schöne Sichttreppe?@ Nordanney
Danke für den Grundriss, sehr großer Wohnbereich, echt klasse würde ich auch gerne so haben. Nur wußten wir von beginn an, dass wir die Treppe in der Diele haben wollten und nicht i Wohnbereich. Das Rechteck ergibt sich bei euch auch dadurch, dass Ihr die Küche "unten" habt. Wir hatten ganz am Anfang eine ähnliche Konstellation, haben die Küche dann aber doch nach "oben" zur südseite geschoben, da wir oft und gerne auf der Terrasse Zeit verbringen (wenn das Wetter es mal zulässt) und dann den direkten Zugang zur Küche haben wollten. Aber klar je langgezogener man den Wohn- Essbereich hat um so besser könnte man es trennen.
Habt Ihr einen Keller? Reichen 12-15 als Hauswirtschaftsraum wenn man den auch noch als Abstellbereich/Kammer nutzen will?
@Wastl
Wir kaufen uns einen 80 Zoll Fernseher um die Distanz zu "überbrücken" kleiner Scherz. Ich bin grade dabei unsere Möbel maßstabsgetreu auszuschneiden und anzuordnen, dann werden wir erkennen wie was wohin muss denke ich...
Deinen Einwand mit der Treppe werden wir annehmen, danke.. Wir hatten das damals so vorgeschlagen, soll ja nicht heißen dass die Architektin jeden Unsinn umsetzen muss, den wir uns haben einfallen lassen Sonst finde ich es aber nicht mal so verkehrt, dass die Treppe gleich neben dem Eingang ist, schon of gesehen in Musterhäusern...
Danke für den Grundriss, sehr großer Wohnbereich, echt klasse würde ich auch gerne so haben. Nur wußten wir von beginn an, dass wir die Treppe in der Diele haben wollten und nicht i Wohnbereich. Das Rechteck ergibt sich bei euch auch dadurch, dass Ihr die Küche "unten" habt. Wir hatten ganz am Anfang eine ähnliche Konstellation, haben die Küche dann aber doch nach "oben" zur südseite geschoben, da wir oft und gerne auf der Terrasse Zeit verbringen (wenn das Wetter es mal zulässt) und dann den direkten Zugang zur Küche haben wollten. Aber klar je langgezogener man den Wohn- Essbereich hat um so besser könnte man es trennen.
Habt Ihr einen Keller? Reichen 12-15 als Hauswirtschaftsraum wenn man den auch noch als Abstellbereich/Kammer nutzen will?
@Wastl
Wir kaufen uns einen 80 Zoll Fernseher um die Distanz zu "überbrücken" kleiner Scherz. Ich bin grade dabei unsere Möbel maßstabsgetreu auszuschneiden und anzuordnen, dann werden wir erkennen wie was wohin muss denke ich...
Deinen Einwand mit der Treppe werden wir annehmen, danke.. Wir hatten das damals so vorgeschlagen, soll ja nicht heißen dass die Architektin jeden Unsinn umsetzen muss, den wir uns haben einfallen lassen Sonst finde ich es aber nicht mal so verkehrt, dass die Treppe gleich neben dem Eingang ist, schon of gesehen in Musterhäusern...
Ähnliche Themen