W
Winterkind19.09.16 13:16Hallo ihr Häuslebauer,
irgendwie habe ich mich schon lange auf diesen Moment gefreut. Der Grundriss steht zu 90 % und ich darf ihn hier zeigen. Auf eure Meinungen bin ich wirklich gespannt. Man tüftelt ja irgendwie immer nur selber daran rum. In unserem Freundeskreis gibt es kaum Häuslebauer, daher legen wir doch Wert auf das Feedback hier im Forum. Danke vorab!
Bebauungsplan/Einschränkungen
Gefordert werden zwei Garagenstellplätze. Die andere Doppelhaushälfte steht schon.
Größe des Grundstücks
383 m²
Lage
kein Hang, ruhige Neubausiedlung
Geschossigkeit
2,5
Dachform
Satteldach
Anforderungen der Bauherren
Stilrichtung, Dachform, Gebäudetyp
offen, modern, Doppelhaushälfte
Keller, Geschosse
KG, EG, OG, DG
Anzahl der Personen, Alter
3 Personen
35, 31 Jahre mit Baby
Raumbedarf im EG, OG
EG: WZ, Esszimmer, offene Küche, Abstellraum, Gäste-WC
OG: Schlafzimmer, 2 Kinderzimmer, Bad
Schlafgäste pro Jahr
öfters über einen längeren Zeitraum, da Familie weit weg wohnt
Architektur
+ helle Räumlichkeiten mit viel Licht, Ausblick auf ein unbebautes Feld
+ moderne, schlichte Bauweise
+ offene Küche mit Kochinsel
Kamin
nein
Musik/Stereowand
nein
Balkon, Dachterrasse
nein
Garage
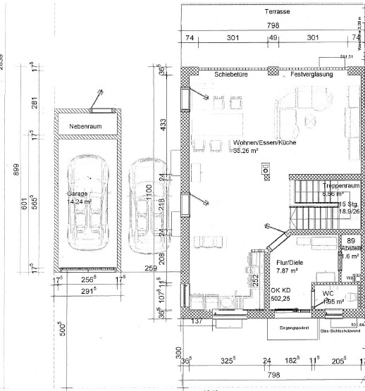
Einzelgarage mit Carport mit Nebenraum für Geräte und Fahrräder. Baubeschreibung verlangt zwei Stellplätze/Garagen
Nutzgarten, Treibhaus
nein
weitere Wünsche/Besonderheiten/Tagesablauf
KFW 55, Fußbodenheizung, Luft-Wärme-Pumpe
Kamin wird noch aus dem Grundriss entfernt.
Hausentwurf
Von wem stammt die Planung?
Bauingenieur
Was gefällt nicht?
- Garage: Verlangt werden zwei Garagen. Wir haben einen Tiguan und finden, dass die Garage zu klein ist. Eine Doppelgarage wäre zu schade, da sie den Tageslichteinfall ins Wohnzimmer verhindert. Daher entschieden wir uns für eine Garage mit Carport. Andere Ideen?
- Unklar sind die Fenster in der Küche. Wir überlegen alternativ ein Eckfenster zu machen oder es so zu belassen, aber rechts zwischen Kochinsel und Küchenzeile das Fenster bodenlang zu machen. Haken: Einblicke von Außen (Spaziergänger etc)
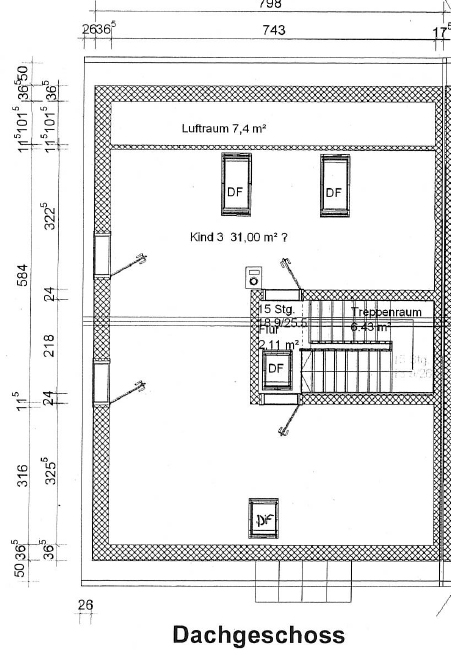
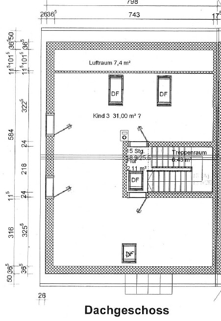
- DG: einen offenen Raum oder lieber zwei Räume: Gästezimmer und Büro?!
Anmerkung: Die Türen im OG habe ich mit meinen bescheidenen Photoshopkenntnissen etwas verändert (Winkel). Da wir dies so dem Zeichner als Änderungswunsch geben wollen. Die genauen Winkel etc. sind ungefähr gesetzt. Ich hoffe, man versteht, was gemeint ist.
Wir sind auf euer Feedback sehr gespannt
ICH DANKE EUCH! 🙂

.
irgendwie habe ich mich schon lange auf diesen Moment gefreut. Der Grundriss steht zu 90 % und ich darf ihn hier zeigen. Auf eure Meinungen bin ich wirklich gespannt. Man tüftelt ja irgendwie immer nur selber daran rum. In unserem Freundeskreis gibt es kaum Häuslebauer, daher legen wir doch Wert auf das Feedback hier im Forum. Danke vorab!
Bebauungsplan/Einschränkungen
Gefordert werden zwei Garagenstellplätze. Die andere Doppelhaushälfte steht schon.
Größe des Grundstücks
383 m²
Lage
kein Hang, ruhige Neubausiedlung
Geschossigkeit
2,5
Dachform
Satteldach
Anforderungen der Bauherren
Stilrichtung, Dachform, Gebäudetyp
offen, modern, Doppelhaushälfte
Keller, Geschosse
KG, EG, OG, DG
Anzahl der Personen, Alter
3 Personen
35, 31 Jahre mit Baby
Raumbedarf im EG, OG
EG: WZ, Esszimmer, offene Küche, Abstellraum, Gäste-WC
OG: Schlafzimmer, 2 Kinderzimmer, Bad
Schlafgäste pro Jahr
öfters über einen längeren Zeitraum, da Familie weit weg wohnt
Architektur
+ helle Räumlichkeiten mit viel Licht, Ausblick auf ein unbebautes Feld
+ moderne, schlichte Bauweise
+ offene Küche mit Kochinsel
Kamin
nein
Musik/Stereowand
nein
Balkon, Dachterrasse
nein
Garage
Einzelgarage mit Carport mit Nebenraum für Geräte und Fahrräder. Baubeschreibung verlangt zwei Stellplätze/Garagen
Nutzgarten, Treibhaus
nein
weitere Wünsche/Besonderheiten/Tagesablauf
KFW 55, Fußbodenheizung, Luft-Wärme-Pumpe
Kamin wird noch aus dem Grundriss entfernt.
Hausentwurf
Von wem stammt die Planung?
Bauingenieur
Was gefällt nicht?
- Garage: Verlangt werden zwei Garagen. Wir haben einen Tiguan und finden, dass die Garage zu klein ist. Eine Doppelgarage wäre zu schade, da sie den Tageslichteinfall ins Wohnzimmer verhindert. Daher entschieden wir uns für eine Garage mit Carport. Andere Ideen?
- Unklar sind die Fenster in der Küche. Wir überlegen alternativ ein Eckfenster zu machen oder es so zu belassen, aber rechts zwischen Kochinsel und Küchenzeile das Fenster bodenlang zu machen. Haken: Einblicke von Außen (Spaziergänger etc)
- DG: einen offenen Raum oder lieber zwei Räume: Gästezimmer und Büro?!
Anmerkung: Die Türen im OG habe ich mit meinen bescheidenen Photoshopkenntnissen etwas verändert (Winkel). Da wir dies so dem Zeichner als Änderungswunsch geben wollen. Die genauen Winkel etc. sind ungefähr gesetzt. Ich hoffe, man versteht, was gemeint ist.
Wir sind auf euer Feedback sehr gespannt
ICH DANKE EUCH! 🙂
.
Nur kurz auf die schnelle, was mir persönlich nicht gefällt:
1) Treppe derart im Raum, dass jeder, der die Treppe hoch oder runter geht, direkten Blick auf den Wohnbereich hat. Speziell mit Kindern ist das gar nichts meins. Entspannen die Eltern auf der Couch und Kinder laufen die ganze Zeit, evt. mit Freunden oder Partnern, die Treppe rauf oder runter und man hat nie seine Ruhe bzw. kann sich "halb-nackt" auf die Couch legen. Modern ist ja mehr in die Richtung Wohnbereich, der ein wenig abgetrennter ist (dafür großen offenen Küchen- Essbereich), und meiner Meinung auch deutlich funktionaler.
2) Die schrägen Wände im OG mit den Türen, die finde ich furchtbar 😉 Ich würde die Wände sogar eher gerade ziehen, dann kann an hinter der Wand vernünftig nen schrank oder schreibtisch stellen und der Flur sieht nicht derart eingeengt aus, wie ich im jetzigen Bild befürchte.
Man könnte die Wand zwischen den Zimmern sicherlich auch irgendwie derart verschieben und die Türen entsprechend platzieren, dass die Zimmer in etwa gleich groß werden.
1) Treppe derart im Raum, dass jeder, der die Treppe hoch oder runter geht, direkten Blick auf den Wohnbereich hat. Speziell mit Kindern ist das gar nichts meins. Entspannen die Eltern auf der Couch und Kinder laufen die ganze Zeit, evt. mit Freunden oder Partnern, die Treppe rauf oder runter und man hat nie seine Ruhe bzw. kann sich "halb-nackt" auf die Couch legen. Modern ist ja mehr in die Richtung Wohnbereich, der ein wenig abgetrennter ist (dafür großen offenen Küchen- Essbereich), und meiner Meinung auch deutlich funktionaler.
2) Die schrägen Wände im OG mit den Türen, die finde ich furchtbar 😉 Ich würde die Wände sogar eher gerade ziehen, dann kann an hinter der Wand vernünftig nen schrank oder schreibtisch stellen und der Flur sieht nicht derart eingeengt aus, wie ich im jetzigen Bild befürchte.
Man könnte die Wand zwischen den Zimmern sicherlich auch irgendwie derart verschieben und die Türen entsprechend platzieren, dass die Zimmer in etwa gleich groß werden.
mir gefällt die Treppe im Wohnraum auch nicht. Wenn ich daran denke wie oft meine Kinder die Treppe laut herunterlaufen um in die Küche zu gehen, dann kann man so wirklich nicht auf dem sofa entspannend sitzen. Was soll mit dem leeren Platz zwischen Küche und Essplatz angefangen werden? Die Fenster auf der linken Hausseite sind sehr klein finde ich.
Viele Grüße
Sabine
Viele Grüße
Sabine
W
Winterkind19.09.16 15:40@Tego12
Zu 1) Danke für das Feedback. Das hatten wir auch lange überlegt. Da fehlt evtl. noch eine Info zu unserem Hintergrund. Wir sind eine mit Gebärdensprache kommunizierende Familie. Dh wir brauchen den Blickkontakt. Da ist es von Vorteil, wenn ich sehen kann, wer da rauf und runter geht. Würde eine Treppe im Flur den Flur nicht noch größer machen. Das wäre mir persönlich dann schon zu groß.
Zu 2) Die Wände waren anfangs gerade. Da wäre d. Flur aber sehr schmal gewesen. Ich meine, dass es 90 cm gewesen wären. Also der Abstand zwischen der Tür und der gegenüberliegenden Treppe. Daher die Idee (im Musterhaus entdeckt), die beiden Türen um 45 Grad nach innen zu drehen, um einen kleinen Raum im Flur zu schaffen. Wir haben schon alle möglichen Varianten durch, die Wände lassen sich leider nicht so verschieben, um d. Flur breiter zu machen. Es sei denn, wir haben eine Möglichkeit übersehen.
@Curly
Meine Antwort zur Treppe ist unter 1) zu sehen 🙂
Der leere Platz ist gerade nur leer, weil der Zeichner die Möbel nach Belieben eingezeichnet hat. In dem leeren Bereich würde unser Esstisch stehen. Die TV-Wand wäre an der Wand z. Treppe und das Sofa gegenüber (am Fenster zur Terrasse). Man würde also das Sofa, wenn man vom Treppenhaus kommt, nicht sehen. Es wäre um die Ecke.
Danke wg. der Fensteranmerkung. Ich werde es mal überdenken. Der Gedanke war: je breiter die Fenster, desto weniger Fläche habe ich für z.B. Buffets, Bilder o.ä.
Tego12 schrieb:
Nur kurz auf die schnelle, was mir persönlich nicht gefällt:
1) Treppe derart im Raum, dass jeder, der die Treppe hoch oder runter geht, ...
2) Die schrägen Wände im OG mit den Türen, die finde ich furchtbar 😉 Ich würde die Wände sogar eher gerade ziehen, ...
Zu 1) Danke für das Feedback. Das hatten wir auch lange überlegt. Da fehlt evtl. noch eine Info zu unserem Hintergrund. Wir sind eine mit Gebärdensprache kommunizierende Familie. Dh wir brauchen den Blickkontakt. Da ist es von Vorteil, wenn ich sehen kann, wer da rauf und runter geht. Würde eine Treppe im Flur den Flur nicht noch größer machen. Das wäre mir persönlich dann schon zu groß.
Zu 2) Die Wände waren anfangs gerade. Da wäre d. Flur aber sehr schmal gewesen. Ich meine, dass es 90 cm gewesen wären. Also der Abstand zwischen der Tür und der gegenüberliegenden Treppe. Daher die Idee (im Musterhaus entdeckt), die beiden Türen um 45 Grad nach innen zu drehen, um einen kleinen Raum im Flur zu schaffen. Wir haben schon alle möglichen Varianten durch, die Wände lassen sich leider nicht so verschieben, um d. Flur breiter zu machen. Es sei denn, wir haben eine Möglichkeit übersehen.
@Curly
Meine Antwort zur Treppe ist unter 1) zu sehen 🙂
Der leere Platz ist gerade nur leer, weil der Zeichner die Möbel nach Belieben eingezeichnet hat. In dem leeren Bereich würde unser Esstisch stehen. Die TV-Wand wäre an der Wand z. Treppe und das Sofa gegenüber (am Fenster zur Terrasse). Man würde also das Sofa, wenn man vom Treppenhaus kommt, nicht sehen. Es wäre um die Ecke.
Danke wg. der Fensteranmerkung. Ich werde es mal überdenken. Der Gedanke war: je breiter die Fenster, desto weniger Fläche habe ich für z.B. Buffets, Bilder o.ä.
W
Winterkind19.09.16 16:12Und zum Thema gleich große Zimmer. Das Thema hatten wir auch schon und leider keine Möglichkeit gefunden es so zu ändern.
Ähnliche Themen