ᐅ Grundriss-Planung und Platzierung - Einfamilienhaus ca. 200qm auf 900qm Grundstück
Erstellt am: 04.05.21 20:49
Samantheus04.05.21 20:49
Hallo zusammen,
wir würden gerne Feedback zu unserer aktuellen Planung für ein Einfamilienhaus einholen. Hier der ausgefüllte Fragebogen.
Bebauungsplan/Einschränkungen
Größe des Grundstücks: 911m²
Hang: nein
Grundflächenzahl: 0,3
Geschossflächenzahl: 0,45
Baufenster, Baulinie und -grenze
Randbebauung: nur Garage
Anzahl Stellplatz: 4
Geschossigkeit: 2
Dachform: Satteldach
Stilrichtung:
Ausrichtung: Der Garten ist zum Südwesten, das Haus ca. 5m von der Straße entfernt, parallel zur Straße
Maximale Höhen/Begrenzungen
weitere Vorgaben
Anforderungen der Bauherren
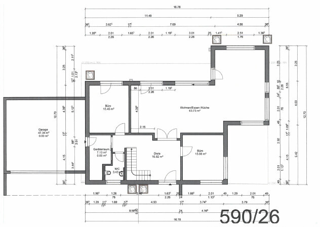
Stilrichtung, Dachform, Gebäudetyp: Einfamilienhaus, modern, Satteldach Hauptgebäude, begrüntes Flachdach Anbau und Garage
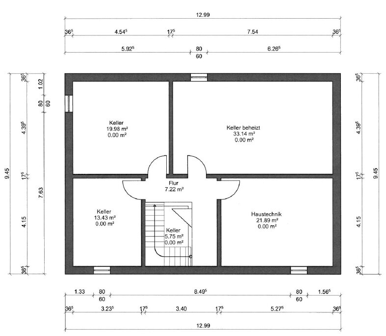
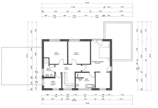
Keller, Geschosse: Keller, EG, OG
Anzahl der Personen, Alter: z.Zt. 2 Erw. (Mitte 30) 1 Kleinkind, geplant für 2 Erw. und 2-3 Kinder
Raumbedarf im EG, OG: Siehe Grundriss
Büro: Homeoffice (hauptberufliche Arbeit von zu Hause aus, 2 Büroräume erforderlich)
Schlafgäste pro Jahr:
offene oder geschlossene Architektur: offen
konservativ oder moderne Bauweise: modern
offene Küche, Kochinsel: offene Küche als U-Form mit Theke oder Küche mit Kochinsel
Anzahl Essplätze: 6
Kamin: optional, eher nicht
Musik/Stereowand: Ja
Balkon, Dachterrasse: Nein
Garage, Carport: Doppelgarage mit zwei Stellplätzen davor (wir haben aktuell 1 Auto, zukünftig ggf. 2)
Nutzgarten, Treibhaus: Nur Freizeitgarten
weitere Wünsche/Besonderheiten/Tagesablauf, gern auch Begründungen, warum dieses oder das nicht sein soll: Hauptberufliche Arbeit von zu Hause aus, darum zwei große Büros erforderlich. Grundstück ist Eckgrundstück an zwei Straßen, darum wird versucht mit der L Form des Hauses sich etwas von den Straßen abzuschotten und einen geschützten Gartenbereich zu bekommen. Falls ein drittes Kind kommt, soll ein Büro zum dritten Kinderzimmer werden. Dafür wird dann im Schlafzimmer mit einer Rigips Wand ein kleiner Bürobereich abgetrennt oder ein Kellerraum ausgebaut.
Hausentwurf
Von wem stammt die Planung: Planer eines Bauunternehmens (mit Do-it-Yourself Input)
Was gefällt besonders? Warum?: 2 gleich große Kinderzimmer, 2 Büros mit genug Platz für ganzätige Arbeit (>40 h die Woche), Großer Wohn/Ess/Kochbereich, Anbau bietet Licht und Lärmschutz gegen Straße
Was gefällt nicht? Warum?: Treppe endet an Haustür, ggf. sammelt man Dreck von draußen mit auf
Preisschätzung lt Architekt/Planer: ca. 700k für KFW 55 incl. Garage und Keller, Massivbau
Persönliches Preislimit fürs Haus, inkl Ausstattung: ca. 800k inkl Außenanlage
favorisierte Heiztechnik: Luft-Wasser-Wärmepumpe
Im Wohn/Ess/Kochbereich soll die Küche U-Form mit Theke oder eine Kochinsel ganz links sein. Anschließend dann der Essbereich und dann das Sofa. Die Stereoanlage, mit großen Standboxen, soll an die Gegenüberliegende Wand der Küche. In den Anbau soll ein Klavier und Tipi (Kinderspielzelt). Alternativ soll das Sofa in das Eck unten rechts und die Boxen dann an das Ende des Anbaus.
Die Büros sollen Platz bieten für einen großen schreibtisch (2m x 1m), Regalwand und eine kleine Sitzecke.
Wenn Ihr verzichten müsst, auf welche Details/Ausbauten
-könnt Ihr verzichten: Kamin/Ofen
-könnt Ihr nicht verzichten: Büros
Warum ist der Entwurf so geworden, wie er jetzt ist?
Kombination aus unseren Vorschlägen und Ideen vom Planer bei einer gemeinsamen Grundstücksbesichtigung
Was ist die wichtigste/grundlegende Frage zum Grundriss in 130 Zeichen zusammengefasst?
Das wichtigste in 130 Zeichen:
Fragen im Detail zum Grundriss:
Variante 1:






Variante 2:


Platzierung:

Vielen Dank im voraus!
Viele Grüße
Samantheus
wir würden gerne Feedback zu unserer aktuellen Planung für ein Einfamilienhaus einholen. Hier der ausgefüllte Fragebogen.
Bebauungsplan/Einschränkungen
Größe des Grundstücks: 911m²
Hang: nein
Grundflächenzahl: 0,3
Geschossflächenzahl: 0,45
Baufenster, Baulinie und -grenze
Randbebauung: nur Garage
Anzahl Stellplatz: 4
Geschossigkeit: 2
Dachform: Satteldach
Stilrichtung:
Ausrichtung: Der Garten ist zum Südwesten, das Haus ca. 5m von der Straße entfernt, parallel zur Straße
Maximale Höhen/Begrenzungen
weitere Vorgaben
Anforderungen der Bauherren
Stilrichtung, Dachform, Gebäudetyp: Einfamilienhaus, modern, Satteldach Hauptgebäude, begrüntes Flachdach Anbau und Garage
Keller, Geschosse: Keller, EG, OG
Anzahl der Personen, Alter: z.Zt. 2 Erw. (Mitte 30) 1 Kleinkind, geplant für 2 Erw. und 2-3 Kinder
Raumbedarf im EG, OG: Siehe Grundriss
Büro: Homeoffice (hauptberufliche Arbeit von zu Hause aus, 2 Büroräume erforderlich)
Schlafgäste pro Jahr:
offene oder geschlossene Architektur: offen
konservativ oder moderne Bauweise: modern
offene Küche, Kochinsel: offene Küche als U-Form mit Theke oder Küche mit Kochinsel
Anzahl Essplätze: 6
Kamin: optional, eher nicht
Musik/Stereowand: Ja
Balkon, Dachterrasse: Nein
Garage, Carport: Doppelgarage mit zwei Stellplätzen davor (wir haben aktuell 1 Auto, zukünftig ggf. 2)
Nutzgarten, Treibhaus: Nur Freizeitgarten
weitere Wünsche/Besonderheiten/Tagesablauf, gern auch Begründungen, warum dieses oder das nicht sein soll: Hauptberufliche Arbeit von zu Hause aus, darum zwei große Büros erforderlich. Grundstück ist Eckgrundstück an zwei Straßen, darum wird versucht mit der L Form des Hauses sich etwas von den Straßen abzuschotten und einen geschützten Gartenbereich zu bekommen. Falls ein drittes Kind kommt, soll ein Büro zum dritten Kinderzimmer werden. Dafür wird dann im Schlafzimmer mit einer Rigips Wand ein kleiner Bürobereich abgetrennt oder ein Kellerraum ausgebaut.
Hausentwurf
Von wem stammt die Planung: Planer eines Bauunternehmens (mit Do-it-Yourself Input)
Was gefällt besonders? Warum?: 2 gleich große Kinderzimmer, 2 Büros mit genug Platz für ganzätige Arbeit (>40 h die Woche), Großer Wohn/Ess/Kochbereich, Anbau bietet Licht und Lärmschutz gegen Straße
Was gefällt nicht? Warum?: Treppe endet an Haustür, ggf. sammelt man Dreck von draußen mit auf
Preisschätzung lt Architekt/Planer: ca. 700k für KFW 55 incl. Garage und Keller, Massivbau
Persönliches Preislimit fürs Haus, inkl Ausstattung: ca. 800k inkl Außenanlage
favorisierte Heiztechnik: Luft-Wasser-Wärmepumpe
Im Wohn/Ess/Kochbereich soll die Küche U-Form mit Theke oder eine Kochinsel ganz links sein. Anschließend dann der Essbereich und dann das Sofa. Die Stereoanlage, mit großen Standboxen, soll an die Gegenüberliegende Wand der Küche. In den Anbau soll ein Klavier und Tipi (Kinderspielzelt). Alternativ soll das Sofa in das Eck unten rechts und die Boxen dann an das Ende des Anbaus.
Die Büros sollen Platz bieten für einen großen schreibtisch (2m x 1m), Regalwand und eine kleine Sitzecke.
Wenn Ihr verzichten müsst, auf welche Details/Ausbauten
-könnt Ihr verzichten: Kamin/Ofen
-könnt Ihr nicht verzichten: Büros
Warum ist der Entwurf so geworden, wie er jetzt ist?
Kombination aus unseren Vorschlägen und Ideen vom Planer bei einer gemeinsamen Grundstücksbesichtigung
Was ist die wichtigste/grundlegende Frage zum Grundriss in 130 Zeichen zusammengefasst?
Das wichtigste in 130 Zeichen:
- Ist der Grundriss aus eurer Sicht gut, oder haben wir irgendwas wichtiges übersehen?
Fragen im Detail zum Grundriss:
- Wirkt der Eingangsbereich zu groß?
- Habt ihr alternative Ideen zur besseren Gestaltung der Treppe (wir sind aktuell am überlegen ob eine U Treppe mit Podest oder eine L Treppe mit Podest)? Wir haben uns eine Variante zeichnen lassen mit Eingangserker, sodass die Treppe nicht an der Tür direkt endet. Das kostet aber natürlich mehr und vielleicht ist der Eingangsbereich dann zu groß?
- Wir sind noch am Überlegen die Anzahl der Fenster im Wohn/Ess/Kochbereich zu reduzieren, was meint ihr dazu? Wir haben Angst das es aufgrund der Südausrichtung sonst zu heiss wird im Sommer (Raffstores sind geplant).
- Weitere Überlegung ist Außenrollos oder Raffstores im 1. OG?
- Bei der Einrichtung des Wohnbereichs sind wir auch noch unsicher. Einerseits wollen wir gerade 2 große Standboxen die optimal platziert sind für ein Stereodreieck, andererseits würden wir aber auch gerne vom Sofa den Blick in den Garten haben.
- Bei den Festern im OG sind wir uns noch unsicher: Macht ein bodentiefes Fenster in Kinderzimmern sinn? Oder ist das eher gefährlich? Wir haben auch ein Fenster neben dem Bett geplant (also an der selben Wand an der das Kopfende des Bettes steht. Da bin ich mir auch noch unsicher ob das nicht komisch wirkt in echt. Oder das Bett ggf. an die gegenüberliegende Wand (aber dann ist man direkt mit dem Kopf am Kinderzimmer)?
- An der unteren Seite ist eine sehr viel befahrene Straße, an der rechten Seite eine weniger viel befahrene Straße. Aktuell steht das Haus ca. 5m von der unteren Straße weg und 8m von der rechten Straße. Wenn wir es weiter nach oben schieben hätten wir etwas mehr Ruhe von der Straße, allerdings wird dann der Garten kleiner, und der "verschwendete Vorgartenplatz" größer... Was meint ihr dazu?
- Fallen euch noch kreative Ideen ein um das Haus etwas weiter nach rechts zu schieben / zu strecken? An der linken Seite ist eine Garage, sodass wir an die gerne direkt anbauen möchten.
Variante 1:
Variante 2:
Platzierung:
Vielen Dank im voraus!
Viele Grüße
Samantheus
ypg05.05.21 00:34
Ist denn ein 2-Geschosser erlaubt? Nach der Grundflächenzahl/Geschossflächenzahl Angabe würde ich eher tippen, nein.
Wieviel Qm sind es denn zusammen? Und wo ist Süden (das hab ich bestimmt überlesen)
Ich würde in Schlafräumen von bodentiefen Fenstern abraten. Sieht zwar auf Fotos stylisch aus, ist aber unbehaglich, weil den Bewohnern abends suggeriert wird, dass man unter die Gürtellinie schauen kann.
Wieviel Qm sind es denn zusammen? Und wo ist Süden (das hab ich bestimmt überlesen)
Ich würde in Schlafräumen von bodentiefen Fenstern abraten. Sieht zwar auf Fotos stylisch aus, ist aber unbehaglich, weil den Bewohnern abends suggeriert wird, dass man unter die Gürtellinie schauen kann.
hanghaus200005.05.21 07:26
ypg schrieb:
Wieviel Qm sind es denn zusammen? Und wo ist Süden (das hab ich bestimmt überlesen)
Ich würde in Schlafräumen von bodentiefen Fenstern abraten. Sieht zwar auf Fotos stylisch aus, ist aber unbehaglich, weil den Bewohnern abends suggeriert wird, dass man unter die Gürtellinie schauen kann.Hast Du leider uebersehen. Im letzten Anhang ist eine Windrose dargestellt.
Ich habe bodentiefe Fenster im Schlafzimmer. Habe keine Neurose. Es gibt ja immer noch Rollos. 😉
hanghaus200005.05.21 07:36
Ich wuerde das Ganze 1 m Richtung Strasse schieben. Der Strassenlaerm ist wegen dem 1 m der gleiche.
Sind auf der Straßenseite keine Laermschutzfenster vorgesehen?
Sind auf der Straßenseite keine Laermschutzfenster vorgesehen?
DaSch1705.05.21 08:42
700k doch wohl hoffentlich nur für das Haus inkl. der Integrierten Doppelgarage, oder?
ypg05.05.21 08:57
hanghaus2000 schrieb:
Ich habe bodentiefe Fenster im Schlafzimmer. Habe keine Neurose. Es gibt ja immer noch Rollos. 😉Damit ich nicht schauen kann oder der Nachbar mir nicht auf die Beine schauen kann? Ich hatte ein Haus, dass hatte durchgehend nur bodentiefe Fenster. Jalousien hin oder her: sie machen dunkel, und wenn nur halb runter, konnte man schön die Beine sehen, die sich unter der Bettdecke rausgelassen haben und am Bett langgegangen sind..Es wurde gefragt, und von mir gibt es genau die Empfehlung!
hanghaus2000 schrieb:
Hast Du leider uebersehen. Im letzten Anhang ist eine Windrose dargestellt.DankeDaSch17 schrieb:
700k doch wohl hoffentlich nur für das Haus inkl. der Integrierten Doppelgarage, oder?Ja, macht mich auch stutzig.Ähnliche Themen