Hallo zusammen,
nachdem ich schon eine längere Runde in einem anderen Forum hatte, hoffe ich hier einen Neuanfang starten zu können (auch bei denen die vielleicht in beiden Foren aktiv sind).
Wir haben ein Grundstück mit Haus über einen Bauträger gefunden. Die Lage (im tiefen Westen des schönen Ruhrgebiets) gefällt uns sehr gut.
Das Grundstück mit Standard-Grundriss (10x9 m, ca. 150 m²) und 9 m Garage befinden sich im Budget. Noch größer werden soll es nicht.
Es gab damals einen Termin mit dem BT und Architekten, bei welchem wir über unsere Wünsche und besondere Möbelstücke gesprochen haben, die mitgenommen werden sollen.
Wir sprachen hierbei auch über die 9 m Garage. Planmäßig ist diese für dieses Haus auf der West-Seite, damit man quasi gerade reinfahren kann. Wir kamen jedoch zur Erkenntnis , dass diese eigentlich besser auf der Ost-Seite aufgehoben wäre. So könnte man auf der West-Seite im Bereich Küche oder Wohnzimmer noch eine zusätzliche Lichtquelle positionieren. Anderseits dürfte dies aufgrund des Nachbarhauses im Westen eher eine passive Lichtquelle werden. Wäre ein Fenster auf der Ost-Seite nicht genauso effektiv wie auf der West-Seite? Auf der West-Seite steht 6 m entfernt das Haus 9 bzw. 3 m entfernt dessen Garage. Auf der Ost-Seite wäre das Fenster in etwa auf Höhe der Terrasse von Haus 11.
Da uns die Zufahrt zur Garage auf der Ost-Seite zudem recht eng vorkam, haben wir diese mit unserem Fabia Kombi (4,25 m lang) an einer Hauskante und mit Kreide aufgemalter Grundstücksgrenze nachgestellt. Die Zufahrt und Ausfahrt funktioniert, auch wenn der Nachbar auf die Grenze eine Einfriedung machen würde. Aber zu 100% sind wir von dieser Variante noch nicht überzeugt.
Ursprünglich hatten wir vor statt des angebotenen Standard-Grundrisses (10x9 m) kleiner (10x8 m) bauen zu wollen. Der Architekt hat hierfür auch etwas gezeichnet, aber das gefiel uns überhaupt nicht.
Danach sind wir auf eine Größe von 10x8,5 m gegangen und der Architekt orientierte sich am Standard-Grundriss (nur statt 14 Stufen mit 15 Stufen). Die gerade bzw. ¼ gewendelte Treppe erzeugte bei diversen Umzeichnungen immer wieder neue Baustellen. Überwiegend war der Essbereich zu eng und/oder der Flur bzw. die Diele viel zu groß.
Zwischendurch hatten wir mal kurz einen anderen Grundriss selber gezeichnet (die ¼ gewendelte Treppe hierbei um 90° gedreht) und nachzeichnen lassen, diesen jedoch aufgrund des gefühlt zu kleinen TV-Bereichs (4,15 m Tiefe) wieder verworfen. Ich muss hierbei erwähnen, dass wir in unseren Wohnungen immer einen Abstand von 4,5-6 m bei einem 42 Zoll-TV hatten und dies als angenehm empfanden.
Wir waren der Verzweiflung nahe und schauten uns Musterhäuser an. In den Musterhäusern haben wir einige tolle Ideen (u.a. Einbauschrank in der Diele, 14-15 m² große Kinderzimmer reichen aus) mitgenommen und einige Wohnzimmer mit einem TV-Bereich von ca. 3,5-3,75 m gesehen und ausprobiert. Wir empfanden diese als gar nicht mehr so klein, insbesondere mit dem Hintergrundwissen, welche Empfehlungen die TV-Anbieter für die optimale Entfernung mitgeben.
In der Hoffnung mit einem größeren Grundriss alle Probleme lösen zu können entschlossen wir uns dann auf eine Größe von 10x9 m zu gehen und sahen den Signus-Grundriss (mit 14 Stufen) von Kern-Haus und ließen diesen entsprechend (mit 15 Stufen) nachzeichnen. Im Nachhinein betrachtet ist die Grundstruktur ähnlich des Standard-Grundrisses vom BT, außer dass die Treppe und der TV-Bereich etwas anders gelöst wurden. Der Essbereich ist genauso eng und es entsteht ein zusätzlicher kaum nutzbarer Raum zwischen Diele und Essbereich.
Der Architekt hatte zwischenzeitlich mal den Standard-Grundriss mit einer Eck-Treppe gezeichnet. Wir baten ihn diesen noch einmal mit Bemaßung zu zeichnen. Leider warten wir auf diese Variante bis heute. Stattdessen haben wir nun den Signus-Grundriss mit einer etwas anderen ¼-Treppe bekommen (eine Stufe aus der gerade wurde in den Austritt verschoben).
Hier nun erst einmal die Eckdaten:
Bebauungsplan/Einschränkungen
Hausentwurf, warum ist der Entwurf so geworden, wie er jetzt ist?
Hausentwurf, warum ist der Entwurf so geworden, wie er jetzt ist?[/U]
Hausentwurf, warum ist der Entwurf so geworden, wie er jetzt ist?[/U]
Es werden ein paar mehr Zeichen .
Ich hoffe, dass ich nichts vergessen habe und wünsche uns eine angenehme Diskussion.
P.S.
Wir haben auch die Anregung bekommen das Haus statt 10 m breit eher 7-8 m breit und dafür in die Tiefe. So könnte die Garage auf die West-Seite und man könnte auf der West-Seite im Bereich Küche oder Wohnzimmer noch eine zusätzliche Lichtquelle positionieren.
Irgendwie haben wir noch keine passende Grundriss-Idee gefunden, die uns umdenken lässt. Und der Gedanke dann auf der Ost-Seite einen sehr langen Grünstreifen zu haben macht es uns gedanklich nicht einfacher.
Lageplan:










nachdem ich schon eine längere Runde in einem anderen Forum hatte, hoffe ich hier einen Neuanfang starten zu können (auch bei denen die vielleicht in beiden Foren aktiv sind).
Wir haben ein Grundstück mit Haus über einen Bauträger gefunden. Die Lage (im tiefen Westen des schönen Ruhrgebiets) gefällt uns sehr gut.
Das Grundstück mit Standard-Grundriss (10x9 m, ca. 150 m²) und 9 m Garage befinden sich im Budget. Noch größer werden soll es nicht.
Es gab damals einen Termin mit dem BT und Architekten, bei welchem wir über unsere Wünsche und besondere Möbelstücke gesprochen haben, die mitgenommen werden sollen.
Wir sprachen hierbei auch über die 9 m Garage. Planmäßig ist diese für dieses Haus auf der West-Seite, damit man quasi gerade reinfahren kann. Wir kamen jedoch zur Erkenntnis , dass diese eigentlich besser auf der Ost-Seite aufgehoben wäre. So könnte man auf der West-Seite im Bereich Küche oder Wohnzimmer noch eine zusätzliche Lichtquelle positionieren. Anderseits dürfte dies aufgrund des Nachbarhauses im Westen eher eine passive Lichtquelle werden. Wäre ein Fenster auf der Ost-Seite nicht genauso effektiv wie auf der West-Seite? Auf der West-Seite steht 6 m entfernt das Haus 9 bzw. 3 m entfernt dessen Garage. Auf der Ost-Seite wäre das Fenster in etwa auf Höhe der Terrasse von Haus 11.
Da uns die Zufahrt zur Garage auf der Ost-Seite zudem recht eng vorkam, haben wir diese mit unserem Fabia Kombi (4,25 m lang) an einer Hauskante und mit Kreide aufgemalter Grundstücksgrenze nachgestellt. Die Zufahrt und Ausfahrt funktioniert, auch wenn der Nachbar auf die Grenze eine Einfriedung machen würde. Aber zu 100% sind wir von dieser Variante noch nicht überzeugt.
Ursprünglich hatten wir vor statt des angebotenen Standard-Grundrisses (10x9 m) kleiner (10x8 m) bauen zu wollen. Der Architekt hat hierfür auch etwas gezeichnet, aber das gefiel uns überhaupt nicht.
Danach sind wir auf eine Größe von 10x8,5 m gegangen und der Architekt orientierte sich am Standard-Grundriss (nur statt 14 Stufen mit 15 Stufen). Die gerade bzw. ¼ gewendelte Treppe erzeugte bei diversen Umzeichnungen immer wieder neue Baustellen. Überwiegend war der Essbereich zu eng und/oder der Flur bzw. die Diele viel zu groß.
Zwischendurch hatten wir mal kurz einen anderen Grundriss selber gezeichnet (die ¼ gewendelte Treppe hierbei um 90° gedreht) und nachzeichnen lassen, diesen jedoch aufgrund des gefühlt zu kleinen TV-Bereichs (4,15 m Tiefe) wieder verworfen. Ich muss hierbei erwähnen, dass wir in unseren Wohnungen immer einen Abstand von 4,5-6 m bei einem 42 Zoll-TV hatten und dies als angenehm empfanden.
Wir waren der Verzweiflung nahe und schauten uns Musterhäuser an. In den Musterhäusern haben wir einige tolle Ideen (u.a. Einbauschrank in der Diele, 14-15 m² große Kinderzimmer reichen aus) mitgenommen und einige Wohnzimmer mit einem TV-Bereich von ca. 3,5-3,75 m gesehen und ausprobiert. Wir empfanden diese als gar nicht mehr so klein, insbesondere mit dem Hintergrundwissen, welche Empfehlungen die TV-Anbieter für die optimale Entfernung mitgeben.
In der Hoffnung mit einem größeren Grundriss alle Probleme lösen zu können entschlossen wir uns dann auf eine Größe von 10x9 m zu gehen und sahen den Signus-Grundriss (mit 14 Stufen) von Kern-Haus und ließen diesen entsprechend (mit 15 Stufen) nachzeichnen. Im Nachhinein betrachtet ist die Grundstruktur ähnlich des Standard-Grundrisses vom BT, außer dass die Treppe und der TV-Bereich etwas anders gelöst wurden. Der Essbereich ist genauso eng und es entsteht ein zusätzlicher kaum nutzbarer Raum zwischen Diele und Essbereich.
Der Architekt hatte zwischenzeitlich mal den Standard-Grundriss mit einer Eck-Treppe gezeichnet. Wir baten ihn diesen noch einmal mit Bemaßung zu zeichnen. Leider warten wir auf diese Variante bis heute. Stattdessen haben wir nun den Signus-Grundriss mit einer etwas anderen ¼-Treppe bekommen (eine Stufe aus der gerade wurde in den Austritt verschoben).
Hier nun erst einmal die Eckdaten:
Bebauungsplan/Einschränkungen
- Unser Grundstück und Haus soll die Nummer 10 werden.
- Grundstücksgröße: 370-380 m² (16 m breit, ca. 23,8 m tief), kein Hang
- Baufenster: 10 m breit und 13,5 m tief, jeweils 3 m Grenzabstand zu den Nachbarn und zum Privatweg (dieser wird noch bis zur Grenze von Nummer 11 verlängert)
- Ausrichtung: Süd bis Süd-Ost
- Grundflächenzahl: 0,4
- Geschossflächenzahl: 0,8
- 2 Vollgeschosse
- 6° Flachdachform
- Bauhausstil
- Stellplätze: Im Bebauungsgebiet ist der private Bedarf an Garagen, Carports und Stellplätzen im Hinblick auf die begrenzte Aufnahmefähigkeit der Erschließungsflächen auf dem Grundstück selbst zu decken. Garagen, Carports und Stellplätze sollen dabei nicht wahllos und ungeordnet auf den Grundstücken verteilt werden. Dementsprechend sind diese nur innerhalb der überbaubaren Grundstücksflächen und in den für Garagen, Carports und Stellplätzen festgelegten Flächen zulässig. Damit wird dem Eindruck einer ungeordneten Bebauung vorgebeugt und insbesondere eine Nutzung rückwärtiger Bereiche und der Grenzabstände zu der bestehenden Bebauung durch Garagen, Carports und Stellplätze verhindert.
- Freistehend
- kein Keller
- 2 Vollgeschosse
- 2 Erwachsende (35, 40) 2 Kinder (6)
- Küche, Wohn-/Esszimmer, WC, BAD, Hauswirtschaftsraum/HAR, Elternzimmer, 2 Kinderzimmer, 1 Arbeitszimmer (ausschließlich für Homeoffice), zusätzlicher Abstellraum
- Bei der Küche wäre es schön, wenn man von der Hauptarbeitsfläche bzw. Spüle in den Garten schauen kann.
- Beim Wohnzimmer wäre es schön, wenn man von der Couch aus in den Garten sehen kann.
- Der Bereich zwischen Wohnzimmer und Diele/Treppe soll möglichst per Tür geschlossen sein.
- Im Elternzimmer soll die Tür vom Bett aus eingesehen werden können, es soll kein Fenster hinter bzw. oberhalb des Bettes sein.
- Kinderzimmer ca. 15 m² groß und beide in Richtung Süden (schönerer Ausblick, mehr Licht) mit entsprechendem Fenster.
- Das Arbeitszimmer soll mind. 8 m² groß sein. Dieser Raum muss nicht zwangsläufig vom Flur aus begehbar sein, sondern kann auch ein Nebenraum sein. Der Schreibtisch soll seitlich zum Fenster stehen. Zudem soll der Schreibtisch so stehen, dass dieser von der Straße aus nicht direkt eingesehen werden kann (Hintergrund: ich empfinde es als unangenehm, wenn ich mit dem Rücken zum „Publikum“ sitze). Der Raum soll so ausgerichtet sein, das dort zusätzlich ein 1,5 m breiter Kleiderschrank (Stauraum) und das ein oder andere 1 m breite Highboard (im Optimalfall 3) stehen kann.
- Ein Fenster im Flur (OG) wäre schön.
- bisher keine Schlafgäste
- eher geschlossene Architektur
- eher moderne Bauweise
- bevorzugt geschlossene Küche, (halb)-offene Küche aber auch denkbar
- 5-6 Essplätze
- kein Kamin
- TV-Wand mit 5.1-Anlage
- 2 Stellplätze (1x 9 m Garage), Garage auf die Ost-Seite?
- Nutzgarten
- kein direkter Zugang von Garage zum Hauswirtschaftsraum
- Wir können und wollen auf ein eine Dusche im Gäste-WC verzichten.
- Die 9 m Garage auf der Ost-Seite wäre sicherlich Licht-technisch der beste Ort, eine Platzierung auf der West-Seite wäre aber auch denkbar. Denkbar wäre auch eine 6 m Garage und den Anbau (für Gartenmöbel, Rasenmäher, Fahrräder, usw.) woanders hinzustellen. Da es aber auch Sinn macht vor der Garage auch noch einen Stellplatz zu haben, würde eine 6 m Garage bei einem 5,0-6 m Stellplatz quasi am Ende des Haus enden. Man würde somit nicht wirklich was gewinnen.
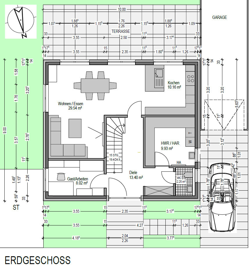
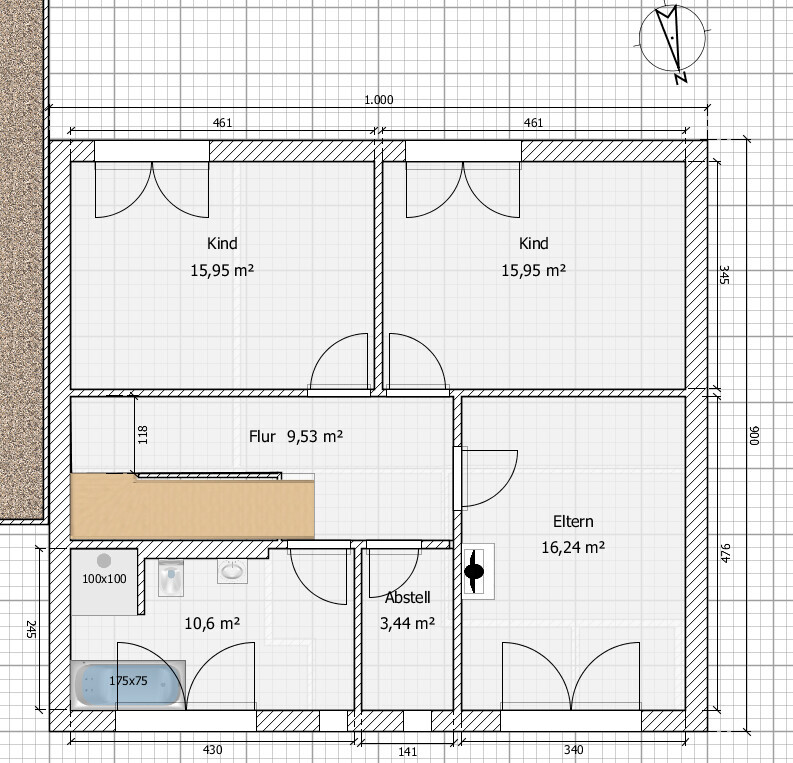
Hausentwurf, warum ist der Entwurf so geworden, wie er jetzt ist?
- Architekt des BT, der Grundriss baut auf dem Signus von Kern-Haus auf.
- Von der Grundstruktur gefällt es uns soweit.
- Die Hauseingangsseite mit der Eingangstür und den Fenstern oben drüber empfinden wir im Vergleich zum Standard-Grundriss wesentlich einladender.
- Ist die Eingangstür nicht zu groß eingezeichnet?
- Die Tür zum Wohnzimmer ist nicht optimal. Je nach Gestaltung der Küche würde diese geöffnet im Weg stehen.
- Beim Küchenfenster würde doch eine Brüstung von 1,01 m ausreichen, oder? Das linke Fenster im Essbereich zur Terrasse hin könnte vielleicht auch eher ein Bodentiefes werden. Sieht optisch von außen vielleicht nicht ganz symmetrisch aus, aber von innen wäre es im Essbereich gleich.
- Durch die ¼-Treppe mit einer Stufe im Austritt wurde die benötigte Fläche in der Diele dem TV-Bereich weggenommen. Ist der TV-Bereich noch groß genug?
- Durch die ¼-Treppe mit einer Stufe im Austritt ist die Diele zudem recht groß. Wie könnte man diese Fläche, insbesondere unter der Treppe, besser nutzen? Auch mit einem Einbauschrank oder einem Abstellraum (von wo aus zugänglich)? Wir hatten auch schon einmal mit dem Gedanken gespielt die Treppe um 180° zu drehen und den Bereich unter der Treppe im Eingangsbereich als Garderobe (Einbauschrank) zu nutzen. Aber was macht man dann mit der Tür zum Wohnzimmer? Und schaut es aus, wenn man ins Haus kommt und man schaut direkt auf einen Schrank? Anderseits würde es sich vielleicht auch anbieten die Eingangstür mit dem Fensterelement zu tauschen.
- Beim Hauswirtschaftsraum ist eine 73,5er-Tür. Reicht dies aus oder wäre eine 85er-Tür nicht vorteilhafter?
- Beim WC würden wir die Tür vielleicht eher ins WC hinein öffnen und dort dann die Toilette und das Waschbecken tauschen.
- Die beiden Bett-Nischen in den Kinderzimmern finden wir auf den Ersten Blick nicht so optimal. Zum Einen passt hier nur ein breiteres Bett hinein und das andere Kind müsste später ein größeres Bett woanders hinstellen (wenn es nicht halb unter dem Fenster schlafen möchte), zum Anderen sieht man aus dieser Nische nicht wer ins Zimmer kommt. Vielleicht bietet sich diese tiefe Nische auch für den Zugang und ggf. auf Kopf ein Kleiderschrank an. Oder aber die Zwischenwand wird noch ein wenig nach planlinks (mittig der beiden Fenster) geschoben, so dass in beiden Kinderzimmern planmäßig ein Bett in die Nische passt und ein größeres Bett dann etwas herausragen würde.
- Der Abstellraum könnte vielleicht noch ein bisschen schmaler werden, zugunsten des Bads. Vielleicht sähe es schöner aus, wenn man auch hier eine 85er-Tür verwendet?
- Bei der Heiztechnik läuft es wohl auf eine Fußbodenheizung mit einem Gas-Brennwertkessel mit Solarspeicher zur Warmwasserunterstützung hinaus.
Hausentwurf, warum ist der Entwurf so geworden, wie er jetzt ist?[/U]
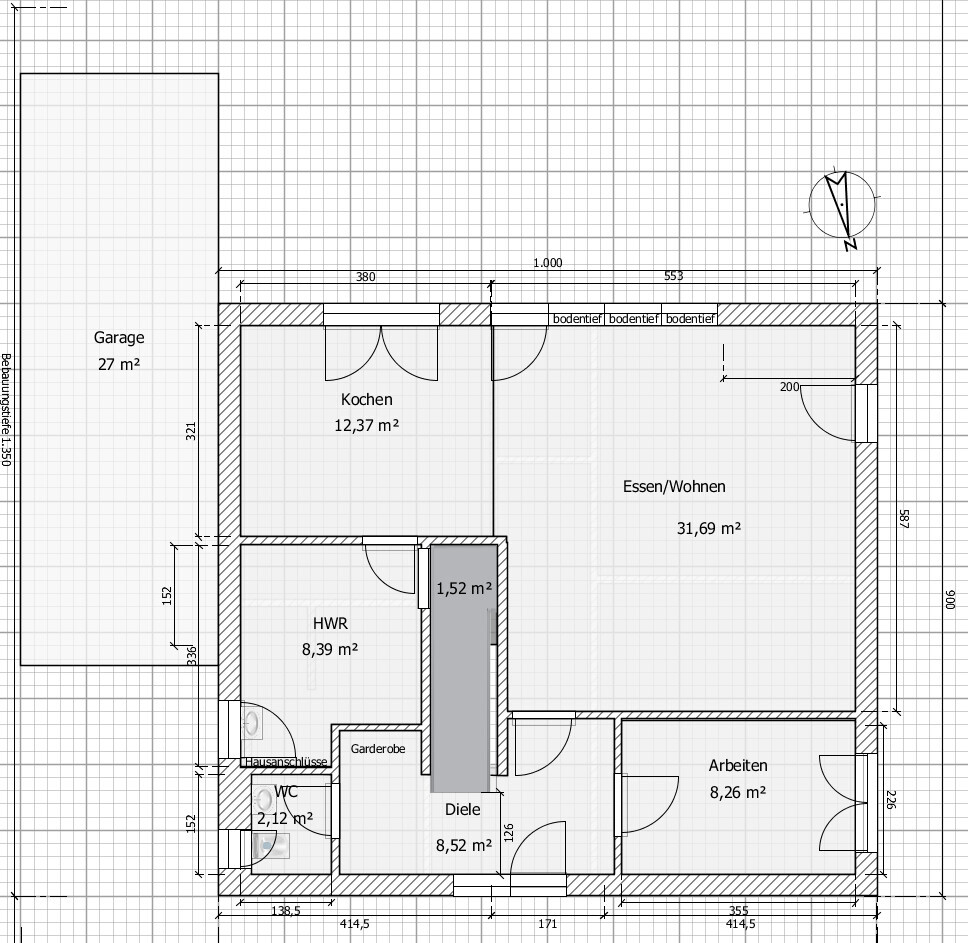
- Do-it-Yourself … da uns die Grundstruktur vom BT und Signus nicht loslässt, habe ich auch noch ein wenig gezeichnet. Der Zugang zum Hauswirtschaftsraum wurde in die Küche verlagert und in die Diele eine 1,25 m breite Garderobe als Einbauschrank eingeplant.
- Vielleicht müsste die Treppe noch ein bisschen weiter nach planlinks um den Bereich Wohnen/Essen etwas größer zu bekommen. Hierfür könnte man das WC schmaler und ggf. etwas länger machen.
- Der quadratische Raum Essen/Wohnen wirkt so, als wenn dieser später nicht optimal genutzt werden könnte. Der Bereich zwischen TV und Couch ist zudem mit 5,87 m nicht gerade nah.
- Im OG ist der Flur vielleicht noch ein wenig zu breit (bedingt durch den Abstellraum). Hier könnte man die Wand zwischen Abstellraum und dem linken Kinderzimmer etwas weiter nach planlinks verschieben. Dies würde dann aber für die Tür zum Kinderzimmer bedeuten, dass diese nicht bündig mit der Treppenbrüstung wäre, sondern etwas hinter der Wand am Treppenende verschwindet. Oder könnte man dies lösen indem man an der letzten Stufe eine Brüstung zum linken Kinderzimmer setzt (ansatzweise so wir beim Grundriss des BT)? Anderseits würde ein solch breiter Flur die Möglichkeit geben 30-40 cm schmale Sideboards zu stellen.
- Die Gestaltung von WC und Bad kann man vielleicht auch anders lösen.
- Fenster und Türen sind noch nicht fix und könnten sicherlich noch besser platziert werden.
- Der Eingangsbereich gefällt uns durch die beiden äußeren Fenster oben besser.
Hausentwurf, warum ist der Entwurf so geworden, wie er jetzt ist?[/U]
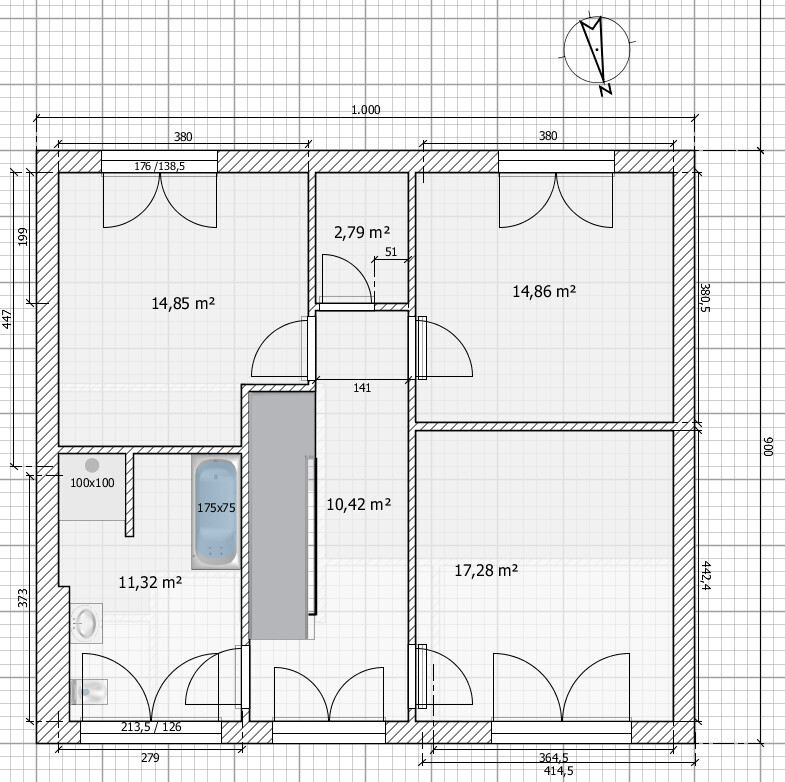
- Do-it-Yourself … Wir sahen uns noch einmal alle Grundrisse an und stolperten über den Grundriss mit der 90° gedrehten Treppe. Diesen Grundriss verlängerte ich auf 9 m Tiefe und versetze die Treppe.
- Ich finde diesen Grundriss sehr variabel, da die Mittelachse je nach Bedarf verschoben werden kann. Gleiches gilt für die Vertikale, also den Hauswirtschaftsraum und das Arbeitszimmer.
- Bei der Positionierung der Treppe finde ich gut, dass man oben hinter der Mittelachse herauskommt und so große gerade Räume zum Süden als auch auf die andere Seite bekommen kann.
- Ich habe auch überlegt, ob man eine andere Treppe verwenden könnte, aber irgendwie keinen optimalen Standort gefunden bzw. würde dies dann bedeuten, dass es oben im Flur wahrscheinlich kein Fenster geben würde.
- Die Küche könnte man vielleicht auch offen gestalten. Anderseits wäre es die von uns gewünschte geschlossene Küche. Von den Maßen her sollte es auch nicht schlauchig wirken.
- Die Diele ist vielleicht noch ein wenig zu groß. Insbesondere der Bereich vorm WC. Anderseits passt dort vielleicht noch schmales Sideboard, ein Spiegel oder die Tagesgarderobe hin.
- Die Kinderzimmer sind vielleicht ein bisschen zu groß. Man könnte die Mittelachse inkl. Treppe ca. 20 cm in Richtung Garten verschieben, aber dann würde auch der Bereich Essen/Wohnen und Kochen schmaler werden.
- Das Elternzimmer ist vielleicht ein bisschen zu schmal, wenn man planrechts das Bett und auf der gegenüberliegenden Seite noch ein Sideboard mit TV hinstellen würde?
- Ob der Treppenüberstand ausreicht, um von dieser Fläche ins Bad zu kommen, müsste man sich im Detail noch einmal ansehen.
- Die Gestaltung von WC und Bad kann man vielleicht auch anders lösen.
- Fenster und Türen sind noch nicht fix und könnten sicherlich noch besser platziert werden.
- Der Eingangsbereich gefällt uns durch die beiden äußeren Fenster oben besser. Ob man neben der Eingangstür je 2 schmale Fenster setzt oder ein größeres und dafür dann wahrscheinlich keines auf einer Linie oben drüber setzt, müsste man sich im Detail noch einmal ansehen.
Es werden ein paar mehr Zeichen .
- Ist ein Grundriss vielleicht schon so gut, dass man auf diesem weiter aufbauen kann?
- Wo würdet ihr die Garage positionieren?
- Wie würdet ihr den TV-Bereich positionieren? Die TV-Wand (jedoch hierdurch eine ca. 1,8-2 m größere Wandfläche) auf die Süd-Seite und dafür den Blick von der Couch in den Garten, oder die TV-Wand innen liegend?
- Die Kinderzimmer beide auf die Süd-Seite (Blick ins Grüne) oder eher zur West-Seite (Blick auf das Nachbarhaus)?
Ich hoffe, dass ich nichts vergessen habe und wünsche uns eine angenehme Diskussion.
P.S.
Wir haben auch die Anregung bekommen das Haus statt 10 m breit eher 7-8 m breit und dafür in die Tiefe. So könnte die Garage auf die West-Seite und man könnte auf der West-Seite im Bereich Küche oder Wohnzimmer noch eine zusätzliche Lichtquelle positionieren.
Irgendwie haben wir noch keine passende Grundriss-Idee gefunden, die uns umdenken lässt. Und der Gedanke dann auf der Ost-Seite einen sehr langen Grünstreifen zu haben macht es uns gedanklich nicht einfacher.
Lageplan:
StanSch schrieb:
nachdem ich schon eine längere Runde in einem anderen Forum hatte, hoffe ich hier einen Neuanfang starten zu können (auch bei denen die vielleicht in beiden Foren aktiv sind).Zumindest hast Du die dortigen 260 Beiträge hier schön straff zusammengefaßt Aber Vorsicht: die Toleranz für Beratungsresistenz ist hier geringer
https://www.instagram.com/11antgmxde/
https://www.linkedin.com/company/bauen-jetzt/
halmi schrieb:
11ant, danke für den Hinweis, mir kam das glei so bekannt vor.Da braucht es meinen Hinweis nicht für, der TE nennt sich ja in beiden Foren gleich. Wie heißt Du da, oder liest Du da nur still ?https://www.instagram.com/11antgmxde/
https://www.linkedin.com/company/bauen-jetzt/
Hast du in allen Grundrissen einmal maßstabsgetreu die vorhandenen bzw. gewünschten Möbeln eingezeichnet?
EG gefällt mir das erste persönlich am Besten. Die Hauswirtschaftsraum Türe kann man etwas näher an die Küche verlegen. Direkter Zugang zur Küche braucht es nicht. Lieber einen anständigen Vorratsschrank hinstellen.
Von den OG reißt mich keines vom Hocker
Irgendwie kommt das ganze mir etwas konfus vor. Nimm doch einen Grundriss, Bleistift und MM Papier. Zeichne Möbel ein, versetze eine Türe.
Du schreibst ausführlich was ins Arbeitszimmer kommt. Einzeichnen
EG gefällt mir das erste persönlich am Besten. Die Hauswirtschaftsraum Türe kann man etwas näher an die Küche verlegen. Direkter Zugang zur Küche braucht es nicht. Lieber einen anständigen Vorratsschrank hinstellen.
Von den OG reißt mich keines vom Hocker
Irgendwie kommt das ganze mir etwas konfus vor. Nimm doch einen Grundriss, Bleistift und MM Papier. Zeichne Möbel ein, versetze eine Türe.
Du schreibst ausführlich was ins Arbeitszimmer kommt. Einzeichnen
Viel zu lang ist der Thread.
Ich erreiche das zweite Mal am diesen Tag nicht das hintere Drittel.
Müßig, nur Vorgaben zu lesen. Da hat man leider gar keine Lust mehr, piep zu sagen.
Im Prinzip steht die Entscheidung doch schon fest. Sogar das Einparken ist geübt, die Sideboards stehen gedanklich auch schon.
Viel Glück!
P.s. Ein Fenster ist keine Lichtquelle. Die Sonne ist eine Lichtquelle In diesem Fall reichen Fenster.
Hab jetzt noch einige Zitate
Lampe???
Nein, weil Nachmittags/abends ist man zuhause
Habt ihr den Streifen lieber auf der Westseite statt im Osten? Bei einem Haus von 10 Meter Breite hättet Ihr zwei! Streifen minus Garage, dafür Fensterverlust. Ist gehupft wie gesprungen: entweder Streifen, also 3 Meter breite Nutzfläche (es gibt ja schlimmeres) oder keine Fenster
Ich erreiche das zweite Mal am diesen Tag nicht das hintere Drittel.
Müßig, nur Vorgaben zu lesen. Da hat man leider gar keine Lust mehr, piep zu sagen.
Im Prinzip steht die Entscheidung doch schon fest. Sogar das Einparken ist geübt, die Sideboards stehen gedanklich auch schon.
Viel Glück!
P.s. Ein Fenster ist keine Lichtquelle. Die Sonne ist eine Lichtquelle In diesem Fall reichen Fenster.
Hab jetzt noch einige Zitate
StanSch schrieb:
zusätzliche Lichtquelle positionieren. Anderseits dürfte dies aufgrund des Nachbarhauses im Westen eher eine passive Lichtquelle werden
Lampe???
StanSch schrieb:
Wäre ein Fenster auf der Ost-Seite nicht genauso effektiv wie auf der West-Seite?
Nein, weil Nachmittags/abends ist man zuhause
StanSch schrieb:
Und der Gedanke dann auf der Ost-Seite einen sehr langen Grünstreifen zu haben macht es uns gedanklich nicht einfacher.
Habt ihr den Streifen lieber auf der Westseite statt im Osten? Bei einem Haus von 10 Meter Breite hättet Ihr zwei! Streifen minus Garage, dafür Fensterverlust. Ist gehupft wie gesprungen: entweder Streifen, also 3 Meter breite Nutzfläche (es gibt ja schlimmeres) oder keine Fenster
Ähnliche Themen