C
Chrisss8314.03.18 22:19Hallo zusammen,
nun der Beitrag an richtiger Stelle...
Wir sind bereits in den Planungen und haben auch schon einige Termine hinter uns.
Es scheint aber so, als will man uns nicht wirklich zuhören was wir wollen...
Ich habe gewisse Vorgaben gemacht und dann bekommen wir Grundrisse, die nicht zu unseren Vorgaben passen.
Ich habe auch bereits zig Grundrisse um Netz angeschaut, aber entweder zu groß (Budget) oder passt nicht zur Ausrichtung...
Hier mal unsere Infos:
Bebauungsplan/Einschränkungen
Größe des Grundstücks: 625m²
Hang: ca. 2m Auf die Länge
Grundflächenzahl: 0,4
Geschossflächenzahl: keine Festsetzung
Baufenster, Baulinie und -grenze: zum Nachbargrundstück 3m
Randbebauung: Mit Nutzgebäude (Garage)
Anzahl Stellplatz: 2
Geschossigkeit: keine Festsetzung
Dachform: keine
Stilrichtung: keine
Ausrichtung: Süd/Ost
Maximale Höhen/Begrenzungen: bei einer Dachneigung von 0 – 27°: Traufhöhe Max. 6,0 m Firsthöhe Max. 8,5 m
Nach Süden kein Nachbar! Naturschutzgebiet
Anforderungen der Bauherren
Stilrichtung, Dachform, Gebäudetyp
Keller, Geschosse: Keller, zwei Vollgeschosse
Anzahl der Personen, Alter: 3 (35, 25, bald geboren)
Raumbedarf im EG, OG: ab 70m²
Büro: Familiennutzung --> Gästezimmer Doppelbett und Schrank (Vorsorge gesundheitsbedingt)
offene oder geschlossene Architektur: offen
konservativ oder moderne Bauweise: Modern
offene Küche, Kochinsel: Ja, ja
Anzahl Essplätze: 6
Kamin: ja
Musik/Stereowand: Ist die TV Wand
Balkon, Dachterrasse: Nicht nötig
Garage, Carport: Doppelgarage
Nutzgarten, Treibhaus: Garten
Weiteres:
- Eingangstür mit Seitenteil
- Treppe nicht direkt an der Tür
- Duschbad im EG
- Garderobe (um zig Schuhe und Jacken im Flur zu vermeiden)
- kein "Schlauch-Flur" (haben wir grad in der Wohnung... Dunkel und sehr eng zu zweit), kann offen wirken
- Ankleide im OG
- Elternschlafzimmer nicht neben Kinderzimmer
- Küchenwusch von Frau: U-Form, Vorderteil als Tresen
- Speisekammer nicht nötig
- kleiner Abstellraum EG wäre gut
- Eingang über Garage wäre gut
- Treppenstil frei
- Garage sollte N/O Seite
Hausentwurf
Von wem stammt die Planung:
- 2x Planer von Bauunternehmens
- 1x Architekt
Was gefällt nicht? Warum? passt nicht zu unseren Vorgaben die wir gemacht haben...
Preisschätzung lt Architekt/Planer: 350.000 - 408.000
Persönliches Preislimit fürs Haus inkl. Fußboden und Wand: 380.000
favorisierte Heiztechnik: LWL - Fußboden
Wenn Ihr verzichten müsst, auf welche Details/Ausbauten
-könnt Ihr verzichten: Kamin (wird evtl später eingebaut)
-könnt Ihr nicht verzichten: Duschbad und Gästezimmer EG
Warum ist der Entwurf so geworden, wie er jetzt ist?
Ich gehe von einem Standardentwurf vom Planer aus
Entsprechende/Welche Wünsche wurden vom Architekten umgesetzt?
nicht wirklich
Was ist die wichtigste/grundlegende Frage zum Grundriss in 130 Zeichen zusammengefasst?
Zu den Grundrissen:
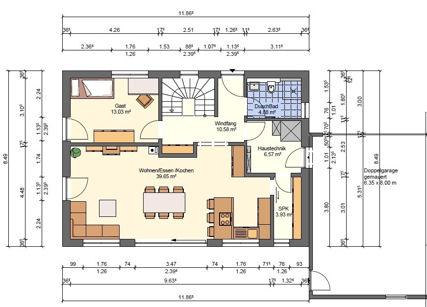
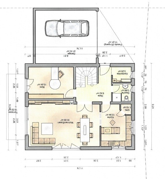
EG vom Architekt: er hat Hauswirtschaftsraum oben, trotz Info Keller; Küche falscher Platz, nach Ausrichtung; Garderobe vergessen.
EG-1-Bauträger: Hat alle vorgaben vergessen, Mini Eingangstür, Mini Flur, Hauswirtschaftsraum, wirkt so einfallslos (das schon der zweite Entwurf!)
EG-2-Bauträger: Garage (meine Meinung) auf falscher Seite, Ausrichtung Sonne nicht gut, wirkt auch so trostlos...
Ich bin der Meinung, Küche sollte auf der Sonnenseite in die Mitte des Hauses und Wohn-/Esszimmer dann so links,... Also als L... Dann würde man die Sonne voll ausnutzen, oder? Mit großer Fensterfront auf der nördlichen Hausecke dann...
Wenn ich dann versuche zu zeichnen, sieht das dank zwei linken Zeichenhände nicht so gut aus...
Leider auch nur trostlos und langweilig :-(
Man sollte sich ja paar Jahre freuen wenn man @Home kommt, oder?
Mir fehlt hier irgendwie ne Zündende Idee,...
Evtl kann uns der ein oder andere mal nen Tipp für ne Auflockerung geben.
Eure Ideen sind sicherlich besser wie meine
Danke
PS: Hoffe hab nichts vergessen







nun der Beitrag an richtiger Stelle...
Wir sind bereits in den Planungen und haben auch schon einige Termine hinter uns.
Es scheint aber so, als will man uns nicht wirklich zuhören was wir wollen...
Ich habe gewisse Vorgaben gemacht und dann bekommen wir Grundrisse, die nicht zu unseren Vorgaben passen.
Ich habe auch bereits zig Grundrisse um Netz angeschaut, aber entweder zu groß (Budget) oder passt nicht zur Ausrichtung...
Hier mal unsere Infos:
Bebauungsplan/Einschränkungen
Größe des Grundstücks: 625m²
Hang: ca. 2m Auf die Länge
Grundflächenzahl: 0,4
Geschossflächenzahl: keine Festsetzung
Baufenster, Baulinie und -grenze: zum Nachbargrundstück 3m
Randbebauung: Mit Nutzgebäude (Garage)
Anzahl Stellplatz: 2
Geschossigkeit: keine Festsetzung
Dachform: keine
Stilrichtung: keine
Ausrichtung: Süd/Ost
Maximale Höhen/Begrenzungen: bei einer Dachneigung von 0 – 27°: Traufhöhe Max. 6,0 m Firsthöhe Max. 8,5 m
Nach Süden kein Nachbar! Naturschutzgebiet
Anforderungen der Bauherren
Stilrichtung, Dachform, Gebäudetyp
Keller, Geschosse: Keller, zwei Vollgeschosse
Anzahl der Personen, Alter: 3 (35, 25, bald geboren)
Raumbedarf im EG, OG: ab 70m²
Büro: Familiennutzung --> Gästezimmer Doppelbett und Schrank (Vorsorge gesundheitsbedingt)
offene oder geschlossene Architektur: offen
konservativ oder moderne Bauweise: Modern
offene Küche, Kochinsel: Ja, ja
Anzahl Essplätze: 6
Kamin: ja
Musik/Stereowand: Ist die TV Wand
Balkon, Dachterrasse: Nicht nötig
Garage, Carport: Doppelgarage
Nutzgarten, Treibhaus: Garten
Weiteres:
- Eingangstür mit Seitenteil
- Treppe nicht direkt an der Tür
- Duschbad im EG
- Garderobe (um zig Schuhe und Jacken im Flur zu vermeiden)
- kein "Schlauch-Flur" (haben wir grad in der Wohnung... Dunkel und sehr eng zu zweit), kann offen wirken
- Ankleide im OG
- Elternschlafzimmer nicht neben Kinderzimmer
- Küchenwusch von Frau: U-Form, Vorderteil als Tresen
- Speisekammer nicht nötig
- kleiner Abstellraum EG wäre gut
- Eingang über Garage wäre gut
- Treppenstil frei
- Garage sollte N/O Seite
Hausentwurf
Von wem stammt die Planung:
- 2x Planer von Bauunternehmens
- 1x Architekt
Was gefällt nicht? Warum? passt nicht zu unseren Vorgaben die wir gemacht haben...
Preisschätzung lt Architekt/Planer: 350.000 - 408.000
Persönliches Preislimit fürs Haus inkl. Fußboden und Wand: 380.000
favorisierte Heiztechnik: LWL - Fußboden
Wenn Ihr verzichten müsst, auf welche Details/Ausbauten
-könnt Ihr verzichten: Kamin (wird evtl später eingebaut)
-könnt Ihr nicht verzichten: Duschbad und Gästezimmer EG
Warum ist der Entwurf so geworden, wie er jetzt ist?
Ich gehe von einem Standardentwurf vom Planer aus
Entsprechende/Welche Wünsche wurden vom Architekten umgesetzt?
nicht wirklich
Was ist die wichtigste/grundlegende Frage zum Grundriss in 130 Zeichen zusammengefasst?
Zu den Grundrissen:
EG vom Architekt: er hat Hauswirtschaftsraum oben, trotz Info Keller; Küche falscher Platz, nach Ausrichtung; Garderobe vergessen.
EG-1-Bauträger: Hat alle vorgaben vergessen, Mini Eingangstür, Mini Flur, Hauswirtschaftsraum, wirkt so einfallslos (das schon der zweite Entwurf!)
EG-2-Bauträger: Garage (meine Meinung) auf falscher Seite, Ausrichtung Sonne nicht gut, wirkt auch so trostlos...
Ich bin der Meinung, Küche sollte auf der Sonnenseite in die Mitte des Hauses und Wohn-/Esszimmer dann so links,... Also als L... Dann würde man die Sonne voll ausnutzen, oder? Mit großer Fensterfront auf der nördlichen Hausecke dann...
Wenn ich dann versuche zu zeichnen, sieht das dank zwei linken Zeichenhände nicht so gut aus...
Leider auch nur trostlos und langweilig :-(
Man sollte sich ja paar Jahre freuen wenn man @Home kommt, oder?
Mir fehlt hier irgendwie ne Zündende Idee,...
Evtl kann uns der ein oder andere mal nen Tipp für ne Auflockerung geben.
Eure Ideen sind sicherlich besser wie meine
Danke
PS: Hoffe hab nichts vergessen
C
Chrisss8314.03.18 23:22Die Einfamilienhaus ist abfallend von NO nach SW... quasi gleiche Ausrichtung wie das Grundstück
(rechts oben, nach links unten)
Jetzt weißt da, warum ich nach Rat frage... irgendwie reißt uns das nicht vom Hocker
und wir sind zeichnerisch nicht zu gebrauchen
(rechts oben, nach links unten)
Jetzt weißt da, warum ich nach Rat frage... irgendwie reißt uns das nicht vom Hocker
und wir sind zeichnerisch nicht zu gebrauchen
S
Sondelgeher1215.03.18 10:06Mir gefällt das vom Architekt am Besten, würde Küche und Gäste aber tauschen....
Dann sieht es bisschen mehr aus wie das vom Bauträger.....
man müsste jetzt aber deine Präferenzen kennen:
finde es gut dass der Technikraum hier weg is von allen anderen Räumen, kenne aber dein OG nicht
Willst du durch Garage ins Haus kommen direkt ja oder nein?
Dann sieht es bisschen mehr aus wie das vom Bauträger.....
man müsste jetzt aber deine Präferenzen kennen:
finde es gut dass der Technikraum hier weg is von allen anderen Räumen, kenne aber dein OG nicht
Willst du durch Garage ins Haus kommen direkt ja oder nein?
S
Sondelgeher1215.03.18 10:19Neuer Versuch, ich konnte den Beitrag oben nicht mehr ändern:
Mir gefällt das vom Architekt am Besten, würde Küche und Gäste aber tauschen wie du selber ja auch schon meintest....vor allem wenn ihr da so einen tollen Blick auf Naturschutzgebiet habt, hätte ich den lieber von der Küche aus, als von einem Gästezimmer welches ich die ersten 20 Jahre wo ich gesund bin wohl eher selten nutze...
Dann sieht es bisschen mehr aus wie das vom Bauträger.....
Man müsste jetzt aber deine Präferenzen besser kennen:
Finde es gut dass der Technikraum hier weg is von allen anderen Räumen, kenne aber dein OG nicht....habt ihr denn eine Budgetvorgabe gemacht ( das könnte der Grund sein warum der Keller weggelassen wurde, wozu sonst ein Technikraum?)
Du schreibst hab ich oben jetzt gesehen, dass du gerne durch die Garage ins Haus kommen möchtest , dann bräuchtest du somit eine Mischung aus den Vorschlägen....
Mir gefällt das vom Architekt am Besten, würde Küche und Gäste aber tauschen wie du selber ja auch schon meintest....vor allem wenn ihr da so einen tollen Blick auf Naturschutzgebiet habt, hätte ich den lieber von der Küche aus, als von einem Gästezimmer welches ich die ersten 20 Jahre wo ich gesund bin wohl eher selten nutze...
Dann sieht es bisschen mehr aus wie das vom Bauträger.....
Man müsste jetzt aber deine Präferenzen besser kennen:
Finde es gut dass der Technikraum hier weg is von allen anderen Räumen, kenne aber dein OG nicht....habt ihr denn eine Budgetvorgabe gemacht ( das könnte der Grund sein warum der Keller weggelassen wurde, wozu sonst ein Technikraum?)
Du schreibst hab ich oben jetzt gesehen, dass du gerne durch die Garage ins Haus kommen möchtest , dann bräuchtest du somit eine Mischung aus den Vorschlägen....
Ähnliche Themen