ᐅ Neubau Einfamilienhaus ca. 190m², Doppelgarage ohne Keller, Erstentwurf
Erstellt am: 20.02.20 09:55
H
haeuselbauer99H
haeuselbauer9920.02.20 09:55Hallo zusammen,
wir sind gerade beim Haus planen und würden gerne eure Meinungen zu unserem Grundriss "hören".
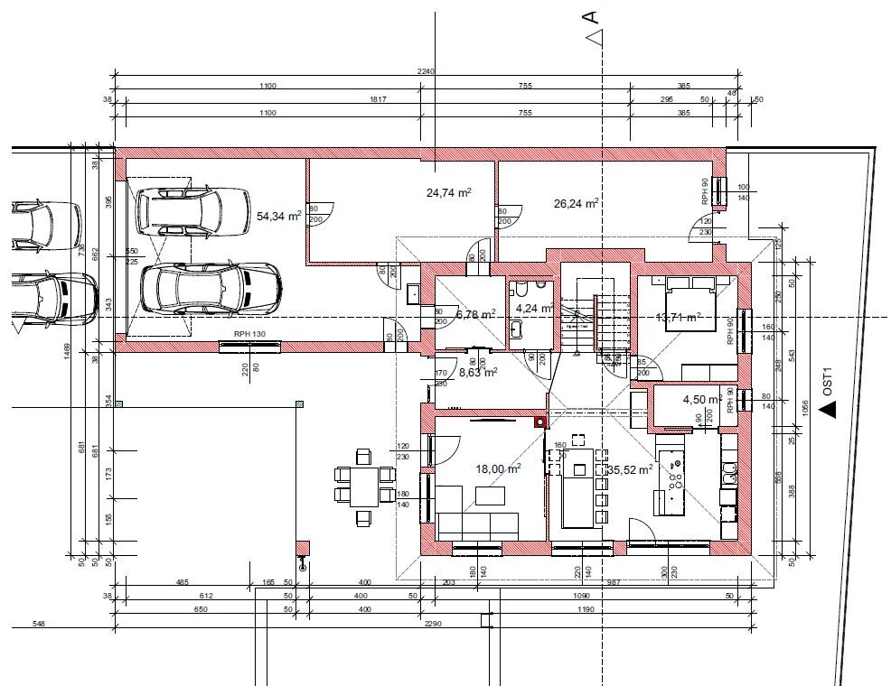
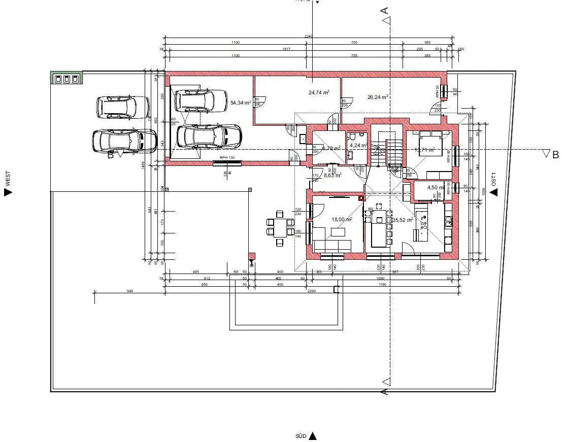
Im Anhang findet ihr einen Lageplan, eine Skizze mit den Höhenangaben (das Grundstück fällt von NO nach SW ca. 1,4m) und den jetzigen Entwurf unseres Grundrisses.
Auf der West-Seite befindet sich die Siedlungsstraße von der Zugefahren wird, diese wird wenig befahren. Nördlich und Südlich sind Nachbargrundstücke. Im Osten ist eine Straße mit etwas mehr Verkehr, jedoch nicht viel.
Das Haus ist am Grundstück nach Nord-Osten ausgerichtet, damit die Terrasse im Westen durch das Haus etwas Lärm-geschützt ist. Das Schlafzimmer im EG soll als Büro dienen und erst später als Schlafzimmer genutzt werden.
Bebauungsplan/Einschränkungen
Größe des Grundstücks: 887m²
Hang: 1,4m vom höchsten zum niedrigsten Punkt (diagonal von NO nach SW)
Grundflächenzahl 1
Geschossflächenzahl 1
Baufenster, Baulinie und -grenze: -
Randbebauung: erlaubt
Anzahl Stellplatz: 2
Geschossigkeit: zwei Vollgeschosse
Dachform: Walmdach
Stilrichtung: unbekannt
Ausrichtung: Nord-Ost, damit Garten in SW
Maximale Höhen/Begrenzungen
weitere Vorgaben
Anforderungen der Bauherren
Wir sind eine Familie mit einem (bald 2) Kindern. Die Familienplanung ist mit dem 2. Kind abgeschlossen. Wir wollen ein Einfamilienhaus mit 2 Vollgeschossen, ohne Keller, dafür Garage + 2 Nebenräume. Küche und Essbereich sollen offen und hell sein. Das Wohnzimmer soll durch eine Schiebetür abgetrennt werden können.
Stilrichtung, Dachform, Gebäudetyp: unbekannt, Walmdach,
Keller, Geschosse: kein Keller, zwei Vollgeschosse
Anzahl der Personen, Alter: 2 Erwachsene, 2 Kinder: 30, 28, 2, 0^^ Jahre alt
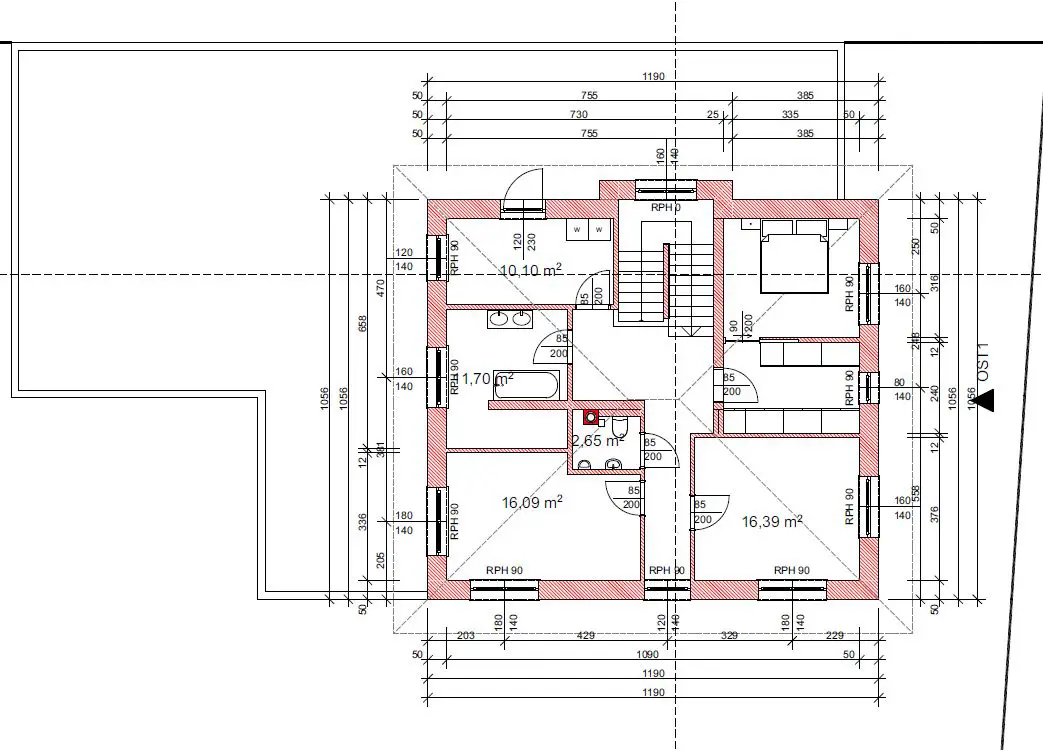
Raumbedarf im EG, OG: jeweils ca. 85 m²
Büro: Familiennutzung oder Homeoffice?: Familiennutzung
Schlafgäste pro Jahr: 4-6
offene oder geschlossene Architektur: eher offen
konservativ oder moderne Bauweise: eher modern
offene Küche, Kochinsel: Kochinsel
Anzahl Essplätze: 8
Kamin: ja
Musik/Stereowand: nein
Balkon, Dachterrasse: kein Balkon; überdachte Terrasse
Garage, Carport: Garage
Nutzgarten, Treibhaus
später soll mal ein Pool errichtet werden, der schon eingezeichnet ist
weitere Wünsche/Besonderheiten
Photovoltaikanlage
Hausentwurf
Von wem stammt die Planung:
-Planer eines Bauunternehmens
Was gefällt besonders? Warum?
Der Grundriss gefällt uns schon sehr gut. Bis auf die Aufteilung der beiden Nebenräume im Norden
Was gefällt nicht? Warum?
Nebenräume im Norden: Sollen als (Holz)Werkstatt und Abstellraum dienen. Aufteilung noch offen
Preisschätzung lt Architekt/Planer: noch nicht genannt
Persönliches Preislimit fürs Haus, inkl Ausstattung: 400 000€
favorisierte Heiztechnik: luftwärmepumpe
Wenn Ihr verzichten müsst, auf welche Details/Ausbauten
-könnt Ihr verzichten:
-könnt Ihr nicht verzichten:
Nebenraum (Werkstatt), Waschküche im OG, Speiß neben Küche
Warum ist der Entwurf so geworden, wie er jetzt ist?
Individuelle Planung
Was ist die wichtigste/grundlegende Frage zum Grundriss in 130 Zeichen zusammengefasst?
Bitte um Meinungen zur Raumaufteilung und Grundrissgestaltung




wir sind gerade beim Haus planen und würden gerne eure Meinungen zu unserem Grundriss "hören".
Im Anhang findet ihr einen Lageplan, eine Skizze mit den Höhenangaben (das Grundstück fällt von NO nach SW ca. 1,4m) und den jetzigen Entwurf unseres Grundrisses.
Auf der West-Seite befindet sich die Siedlungsstraße von der Zugefahren wird, diese wird wenig befahren. Nördlich und Südlich sind Nachbargrundstücke. Im Osten ist eine Straße mit etwas mehr Verkehr, jedoch nicht viel.
Das Haus ist am Grundstück nach Nord-Osten ausgerichtet, damit die Terrasse im Westen durch das Haus etwas Lärm-geschützt ist. Das Schlafzimmer im EG soll als Büro dienen und erst später als Schlafzimmer genutzt werden.
Bebauungsplan/Einschränkungen
Größe des Grundstücks: 887m²
Hang: 1,4m vom höchsten zum niedrigsten Punkt (diagonal von NO nach SW)
Grundflächenzahl 1
Geschossflächenzahl 1
Baufenster, Baulinie und -grenze: -
Randbebauung: erlaubt
Anzahl Stellplatz: 2
Geschossigkeit: zwei Vollgeschosse
Dachform: Walmdach
Stilrichtung: unbekannt
Ausrichtung: Nord-Ost, damit Garten in SW
Maximale Höhen/Begrenzungen
weitere Vorgaben
Anforderungen der Bauherren
Wir sind eine Familie mit einem (bald 2) Kindern. Die Familienplanung ist mit dem 2. Kind abgeschlossen. Wir wollen ein Einfamilienhaus mit 2 Vollgeschossen, ohne Keller, dafür Garage + 2 Nebenräume. Küche und Essbereich sollen offen und hell sein. Das Wohnzimmer soll durch eine Schiebetür abgetrennt werden können.
Stilrichtung, Dachform, Gebäudetyp: unbekannt, Walmdach,
Keller, Geschosse: kein Keller, zwei Vollgeschosse
Anzahl der Personen, Alter: 2 Erwachsene, 2 Kinder: 30, 28, 2, 0^^ Jahre alt
Raumbedarf im EG, OG: jeweils ca. 85 m²
Büro: Familiennutzung oder Homeoffice?: Familiennutzung
Schlafgäste pro Jahr: 4-6
offene oder geschlossene Architektur: eher offen
konservativ oder moderne Bauweise: eher modern
offene Küche, Kochinsel: Kochinsel
Anzahl Essplätze: 8
Kamin: ja
Musik/Stereowand: nein
Balkon, Dachterrasse: kein Balkon; überdachte Terrasse
Garage, Carport: Garage
Nutzgarten, Treibhaus
später soll mal ein Pool errichtet werden, der schon eingezeichnet ist
weitere Wünsche/Besonderheiten
Photovoltaikanlage
Hausentwurf
Von wem stammt die Planung:
-Planer eines Bauunternehmens
Was gefällt besonders? Warum?
Der Grundriss gefällt uns schon sehr gut. Bis auf die Aufteilung der beiden Nebenräume im Norden
Was gefällt nicht? Warum?
Nebenräume im Norden: Sollen als (Holz)Werkstatt und Abstellraum dienen. Aufteilung noch offen
Preisschätzung lt Architekt/Planer: noch nicht genannt
Persönliches Preislimit fürs Haus, inkl Ausstattung: 400 000€
favorisierte Heiztechnik: luftwärmepumpe
Wenn Ihr verzichten müsst, auf welche Details/Ausbauten
-könnt Ihr verzichten:
-könnt Ihr nicht verzichten:
Nebenraum (Werkstatt), Waschküche im OG, Speiß neben Küche
Warum ist der Entwurf so geworden, wie er jetzt ist?
Individuelle Planung
Was ist die wichtigste/grundlegende Frage zum Grundriss in 130 Zeichen zusammengefasst?
Bitte um Meinungen zur Raumaufteilung und Grundrissgestaltung
Hallo!
Ein Paar Anmerkungen:
- Ich würde Küche und Wohnzimmer tauschen. Vor allem in Bezug darauf, dass das Wohnzimmer abtrennbar sein soll. Ist das in Verbindung mit der Terrasse äußerst umständlich.
Für jedes Getränk usw. muss man von der Terrasse durchs Wohnzimmer und wieder zurück.
Auch die Wege vom Einkauf zur Küche sind unnötig lang.
Durch die Terrassenüberdachung bleibt von der Abendsonne wohl auch nicht so viel über im Wohnzimmer.
- Spiesekammer finde ich wieder einmal deplatziert, aber nur meine Meinung
- Das Garderobeneck wird wohl durchtbar dunkel durch die Türe zum Flur. Ich würde das wohl offener bestalten bzw. die Abtrennung wenn dann so gestalten, dass der Eingang noch zugeordnert wird. Also quasi die Wand zwischen Garderobe und WC nach unten verlängern, dass der Flur abgetrennt ist. So hätte man eine Art Windfang. Die Abtrennung durch ne Glaswand würde sicher gut aussehen. vorausgesetzt natürlich ,wann will überhaupt so ne Abtrennung. Wir hatten anfangs eine aus Glas geplant und sind froh, diese nicht realisiert zu haben. Nen Windfang in dem Sinne benötigt es ja heutzutage in nem Neubau nicht mehr.
- Den Mini-Erker im Norden verstehe ich überhaupt nicht. Abgesehen davon, dass er einiges kosten wird, hat das Teil nicht wirklich einen Nutzen.
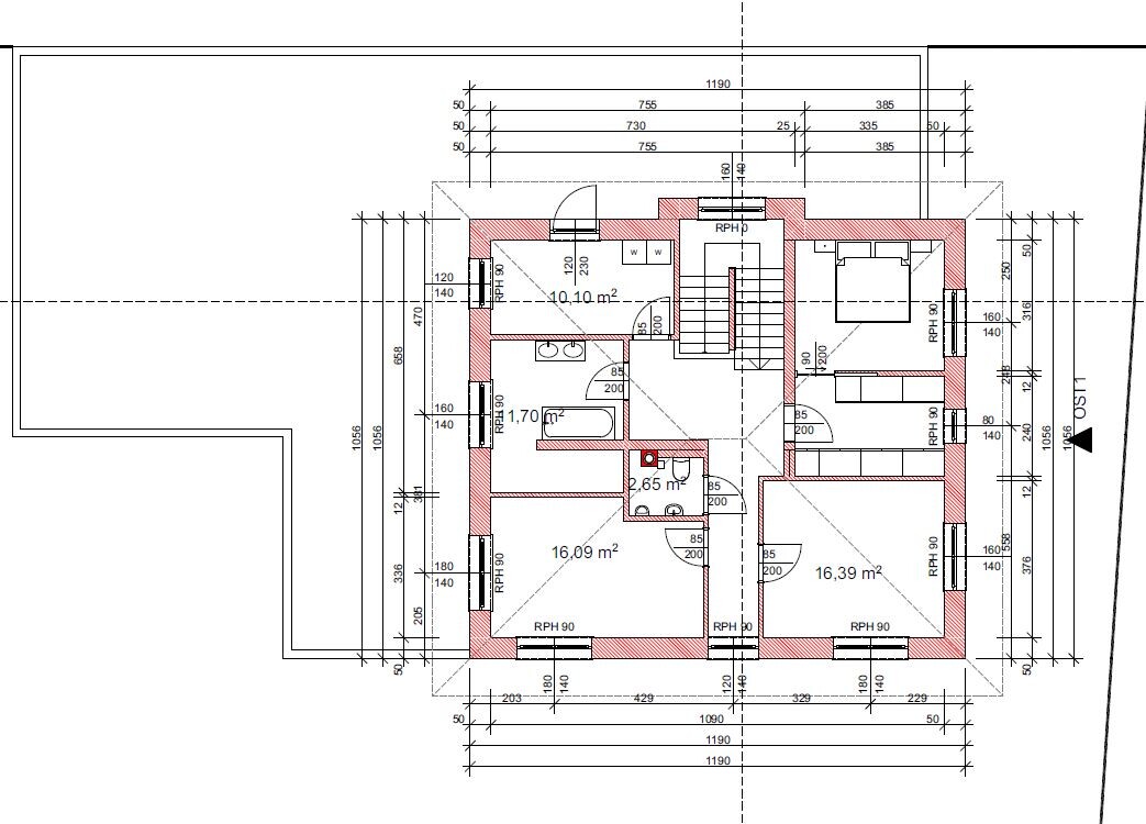
- Die westliche Aufteilung im OG will mir überhaupt nicht gefallen. Wozu dient der Flur zwischen den Kinderzimmern? Ihr schenkt da massiv viel Platz her.
Auch das innen liegende WC finde ich überhaupt nicht schön.
- Im Hauptbad wird durch die Anordnung der Gegenstände so dermaßen viel Platz verbraten, das geht besser.
- Hauswirtschaftsraum im OG finde ich klasse.
- Sollen die 400k als Gesamtbudget dienen oder als Reine Baukosten zzg. Außenanlagen, Baunebenkosten usw?
Letzteres wird sehr eng, ersteres unmöglich.
Allein die Doppelgarache samt 2 Räume dürfte Gut und Gerne 15-25% davon verschlingen.
Grüße
Ein Paar Anmerkungen:
- Ich würde Küche und Wohnzimmer tauschen. Vor allem in Bezug darauf, dass das Wohnzimmer abtrennbar sein soll. Ist das in Verbindung mit der Terrasse äußerst umständlich.
Für jedes Getränk usw. muss man von der Terrasse durchs Wohnzimmer und wieder zurück.
Auch die Wege vom Einkauf zur Küche sind unnötig lang.
Durch die Terrassenüberdachung bleibt von der Abendsonne wohl auch nicht so viel über im Wohnzimmer.
- Spiesekammer finde ich wieder einmal deplatziert, aber nur meine Meinung
- Das Garderobeneck wird wohl durchtbar dunkel durch die Türe zum Flur. Ich würde das wohl offener bestalten bzw. die Abtrennung wenn dann so gestalten, dass der Eingang noch zugeordnert wird. Also quasi die Wand zwischen Garderobe und WC nach unten verlängern, dass der Flur abgetrennt ist. So hätte man eine Art Windfang. Die Abtrennung durch ne Glaswand würde sicher gut aussehen. vorausgesetzt natürlich ,wann will überhaupt so ne Abtrennung. Wir hatten anfangs eine aus Glas geplant und sind froh, diese nicht realisiert zu haben. Nen Windfang in dem Sinne benötigt es ja heutzutage in nem Neubau nicht mehr.
- Den Mini-Erker im Norden verstehe ich überhaupt nicht. Abgesehen davon, dass er einiges kosten wird, hat das Teil nicht wirklich einen Nutzen.
- Die westliche Aufteilung im OG will mir überhaupt nicht gefallen. Wozu dient der Flur zwischen den Kinderzimmern? Ihr schenkt da massiv viel Platz her.
Auch das innen liegende WC finde ich überhaupt nicht schön.
- Im Hauptbad wird durch die Anordnung der Gegenstände so dermaßen viel Platz verbraten, das geht besser.
- Hauswirtschaftsraum im OG finde ich klasse.
- Sollen die 400k als Gesamtbudget dienen oder als Reine Baukosten zzg. Außenanlagen, Baunebenkosten usw?
Letzteres wird sehr eng, ersteres unmöglich.
Allein die Doppelgarache samt 2 Räume dürfte Gut und Gerne 15-25% davon verschlingen.
Grüße
G
Grantlhaua20.02.20 10:38Ich finde die Terrasse direkt neben der Haustüre auch nicht so berauschend. Kann man die nicht zumindest übers Eck gehen lassen? Die Toilette im OG würde ich weg lassen. Die sieht aus wie gewollt und nicht gekonnt.
Und was ist das für ein Raum im EG mit den 6,78m²?
Und was ist das für ein Raum im EG mit den 6,78m²?
Ähnliche Themen