P
pincher1121.02.21 20:28Hallo zusammen,
wir sind aktuell bei der Planung unseres „Traumhauses“. :-)
Hier erstmal ein paar Fakten dazu:
Bebauungsplan/Einschränkungen
Unser Grundstück ist ca. 700qm groß mit einem Hang nach Norden hin ausgerichtet.
An der Südseite bestehen, wie im Plan zu erkennen, große Bäume. Hinter diesem ca. 8m breiten Streifen befinden sich Felder.
Der Eingangsbereich des Hauses soll im Norden liegen. Der höher gelegene Garten im Südbereich soll vom Erdgeschoss (Ess-/Wohnbereich) aus eben zu erreichen sein - was uns sehr wichtig ist.
Wie im aktuellen Plan zu sehen, kommen wir „ebenerdig“ von der Straße/Garage durch die Haustüre in den Windfang (Zwischengeschoss zw. Keller und EG). Von dort aus muss man dann ein paar Stufen überwinden um in den Wohnbereich zu gelangen.
Ein Splitlevelhaus, was nat. eine Option für den Hang wäre, wollen wir nicht.
Anforderungen der Bauherren:
Massivhaus inc. Doppelgarage / moderne Bauweise / flaches Satteldach / zwei Wohngeschoße plus Keller
Anzahl der Personen: 2 Erwachsene + 2 Kleinkinder
Offene Architektur (von Küche zu Ess-/Wohnbereich)
Küche mit Kochinsel
Kamin
Offenheit Terrassenbereich zu Wohnraum
Hausentwurf
Die aktuelle Planung stammt aus Ideen von uns gemeinsam mit einem Architekten.
Was gefällt besonders u. warum?
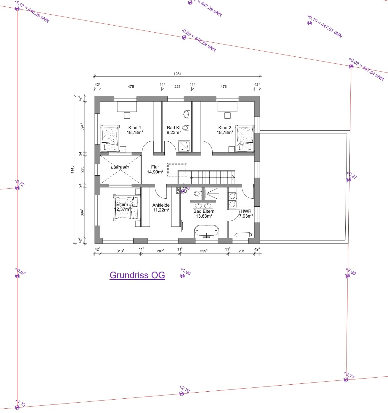
- Elternbereich im OG mit einem hellen Flur an der Außenwand, der die Zimmer Bad/Ankleide/Schlafzimmer verbindet
- Luftraum über Esstisch für ein offenes, helles Ambiente
Nach einigen Monaten haben wir einen Planungsstand erreicht, der die meisten unserer Anforderungen erfüllt und wollen nun EUER [B]FEEDBACK! ;-)
Wir sind gespannt auf Tipps und Verbesserungsmöglichkeiten zu Raumaufteilungen, Raumgrößen usw. in jeglicher Hinsicht. [/B]
VIELEN DANK!


wir sind aktuell bei der Planung unseres „Traumhauses“. :-)
Hier erstmal ein paar Fakten dazu:
Bebauungsplan/Einschränkungen
Unser Grundstück ist ca. 700qm groß mit einem Hang nach Norden hin ausgerichtet.
An der Südseite bestehen, wie im Plan zu erkennen, große Bäume. Hinter diesem ca. 8m breiten Streifen befinden sich Felder.
Der Eingangsbereich des Hauses soll im Norden liegen. Der höher gelegene Garten im Südbereich soll vom Erdgeschoss (Ess-/Wohnbereich) aus eben zu erreichen sein - was uns sehr wichtig ist.
Wie im aktuellen Plan zu sehen, kommen wir „ebenerdig“ von der Straße/Garage durch die Haustüre in den Windfang (Zwischengeschoss zw. Keller und EG). Von dort aus muss man dann ein paar Stufen überwinden um in den Wohnbereich zu gelangen.
Ein Splitlevelhaus, was nat. eine Option für den Hang wäre, wollen wir nicht.
Anforderungen der Bauherren:
Massivhaus inc. Doppelgarage / moderne Bauweise / flaches Satteldach / zwei Wohngeschoße plus Keller
Anzahl der Personen: 2 Erwachsene + 2 Kleinkinder
Offene Architektur (von Küche zu Ess-/Wohnbereich)
Küche mit Kochinsel
Kamin
Offenheit Terrassenbereich zu Wohnraum
Hausentwurf
Die aktuelle Planung stammt aus Ideen von uns gemeinsam mit einem Architekten.
Was gefällt besonders u. warum?
- Elternbereich im OG mit einem hellen Flur an der Außenwand, der die Zimmer Bad/Ankleide/Schlafzimmer verbindet
- Luftraum über Esstisch für ein offenes, helles Ambiente
Nach einigen Monaten haben wir einen Planungsstand erreicht, der die meisten unserer Anforderungen erfüllt und wollen nun EUER [B]FEEDBACK! ;-)
Wir sind gespannt auf Tipps und Verbesserungsmöglichkeiten zu Raumaufteilungen, Raumgrößen usw. in jeglicher Hinsicht. [/B]
VIELEN DANK!
pincher11 schrieb:
Wie im aktuellen Plan zu sehen, kommen wir „ebenerdig“ von der Straße/Garage durch die Haustüre in den Windfang (Zwischengeschoss zw. Keller und EG). Von dort aus muss man dann ein paar Stufen überwinden um in den Wohnbereich zu gelangen.
Ein Splitlevelhaus, was nat. eine Option für den Hang wäre, wollen wir nicht.Ich denke mal, das solltest Du einem Forum etwas näher erklären, ggf den Schnitt mit einstellen und wie das ausgeführt werden soll. Wir kennen das Haus und das Grundstück nicht. Den Keller auch nicht. Vielleicht bringt der etwas oder die Außenansichten mehr ans Licht 😉P
pincher1122.02.21 10:02P
pincher1122.02.21 10:48ypg schrieb:
Wo ist denn da die Eingangstür jetzt? Auf welchem Niveau?
Und dann mit Einliegerwohnung? Wo parken die?
Ich muss nachher noch mal schauen: irgendwie sehe ich nur Mietshaus 🙁 😳Genau aus diesem Grund wollte ich den Keller eigentlich nicht posten - um unnötige Diskussionen in der Richtung zu vermeiden. Der Keller soll mal als Einliegerwohnung nutzbar sein, bitte aber hier nicht diskutiert werden. Fokus für die Diskussionen sollen Eingangsbereich und die Aufteilung von EG+OG sein.
Die Eingangstüre (incl. Windfang) befindet sich in einer Zwischenebene zwischen Keller und EG.
Ähnliche Themen