Vorschläge und Ideen zu unseren Grundriss-Plänen erwünscht

4,50 Stern(e) 4 Votes
Zuletzt aktualisiert 06.10.2025
Sie befinden sich auf der Seite 6 der Diskussion zum Thema: Vorschläge und Ideen zu unseren Grundriss-Plänen erwünscht
>> Zum 1. Beitrag <<

C

chrisw81

Wie ist denn momentan der Stand bei dem Grundriss? Ich finde eigentlich den ersten Grundriss gleich vom Anfang sehr gut...ähnelt natürlich vielen bekannten Grundrissen, aber auch unserem, über den schon viel diskutiert wurde..nur so als Anregung poste ich ihn hier noch mal...

Grundriss eines offenen Kochen/Essen/Wohnen-Bereichs mit Esstisch in Mitte, Treppe unten.


Grundriss eines Hauses: Zentraler Flur, zwei Zimmer, Bad, Schlafen, Abstellraum, Treppe.
 
11ant

11ant

ähnelt natürlich vielen bekannten Grundrissen, aber auch unserem,
... den ich allerdings hier wegen der anderen "Aufgabenstellung" (z.B. den Wunsch nach einer Grundfläche rechteckig und auf den Punkt gegart mit 100 qm gibt es hier nicht) wenig vergleichbar finde. Grundsätzlich ist es kein Minuspunkt für einen Grundriss, wenn er vielen anderen ähnelt. Vier Personen, zwei groß und zwei klein; nachts hat man lieber die Toilette nahe und tags lieber die Küche; da sind Ähnlichkeiten nicht zufällig.
 
Chrisss83

Chrisss83

Um euch hier mal auf nen neuen Stand zu bringen,...

wie schon erwähnt, hatten wir über einen Bekannten einen Architekt gefunden der uns einfach mal zur Unterstützung Grundrisse gezeichnet hat,... Er und unserer Bekannter sind wohl gute Freunde...

Und nun wird auch über den Architekt gebaut. Die neusten Grundrisse sind erstellt und Baugesuch ist eingereicht
Elektro Planung ist grad in der Mache... Bin nur noch nicht sicher ob Loxone oder KNX.
Loxone könnte ich selber programmieren, wobei uns die Schalter nicht so zusagen
und ne Mischung ist nicht so easy...

Besten Dank an eure tatkräftige Unterstützung!!!!!
 
C

chrisw81

Zeig doch mal die neuen Grundrisse!

Wofür möchtest du KNX verwenden? Ich stehe auch vor dem Hausbau und hab mich noch gar nicht damit beschäftigt, gibt es da gute Anwendungsmöglichkeiten?
 
Chrisss83

Chrisss83

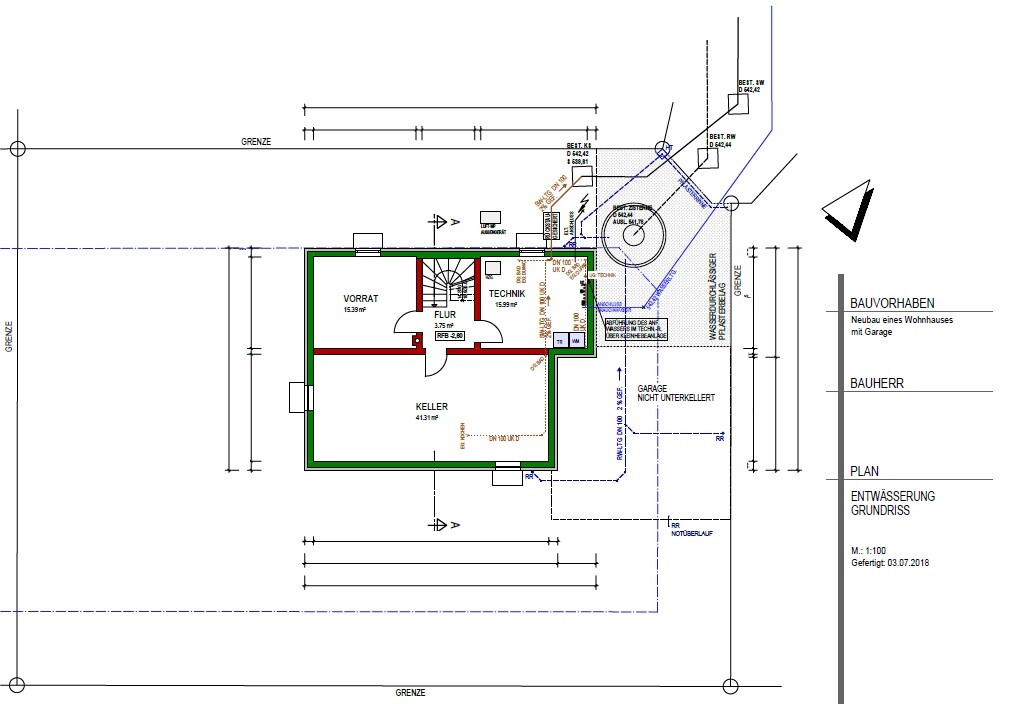
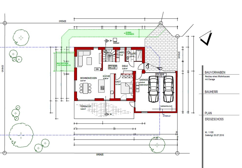
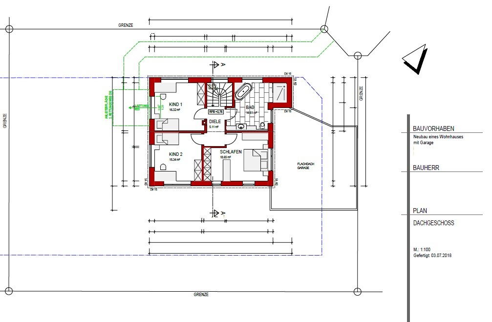
Hier mal die Grundrisse...

Grundriss Erdgeschoss eines Hauses: Wohnzimmer, Küche, Gast, Diele, Garage, Terrasse.

Grundriss Dachgeschoss eines Wohnhauses mit Schlafzimmer, zwei Kinderzimmer, Diele und Garage.

Grundriss eines Kellergeschosses mit Vorrat, Flur, Technik und Keller.

(sind auch auf unserem Blog)

Entweder KNX oder Loxone... Das sind unterschiedliche Systeme.
Wobei du in Loxone auch KNX einbinden kannst, was aber doch etwas kompliziert ist.

Smarthome hat doch schon einige Vorteile für mich, als Technik-Narr
- Automatische Beschattung
- Automatische Licht-Dimmung (je Uhrzeit oder Sonneneinstrahlung)
- Alarmsystem ist integriert
- Automatische Schaltungen von Licht wenn du im Urlaub bist
- Gute Nacht-Funktion / Außerhaus-Funktion (Abschaltung gewünschter Verbraucher)
Und,... Wenn man es clever anstellt, erheblich leichterer Vertrahtungsaufwand.
Schalter können als Baum (also einfach verzweigt) angeschlossen werden, mit einen Cat7 Kabel. kein verlegen von Lichtschalterleitungen in 3x1,5 bzw. 7x1,5 wenn du Kreuzschaltung machen willst und noch Strom dazu legen musst.

Rest gern per PM
 
Zuletzt aktualisiert 06.10.2025
Im Forum Grundrissplanung / Grundstücksplanung gibt es 2510 Themen mit insgesamt 87168 Beiträgen


Ähnliche Themen zu Vorschläge und Ideen zu unseren Grundriss-Plänen erwünscht
Nr.ErgebnisBeiträge
1KNX System - Ist dieses Produkt das richtige für mich? - Seite 21239
2KNX-Beratung / Systemintegrator im Rhein-Neckar-Kreis - Seite 1597
3Bus KNX Steuerung bei Neubau einplanen? - Seite 216
4Loxone in Eigenleistung 19
5Ist KNX Smart-Home die Zukunft? - Seite 14571
6KNX, Loxone, mygekko usw? 14
7KNX-Einstieg - Verständnisfragen - Seite 983
8KNX Erfahrungen - Installation in Einfamilienhaus? - Seite 1095
9KNX oder Funk System für Neubau 24
10KNX im Einfamilienhaus für moderne Luft-Wasser-Wärmepumpe notwendig? - Seite 5104
11Loxone Erfahrungen, Preise realistisch? 35
12KNX für Einfamilienhaus - Preisvorstellung? - Seite 634
13Energie Visualisierung der Loxone Config - Seite 217
14Einfamilienhaus Elektrik Ausführung und Kosten (Loxone) - Seite 211
15Loxone Rollladensteuerung einfache Steuerung? - Seite 226
16Smarthome KNX Automatisierung anhand des Grundriss möglich? 81
17KNX vom Elektriker ohne Programmierung - Seite 567
18KNX Hausautomation Erfahrungen – Welche Alternativen? 31
19Elektro-Angebot mit KNX - Erfahrungen? - Seite 599
20KNX nur vorsehen, aber wie? Welche Rollladenmotoren? - Seite 245

Oben