Verbesserungsvorschläge Grundriss Haus im Grünen

4,00 Stern(e) 11 Votes
Zuletzt aktualisiert 10.10.2025
Sie befinden sich auf der Seite 7 der Diskussion zum Thema: Verbesserungsvorschläge Grundriss Haus im Grünen
>> Zum 1. Beitrag <<

kaho674

kaho674

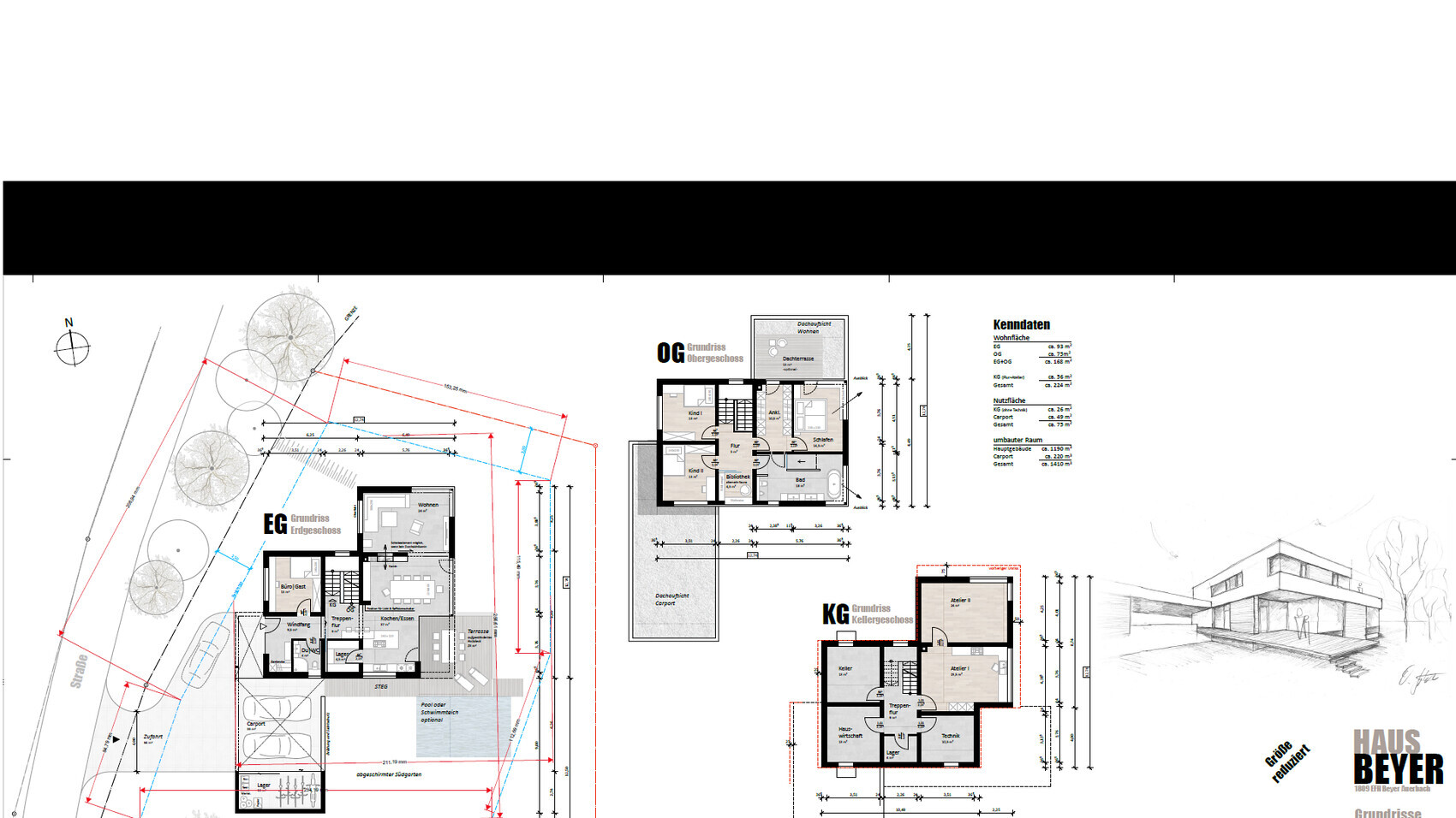
Yo, die Zahlen sind jetzt lesbar. Schade, dass Du keine exakten Daten nur für das Grundstück hast. Gibt's keinen Vermessungsplan mit der Länge der Grenzen und der Einfahrt?

Ist die Einfahrt dort schon da? Ist das eventuell ne Brücke?
Was ist mit Randbebauung für Nebengebäude? Ist das erlaubt?
 
C

Cayman

die Einfahrt ist schon da und darf auch nicht verschoben werden weil das dann Überschwemmungsgebiet ist.
Wir wollen etwas Platz neben dem Carport lassen, damit wir auch die Fläche dahinter bewirtschaften können.

Werde daheim noch mal genauere Längen für das Grundstück herraussuchen.
 
C

Cayman

Yo, die Zahlen sind jetzt lesbar. Schade, dass Du keine exakten Daten nur für das Grundstück hast. Gibt's keinen Vermessungsplan mit der Länge der Grenzen und der Einfahrt?

Ist die Einfahrt dort schon da? Ist das eventuell ne Brücke?
Was ist mit Randbebauung für Nebengebäude? Ist das erlaubt?
Leider noch nicht... der Bebauungsplan wird gerade finalisiert... Randbebauung wäre möglich aber dann besteht keine Möglichkeit mehr auf den hinteren Teil des Grundstücks zu kommen. Die blaue Linie ist die Bebauungsgrenze.
Die Zufahrt ist nicht veränderbar, da der Graben mit zur Überschwemmung gehört. Brücke wäre auch etwas aufwendig oder nicht?

habe jetzt weitere Maße mit angefügt... die mm Maße sind Meter!

Architekturpläne eines Hauses mit EG/OG/KG-Grundrissen, Maßlinien und Skizze rechts.
 
C

Cayman

welche Maße wären denn insgesamt interessant? lesen kann man diese leider auf dem obigen Foto nicht. würde daher noch mal ein neues Bild machen
 
Zuletzt aktualisiert 10.10.2025
Im Forum Grundrissplanung / Grundstücksplanung gibt es 2513 Themen mit insgesamt 87231 Beiträgen


Ähnliche Themen zu Verbesserungsvorschläge Grundriss Haus im Grünen
Nr.ErgebnisBeiträge
1Kleines Grundstück, kleine Einfahrt - Benötigter Platz zum Wenden 43
2Wer muss das Grundstück abstützen? - Seite 322
3Einfamilienhaus 160qm erste Überlegung zur Lage auf dem Grundstück 22
4Planung optimale Anordnung Haus, Garage und Einfahrt 13
5Grundstück - Baufenster - Lage von Haus und Garage - Seite 244
6Platzierung Haus und Garage auf Grundstück 12
7130 m² Bungalow mit Doppelcarport bei 600m² Grundstück? 64
8Grundriss Schlauchhaus L-Form Dreieckiges Grundstück samt Eiche - Seite 21529
9Meinung zu diesem Grundstück erwünscht! - Seite 215
10Kran vom Nachbarn auf meinem Grundstück - Seite 367
11Stadtvilla 170m² auf 567 m² Grundstück - Seite 477
12Grundstück mit Hanglage - Neubaugebiet 18
13Grundstück aufschütten oder nicht? - Seite 487
14Lage Stadtvilla oder Einfamilienhaus auf Grundstück mit breiter Straßenfront - Seite 263
15Garagenposition am Grundstück - Entscheidunghilfe - Seite 536
16Grundrissentwurf Einfamilienhaus165qm ohne Keller auf 400qm Grundstück - Seite 16180
17Grundstücks Einfahrt Ideen, Erfahrungen? 11
18Aufbau der Einfahrt mit Schotter, Split und Pflaster? 18
19100m² Einfahrt pflastern 49
20Stadtvilla 190m² mit Einfahrt & Garten zur Südseite - Seite 530

Oben