Verbesserungsvorschläge Grundriss Haus im Grünen

4,00 Stern(e) 11 Votes
Zuletzt aktualisiert 10.10.2025
Sie befinden sich auf der Seite 8 der Diskussion zum Thema: Verbesserungsvorschläge Grundriss Haus im Grünen
>> Zum 1. Beitrag <<

C

Cayman

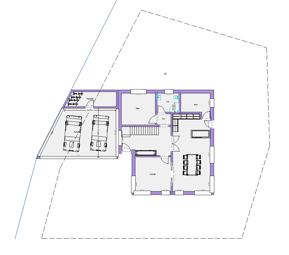
hoffe es ist jetzt besser ersichtlich... die roten Linien sind die Maße von der Bebauungsfläche... Auf der ersten Seite von meinen Thread sind Auszüge vom Bebauungsplan...

EG-Grundriss Erdgeschoss mit Wohnzimmer, Küche/Essen, Terrasse, Carport und Gartenbereich.
 
kaho674

kaho674

Ich möchte hier noch mal fragen, ob denn die Anordnung des Carports auch so möglich wäre:


Grundriss eines Hauses mit Garage (2 Autos), Wohnzimmer, Esszimmer, Küche, Bad, Flur und Treppe.


So ein Auto hat ja ein Lenkrad zum um die Kurve fahren. Oder war Randbebauung komplett untersagt?
 
C

Cayman

leider nein... es gibt nur die kleine Einfahrt wie auf der letzten Zeichnung erkennbar ist.
Daran muss ich mich leider halten... wenn müsste das Carport und Haus weiter nach Osten verschoben werden
 
kaho674

kaho674

Was hat das mit der Einfahrt zu tun? Die Einfahrt bleibt doch unverändert.
Die Frage ist die Randbebauung. Ist die nicht erlaubt für Nebengebäude?
 
Zuletzt aktualisiert 10.10.2025
Im Forum Grundrissplanung / Grundstücksplanung gibt es 2513 Themen mit insgesamt 87231 Beiträgen


Ähnliche Themen zu Verbesserungsvorschläge Grundriss Haus im Grünen
Nr.ErgebnisBeiträge
1Carport bauen. Statt Holzpfosten, Flacheisen möglich? - Seite 212
2Platzierung Stellplätze / Carport auf dem Grundstück - Seite 342
3Haus und Garage, Carport Platzierung auf Hinterliegergrundstück 12
4Zufahrt zum Carport wird durch Laterne behindert 17
5Planung optimale Anordnung Haus, Garage und Einfahrt 13
6Aufbau der Einfahrt mit Schotter, Split und Pflaster? 18
7100m² Einfahrt pflastern 49
8Stadtvilla 190m² mit Einfahrt & Garten zur Südseite - Seite 530
9Belag für die Einfahrt? 17
10Länge / Gefälle Einfahrt Garage / Carport 10
11Einfahrt neu pflastern, Entwässerung, Kosten? 17
12Kleines Grundstück, kleine Einfahrt - Benötigter Platz zum Wenden 43
13Einfahrt Steine von Kann in Hellgrau - Seite 216
14Grundstücks Einfahrt Ideen, Erfahrungen? 11
15Brauchts für Carport und Gerätehäuschen auch Baugenehmigung? 13
16Neubau Einfamilienhaus inkl. Carport und Garage - Reale Kostenschätzung? 11
17Kosteneinschätzung: Fertighaus, Keller, Carport, Einzelgarage 10
18Grenzbebauung Doppelgarage/Carport 6x9m Niedersachsen 29
19Doppelgarage massiv vs. Fertiggarage vs. Carport 46
20Carport mit Geräteraum: Bestellen oder selbst bauen? 10

Oben