Umbau Siedlungshaus von 1960 mit Anbau - Feedback erwünscht*

4,50 Stern(e) 4 Votes
Zuletzt aktualisiert 19.11.2025
Sie befinden sich auf der Seite 2 der Diskussion zum Thema: Umbau Siedlungshaus von 1960 mit Anbau - Feedback erwünscht*
>> Zum 1. Beitrag <<

D

dertill

Bei solchen Maßnahmen: Durchgehende Gaube auf beiden Seiten und zusätzlicher knapp 50m² Anbau würde sogar ich über einen Abriss und Neubau nachdenken. Mit den Baumaßnahmen seit ihr in Summe auch über 50m² Wohnflächenerneuerung und es greifen Alle Anforderungen der Energieeinsparverordnung und des Erneuerbare-Energien-Wärmegesetz an Neubauten.

In den Plänen sind überall 24cm Wandstärke eingezeichnet. Das kann wohl nicht so bleiben. Bei der Summe und der Planung bleiben wahrscheinlich nur die Mauern und die auch nur teilweise,(noch Nichtmal der Dachstuhl) stehen. Da würde ich eher abreißen bis auf den Keller und von da neu hoch bauen.
 
C

ColeTrickle0

Der Anbau hat eine Netto-Grundfläche von knapp 21 m², nicht 50m². Bezüglich der Außenwände steht noch ein Termin mit einem Energieberater aus.
Das "Problem" des Neubaues war bisher für uns immer, dass der Bebauungsplan ein Haus, wie wir uns das vorstellen (Richtung Bauhaus) durch die Einschränkungen wie z.B. die Dachneigung oder die Anzahl der Vollgeschosse nicht ermöglicht. Heißt, das neue Haus würde grundsätzlich nicht viel anders aussehen, als das vorhandene und es kämen die Kosten des Abrisses hinzu.

Pläne sind nun als Bilder gespeichert
 
Zuletzt bearbeitet:
kaho674

kaho674

Ich find die Sache nicht schlecht.
Ankleide und Eltern-Schlafzimmer oben sollten noch die Plätze tauschen.
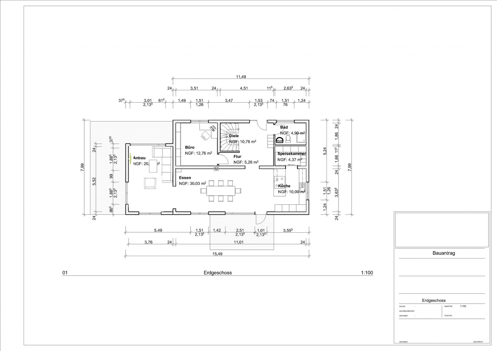
Im Anbau sind die Fenster m.E. blöd angeordnet - wenn ich das richtig deute ein riesiges Nordfenster wo man eigentlich die Kuschelecke erwartet. Das würd ich noch mal überdenken.
Die Kücheninsel würde ich vermutlich gegenüber andocken, damit man auch mal schnell in die Speis kann, ohne jedes Mal nen Slalomlauf hinzulegen.
Fenster im Bad oben fehlen auch irgendwie.
 
C

ColeTrickle0

Ich find die Sache nicht schlecht.
Ankleide und Eltern-Schlafzimmer oben sollten noch die Plätze tauschen.
Im Anbau sind die Fenster m.E. blöd angeordnet - wenn ich das richtig deute ein riesiges Nordfenster wo man eigentlich die Kuschelecke erwartet. Das würd ich noch mal überdenken.
Die Kücheninsel würde ich vermutlich gegenüber andocken, damit man auch mal schnell in die Speis kann, ohne jedes Mal nen Slalomlauf hinzulegen.
Fenster im Bad oben fehlen auch irgendwie.
Danke für´s Feedback. Wieso würdest du Schlafzimmer und Ankleide tauschen?

Der Anbau ist Richtung Süden, Küche liegt auf der Nordseite. Durch den Anbau geht´s dann auf die Terrasse. Hier ist angedacht, große Schiebetüren zu verbauen.

Kücheninsel gegenüber hatten wir aus dem Grund auch schon mal gedacht. Problem könnte nur sein, dass drei Hocker an der Insel stehen sollen. Dies könnte mit der Tür zur anderen Terrasse etwas eng werden. Diese Terrasse und die Tür sind aktuell schon vorhanden, weswegen es aufwendig wäre, hier die Tür zu versetzen.
 
kaho674

kaho674

Danke für´s Feedback. Wieso würdest du Schlafzimmer und Ankleide tauschen?
Erstens brauchen die Kinderohren nicht wissen, was Mami und Papi im Schlafzimmer so treiben. Zweitens kann der Partner weiter schlafen, während sich der andere schon anzieht und das Haus verlässt.
Der Anbau ist Richtung Süden, Küche liegt auf der Nordseite. Durch den Anbau geht´s dann auf die Terrasse. Hier ist angedacht, große Schiebetüren zu verbauen.
Ah, die Ausrichtung hätte man gern als Nordpfeil in der Grafik.
Die Einrichtung des Wohnzimmers wirkt nicht besonders kuschlig - was meinst Du? Ich würde eher in diese Richtung planen:


Grundriss Erdgeschoss eines Hauses mit Küche, Essen, Büro, Bad, Speisekammer, Flur.

Kücheninsel gegenüber hatten wir aus dem Grund auch schon mal gedacht. Problem könnte nur sein, dass drei Hocker an der Insel stehen sollen. Dies könnte mit der Tür zur anderen Terrasse etwas eng werden. Diese Terrasse und die Tür sind aktuell schon vorhanden, weswegen es aufwendig wäre, hier die Tür zu versetzen.
Ach so, da sollen noch Hocker hin. Die Insel erzeugt ja auch noch einen Durchgang von nur 60(?) planunten. Das ist kackeschmal. Frag doch mal Kerstin (kbt09) zur Küche, sie hat voll Ahnung und Ideen.
 
Zuletzt aktualisiert 19.11.2025
Im Forum Grundrissplanung / Grundstücksplanung gibt es 2536 Themen mit insgesamt 87981 Beiträgen


Ähnliche Themen zu Umbau Siedlungshaus von 1960 mit Anbau - Feedback erwünscht*
Nr.ErgebnisBeiträge
1Grundriss Schlafzimmer mit Bad und Ankleide 62
2Grundriss Schlafzimmer, Ankleide und Bad en Suite - Seite 536
3OG Stadtville optimieren. Fenster Bodentief - Seite 16104
4Pfiffige Schlafzimmer Idee mit Ankleide gesucht 19
5~150m² Stadtvilla in Planung - eure Meinung ? - Seite 211
6Fenster Brüstungshöhe 130 im Schlafzimmer / Arbeitszimmer? - Seite 493
7Schalter für Rollläden am Fenster oder an der Tür? 38
8Planung Anbau für Haus der 60er 67
9Entwurf für Anbau/Umbau von Einfamilienhaus zu ZFS - Seite 217
10Geplanter Anbau! Grundrissentwurf ok? Erfahrungen? 19
11Grundrissfindung für Anbau 70er Jahre Bungalow - keine Aufstockung gewünscht 25
12Grundriss Einfamilienhaus mit Doppelgarage und Terrasse - Seite 219
13Grundrissplanung - Wie Schlafzimmers & Ankleide anordnen? 11
14 Küchenplanung mit tiefen Fenster - Seite 643
15Gestaltung Schlafzimmer 35
16Grundriss Neubau Einfamilienhaus: Fenster/Türen/Innenwände Größe/Anordnung ok? - Seite 220
17Neubau einer ca. 8x11 Doppelhaushälfte, Einschätzung Grundriss und Fenster - Seite 235
18Keine Fußbodenheizung im Schlafzimmer? - Seite 322
19Bungalow 135qm: Grundriss + Fenster - Seite 10104
20Durchbruch Bad und Ankleide ohne Türe? - Seite 212

Oben