Anregungen zum Grundriss Einfamilienhaus ca. 175 qm, Satteldachhaus

5,00 Stern(e) 11 Votes
Zuletzt aktualisiert 25.11.2025
Sie befinden sich auf der Seite 12 der Diskussion zum Thema: Anregungen zum Grundriss Einfamilienhaus ca. 175 qm, Satteldachhaus
>> Zum 1. Beitrag <<

E

epinephrin

Ah, ok, Danke ... ist Geschmackssache.

Dabei sind mir wieder die Fenster im OG aufgefallen. Ihr plant ja mit Kniestock 200 cm.
Deshalb auch die Brüstungshöhe von nur 76 cm, damit noch Glasfläche in den Fenstern entsteht. Denn die Fensternische selber wird bei Höhe von ca. 170 cm enden, dann Rollladen. Die Glasfläche wird nach Abzug Rahmen dann wohl bei ca. 160 cm Höhe max. enden, und vermutlich insgesamt so 75 bis 80 cm Höhe haben
Das muss man mögen. Für mich haben diese Art Fenster immer so ein "Kellergefühl". Sollte man also prüfen.

@K a t j a .. wieder mal blitzschnell .. passt eigentlich alles, bis auf die Treppe direkt an der Eingangstür ;).
Ja das haben wir schon im Kopf. Deswegen haben wir uns nun auch eher für 2m Kniestock statt 1,80m entschieden, damit es nicht ganz so extrem ist. Ich bekomme auch schnell Kellergefühle, obwohl ich nur 1,60m bin. Allerdings dafür auf Fenster zu verzichten, find ich auch suboptimal. Man könnte vielleicht noch 2 Vollgeschosse überlegen, wenn es nicht allzu wuchtig wirkt...
 
E

epinephrin

Die Frage zur offenen Treppe, die ich stelle, ist die, dass _offen_ ja recht viel bedeutet: offen oben, offen nach unten, offen ohne Setzstufen... da müsste @epinephrin mal was dazu sagen :)
Ich muss mich erstmal sehr bedanken für eure Gedanken! Ich fühle mich damit nicht mehr so überrollt von dem Thema und werde mir jeden Vorschlag von euch nochmal genau ansehen! :)
Offene Treppe meine ich, dass sie nicht von beiden Seiten von Mauerwerk umgeben ist oder von einer Abstellkammer unten drunter gefüllt wird. Ich würde die Treppenstufen gerne als solche erkennen, damit es (auf mich) nicht bedrückend wirkt. Inzwischen glaube ich, dass man aber jede Treppe schön machen kann. Sogar eine ummauerte, wenn zumindest Tageslicht auf sie fällt.
Ich fasse Mal zusammen:
Frei stehende Wanne
Keine gewendelte Treppe
Sitzfenster in einer Flachdachgaube
Ankleide
Büro
Offene Treppe (welche noch zu definieren ist)
Gäste-WC mit Dusche

Das sind alles Wünsche, die den Grundriss aufblähen. TE möchte aber 10qm weniger bauen. Irgendwo muss da wohl der Rotstift was streichen.
Also Rotstift...
- frei stehende Wanne: bedeutet für mich, dass sie nicht vom Fliesenmantel umgeben ist, die ovale Wanne als ovale Wanne erkennbar ist. Sie kann an einer Wand stehen, nicht frei im Raum
- keine gewendelte Treppe: es geht jede Treppe, aber bitte keine unterschiedliche Stufenbreite :cool:
- offene Treppe: s. Post weiter oben (kein Abstellraum drunter), eingemauert könnte ich noch mitgehen
- Sitzfenster in Gaube: Sitzfenster kann überall sein - dachte nur 2 Fliegen mit 1 Klappe ;-)
- Ankleide: muss nicht, wenn dafür im Schlafzimmer irgendwo Fläche für insgesamt 3,50m schrank
- Büro: Muss wegen Homeoffice
- Gäste-WC mit / ohne Dusche (Gedanke mit Dusche wegen fehlendem Kinderbad, Verzicht wäre kein Problem)
 
E

epinephrin

Ich mag ja sehr den 1. Grundriss von @kbt09 und @ypg, aber auch die Podest-Variante von Katja. Speis und Wäscheraum könnten mir gefallen, wir werden mal testen, ob alle Schränke mit dem großen Bett ins Schlafzimmer ohne Ankleide passen würden. Ich werde auf jeden Fall berichten wie es weiter geht!
 
kbt09

kbt09

Ich mag ja sehr den 1. Grundriss von @kbt09
Da dieses Beispiel ja "nur" 150 qm hat, kann man da in Länge/Breite noch ein wenig arbeiten. Gibt dann auch etwas mehr Platz im HAR. Ankleide hat da aktuell knapp 300 cm Schrank und 300 cm tiefenreduzierten Schrank. Mir gefällt der Grundriss auch immer noch recht gut, ist immerhin schon von 2018 ;). Wobei mir alle 3 Varianten auch heute noch ganz gut auf deine Situation passend erscheinen. Mein Haupttreiber ist ja eigentlich immer Küche, Küche/Essen usw. ... komme da von dem anderem Forum für Küchen ;) ... und in allen 3 Varianten stehe ich auch immer noch hinter der angedachten Küchenkonstellation.

Was man bei mehr breit als tief -Grundriss noch prüfen sollte, ist die Garagenposition. So genau, kann man dem Lageplan das Baufenster nicht entnehmen.
 
K a t j a

K a t j a

Hier noch ein paar Beispiele aus dem Katalog, die mit wenig Phantasie auf Deine Bedürfnisse umgemodelt werden könnten.

Das Heidi von Regnauer ist mit 177qm (12,50m x 9m) angegeben (Straße planoben). Problem ist hier allerdings der fehlende HAR. Denkbar wäre, das Gäste-WC auf die andere Seite zu schieben und das Büro entsprechend schmaler zu machen.

Grundriss eines Hauses: Wohnzimmer, Homeoffice, Diele EG, Ess- und Kochbereich, WC, Speis, Treppe.


Grundriss OG: zwei Kinderzimmer, Schlafzimmer, Ankleide, Bad, Sauna, Flur und Treppe.

Das Medley 3.0 von Fingerhaus (Straße planunten). Angegeben mit 172,73qm (11,05 x 9,25m) finde ich schon nahezu perfekt, wenn man die Offenheit akzeptiert. Der Komplex Hauswirtschaftsraum/Gäste-WC tauscht noch den Platz mit Arbeiten und man kann es direkt so hinstellen.


Grundriss eines Wohnhauses: offener Wohn-/Essbereich, Küche, Arbeitszimmer, Diele, WC, HWR.


2D-Grundriss eines Hauses mit Schlafzimmer, Bad, Flur, Ankleide und Arbeitszimmer


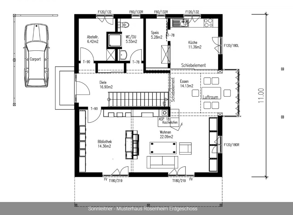
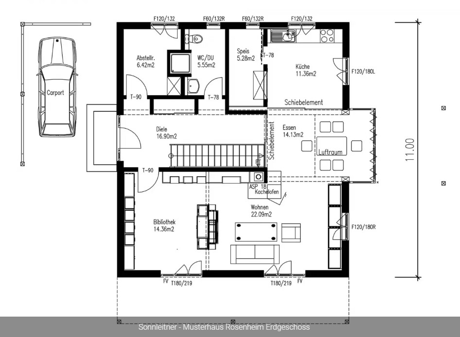
Das Rosenheim von Sonnleitner (Straße planlinks) von der Sache her ähnlich dem Medley - die Küche aber mit Speis an einer anderen Stelle. Abtrennung Büro schon angedeutet. Luftraum wird zum Sitzfenster, Kinder und Elternbereich im OG tauschen die Plätze.

Grundriss Erdgeschoss eines Hauses mit Carport, Küche, Essen, Wohnzimmer, Bibliothek.


Grundriss des Obergeschosses: Flur, 2 Kinderzimmer, Schlafzimmer, Bad, Balkon, Luftraum.
 
Zuletzt aktualisiert 25.11.2025
Im Forum Grundrissplanung / Grundstücksplanung gibt es 2536 Themen mit insgesamt 88016 Beiträgen


Ähnliche Themen zu Anregungen zum Grundriss Einfamilienhaus ca. 175 qm, Satteldachhaus
Nr.ErgebnisBeiträge
1Grundriss - Auf der Suche nach Tipps und Ideen von Experten 11
2Grundriss Meinungen Einfamilienhaus 140qm 2 Vollgeschosse - Seite 492
3Stadtvilla mit gerader Treppe, offene moderne Bauweise, 140m² 18
4Planung Gäste-WC im Neubau - Wie groß muss es sein? (DIN?) - Seite 4107
5Treppe Grundriss Planung, Auftritt und Unterzug - Seite 221
6Grundriss Schlafzimmer mit Bad und Ankleide 62
7Grundriss-Planung, 2 Vollgeschosse, ca. 130-140 qm ohne Keller - Seite 21192
8Ideen zum Grundriss und evtl. noch Tipps? 45
9Ankleide/Schlafzimmer Problem - Grundrissdiskussion 25
10Unser Grundriss-Eure Meinung 32
11Grundriss Stadtvilla 160 qm, ohne Keller - Eure Meinungen dazu? 167
12Grundriss Einfamilienhaus 170qm Tipps und meinungen 21
13Grundriss Stadtvilla 160qm - Bitte um Tipps! - Seite 4284
14Stadtvilla Grundriss 185m² - Bitte um Feedback! - Seite 13155
15Einfamilienhaus Süd-Hang Grundriss - Bitte um Feedback - Seite 637
16Grundriss Familienhaus in Randlage mit freien Sicht - Seite 22153
17Grundriss-Entwurf für Haus am Hang in zweiter Reihe 20
18Grundriss 9x11.30m, 4 Personen, 2 Büros 27
19Grundriss Bungalow 172 m2 in Brandenburg südlich von Berlin - Seite 17120
20Grundriss 2-vollgeschossiges Einfamilienhaus ca. 160 m² Wohnfläche 25

Oben