Reihenhaus - Finanzieller Rahmen, Grundstück + Baufinanzierung

4,30 Stern(e) 3 Votes
Zuletzt aktualisiert 08.10.2025
Sie befinden sich auf der Seite 3 der Diskussion zum Thema: Reihenhaus - Finanzieller Rahmen, Grundstück + Baufinanzierung
>> Zum 1. Beitrag <<

Musketier

Musketier

Das ist alles Spekulation. Mit 3 Gehältern in der Größenordnung bekommt ihr das nicht gestemmt.

Rechnen wir mal 650T€, dazu kommen noch die Baunebenenkosten. Je nachdem,ob das 1 großes Mehrfamilienhaus, 2 große Doppelhäuser oder 4 Reihenhäuser werden sollen, dann kommt man da auf gut und gerne 50-120T€ und dazu nochmal das Grundstück für die Häuser. Das dürfte in der Größenordnung sicher nicht unter 300T€ abgehen.
Meines Erachtens geht da nix unter einer Million.
 
B

Bauexperte

Hallo Dani,

Was würde in etwa folgendes Vorhaben kosten:

-Reihenhaus mit vier weiteren gleichartig gestalteten Häusern
-Größe Prohaus ca. 120-130 m²
-Einstöckig
-Fertighaus, nicht Stein auf Stein
-Keller
Falls Du "Fertighaus" mit "schnell" gleichsetzt, muß ich Dich enttäuschen; dem ist nicht so!

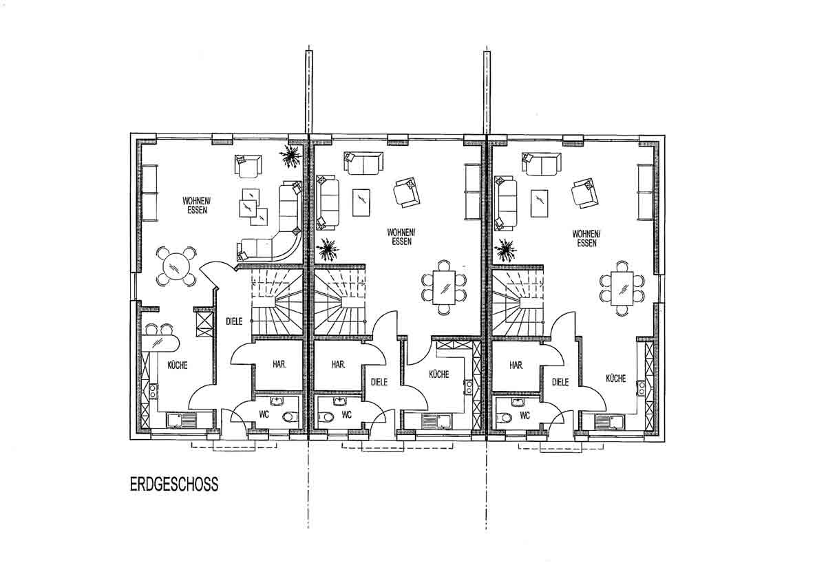
Ich habe Dir in der Anlage mal einen Block Reihenhäuser angehängt, welchen wir so in Grengel - unter nahezu gleichen Vorzeichen - konzipiert haben. Um auf 120/130 qm zu kommen, braucht es etwas mehr, als 70 qm bebauter Fläche für ein Haus. Das Modell hat Außenmaße von 6,95 x 11,00 m/je Haus und bietet im EG 59,53 qm, im OG 58,32 qm; im Spitzboden warten 45,48 qm darauf, bewohnt zu werden. Der Keller kann mit ebenfalls 59,00 qm jede Menge Technik und Sammelgut aufnehmen.

1. Wie groß muss durchschnittlich ca. das Grundstück in Berlin betragen, wenn von der Gesamtfläche x um die 500 m² bebaut werden sollen oder kann man das pauschal nicht sagen?
Ich bleibe im obigen Beispiel:

3,00 m Abstandsfläche + 6,95 m + 6,95 m + 6,95 m + 3,00 m Abstandsfläche * 11,00 m plus 4,00 m Terrasse + 10,00m Garten = 671,25 qm erforderliche Grundstücksgröße. Welche tatsächliche Grundstücksgröße für Dein Bauvorhaben infrage kommt, hängt von der in Berlin üblichen Grundflächenzahl für Grundstücke ab; beträgt sie 0,3 mehr Land, beträgt sie eher 0,4, dann weniger Land. Also irgendetwas zwischen 800 qm mit Grundflächenzahl 0,3 oder 600 qm mit Grundflächenzahl 0,4; hängt natürlich auch von euren Wünschen nach der Gartengröße ab.

2. Welche Kosten würden von A bis Z pauschal auf uns zukommen, wenn wir eine Firma mit dem Bauvorhaben beauftragen? (pauschal)
Bei einer Reihenhausbebauung muß anders gerechnet werden, als ich dem Doc in einer früheren Antwort gegenüber geäußert habe; da bin ich allerdings von einer Mehrfamilienhaus-Lösung ausgegangen Jedes Haus für sich genommen, wird mit eigener Technik und Ausstattung kalkuliert, einzig 3 Kommunwände sowie die Baustelleneinrichtung reduzieren den Preis; ggfs. gibt es ein "kleines Bonbon" vom BU, da er 4 Häuser in einem Vertrag abarbeiten kann.

Ich schätze, Du wirst bei rund TEUR 235 für ein RH incl. Nutzkeller landen; die Baunebenkosten orientieren sich daran, wie ihr die öffentlichen Anschlüsse legt. Bspw. ist es möglich, daß jeweils 2 Häuser an einen öffentlichen Anschluss angeschlossen werden; irgendwo im Bereich TEUR 60-80 werden die Baunebenkosten für 4 RH sicher landen. Vergessen darfst Du auch nicht die erforderlichen Mittel für Malerarbeiten & Bodenbeläge, Außenanlagen und Rücklagen für nice to have.

Wir möchten uns bei der Bank um eine Finanzierung bemühen und da wäre es hilfreich, wenn wir wüssten, welchen Betrag wir bei der Bank für dieses Vorhaben verlangen müssten.
Ihr wollt als Familie zusammenleben, ich würde daher an Deiner Stelle auch mal über eine Mehrfamilienhaus-Lösung nachdenken. Ein Beispiel findest Du in der Anlage; zwar mit 465 qm etwas größer, aber als Beispiel kann es dienen. Die Lösung mit ETW hat auch den Charme, das eine Wohnung vermietet, im worste case verkauft werden kann.

Auch solltest Du darüber nachdenken, bei der Reihenhausbebauung auf einen Nutzkeller zu verzichten; ist eh in den meisten Fällen ein Lager und dafür sind die Kellerkosten imho zu hoch ;)

Edit:

Bevor Du Dir hier Ideen zu Häusern abholst oder Preise falsch interpretierst, sollten alle finanzierenden Mitglieder eine Bank/einen Finanzierer ihres Vertrauens aufsuchen und hören, was gesamt an Finanzierung zu stemmen ist. Erst, wenn euch die Summe bekannt ist, kann man schauen, was sich daraus für euch realisieren läßt !


Grüße, Bauexperte

Grundriss Erdgeschoss eines Dreifamilienhauses mit Wohnzimmer, Küche, Diele und WC


Grundrisspläne eines Hauses mit Keller- und Erdgeschoss, Raumanordnung sichtbar.
 
Zuletzt aktualisiert 08.10.2025
Im Forum Liquiditätsplanung / Finanzplanung / Zinsen gibt es 3214 Themen mit insgesamt 70961 Beiträgen


Ähnliche Themen zu Reihenhaus - Finanzieller Rahmen, Grundstück + Baufinanzierung
Nr.ErgebnisBeiträge
1Mehrfamilienhaus: Platzierung der Wohneinheiten, Bäume etc. - Seite 435
2Bauträger ändert Grundstücksgröße 25
3Projekt Mehrfamilienhaus Fragen zu Kosten und Vorgehensweise 24
4Baunebenkosten nicht einsehbar? 14
5zu wenig Baunebenkosten oder ist die Kostenaufstellung okay? 16
6Eigenheim bauen - Aller Anfang ist schwer - wie geht es los? - Seite 337
7Tiefgarage Mehrfamilienhaus unter freistehenden Einfamilienhaus 13
8Mehrfamilienhaus zu Vermietung - Seite 212
9Mehrfamilienhaus - Bausparvertrag & Vorfinanzierung sinnvoll? - Seite 224
10Mehrfamilienhaus ab 3 Wohnungen als Fertighaus 18
11Mehrfamilienhaus als Kapitalanlage in überalterter Stadt - Seite 1170
12Extrem hoher Pelletsverbauch (200kg in 3 Tagen) bei Kfw70 Mehrfamilienhaus! - Seite 437
13Bebauungsplan Mehrfamilienhaus 16
14Mehrfamilienhaus mit 6 WE - Aktueller Stand und weiteres Vorgehen 13
15Einschätzung zur Machbarkeit: Mehrfamilienhaus Entwurf vom Architekten? 11
16Planung Mehrfamilienhaus - Kosten optimieren 73
17Planung Mehrfamilienhaus 1200 €/m² 58
18Mehrfamilienhaus ohne Beteiligung Ehepartner - Eigentumsfrage 28
19Photovoltaikanlage beim Mehrfamilienhaus. WEG 100% Zustimmung? 27
20Welche Heizung für Mehrfamilienhaus, Wärmepumpe nicht förderfähig? 23

Oben