ᐅ Grundriss Einfamilienhaus 150 m² 448m² 1,5 geschossig
Erstellt am: 14.01.22 18:26
H
HoisleBauer2214.01.22 18:26Bebauungsplan/Einschränkungen
Größe des Grundstücks : 448 m²
Hang: Nein
Grundflächenzahl: 0,28 (Abstand li + re 3 m)
Geschossflächenzahl: ?
Baufenster, Baulinie und -grenze: s. Plan
Randbebauung: s. Plan
Anzahl Stellplatz: 1,5 (= Vorschrift)
Geschossigkeit: 1-1,5
Dachform: Satteldach 45 Grad, ca. 1,30 m Drempel
Stilrichtung: klassisch
Ausrichtung: s. Plan
Maximale Höhen/Begrenzungen
weitere Vorgaben
Anforderungen der Bauherren
Stilrichtung, Dachform, Gebäudetyp: passt
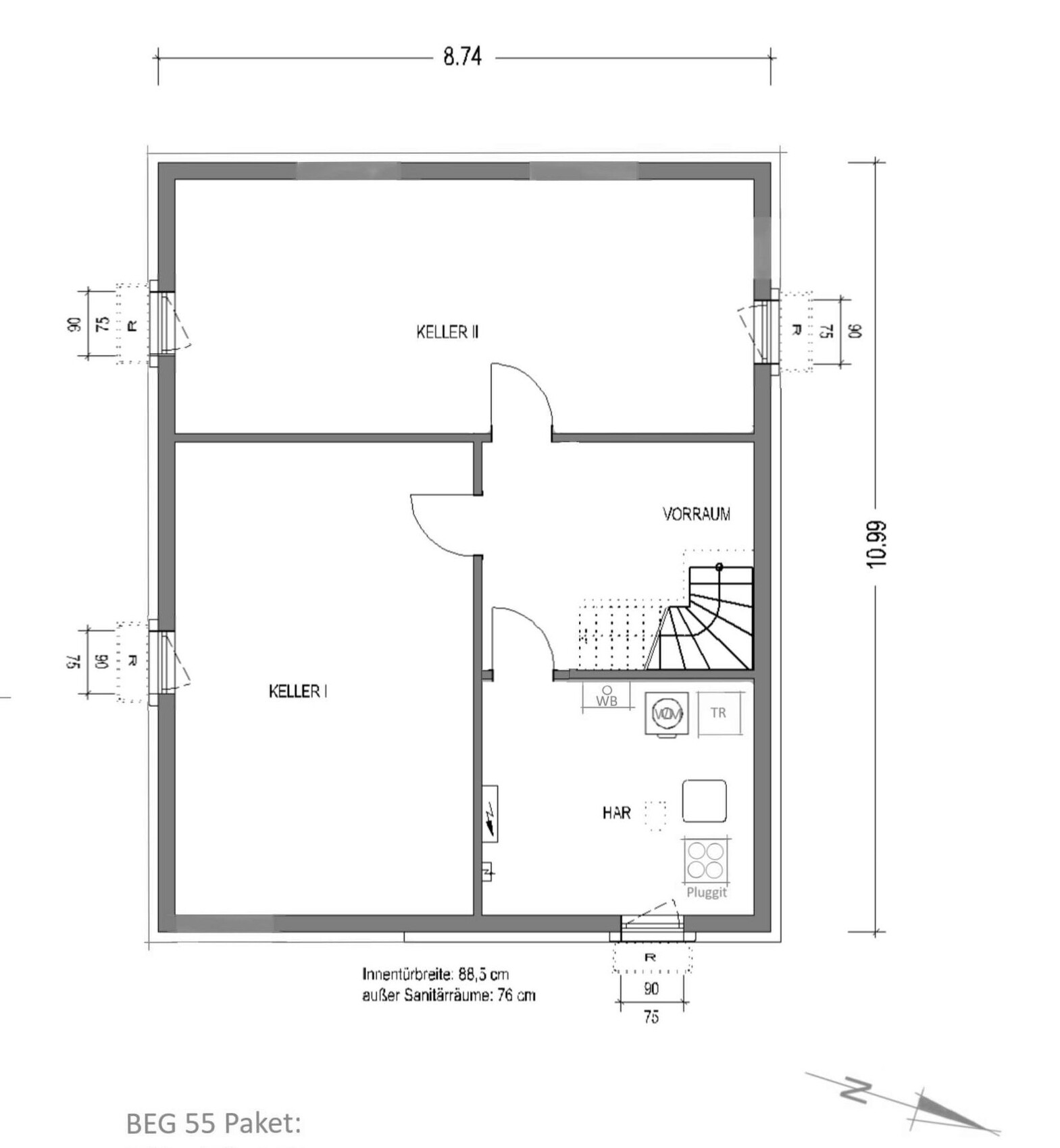
Keller, Geschosse: Vollunterkellert
Anzahl der Personen, Alter: 2 Erw., 3 Kinder
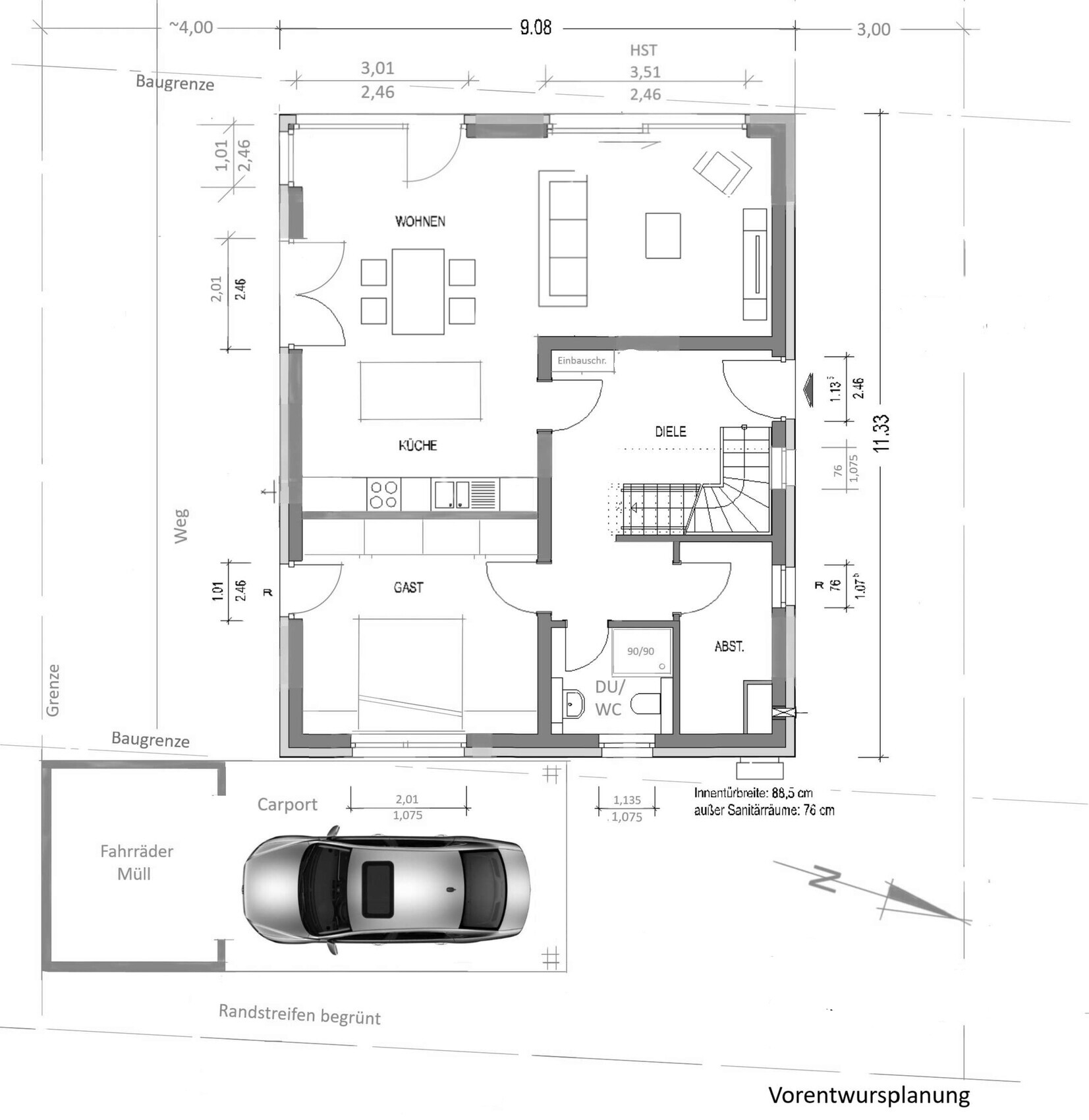
Raumbedarf im EG, OG
Büro: Homeoffice
Schlafgäste pro Jahr: 1x
offene oder geschlossene Architektur: geschlossen
konservativ oder moderne Bauweise: konservativ
offene Küche, Kochinsel: ja
Anzahl Essplätze: 1
Kamin: falls Geld übrig
Musik/Stereowand: nein
Balkon, Dachterrasse: nein
Garage, Carport: Carport
Nutzgarten, Treibhaus: Ja
weitere Wünsche/Besonderheiten/Tagesablauf, gern auch Begründungen, warum dieses oder das nicht sein soll
Hausentwurf
Von wem stammt die Planung: Planer eines Bauunternehmens
Was gefällt besonders? Warum? Große Kinderzimmer
Was gefällt nicht? Warum? Büro im EG wird später Schlafzimmer, Büro im Keller
Preisschätzung lt Architekt/Planer: 430K + rund 100K Nebenkosten
Persönliches Preislimit fürs Haus, inkl Ausstattung: 430K
favorisierte Heiztechnik: Luft-Wasser-Wärmepumpe
Wenn Ihr verzichten müsst, auf welche Details/Ausbauten
-könnt Ihr verzichten: Kamin
-könnt Ihr nicht verzichten: Abstellraum im EG, Büro
Warum ist der Entwurf so geworden, wie er jetzt ist?
Standardentwurf vom Planer? Enge Anlehnung an Typenhaus (Wände teilw. nicht versetzbar)
Was macht ihn in Euren Augen besonders gut oder schlecht? sehr pragmatisch/effizient, maximale Fläche für Wohnzimmer, 3 gleichgroße Kinderzimmer im OG. Maximale Nutzung der Wohnfläche des Hauses bei sehr einschränkendem Bebauungsplan.
Was ist die wichtigste/grundlegende Frage zum Grundriss in 130 Zeichen zusammengefasst?
1. Sind irgendwelche No-Gos drin, Dinge, die wir mgl. übersehen haben?
2. Wie können wir durch Modifikationen im EG (OG?) noch ein Büro unterkriegen?
3. Diele ist recht klein - Problem?




Größe des Grundstücks : 448 m²
Hang: Nein
Grundflächenzahl: 0,28 (Abstand li + re 3 m)
Geschossflächenzahl: ?
Baufenster, Baulinie und -grenze: s. Plan
Randbebauung: s. Plan
Anzahl Stellplatz: 1,5 (= Vorschrift)
Geschossigkeit: 1-1,5
Dachform: Satteldach 45 Grad, ca. 1,30 m Drempel
Stilrichtung: klassisch
Ausrichtung: s. Plan
Maximale Höhen/Begrenzungen
weitere Vorgaben
Anforderungen der Bauherren
Stilrichtung, Dachform, Gebäudetyp: passt
Keller, Geschosse: Vollunterkellert
Anzahl der Personen, Alter: 2 Erw., 3 Kinder
Raumbedarf im EG, OG
Büro: Homeoffice
Schlafgäste pro Jahr: 1x
offene oder geschlossene Architektur: geschlossen
konservativ oder moderne Bauweise: konservativ
offene Küche, Kochinsel: ja
Anzahl Essplätze: 1
Kamin: falls Geld übrig
Musik/Stereowand: nein
Balkon, Dachterrasse: nein
Garage, Carport: Carport
Nutzgarten, Treibhaus: Ja
weitere Wünsche/Besonderheiten/Tagesablauf, gern auch Begründungen, warum dieses oder das nicht sein soll
Hausentwurf
Von wem stammt die Planung: Planer eines Bauunternehmens
Was gefällt besonders? Warum? Große Kinderzimmer
Was gefällt nicht? Warum? Büro im EG wird später Schlafzimmer, Büro im Keller
Preisschätzung lt Architekt/Planer: 430K + rund 100K Nebenkosten
Persönliches Preislimit fürs Haus, inkl Ausstattung: 430K
favorisierte Heiztechnik: Luft-Wasser-Wärmepumpe
Wenn Ihr verzichten müsst, auf welche Details/Ausbauten
-könnt Ihr verzichten: Kamin
-könnt Ihr nicht verzichten: Abstellraum im EG, Büro
Warum ist der Entwurf so geworden, wie er jetzt ist?
Standardentwurf vom Planer? Enge Anlehnung an Typenhaus (Wände teilw. nicht versetzbar)
Was macht ihn in Euren Augen besonders gut oder schlecht? sehr pragmatisch/effizient, maximale Fläche für Wohnzimmer, 3 gleichgroße Kinderzimmer im OG. Maximale Nutzung der Wohnfläche des Hauses bei sehr einschränkendem Bebauungsplan.
Was ist die wichtigste/grundlegende Frage zum Grundriss in 130 Zeichen zusammengefasst?
1. Sind irgendwelche No-Gos drin, Dinge, die wir mgl. übersehen haben?
2. Wie können wir durch Modifikationen im EG (OG?) noch ein Büro unterkriegen?
3. Diele ist recht klein - Problem?
H
HoisleBauer2214.01.22 18:31Ergänzend: Was im EG mit "Gast" bezeichnet wird, ist eigentlich das Büro oder das Schlafzimmer der Erwachsenen. Das wurde falsch eingetragen.
Falls Büro, dann müsste Schlafzimmer in den Keller, dank Fußbodenheizung auch im Keller theoretisch kein Problem. Aber Keller hat nur einen Lichtschacht pro Raum. Also kaum Licht.->Das ist unser Hauptproblem beim Grundriss.
Danke für euren geschulten Blick über den Grundriss. Soll Mitte März abgeschlossen sein, die Planung des endgültigen Grundrisses.
Falls Büro, dann müsste Schlafzimmer in den Keller, dank Fußbodenheizung auch im Keller theoretisch kein Problem. Aber Keller hat nur einen Lichtschacht pro Raum. Also kaum Licht.->Das ist unser Hauptproblem beim Grundriss.
Danke für euren geschulten Blick über den Grundriss. Soll Mitte März abgeschlossen sein, die Planung des endgültigen Grundrisses.
HoisleBauer22 schrieb:
Ausrichtung: s. PlanWo ist denn die Auffahrt??HoisleBauer22 schrieb:
Ergänzend: Was im EG mit "Gast" bezeichnet wird,HoisleBauer22 schrieb:
Anzahl der Personen, Alter: 2 Erw., 3 KinderHoisleBauer22 schrieb:
Büro: HomeofficeHoisleBauer22 schrieb:
Schlafgäste pro Jahr: 1xHoisleBauer22 schrieb:
Was gefällt besonders? Warum? Große Kinderzimmer3 Kinder, 2 Kinderzimmer, ... vlt kannst Du mal etwas dazu schreiben? Das erschließt wahrscheinlich keinem. Auch Alter der Kinder dann bitte, wenn eins gar kein Zimmer bekommt.H
Hausbautraum2014.01.22 18:45ypg schrieb:
Wo ist denn die Auffahrt??
3 Kinder, 2 Kinderzimmer, ... vlt kannst Du mal etwas dazu schreiben? Das erschließt wahrscheinlich keinem. Auch Alter der Kinder dann bitte, wenn eins gar kein Zimmer bekommt.Doch, oben sind doch 3 Zimmer.
Ins EG soll das Elternschlafzimmer und Büro in den Keller.
H
HoisleBauer2214.01.22 18:47ypg schrieb:
3 Kinder, 2 KinderzimmerDanke der Nachfrage. Ich hatte vergessen zu schreiben, dass oben statt "Schlafen" eigentlich "Kind 3" stehen müsste. Super dass ihr so gut hinschaut!HoisleBauer22 schrieb:
Dachform: Satteldach 45 Grad, ca. 1,30 m DrempelDas gibt in der Kombination ein turmhohes Dach.HoisleBauer22 schrieb:
Standardentwurf vom Planer? Enge Anlehnung an Typenhaus (Wände teilw. nicht versetzbar)
Was macht ihn in Euren Augen besonders gut oder schlecht? sehr pragmatisch/effizient, maximale Fläche für Wohnzimmer, 3 gleichgroße Kinderzimmer im OG. [...] 1. Sind irgendwelche No-Gos drin, Dinge, die wir mgl. übersehen haben?Das No-go besteht m.E. in der lieblosen Planung - war das Gespräch denn auch so, d.h. wurde eurerseits zu wenig ernsthaftes Interesse signalisiert ? (wenn Ihr Euch diesbezüglich nichts "vorzuwerfen" habt, würde ich den Anbieter in die Wüste schicken).https://www.instagram.com/11antgmxde/
https://www.linkedin.com/company/bauen-jetzt/
Ähnliche Themen