Erstmal Hallo!
Wir hatte schon mal einen Thread, sind aber nun ein ganzes Stück weiter und möchten Euch unseren vom BU erstellten Grundriss vorstellen.
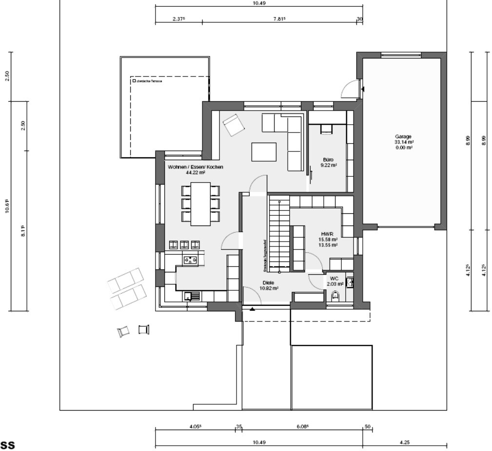
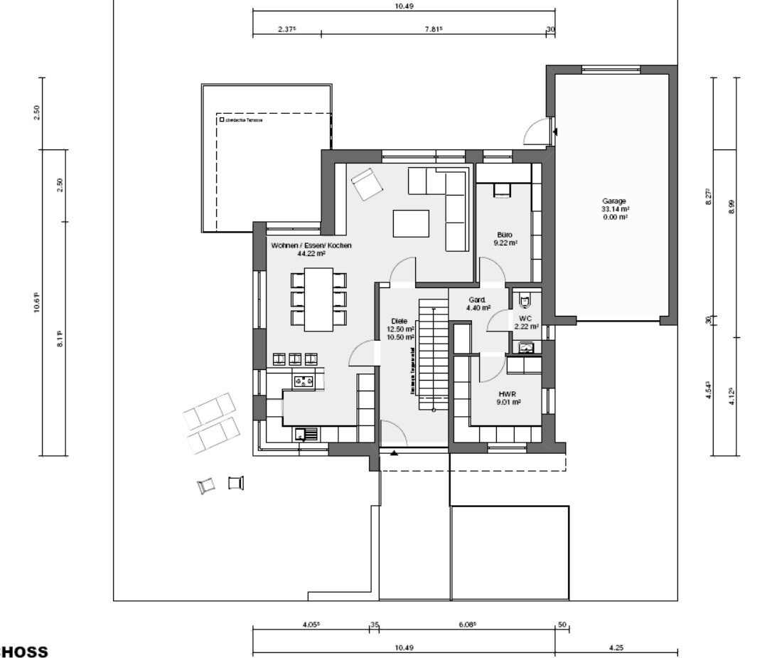
Wir werden 2 EG-Grundrisse einstellen, wobei wir uns hier auf den 1. beziehen werden, da dieser uns erst mal besser gefällt.
Bebauungsplan/Einschränkungen:
Siehe Anhang
Grundstücksgröße: 527m² 19,5m * 27m
Keller, Geschosse: Kein Keller, 2 Vollgeschosse
Anzahl der Personen, Alter: 2 Erwachsene und 2-3 Kinder
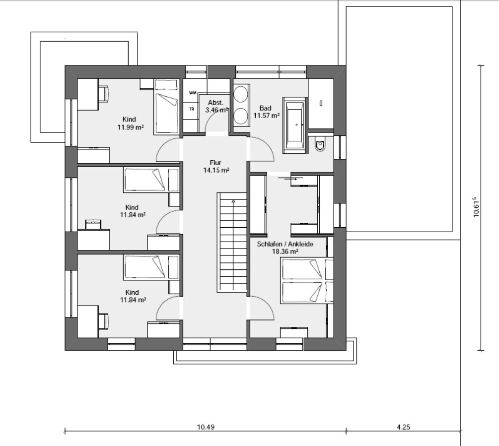
Raumbedarf im EG (Wohn- Ess -Kochbereich, G-WC, Büro (Lehrerin), Hauswirtschaftsraum) OG (4 Sch.Zimmer, 1 Bad, kl. Hauswirtschaftsraum für Wäsche)
Schlafgäste pro Jahr: 2
Anzahl Essplätze: 10
Kamin: noch Unentschlossen, aber Tendenz zu nein
Balkon, Dachterrasse: nein
weitere Wünsche/Besonderheiten/Tagesablauf
- Unser Wunsch war es , die Küche zur Straße zu planen. 1. um Südsonne in den Wohnbereich zu bekommen und 2. wird gegenüber erst mal nicht gebaut und es gibt eine Aussicht auf Felder . Das Wohnzimmer wollen wir wegen der Straße aber nicht dort haben. Weiter soll Vor das Küchenfenster Richtung Straße noch eine kleine Kaffee-Terrasse um die Sicht Richtung Felder zu nutzen.
Eine Küche nach vorne, schien wegen dem Raumprogramm schwierig umsetzbar zu sein. Dies sit der erste Entwurf, der gefällt.
- Hauswirtschaftsraum unten soll als Schleuse dienen, da fehlt in den Plänen noch eine Seitentür
Hausentwurf
Von wem stammt die Planung:
-Planer eines Bauunternehmens
Was gefällt nicht?
- Sind noch unschlüssig mit der Terrassen-Nische (Oder besser als Raum nutzen)
- An der Küche fehlt noch eine Terrassentür
- Ausgang Hauswirtschaftsraum zur Einfahrt fehlt
- Im Bad Badewanne und waschbecken tauschen ?!?
Preisschätzung lt Architekt/Planer: Noch nicht bekannt,, soll sich aber um 280000 incl. Bau-Nebenkosten bewegen
Persönliches Preislimit fürs Haus, inkl Ausstattung: 320.000 (incl. Baunebenkosten)
favorisierte Heiztechnik: Gas, Fußbodenheizung





Wir hatte schon mal einen Thread, sind aber nun ein ganzes Stück weiter und möchten Euch unseren vom BU erstellten Grundriss vorstellen.
Wir werden 2 EG-Grundrisse einstellen, wobei wir uns hier auf den 1. beziehen werden, da dieser uns erst mal besser gefällt.
Bebauungsplan/Einschränkungen:
Siehe Anhang
Grundstücksgröße: 527m² 19,5m * 27m
Keller, Geschosse: Kein Keller, 2 Vollgeschosse
Anzahl der Personen, Alter: 2 Erwachsene und 2-3 Kinder
Raumbedarf im EG (Wohn- Ess -Kochbereich, G-WC, Büro (Lehrerin), Hauswirtschaftsraum) OG (4 Sch.Zimmer, 1 Bad, kl. Hauswirtschaftsraum für Wäsche)
Schlafgäste pro Jahr: 2
Anzahl Essplätze: 10
Kamin: noch Unentschlossen, aber Tendenz zu nein
Balkon, Dachterrasse: nein
weitere Wünsche/Besonderheiten/Tagesablauf
- Unser Wunsch war es , die Küche zur Straße zu planen. 1. um Südsonne in den Wohnbereich zu bekommen und 2. wird gegenüber erst mal nicht gebaut und es gibt eine Aussicht auf Felder . Das Wohnzimmer wollen wir wegen der Straße aber nicht dort haben. Weiter soll Vor das Küchenfenster Richtung Straße noch eine kleine Kaffee-Terrasse um die Sicht Richtung Felder zu nutzen.
Eine Küche nach vorne, schien wegen dem Raumprogramm schwierig umsetzbar zu sein. Dies sit der erste Entwurf, der gefällt.
- Hauswirtschaftsraum unten soll als Schleuse dienen, da fehlt in den Plänen noch eine Seitentür
Hausentwurf
Von wem stammt die Planung:
-Planer eines Bauunternehmens
Was gefällt nicht?
- Sind noch unschlüssig mit der Terrassen-Nische (Oder besser als Raum nutzen)
- An der Küche fehlt noch eine Terrassentür
- Ausgang Hauswirtschaftsraum zur Einfahrt fehlt
- Im Bad Badewanne und waschbecken tauschen ?!?
Preisschätzung lt Architekt/Planer: Noch nicht bekannt,, soll sich aber um 280000 incl. Bau-Nebenkosten bewegen
Persönliches Preislimit fürs Haus, inkl Ausstattung: 320.000 (incl. Baunebenkosten)
favorisierte Heiztechnik: Gas, Fußbodenheizung
Immer noch keine Antwort?
Dann dränge ich mich mal vor
Ich mag den Grundriss: die Aufteilung, die kompakten Räume, das Nutzverhältnis.
Auch finde ich, dass Ihr wegen der Ausrichtung einen guten Kompromiss gemacht habt.
Aber Du möchtest auch Kritik und Anregungen.
Ich würde den Flur im EG etwas einkürzen. Der ist mM nach zu lang. Dann wäre auch der Esstisch etwas lockerer im Raum und Ihr könnt bequem an der West-Seite einen Terrassenausgang schaffen.
Wo soll denn die Technik hin? Sorgt dafür, dass Ihr mindestens eine schöne Schrankwand/Arbeitsplatte mit Schränken dort hinbekommt, so wie es in der Zeichnung sauber dargestellt ist. Meist sieht die Wirklichkeit ja doch anders aus .
Wie lang ist die Sofawand?
Zum OG:
Die Verbindungstüren zum Schlafzimmer bei drei Kindern könnte bemängelt werden. Aber ab einem gewissen Alter könnt Ihr sie zusperren
Anfangs fand ich das Bad ganz ok, aber jetzt frage ich mich, ob die Wege zu Dusche und WC durch die Wanne nicht zu schmal sind.
Anscheinend habt Ihr mehr Lichtbänder als normale Fenster (der Einrichtung nach zu urteilen)?
Hauswirtschaftsraum: rechnet damit, dass nicht alles zum Trocknen in den Trockner darf.
Wird das ein Haus mit Flachdach?
Gruss Yvonne
Dann dränge ich mich mal vor
Ich mag den Grundriss: die Aufteilung, die kompakten Räume, das Nutzverhältnis.
Auch finde ich, dass Ihr wegen der Ausrichtung einen guten Kompromiss gemacht habt.
Aber Du möchtest auch Kritik und Anregungen.
Ich würde den Flur im EG etwas einkürzen. Der ist mM nach zu lang. Dann wäre auch der Esstisch etwas lockerer im Raum und Ihr könnt bequem an der West-Seite einen Terrassenausgang schaffen.
Wo soll denn die Technik hin? Sorgt dafür, dass Ihr mindestens eine schöne Schrankwand/Arbeitsplatte mit Schränken dort hinbekommt, so wie es in der Zeichnung sauber dargestellt ist. Meist sieht die Wirklichkeit ja doch anders aus .
Wie lang ist die Sofawand?
Zum OG:
Die Verbindungstüren zum Schlafzimmer bei drei Kindern könnte bemängelt werden. Aber ab einem gewissen Alter könnt Ihr sie zusperren
Anfangs fand ich das Bad ganz ok, aber jetzt frage ich mich, ob die Wege zu Dusche und WC durch die Wanne nicht zu schmal sind.
Anscheinend habt Ihr mehr Lichtbänder als normale Fenster (der Einrichtung nach zu urteilen)?
Hauswirtschaftsraum: rechnet damit, dass nicht alles zum Trocknen in den Trockner darf.
Wird das ein Haus mit Flachdach?
Gruss Yvonne
Super vielen Dank für die flotte erste Rückmeldung!
Also wir haben uns wirklich laaaaaaaaaaaaaaange mit dem Grundriss beschäftigt und da ist es erst mal auch gut zu lesen, dass es jemandem gefällt
Also...
Die Einkürzung des Flures ist eine gute Anregung. Wobei dann wohl eine Türüberflüssig wird, da sie mM so nah aneinander keinen Sinn machen. Der Mehrgewinn an Platz istallerdings zu bedenken. Wobei wir ja auch überlegen die Tearssen-Ausparung weg zu lassen, da das eine Zimmerecke ist, wo man auch Kinder mit Spieldecke lassen kann. Meinung?
Die Technik soll im Dachboden verschwinden.
Arbeitsplatte/Schrankwand werden bei der späteren genauen Planung genau bedacht werden, da der Hauswirtschaftsraum für uns mit der wichtigste Raum ohne Keller ist.
Die Sofa-Wand ist noch nicht genau bemessen. Wird wohl um die 3m sein, wenn ich mir das im Entwurf mit Lineal ansehe. Aber sehr guter Hinweis das wir diese Thema mit dem Planer noch mal besprechen
Das Bad wird in der Endplanung wohl nach Norden etwas größer werden, da uns die Umkleide und das Schlafzimmer ein ticken zu groß sind. Badewanne und Waschbecken werden aber sowieso noch tauschen, dann ist dort auch schon etwas mehr Platz.
Haus mit Flachdach? Da hat sich der Fehlerteufel eingeschlichen und die Aussenzeichnungen wurden aufgrund der Größe nicht hochgeladen. Hole ich hiermit nach! Es ist eine Stadtvilla


Also wir haben uns wirklich laaaaaaaaaaaaaaange mit dem Grundriss beschäftigt und da ist es erst mal auch gut zu lesen, dass es jemandem gefällt
Also...
Die Einkürzung des Flures ist eine gute Anregung. Wobei dann wohl eine Türüberflüssig wird, da sie mM so nah aneinander keinen Sinn machen. Der Mehrgewinn an Platz istallerdings zu bedenken. Wobei wir ja auch überlegen die Tearssen-Ausparung weg zu lassen, da das eine Zimmerecke ist, wo man auch Kinder mit Spieldecke lassen kann. Meinung?
Die Technik soll im Dachboden verschwinden.
Arbeitsplatte/Schrankwand werden bei der späteren genauen Planung genau bedacht werden, da der Hauswirtschaftsraum für uns mit der wichtigste Raum ohne Keller ist.
Die Sofa-Wand ist noch nicht genau bemessen. Wird wohl um die 3m sein, wenn ich mir das im Entwurf mit Lineal ansehe. Aber sehr guter Hinweis das wir diese Thema mit dem Planer noch mal besprechen
Das Bad wird in der Endplanung wohl nach Norden etwas größer werden, da uns die Umkleide und das Schlafzimmer ein ticken zu groß sind. Badewanne und Waschbecken werden aber sowieso noch tauschen, dann ist dort auch schon etwas mehr Platz.
Haus mit Flachdach? Da hat sich der Fehlerteufel eingeschlichen und die Aussenzeichnungen wurden aufgrund der Größe nicht hochgeladen. Hole ich hiermit nach! Es ist eine Stadtvilla
Hallo BeHaEIJa
Vielen Dank für deine Rückmeldung!
Variante 1 gefällt uns auch deutlich besser.
2 Eingänge zum Bad Ja, dass ist wirklich so eine Sache, wenn die Kinder dann größer sind. Der Komfort für die ersten 10 Jahre ist aber auch nicht zu verachten. Wir möchten etwas weniger Staufläche im Bad stellen und den Handtuch- Vorrat ect. in der Ankleide verstauen.
Ein Bad bei 5 Personen Auch hier einen wunden Punkt getroffen. Viel diskutiert und überlegt. Am Ende haben wir uns dann gefragt, wie es unsere Eltern eigentlich früher gemacht haben. 2 Bäder sind eben eine Luxuserscheinung der "Neuzeit", die bestimmt schön und angenehm ist, aber eben auch einfach ein wenig Luxus ist. Wenn es der Platz unten hergibt, würden wir allerdings schon eine Dusche unten mitplanen, aber nicht zum Nachteil von wichtigem Wohnplatz.
Maße sind in einem Vorentwurf des Planers nicht vorgesehen. Die würden wir noch mal nachreichen.
Nochmal vielen Danke!
Vielen Dank für deine Rückmeldung!
Variante 1 gefällt uns auch deutlich besser.
2 Eingänge zum Bad Ja, dass ist wirklich so eine Sache, wenn die Kinder dann größer sind. Der Komfort für die ersten 10 Jahre ist aber auch nicht zu verachten. Wir möchten etwas weniger Staufläche im Bad stellen und den Handtuch- Vorrat ect. in der Ankleide verstauen.
Ein Bad bei 5 Personen Auch hier einen wunden Punkt getroffen. Viel diskutiert und überlegt. Am Ende haben wir uns dann gefragt, wie es unsere Eltern eigentlich früher gemacht haben. 2 Bäder sind eben eine Luxuserscheinung der "Neuzeit", die bestimmt schön und angenehm ist, aber eben auch einfach ein wenig Luxus ist. Wenn es der Platz unten hergibt, würden wir allerdings schon eine Dusche unten mitplanen, aber nicht zum Nachteil von wichtigem Wohnplatz.
Maße sind in einem Vorentwurf des Planers nicht vorgesehen. Die würden wir noch mal nachreichen.
Nochmal vielen Danke!
Hmm, Ankleide zu groß? Vorm Fenster könnt ihr ja auch keine hohen Schränke stellen. Also, ich finde die Ankleide/Schrankraum nicht zu groß. Und würde das Fenster dort auch eher mittig setzen, dann kann man hohe Schränke planunten und planoben stellen.
Bedenkt, ihr habt keinen Keller und Dachgeschoss wohl eher auch nicht. Saisongarderobe usw.
Ich würde überlegen, Waschmaschine/Trockner evtl. planunten unter das Fenster im Flur einzuplanen. Das kann ja auch eingebaut werden. Und dafür den kleinen Abstellraum und Bad so aufteilen, dass zumindest ein zweites WC entsteht (morgens bestimmt manchmal sinnvoll bei 5 Leuten, dann muss man nicht im Schlafanzug nach unten gehen), evtl. sogar noch so, dass doch ein zweites Minibad entstehen kann. Wenn bei den Kindern Mädchen dabei sind, die dann mal ins Teenageralter kommen, seid ihr da bestimmt dankbar . Oder der erste Partnerbesuch der Kinder mit übernachtet, dann kann man die Vereinbarung treffen, dass da dann immer das Minibad genutzt wird.
EG-Variante 1 gefällt mir auch besser, überlegt aber genau, ob ihr unter der Treppe nicht z. B. Einbauten für Schuhe etc. vorseht. Denn für 5 Leute plus möglichen Besuch erscheint mir die Garderobe auch nicht so üppig.
Bedenkt, ihr habt keinen Keller und Dachgeschoss wohl eher auch nicht. Saisongarderobe usw.
Ich würde überlegen, Waschmaschine/Trockner evtl. planunten unter das Fenster im Flur einzuplanen. Das kann ja auch eingebaut werden. Und dafür den kleinen Abstellraum und Bad so aufteilen, dass zumindest ein zweites WC entsteht (morgens bestimmt manchmal sinnvoll bei 5 Leuten, dann muss man nicht im Schlafanzug nach unten gehen), evtl. sogar noch so, dass doch ein zweites Minibad entstehen kann. Wenn bei den Kindern Mädchen dabei sind, die dann mal ins Teenageralter kommen, seid ihr da bestimmt dankbar . Oder der erste Partnerbesuch der Kinder mit übernachtet, dann kann man die Vereinbarung treffen, dass da dann immer das Minibad genutzt wird.
EG-Variante 1 gefällt mir auch besser, überlegt aber genau, ob ihr unter der Treppe nicht z. B. Einbauten für Schuhe etc. vorseht. Denn für 5 Leute plus möglichen Besuch erscheint mir die Garderobe auch nicht so üppig.
Ähnliche Themen