modernes Bauhaus, viel Glas, 170 qm EG/OG, derzeit in Phase3

4,90 Stern(e) 14 Votes
Zuletzt aktualisiert 19.11.2025
Sie befinden sich auf der Seite 2 der Diskussion zum Thema: modernes Bauhaus, viel Glas, 170 qm EG/OG, derzeit in Phase3
>> Zum 1. Beitrag <<

rick2018

rick2018

Bei §34 sehe ich Komplikationen in der Genehmigung.
Prinzipiell finde ich die Außenansicht nicht schlecht. Über den Grundriss dürfen gerne die Spezialisten urteilen.
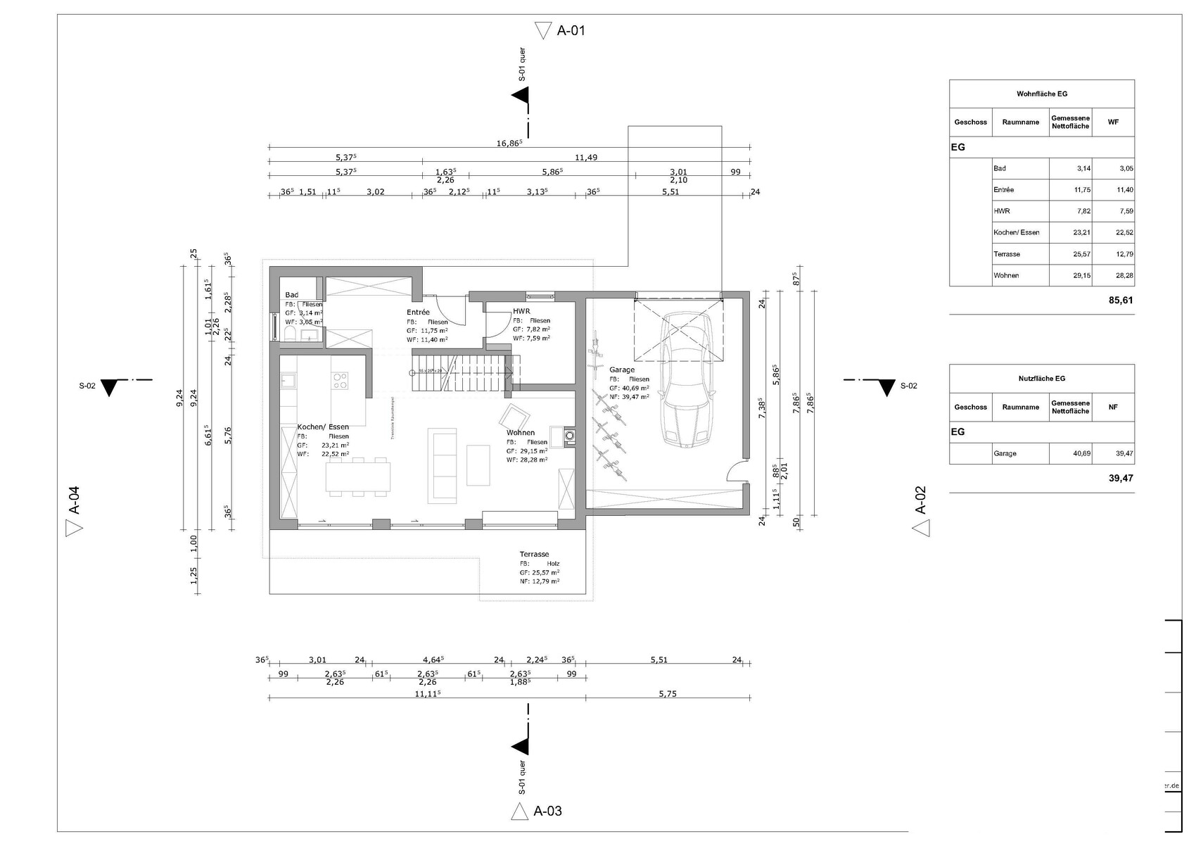
Je nach Ausführung sind die Baukosten zu gering geschätzt. Ohne Kontrollierte-Wohnraumlüftung würde ich heute nicht mehr bauen.
Von Bauhaus würde ich aber noch nicht sprechen. Kubistisch mit Flachdach trifft es eher.
 
Y

ypg

Zum Entwurf: im Ansatz hat mir das auf den ersten Blick gefallen.
Aber die Küche wird mega dunkel, und wenn Besuch da ist, kommt man gar nicht mehr problemlos in die Küchennische. Zu zweit dort hantieren wird auch nicht gerade einfach. Wo steht den der Kühlschrank und der Ofen?
Der Ablauf von so einigen Tageswerk-To-Do‘s sehe ich hier recht kompliziert und nicht rund. Nicht annähernd rund.
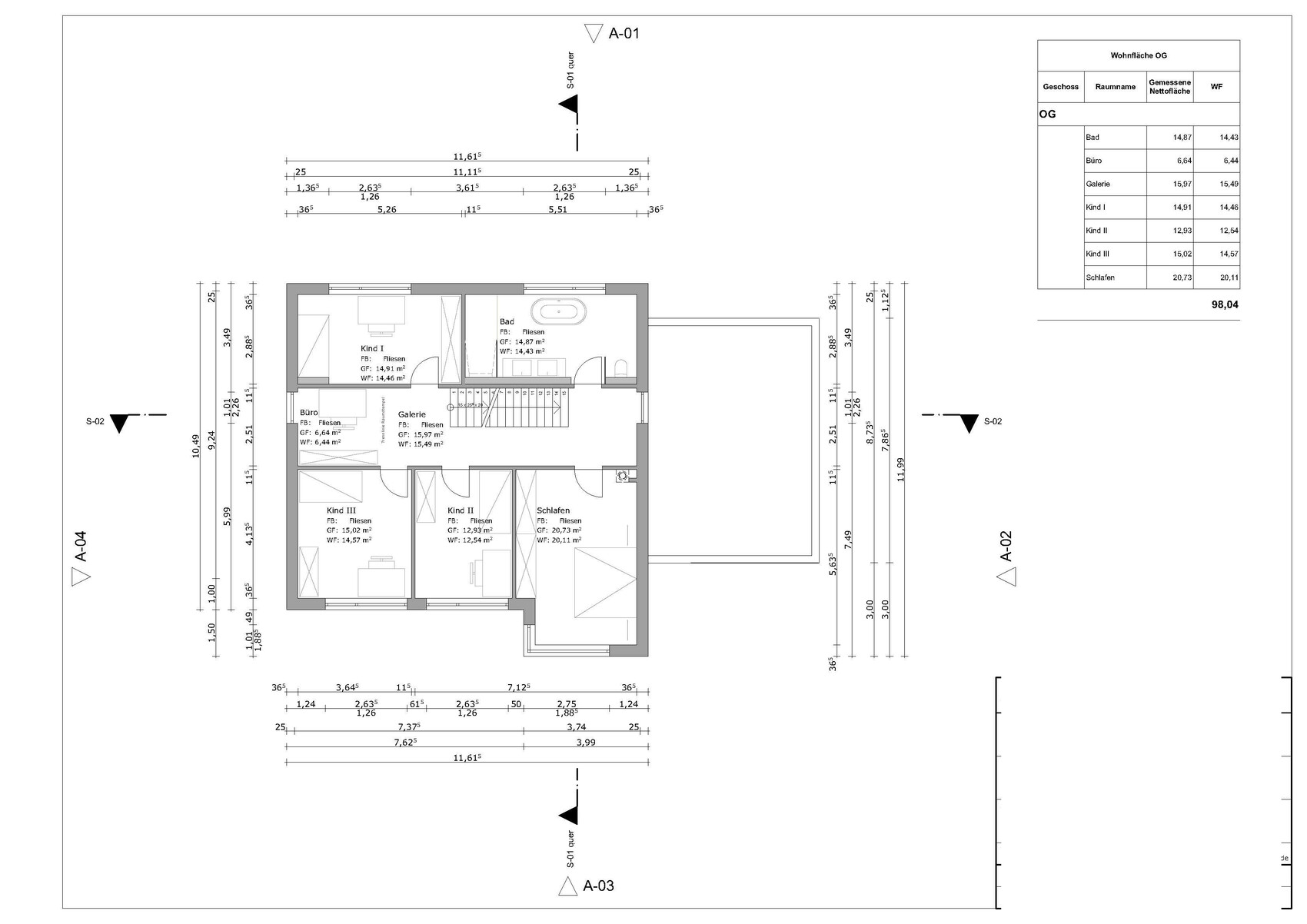
Die Treppe sieht mir sehr steil bzw kurz aus.
Grundsätzlich fehlt jeglicher Abstellraum. Die knappen 7qm reichen für ein regal mit Werkzeug und Glühbirnen und Putzkram.
Ich sehe keinen Platz für Wäschetrocknung für Pflegeleichte Wäsche, keine Getränkekisten, Dekokrams, Putzeimer, gelben Sack und Bügelbrett. (Alles Platzhalter für so vieles)
Der Fragebogen ist leider nicht ausgefüllt hinsichtlich Personenanzahl und Vorlieben, Bedürfnisse. Man sieht einen IST-Zustand, aber kennt keinen SOLL-Zustand.
Da ja alles in Beiträgen angepinnt ist, spare ich mir Links und weitere Erklärungen.
 
B

Bookstar

An sich ganz gut, aber alles viel zu klein. 170m2 und Bauhaus passt nicht. Denke 50m2 mehr und alles würde deutlich lockerer werden.
 
L

Lote1971

zuerst mal die Grundrisse etwas schärfer

Büro im Flur ist der maximale Störfaktor in der Videokonferenz,
wieviel Personen seid ihr denn ?
Wir sind insg 5, 2 Erw, 3 Ki

Mit "Entwurfsphase 3" meinst Du die Leistungsphase 3 der HOAI, also daß Ihr bereits vor der Genehmigungsplanung steht ?
Ja

Nur als Detail-Rückfrage am Rande: sehe ich da als Terrassentüren Parallelschiebekipptüren dargestellt ?
Nein, nur zum Schieben

in eine gewachsene Siedlung so einen Klotz zu planen,
rechnet auch mit einer Ablehnung aus dem Amt, passt nicht ins Gebiet
Wir haben uns inspirieren (siehe Anhang) lassen, und dieser Entwurf gefiel uns sehr:

Und: Wenn alle bauen, wie im Umfeld hier aus den den 30iger Jahren, dann hätten wir kaum moderne Gebäude:

Und Baukosten sehe ich als zu niedrig angesetzt an...Innentüren zu günstig und Fenster auch ..hast du dafür konkrete Angebote vorliegen und auch für die Resopalverkleidung?.
Unser Planer hat hier seine Erfahrungswerte aktueller Projekte eingebracht.

Grundriss EG: Küche, Essen, Wohnen, Bad, Garage und Terrasse.


Grundriss der oberen Etage: Bad, Büro, Galerie, Schlafen, Kind I-III, Treppe.


Moderner zweistöckiger, weißer Neubau mit großen Fenstern, Terrasse und Gartenmöbeln.
 
Zuletzt bearbeitet:
L

Lote1971

Zum Entwurf: im Ansatz hat mir das auf den ersten Blick gefallen.
Aber die Küche wird mega dunkel, und wenn Besuch da ist, kommt man gar nicht mehr problemlos in die Küchennische. Zu zweit dort hantieren wird auch nicht gerade einfach. Wo steht den der Kühlschrank und der Ofen?
Der Ablauf von so einigen Tageswerk-To-Do‘s sehe ich hier recht kompliziert und nicht rund. Nicht annähernd rund.
Danke, hier denke ich nochmal drüber nach.

Grundsätzlich fehlt jeglicher Abstellraum. Die knappen 7qm reichen für ein Regal mit Werkzeug und Glühbirnen und Putzkram.
Ich sehe keinen Platz für Wäschetrocknung für Pflegeleichte Wäsche, keine Getränkekisten, Dekokrams, Putzeimer, gelben Sack und Bügelbrett. (Alles Platzhalter für so vieles)
Soll alles in die große Garage ;-)
 
Zuletzt aktualisiert 19.11.2025
Im Forum Grundrissplanung / Grundstücksplanung gibt es 2536 Themen mit insgesamt 87975 Beiträgen


Ähnliche Themen zu modernes Bauhaus, viel Glas, 170 qm EG/OG, derzeit in Phase3
Nr.ErgebnisBeiträge
1Grundriss von Architekten für Einfamilienhaus 240m2 Bauhaus - Seite 335
2Bauhaus-Villa aus Beton mit Kerndämmung - Erfahrungen - Seite 2451658
3Bauhaus: 2 Vollgeschosse + Staffelgeschoss (ca 200qm) - Optimierung 31
4Entwurf Grundriss: Planung Erdgeschoss - Seite 227
5Erster Entwurf Grundriss Einfamilienhaus (ca. 200qm) - Bitte um Feedback - Seite 746
6auf welchen dieser Grundrisse können wir weiter aufbauen? - Seite 31287
7Grundriss Fails Sammelthread - Grundrisse die keiner wollte 25
8Einfamilienhaus, ~160m², Bauhausstil; Erster Entwurf nach unseren Wünschen - Seite 3420
9Grundriss Entwurf Neubau Einfamilienhaus - Grundstück 610qm - Meinungen erwünscht - Seite 750
10Grundrissentwurf für 220m² Einfamilienhaus - Seite 47488
11Stadtvilla mit ca. 200qm - ohne Keller. Bitte um Feedback - Seite 550
12Planung Einfamilienhaus in Hanglage - Grundstück optimal ausnutzen - Seite 323
13Klassisches Einfamilienhaus 200qm (plus Keller) Tipps? - Seite 332
14Grundriss Einfamilienhaus 110m² - EG + OG - erster Entwurf Einteilung Räume - Seite 10153
15Passende Grundrisse zu all unseren Anforderungen - Seite 466
16Zum Notartermin verschiedene Grundrisse erhalten 10
17Welcher der Zwei Grundrisse ist besser? 20
18Beispiel-Grundrisse für lange, schmale Häuser? 18
19Grundriss erster Entwurf - Meinungen erwünscht 21
20Entwurf Grundriss Bungalow Meinungen 22

Oben