ᐅ Kleines Einfamilienhaus mit ca. 140m² - Verbesserungsvorschläge?
Erstellt am: 02.10.19 17:00
M
mambo1988
Hallo zusammen,
unsere Planungen für unser kleines Häuschen sind schon fortgeschritten, sodass wir glauben einen guten Zeitpunkt für euer Feedback getroffen zu haben.
Bebauungsplan/Einschränkungen
Größe des Grundstücks: 355m²
Hang: nein
Grundflächenzahl: -
Geschossflächenzahl: -
Baufenster, Baulinie und –grenze: -
Randbebauung: -
Geschossigkeit: 2
Dachform: Satteldach oder Walmdach
Ausrichtung: S/O
Maximale Höhen/Begrenzungen: -
Sonstiges: -
Anforderungen der Bauherren
Stilrichtung, Dachform, Gebäudetyp: Stadtvilla
Keller, Geschosse: kein Keller, EG, OG, Spitzboden als Lagerraum
Anzahl der Personen: 4, 2 Kinder
Raumbedarf im EG, OG: EG Wohnzimmer, Küche, Büro, Gäste-WC, Technik-+Abstellraum; OG 2 x Kinderzimmer, Eltern, Bad.
Büro: Familiennutzung oder Homeoffice: Homeoffice
Schlafgäste pro Jahr: 5 (Wohnzimmer)
offene oder geschlossene Architektur: relativ geschlossen
konservativ oder moderne Bauweise: modern
offene Küche, Kochinsel: ja; Kochinsel bis zur Wand unter dem Fenster
Anzahl Essplätze: min 6
Kamin: nein
Musik/Stereowand: Ja, an Treppe
Balkon, Dachterrasse: nein
Garage, Carport: Garage mit Stauraum 3x9m
Nutzgarten, Treibhaus: nein
Hausentwurf
Von wem stammt die Planung: Bauzeichner und uns
Was gefällt besonders? Warum?: Das offene Wohnzimmer und ansonsten den hoffentlich sehr gut genutzten Platz für das relativ kleine Haus
Was gefällt nicht? Warum?: Wir haben Sorge, dass der Technik- bzw. Abstellraum, wo auch die Wäsche gewaschen werden soll zu klein ist
Preisschätzung lt Architekt/Planer: 300T€ inkl. Garage
Persönliches Preislimit fürs Haus, inkl. Ausstattung: 310T€ alle gewünschten Ausstattungen sind im Hauspreis enthalten.
favorisierte Heiztechnik: Luft-Wasser-Wärmepumpe
Wenn Ihr verzichten müsst, auf welche Details/Ausbauten
-könnt Ihr verzichten: Ankleidezimmer
-könnt Ihr nicht verzichten: Büro
Warum ist der Entwurf so geworden, wie er jetzt ist? ZB
Entsprechende/Welche Wünsche wurden vom Architekten umgesetzt?: Schlafzimmer Eltern im Norden, Wohnzimmer im Süden
Was macht ihn in Euren Augen besonders gut oder schlecht?:
Gut: Platz hoffentlich gut genutzt. Unter anderem mit der gemauerten Treppe
Schlecht: Schlecht finden wir eigentlich nichts. Wie gesagt nur die Größe des Technikraums könnte knapp bemessen sein und das Sofa im Wohnzimmer könnte etwas schmal sein.
Was ist die wichtigste/grundlegende Frage zum Grundriss in 130 Zeichen zusammengefasst?
Was würdet Ihr anders machen bzw. verbessern? Haben wir etwas übersehen was später zu Problemen führen könnte?
Reicht die Größe des Technikraums aus? Luft-Wasser-Wärmepumpe + Warmwasser im Kombigerät, Waschmaschine, Trockner auf Waschmaschine, Wäscheständer
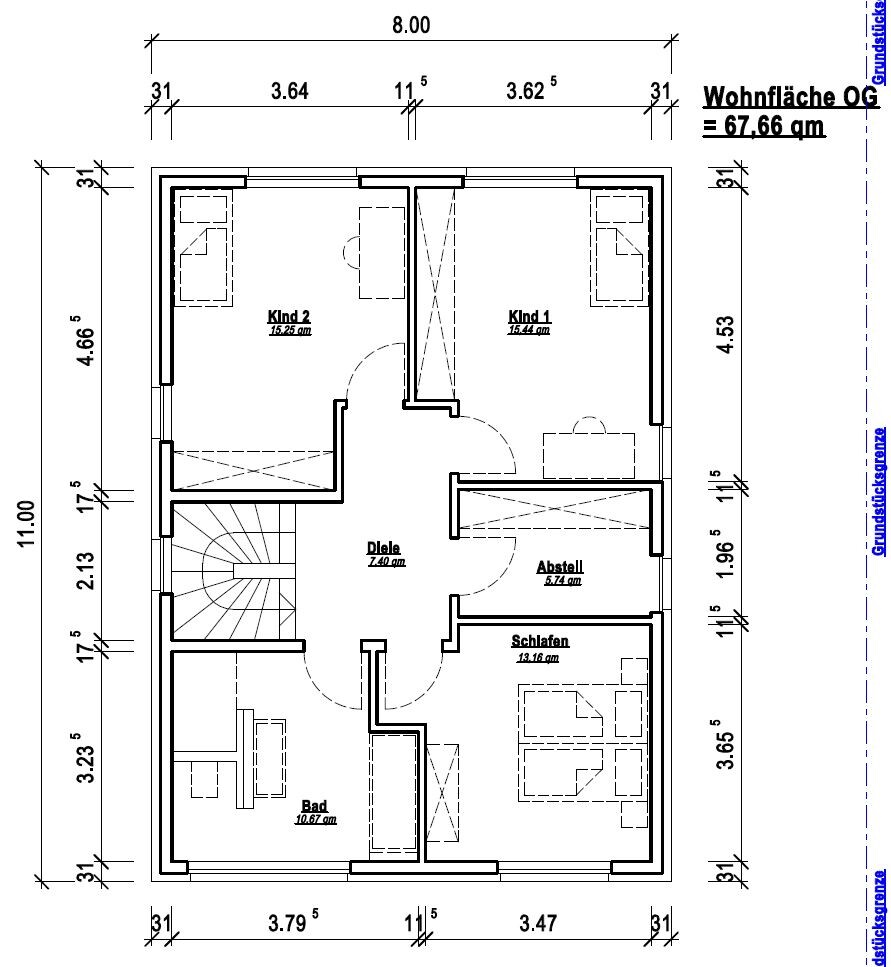
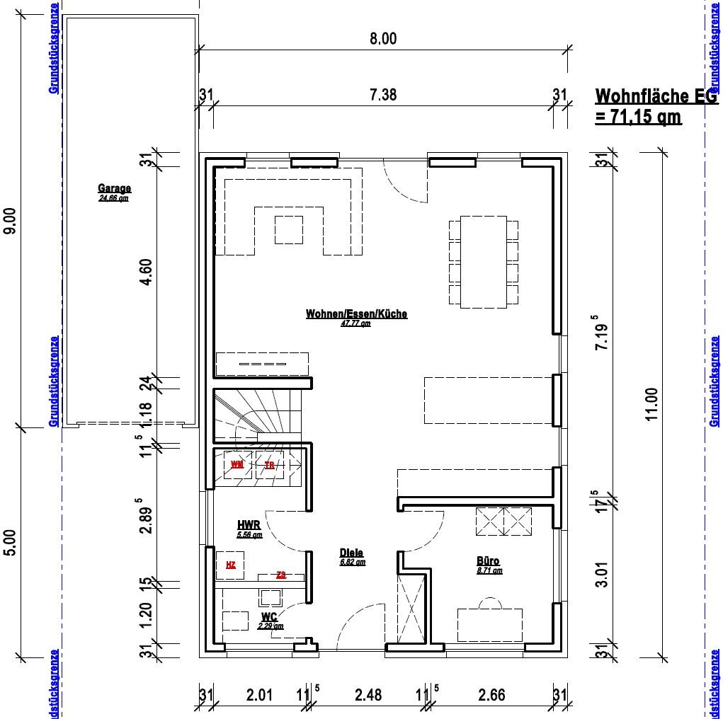
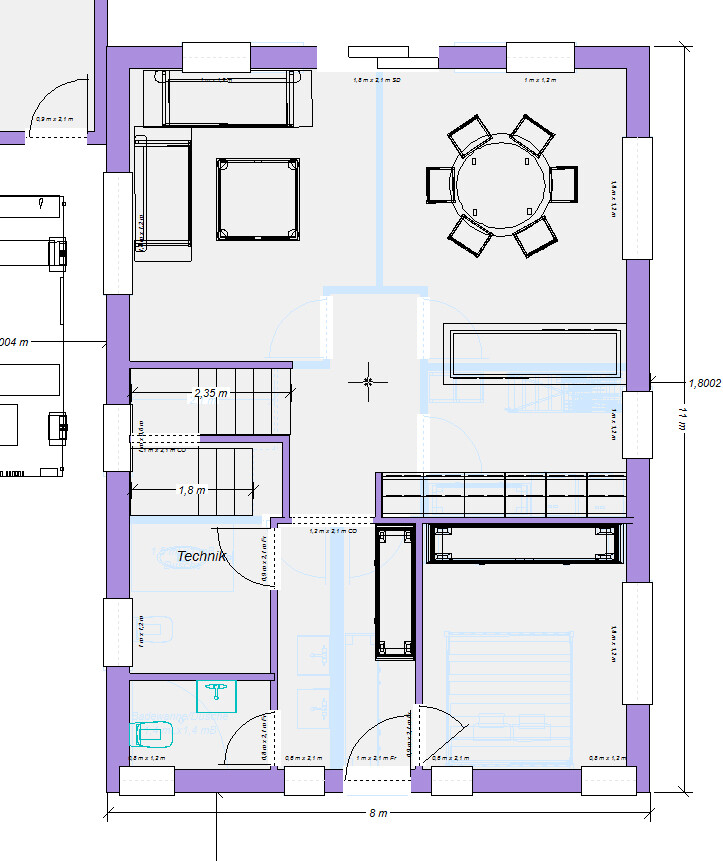
Zur Erklärung der Bilder:
Einmal der Grundriss mit Maßen und einmal der Grundriss mit platzierten Möbeln. Hinter dem Sofa soll etwas Platz sein, damit die Kinder dort mal etwas liegen lassen können. (Und etwas mehr Platz für Surround-Lautsprecher. )
Dann kommt die Ausrichtung des Hauses und die Aufteilung des Grundstücks.
Ich hoffe, dass alles soweit verständlich ist. Sonst gerne Fragen.
Vielen Dank!





unsere Planungen für unser kleines Häuschen sind schon fortgeschritten, sodass wir glauben einen guten Zeitpunkt für euer Feedback getroffen zu haben.
Bebauungsplan/Einschränkungen
Größe des Grundstücks: 355m²
Hang: nein
Grundflächenzahl: -
Geschossflächenzahl: -
Baufenster, Baulinie und –grenze: -
Randbebauung: -
Geschossigkeit: 2
Dachform: Satteldach oder Walmdach
Ausrichtung: S/O
Maximale Höhen/Begrenzungen: -
Sonstiges: -
Anforderungen der Bauherren
Stilrichtung, Dachform, Gebäudetyp: Stadtvilla
Keller, Geschosse: kein Keller, EG, OG, Spitzboden als Lagerraum
Anzahl der Personen: 4, 2 Kinder
Raumbedarf im EG, OG: EG Wohnzimmer, Küche, Büro, Gäste-WC, Technik-+Abstellraum; OG 2 x Kinderzimmer, Eltern, Bad.
Büro: Familiennutzung oder Homeoffice: Homeoffice
Schlafgäste pro Jahr: 5 (Wohnzimmer)
offene oder geschlossene Architektur: relativ geschlossen
konservativ oder moderne Bauweise: modern
offene Küche, Kochinsel: ja; Kochinsel bis zur Wand unter dem Fenster
Anzahl Essplätze: min 6
Kamin: nein
Musik/Stereowand: Ja, an Treppe
Balkon, Dachterrasse: nein
Garage, Carport: Garage mit Stauraum 3x9m
Nutzgarten, Treibhaus: nein
Hausentwurf
Von wem stammt die Planung: Bauzeichner und uns
Was gefällt besonders? Warum?: Das offene Wohnzimmer und ansonsten den hoffentlich sehr gut genutzten Platz für das relativ kleine Haus
Was gefällt nicht? Warum?: Wir haben Sorge, dass der Technik- bzw. Abstellraum, wo auch die Wäsche gewaschen werden soll zu klein ist
Preisschätzung lt Architekt/Planer: 300T€ inkl. Garage
Persönliches Preislimit fürs Haus, inkl. Ausstattung: 310T€ alle gewünschten Ausstattungen sind im Hauspreis enthalten.
favorisierte Heiztechnik: Luft-Wasser-Wärmepumpe
Wenn Ihr verzichten müsst, auf welche Details/Ausbauten
-könnt Ihr verzichten: Ankleidezimmer
-könnt Ihr nicht verzichten: Büro
Warum ist der Entwurf so geworden, wie er jetzt ist? ZB
Entsprechende/Welche Wünsche wurden vom Architekten umgesetzt?: Schlafzimmer Eltern im Norden, Wohnzimmer im Süden
Was macht ihn in Euren Augen besonders gut oder schlecht?:
Gut: Platz hoffentlich gut genutzt. Unter anderem mit der gemauerten Treppe
Schlecht: Schlecht finden wir eigentlich nichts. Wie gesagt nur die Größe des Technikraums könnte knapp bemessen sein und das Sofa im Wohnzimmer könnte etwas schmal sein.
Was ist die wichtigste/grundlegende Frage zum Grundriss in 130 Zeichen zusammengefasst?
Was würdet Ihr anders machen bzw. verbessern? Haben wir etwas übersehen was später zu Problemen führen könnte?
Reicht die Größe des Technikraums aus? Luft-Wasser-Wärmepumpe + Warmwasser im Kombigerät, Waschmaschine, Trockner auf Waschmaschine, Wäscheständer
Zur Erklärung der Bilder:
Einmal der Grundriss mit Maßen und einmal der Grundriss mit platzierten Möbeln. Hinter dem Sofa soll etwas Platz sein, damit die Kinder dort mal etwas liegen lassen können. (Und etwas mehr Platz für Surround-Lautsprecher. )
Dann kommt die Ausrichtung des Hauses und die Aufteilung des Grundstücks.
Ich hoffe, dass alles soweit verständlich ist. Sonst gerne Fragen.
Vielen Dank!
ypg schrieb:
Ich möchte ja kein Spielverderber sein, aber bei einer Breite von 3,62 RBM da oben zw Außenwand und Treppe (Bad/Schlafzimmer) wird das mit der Möblierung des neuen Schlafzimmer nichts, wenn man da zum Ehebett noch einen Schrank packt und damit rechnet, dass man noch gut und gern aus dem Bett aussteigen kann.Verstehe auch nicht, warum der TE das Bett nicht dreht. Wegen des Fensters der Frontansicht? Wenn die jetzt der Brüller wäre, könnt ich das verstehen, aber bislang seh ich da nur wildes Memory.mambo1988 schrieb:
Danke für die Anmerkung. Die Wände sollen 11,5cm Dick sein. Wie viel verliert man denn dann noch durch Putz usw?
Wir haben den Grundriss mal angepasst um 3,75m RBM zu haben. Das sollte für uns ausreichen.
Das Bett ist 1,90m und wir haben mal mit 60cm Platz auf jeder Seite gerechnet. So müsste es doch gut gehen, oder?Durch Putz verlierst du etwa 2 cm pro Wand.60cm sind schon ziemlich knapp. Es geht sicher, aber wir haben mit 80 cm gerechnet.
Mal zum Vergleich, wir haben eine Breite von 3,85m und ich würde da keinen großen Schrank mehr hinstellen neben das Bett. Wir stellen da nur eine Kommmode mit 30 cm Tiefe. Man will sich ja auch nicht am Bett langquetschen im Haus. Dafür ist es ja ein Haus, das sollte alles schon etwas großzügiger sein, wenn man schon mal die Möglichkeit hat.
Mal so zwischendurch eine Anmerkung wegen des Platzes neben dem Bett. Man kann normalerweise ja schon noch gut in das Bett kommen, aber spätestens wenn du unter dem Bett saugst, wirst du merken, dass es einfach nur nervt, wenn der Platz dafür nicht ausreicht. Meine persönliche Erfahrung (wir haben 80cm und ich hätte gern mehr), wollte ich nur mal so weitergegeben haben
M
mambo198807.10.19 11:00Danke noch mal für die Anmerkungen!
Unser nächster Schritt ist jetzt erst mal mit dem Architekten zu sprechen. Das sollte in den nächsten 2 Wochen klappen. Ich melde mich dann wieder.
Unser nächster Schritt ist jetzt erst mal mit dem Architekten zu sprechen. Das sollte in den nächsten 2 Wochen klappen. Ich melde mich dann wieder.
M
mambo198826.11.19 18:51Ähnliche Themen