ᐅ Kleines Einfamilienhaus mit ca. 140m² - Verbesserungsvorschläge?
Erstellt am: 02.10.19 17:00
M
mambo1988
Hallo zusammen,
unsere Planungen für unser kleines Häuschen sind schon fortgeschritten, sodass wir glauben einen guten Zeitpunkt für euer Feedback getroffen zu haben.
Bebauungsplan/Einschränkungen
Größe des Grundstücks: 355m²
Hang: nein
Grundflächenzahl: -
Geschossflächenzahl: -
Baufenster, Baulinie und –grenze: -
Randbebauung: -
Geschossigkeit: 2
Dachform: Satteldach oder Walmdach
Ausrichtung: S/O
Maximale Höhen/Begrenzungen: -
Sonstiges: -
Anforderungen der Bauherren
Stilrichtung, Dachform, Gebäudetyp: Stadtvilla
Keller, Geschosse: kein Keller, EG, OG, Spitzboden als Lagerraum
Anzahl der Personen: 4, 2 Kinder
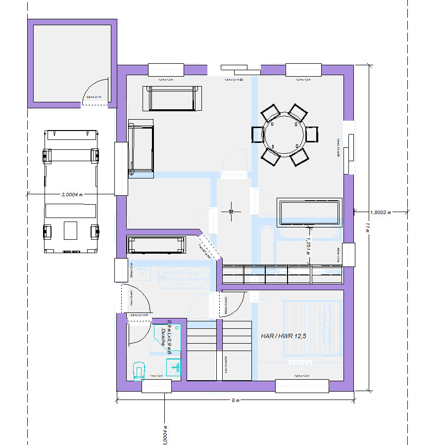
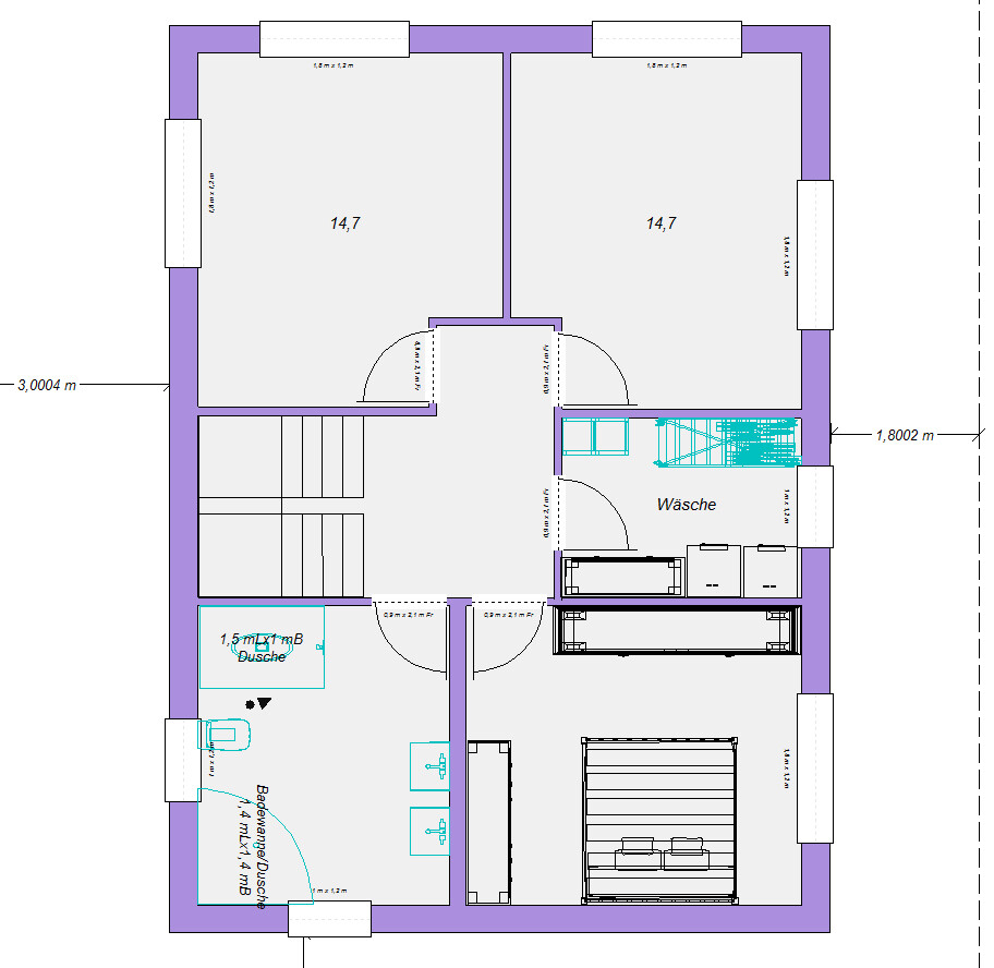
Raumbedarf im EG, OG: EG Wohnzimmer, Küche, Büro, Gäste-WC, Technik-+Abstellraum; OG 2 x Kinderzimmer, Eltern, Bad.
Büro: Familiennutzung oder Homeoffice: Homeoffice
Schlafgäste pro Jahr: 5 (Wohnzimmer)
offene oder geschlossene Architektur: relativ geschlossen
konservativ oder moderne Bauweise: modern
offene Küche, Kochinsel: ja; Kochinsel bis zur Wand unter dem Fenster
Anzahl Essplätze: min 6
Kamin: nein
Musik/Stereowand: Ja, an Treppe
Balkon, Dachterrasse: nein
Garage, Carport: Garage mit Stauraum 3x9m
Nutzgarten, Treibhaus: nein
Hausentwurf
Von wem stammt die Planung: Bauzeichner und uns
Was gefällt besonders? Warum?: Das offene Wohnzimmer und ansonsten den hoffentlich sehr gut genutzten Platz für das relativ kleine Haus
Was gefällt nicht? Warum?: Wir haben Sorge, dass der Technik- bzw. Abstellraum, wo auch die Wäsche gewaschen werden soll zu klein ist
Preisschätzung lt Architekt/Planer: 300T€ inkl. Garage
Persönliches Preislimit fürs Haus, inkl. Ausstattung: 310T€ alle gewünschten Ausstattungen sind im Hauspreis enthalten.
favorisierte Heiztechnik: Luft-Wasser-Wärmepumpe
Wenn Ihr verzichten müsst, auf welche Details/Ausbauten
-könnt Ihr verzichten: Ankleidezimmer
-könnt Ihr nicht verzichten: Büro
Warum ist der Entwurf so geworden, wie er jetzt ist? ZB
Entsprechende/Welche Wünsche wurden vom Architekten umgesetzt?: Schlafzimmer Eltern im Norden, Wohnzimmer im Süden
Was macht ihn in Euren Augen besonders gut oder schlecht?:
Gut: Platz hoffentlich gut genutzt. Unter anderem mit der gemauerten Treppe
Schlecht: Schlecht finden wir eigentlich nichts. Wie gesagt nur die Größe des Technikraums könnte knapp bemessen sein und das Sofa im Wohnzimmer könnte etwas schmal sein.
Was ist die wichtigste/grundlegende Frage zum Grundriss in 130 Zeichen zusammengefasst?
Was würdet Ihr anders machen bzw. verbessern? Haben wir etwas übersehen was später zu Problemen führen könnte?
Reicht die Größe des Technikraums aus? Luft-Wasser-Wärmepumpe + Warmwasser im Kombigerät, Waschmaschine, Trockner auf Waschmaschine, Wäscheständer
Zur Erklärung der Bilder:
Einmal der Grundriss mit Maßen und einmal der Grundriss mit platzierten Möbeln. Hinter dem Sofa soll etwas Platz sein, damit die Kinder dort mal etwas liegen lassen können. (Und etwas mehr Platz für Surround-Lautsprecher. )
Dann kommt die Ausrichtung des Hauses und die Aufteilung des Grundstücks.
Ich hoffe, dass alles soweit verständlich ist. Sonst gerne Fragen.
Vielen Dank!





unsere Planungen für unser kleines Häuschen sind schon fortgeschritten, sodass wir glauben einen guten Zeitpunkt für euer Feedback getroffen zu haben.
Bebauungsplan/Einschränkungen
Größe des Grundstücks: 355m²
Hang: nein
Grundflächenzahl: -
Geschossflächenzahl: -
Baufenster, Baulinie und –grenze: -
Randbebauung: -
Geschossigkeit: 2
Dachform: Satteldach oder Walmdach
Ausrichtung: S/O
Maximale Höhen/Begrenzungen: -
Sonstiges: -
Anforderungen der Bauherren
Stilrichtung, Dachform, Gebäudetyp: Stadtvilla
Keller, Geschosse: kein Keller, EG, OG, Spitzboden als Lagerraum
Anzahl der Personen: 4, 2 Kinder
Raumbedarf im EG, OG: EG Wohnzimmer, Küche, Büro, Gäste-WC, Technik-+Abstellraum; OG 2 x Kinderzimmer, Eltern, Bad.
Büro: Familiennutzung oder Homeoffice: Homeoffice
Schlafgäste pro Jahr: 5 (Wohnzimmer)
offene oder geschlossene Architektur: relativ geschlossen
konservativ oder moderne Bauweise: modern
offene Küche, Kochinsel: ja; Kochinsel bis zur Wand unter dem Fenster
Anzahl Essplätze: min 6
Kamin: nein
Musik/Stereowand: Ja, an Treppe
Balkon, Dachterrasse: nein
Garage, Carport: Garage mit Stauraum 3x9m
Nutzgarten, Treibhaus: nein
Hausentwurf
Von wem stammt die Planung: Bauzeichner und uns
Was gefällt besonders? Warum?: Das offene Wohnzimmer und ansonsten den hoffentlich sehr gut genutzten Platz für das relativ kleine Haus
Was gefällt nicht? Warum?: Wir haben Sorge, dass der Technik- bzw. Abstellraum, wo auch die Wäsche gewaschen werden soll zu klein ist
Preisschätzung lt Architekt/Planer: 300T€ inkl. Garage
Persönliches Preislimit fürs Haus, inkl. Ausstattung: 310T€ alle gewünschten Ausstattungen sind im Hauspreis enthalten.
favorisierte Heiztechnik: Luft-Wasser-Wärmepumpe
Wenn Ihr verzichten müsst, auf welche Details/Ausbauten
-könnt Ihr verzichten: Ankleidezimmer
-könnt Ihr nicht verzichten: Büro
Warum ist der Entwurf so geworden, wie er jetzt ist? ZB
Entsprechende/Welche Wünsche wurden vom Architekten umgesetzt?: Schlafzimmer Eltern im Norden, Wohnzimmer im Süden
Was macht ihn in Euren Augen besonders gut oder schlecht?:
Gut: Platz hoffentlich gut genutzt. Unter anderem mit der gemauerten Treppe
Schlecht: Schlecht finden wir eigentlich nichts. Wie gesagt nur die Größe des Technikraums könnte knapp bemessen sein und das Sofa im Wohnzimmer könnte etwas schmal sein.
Was ist die wichtigste/grundlegende Frage zum Grundriss in 130 Zeichen zusammengefasst?
Was würdet Ihr anders machen bzw. verbessern? Haben wir etwas übersehen was später zu Problemen führen könnte?
Reicht die Größe des Technikraums aus? Luft-Wasser-Wärmepumpe + Warmwasser im Kombigerät, Waschmaschine, Trockner auf Waschmaschine, Wäscheständer
Zur Erklärung der Bilder:
Einmal der Grundriss mit Maßen und einmal der Grundriss mit platzierten Möbeln. Hinter dem Sofa soll etwas Platz sein, damit die Kinder dort mal etwas liegen lassen können. (Und etwas mehr Platz für Surround-Lautsprecher. )
Dann kommt die Ausrichtung des Hauses und die Aufteilung des Grundstücks.
Ich hoffe, dass alles soweit verständlich ist. Sonst gerne Fragen.
Vielen Dank!
Bin zwar kein Fan davon, die Waschmaschine ins Bad zu integrieren, aber hier ist das vermutlich die schnellste und einfachste Lösung. Das Bad ist sowieso sehr groß - da ist genug Platz.
Hab mal versucht, das Büro nach oben zu nehmen, aber bei den Maßen und den Wünschen ist das nicht unbedingt eine Verbesserung. Ich werfs trotzdem mal hin.


Hab mal versucht, das Büro nach oben zu nehmen, aber bei den Maßen und den Wünschen ist das nicht unbedingt eine Verbesserung. Ich werfs trotzdem mal hin.
M
mambo198803.10.19 14:02Hallo zusammen,
vielen Dank für die weiteren Ratschläge und vor allem vielen Dank an kaho674 für den Grundriss! Auch eine interessante alternative.
Da finden wir unseren neuen Vorschlag noch etwas besser: (Bilder anbei)
- Trockner und Waschmaschine oben im Bad hinter einer kleinen Wand (nicht Deckenhoch)
- Platz für Wäscheständer im Hauswirtschaftsraum unter der Treppe müsste doch reichen oder? Und dann müsste die restliche Technik doch genug Platz haben?! Es wird lediglich Stromkasten und Luft-Wasser-Wärmepumpe-Kombigerät verbaut. Photovoltaik wissen wir noch nicht.
- Büro verkleinert und anders angeordnet (1 Eckschreibtisch und 1 normaler müssen leider sein)
- Größerer Flur für Garderobe
- Bett gedreht
Was meint ihr? Mit Abmessungen bekomme ich den Grundriss leider nicht hin, ich hoffe es geht so auch.


vielen Dank für die weiteren Ratschläge und vor allem vielen Dank an kaho674 für den Grundriss! Auch eine interessante alternative.
Da finden wir unseren neuen Vorschlag noch etwas besser: (Bilder anbei)
- Trockner und Waschmaschine oben im Bad hinter einer kleinen Wand (nicht Deckenhoch)
- Platz für Wäscheständer im Hauswirtschaftsraum unter der Treppe müsste doch reichen oder? Und dann müsste die restliche Technik doch genug Platz haben?! Es wird lediglich Stromkasten und Luft-Wasser-Wärmepumpe-Kombigerät verbaut. Photovoltaik wissen wir noch nicht.
- Büro verkleinert und anders angeordnet (1 Eckschreibtisch und 1 normaler müssen leider sein)
- Größerer Flur für Garderobe
- Bett gedreht
Was meint ihr? Mit Abmessungen bekomme ich den Grundriss leider nicht hin, ich hoffe es geht so auch.
Schau dir die technischen Daten der Luft-Wasser-Wärmepumpe an wie viel Platz die braucht
Wir haben die LWZ 604 Air, die anderen LWZ oder THZ brauchen ähnlich viel Platz könnte auf Schmatz hinter die Tür passen
Hausanschlüsse unter die Treppe - wenn zulässig
Sicherungskasten ca, 1,4 m hoch 1,2 breit
Wüsste nicht wo der bei euch hinsoll
Genau überprüfen
Gibt hier ab und an Probleme das es nicht passt
Hm es geht so mit WA im Bad. Nur wo kommt die Schmutzwäsche hin? In den Schlafräumen sammeln
Handwäsche im Waschbecken
Wir haben die LWZ 604 Air, die anderen LWZ oder THZ brauchen ähnlich viel Platz könnte auf Schmatz hinter die Tür passen
Hausanschlüsse unter die Treppe - wenn zulässig
Sicherungskasten ca, 1,4 m hoch 1,2 breit
Wüsste nicht wo der bei euch hinsoll
Genau überprüfen
Gibt hier ab und an Probleme das es nicht passt
Hm es geht so mit WA im Bad. Nur wo kommt die Schmutzwäsche hin? In den Schlafräumen sammeln
Handwäsche im Waschbecken
Ich meinte eigentlich, dass Bett mit Kopf nach planunten. Ansonsten ist der Raum nicht breit genug. Schau mal den Platz neben dem Bett planunten an. Das sind ja nur 30cm oder sowas. Das ist wie auf nem Schwebebalken laufen.
Wäschepuff muss auch noch neben die Waschmaschine und bei 4 Leuten nicht zu knapp. Man kann zwar auch noch welche in die Kinderzimmer integrieren und evtl. in die Ankleide aber irgendwo muss auch der Wäschekorb stehen und das Waschmittel. Ich bleibe dabei. Der Hauswirtschaftsraum ist praktisch nicht vorhanden und das bei bei 4 Personen. Ihr werdet ein Leben lang fluchen, dass alles so eng ist und man so nicht arbeiten kann. Am Ende landet die Wäsche samt Ständer im Büro - versprochen.
Noch ein Vorschlag: Bad kleiner, Ankleide streichen, Schrank dafür mit ins Schlafzimmer und dann kleiner Hauswirtschaftsraum nach oben. EG bleibt.

Wäschepuff muss auch noch neben die Waschmaschine und bei 4 Leuten nicht zu knapp. Man kann zwar auch noch welche in die Kinderzimmer integrieren und evtl. in die Ankleide aber irgendwo muss auch der Wäschekorb stehen und das Waschmittel. Ich bleibe dabei. Der Hauswirtschaftsraum ist praktisch nicht vorhanden und das bei bei 4 Personen. Ihr werdet ein Leben lang fluchen, dass alles so eng ist und man so nicht arbeiten kann. Am Ende landet die Wäsche samt Ständer im Büro - versprochen.
Noch ein Vorschlag: Bad kleiner, Ankleide streichen, Schrank dafür mit ins Schlafzimmer und dann kleiner Hauswirtschaftsraum nach oben. EG bleibt.
haydee schrieb:
Hausanschlüsse unter die Treppe - wenn zulässig
Sicherungskasten ca, 1,4 m hoch 1,2 breit
Wüsste nicht wo der bei euch hinsollDann habt ihr euch aber eine ordentliche Installation gegönnt, wenn ihr so einen Kasten bei euch habt. Für eine normale Installation sollten 55cm breit und 110cm hoch auslangen.
Den Vorschlag mit dem kleinen Hauswirtschaftsraum von @kaho674 oben finde ich top. Dadurch habt ihr oben noch einen Abstellraum bzw. Rümpelkammer - das fehlt bei euch halt komplett. Der Hauswirtschaftsraum unten ist zu klein dafür und ich befürchte, dass das Büro ansonsten für sowas geopfert werden würde. Ankleide finde ich ohnehin unnötig, wenn das Schlafzimmer genug Platz hergibt.
Ähnliche Themen