ᐅ Kleines Einfamilienhaus mit ca. 140m² - Verbesserungsvorschläge?
Erstellt am: 02.10.19 17:00
M
mambo1988M
mambo198802.10.19 17:00Hallo zusammen,
unsere Planungen für unser kleines Häuschen sind schon fortgeschritten, sodass wir glauben einen guten Zeitpunkt für euer Feedback getroffen zu haben.
Bebauungsplan/Einschränkungen
Größe des Grundstücks: 355m²
Hang: nein
Grundflächenzahl: -
Geschossflächenzahl: -
Baufenster, Baulinie und –grenze: -
Randbebauung: -
Geschossigkeit: 2
Dachform: Satteldach oder Walmdach
Ausrichtung: S/O
Maximale Höhen/Begrenzungen: -
Sonstiges: -
Anforderungen der Bauherren
Stilrichtung, Dachform, Gebäudetyp: Stadtvilla
Keller, Geschosse: kein Keller, EG, OG, Spitzboden als Lagerraum
Anzahl der Personen: 4, 2 Kinder
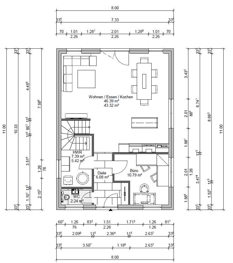
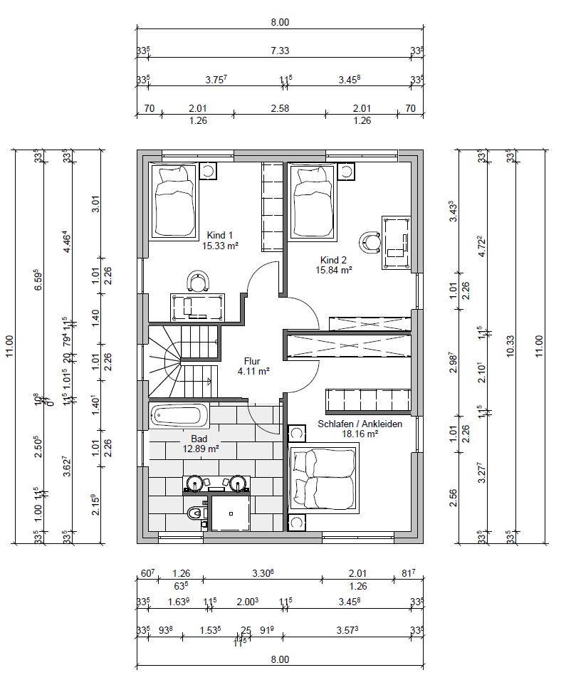
Raumbedarf im EG, OG: EG Wohnzimmer, Küche, Büro, Gäste-WC, Technik-+Abstellraum; OG 2 x Kinderzimmer, Eltern, Bad.
Büro: Familiennutzung oder Homeoffice: Homeoffice
Schlafgäste pro Jahr: 5 (Wohnzimmer)
offene oder geschlossene Architektur: relativ geschlossen
konservativ oder moderne Bauweise: modern
offene Küche, Kochinsel: ja; Kochinsel bis zur Wand unter dem Fenster
Anzahl Essplätze: min 6
Kamin: nein
Musik/Stereowand: Ja, an Treppe
Balkon, Dachterrasse: nein
Garage, Carport: Garage mit Stauraum 3x9m
Nutzgarten, Treibhaus: nein
Hausentwurf
Von wem stammt die Planung: Bauzeichner und uns
Was gefällt besonders? Warum?: Das offene Wohnzimmer und ansonsten den hoffentlich sehr gut genutzten Platz für das relativ kleine Haus
Was gefällt nicht? Warum?: Wir haben Sorge, dass der Technik- bzw. Abstellraum, wo auch die Wäsche gewaschen werden soll zu klein ist
Preisschätzung lt Architekt/Planer: 300T€ inkl. Garage
Persönliches Preislimit fürs Haus, inkl. Ausstattung: 310T€ alle gewünschten Ausstattungen sind im Hauspreis enthalten.
favorisierte Heiztechnik: Luft-Wasser-Wärmepumpe
Wenn Ihr verzichten müsst, auf welche Details/Ausbauten
-könnt Ihr verzichten: Ankleidezimmer
-könnt Ihr nicht verzichten: Büro
Warum ist der Entwurf so geworden, wie er jetzt ist? ZB
Entsprechende/Welche Wünsche wurden vom Architekten umgesetzt?: Schlafzimmer Eltern im Norden, Wohnzimmer im Süden
Was macht ihn in Euren Augen besonders gut oder schlecht?:
Gut: Platz hoffentlich gut genutzt. Unter anderem mit der gemauerten Treppe
Schlecht: Schlecht finden wir eigentlich nichts. Wie gesagt nur die Größe des Technikraums könnte knapp bemessen sein und das Sofa im Wohnzimmer könnte etwas schmal sein.
Was ist die wichtigste/grundlegende Frage zum Grundriss in 130 Zeichen zusammengefasst?
Was würdet Ihr anders machen bzw. verbessern? Haben wir etwas übersehen was später zu Problemen führen könnte?
Reicht die Größe des Technikraums aus? Luft-Wasser-Wärmepumpe + Warmwasser im Kombigerät, Waschmaschine, Trockner auf Waschmaschine, Wäscheständer
Zur Erklärung der Bilder:
Einmal der Grundriss mit Maßen und einmal der Grundriss mit platzierten Möbeln. Hinter dem Sofa soll etwas Platz sein, damit die Kinder dort mal etwas liegen lassen können. (Und etwas mehr Platz für Surround-Lautsprecher. )
Dann kommt die Ausrichtung des Hauses und die Aufteilung des Grundstücks.
Ich hoffe, dass alles soweit verständlich ist. Sonst gerne Fragen.
Vielen Dank!






unsere Planungen für unser kleines Häuschen sind schon fortgeschritten, sodass wir glauben einen guten Zeitpunkt für euer Feedback getroffen zu haben.
Bebauungsplan/Einschränkungen
Größe des Grundstücks: 355m²
Hang: nein
Grundflächenzahl: -
Geschossflächenzahl: -
Baufenster, Baulinie und –grenze: -
Randbebauung: -
Geschossigkeit: 2
Dachform: Satteldach oder Walmdach
Ausrichtung: S/O
Maximale Höhen/Begrenzungen: -
Sonstiges: -
Anforderungen der Bauherren
Stilrichtung, Dachform, Gebäudetyp: Stadtvilla
Keller, Geschosse: kein Keller, EG, OG, Spitzboden als Lagerraum
Anzahl der Personen: 4, 2 Kinder
Raumbedarf im EG, OG: EG Wohnzimmer, Küche, Büro, Gäste-WC, Technik-+Abstellraum; OG 2 x Kinderzimmer, Eltern, Bad.
Büro: Familiennutzung oder Homeoffice: Homeoffice
Schlafgäste pro Jahr: 5 (Wohnzimmer)
offene oder geschlossene Architektur: relativ geschlossen
konservativ oder moderne Bauweise: modern
offene Küche, Kochinsel: ja; Kochinsel bis zur Wand unter dem Fenster
Anzahl Essplätze: min 6
Kamin: nein
Musik/Stereowand: Ja, an Treppe
Balkon, Dachterrasse: nein
Garage, Carport: Garage mit Stauraum 3x9m
Nutzgarten, Treibhaus: nein
Hausentwurf
Von wem stammt die Planung: Bauzeichner und uns
Was gefällt besonders? Warum?: Das offene Wohnzimmer und ansonsten den hoffentlich sehr gut genutzten Platz für das relativ kleine Haus
Was gefällt nicht? Warum?: Wir haben Sorge, dass der Technik- bzw. Abstellraum, wo auch die Wäsche gewaschen werden soll zu klein ist
Preisschätzung lt Architekt/Planer: 300T€ inkl. Garage
Persönliches Preislimit fürs Haus, inkl. Ausstattung: 310T€ alle gewünschten Ausstattungen sind im Hauspreis enthalten.
favorisierte Heiztechnik: Luft-Wasser-Wärmepumpe
Wenn Ihr verzichten müsst, auf welche Details/Ausbauten
-könnt Ihr verzichten: Ankleidezimmer
-könnt Ihr nicht verzichten: Büro
Warum ist der Entwurf so geworden, wie er jetzt ist? ZB
Entsprechende/Welche Wünsche wurden vom Architekten umgesetzt?: Schlafzimmer Eltern im Norden, Wohnzimmer im Süden
Was macht ihn in Euren Augen besonders gut oder schlecht?:
Gut: Platz hoffentlich gut genutzt. Unter anderem mit der gemauerten Treppe
Schlecht: Schlecht finden wir eigentlich nichts. Wie gesagt nur die Größe des Technikraums könnte knapp bemessen sein und das Sofa im Wohnzimmer könnte etwas schmal sein.
Was ist die wichtigste/grundlegende Frage zum Grundriss in 130 Zeichen zusammengefasst?
Was würdet Ihr anders machen bzw. verbessern? Haben wir etwas übersehen was später zu Problemen führen könnte?
Reicht die Größe des Technikraums aus? Luft-Wasser-Wärmepumpe + Warmwasser im Kombigerät, Waschmaschine, Trockner auf Waschmaschine, Wäscheständer
Zur Erklärung der Bilder:
Einmal der Grundriss mit Maßen und einmal der Grundriss mit platzierten Möbeln. Hinter dem Sofa soll etwas Platz sein, damit die Kinder dort mal etwas liegen lassen können. (Und etwas mehr Platz für Surround-Lautsprecher. )
Dann kommt die Ausrichtung des Hauses und die Aufteilung des Grundstücks.
Ich hoffe, dass alles soweit verständlich ist. Sonst gerne Fragen.
Vielen Dank!
Ja der Hauswirtschaftsraum dürfte schon allein mit der Technik und den Anschlüssen ans Limit kommen.
Könnte schon mit den geforderten Abständen zu den Installationen eng werden.
Ob dann noch Platz für Waschmaschine und Trockner bleibt darf man bezweifeln, vielleicht passt es noch irgendwo knapp.
Ansonsten finde ich das Haus und den Grundriss zweckmäßig und auf die beschränkte Fläche bezogen gut.
Eigentlich braucht ein Haus auf so einem schmalen Grundstück einen Keller. Es fehlt einfach Stauraum ohne Ende, ein Spitzboden mit Auszugtreppe ist nicht wirklich praktikabel.
Der Keller ist offensichtlich nicht im (imho eh schon zu knappen) Budget.
Also bleibt als Lösung des HAR-Problems nur die Möglichkeit, das Gäste-WC auch irgendwie nach rechts zu bekommen um so mehr Platz zu schaffen.
Könnte schon mit den geforderten Abständen zu den Installationen eng werden.
Ob dann noch Platz für Waschmaschine und Trockner bleibt darf man bezweifeln, vielleicht passt es noch irgendwo knapp.
Ansonsten finde ich das Haus und den Grundriss zweckmäßig und auf die beschränkte Fläche bezogen gut.
Eigentlich braucht ein Haus auf so einem schmalen Grundstück einen Keller. Es fehlt einfach Stauraum ohne Ende, ein Spitzboden mit Auszugtreppe ist nicht wirklich praktikabel.
Der Keller ist offensichtlich nicht im (imho eh schon zu knappen) Budget.
Also bleibt als Lösung des HAR-Problems nur die Möglichkeit, das Gäste-WC auch irgendwie nach rechts zu bekommen um so mehr Platz zu schaffen.
Der Hauswirtschaftsraum könnte wirklich kritisch werden. Wo ist die Elektroverteilung geplant?
Die Treppe im Wohnzimmer würde mich nerven. Wenn die Kinder mal Besuch mitbringen müssen die immer da durch.
Fernsehwand hätte ich gedreht. Es ist wesentlich schöner draußen in den Garten zugucken mit einem Auge als auf die Wand... Aber das ist alles persönliches Empfinden.
Ankleide ist laut Plan 2,10m. Ein Standardschrank ist etwa 60tief - Bleiben für euch 90cm Platz im Gang. Mir wäre das zu wenig Platz, sodass ich alle Sachen immer mit vor das Bett tragen würde und mich da umziehen würde...
Kritisch sehe ich auch die Garage mit 3m. Das schaut ja aus, als wenn es mit Mauerwerk gemessen ist. Ein normaler Kombi ist etwa 2m breit. Abzüglich Mauerwerk bleiben euch dann vielleicht 2,60-2,70? Jetzt noch etwas Abstand beim Einfahren, dann habe ihr 30-50cm zum Aussteigen. Für mich ein überteuerter Parkplatz.
Die Treppe im Wohnzimmer würde mich nerven. Wenn die Kinder mal Besuch mitbringen müssen die immer da durch.
Fernsehwand hätte ich gedreht. Es ist wesentlich schöner draußen in den Garten zugucken mit einem Auge als auf die Wand... Aber das ist alles persönliches Empfinden.
Ankleide ist laut Plan 2,10m. Ein Standardschrank ist etwa 60tief - Bleiben für euch 90cm Platz im Gang. Mir wäre das zu wenig Platz, sodass ich alle Sachen immer mit vor das Bett tragen würde und mich da umziehen würde...
Kritisch sehe ich auch die Garage mit 3m. Das schaut ja aus, als wenn es mit Mauerwerk gemessen ist. Ein normaler Kombi ist etwa 2m breit. Abzüglich Mauerwerk bleiben euch dann vielleicht 2,60-2,70? Jetzt noch etwas Abstand beim Einfahren, dann habe ihr 30-50cm zum Aussteigen. Für mich ein überteuerter Parkplatz.
Moin
Ich sehe die Treppe im Wohnzimmer hier nicht gut platziert , aber wenn es euch gefällt.
Den Zugang zum Büro kann man ohne Einschränkungen noch etwas schmaler gestalten um der Garderobe und der Fläche im Eingangsbereich mehr Raum zu geben.
Der Rest ist so schon ganz in Ordnung.
Um mit der Breite der Parkfläche etwas besser klarzukommen wäre ein Carport eventuell eine Lösung.
Olli
Ich sehe die Treppe im Wohnzimmer hier nicht gut platziert , aber wenn es euch gefällt.
Den Zugang zum Büro kann man ohne Einschränkungen noch etwas schmaler gestalten um der Garderobe und der Fläche im Eingangsbereich mehr Raum zu geben.
Der Rest ist so schon ganz in Ordnung.
Um mit der Breite der Parkfläche etwas besser klarzukommen wäre ein Carport eventuell eine Lösung.
Olli
danixf schrieb:
Die Treppe im Wohnzimmer würde mich nerven. Wenn die Kinder mal Besuch mitbringen müssen die immer da durch.
Kann aber später auch von Vorteil sein, weil man sieht wen sie mit anschleppen...
Garage würde ich auch sofort streichen und gegen Carport mit Abstellschuppen ersetzen.
Das Bett steht falsch rum - drehen und dann Fenster anders planen. Fenster im WZ planlinks fehlt.
HAR/Hauswirtschaftsraum viel zu klein. Bei dieser Hausgröße zählt jeder Zentimeter. Zuerst find ich das Bad unangemessen groß - das müsste Federn lassen. Außerdem würde ich auf die Ankleide verzichten und dafür das Büro mit nach oben nehmen. Kinderzimmer müssten dann eventuell auch etwas nachlassen.
Dafür unten ordentlichen Hauswirtschaftsraum, Garderobe und WC.
Das Bett steht falsch rum - drehen und dann Fenster anders planen. Fenster im WZ planlinks fehlt.
HAR/Hauswirtschaftsraum viel zu klein. Bei dieser Hausgröße zählt jeder Zentimeter. Zuerst find ich das Bad unangemessen groß - das müsste Federn lassen. Außerdem würde ich auf die Ankleide verzichten und dafür das Büro mit nach oben nehmen. Kinderzimmer müssten dann eventuell auch etwas nachlassen.
Dafür unten ordentlichen Hauswirtschaftsraum, Garderobe und WC.
Ähnliche Themen