M
Melanie L.23.12.18 14:10Hallo Allerseits,
mitte des Jahres habe ich ein Grundstück erworben, auf der eine wild gebaute Holzhütte stand, die ich bereits abgerissen und entsorgt habe.
Anfang Dezember war ich so gut wie durch mit der Planung, und letzte Woche habe meiner Familie bei einem vorweihnachtlichen Treffen mal die Pläne gezeigt. Natürlich waren nicht alle 12 Erwachsenen meiner Meinung. Leider bin ich im Kopf jetzt schon so festgefahren auf meine Planung, und es fällt mir schwer jetzt nochmal "neu" zu denken. Und hoffe auf Ideen und Inspirationen in diesem Forum.
Der Ausblick auf die Seen ist einmalig, wir sind im Sommer alles mal mit einer Drohne abgeflogen, im Winter hat man hier natürlch mehr Ausblick auf die Seen!
Den Fragenkatalog habe ich nach besten Wissen ausgefüllt.
Bebauungsplan/Einschränkungen
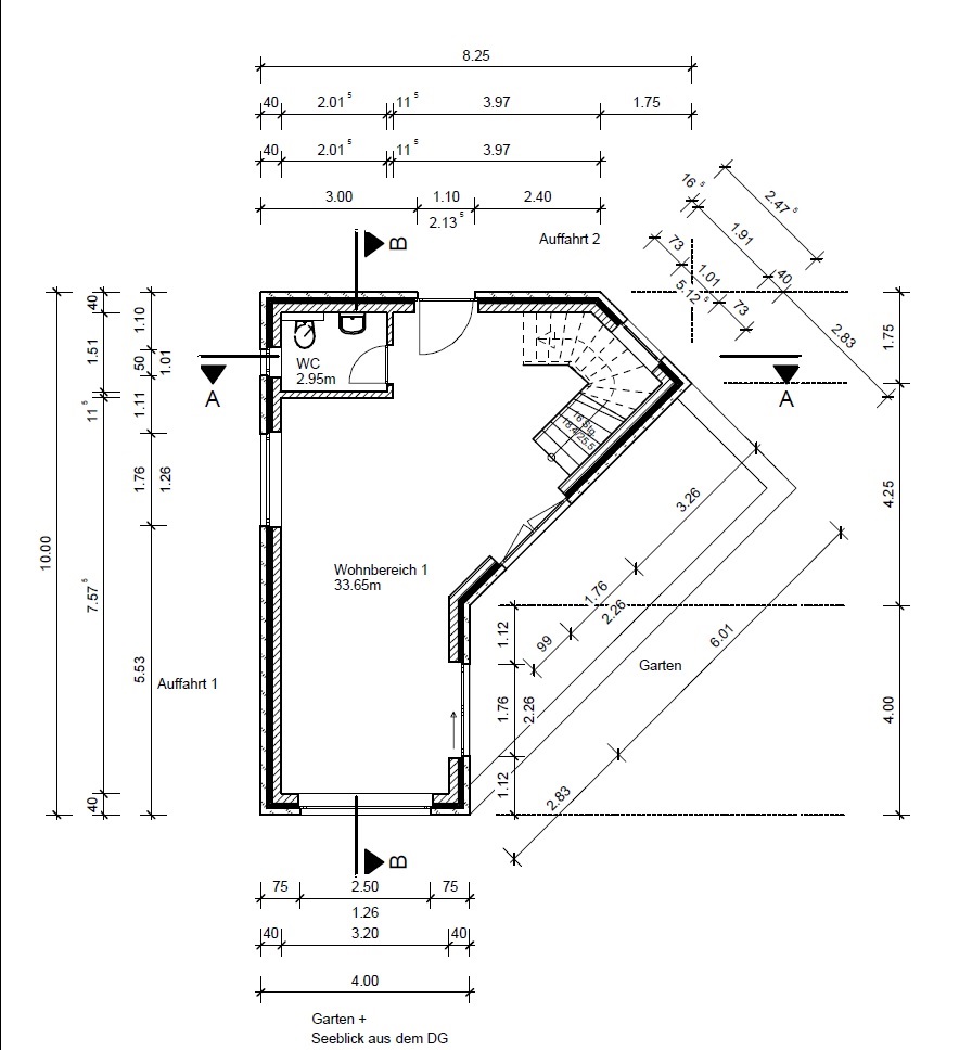
Die Planung der Küche inkl. Wohnbereich + Fenster (Größe, Anzahl, Positionen).Küche/ Wohnbereich sollen offen und gemütlich sein.



mitte des Jahres habe ich ein Grundstück erworben, auf der eine wild gebaute Holzhütte stand, die ich bereits abgerissen und entsorgt habe.
Anfang Dezember war ich so gut wie durch mit der Planung, und letzte Woche habe meiner Familie bei einem vorweihnachtlichen Treffen mal die Pläne gezeigt. Natürlich waren nicht alle 12 Erwachsenen meiner Meinung. Leider bin ich im Kopf jetzt schon so festgefahren auf meine Planung, und es fällt mir schwer jetzt nochmal "neu" zu denken. Und hoffe auf Ideen und Inspirationen in diesem Forum.
Der Ausblick auf die Seen ist einmalig, wir sind im Sommer alles mal mit einer Drohne abgeflogen, im Winter hat man hier natürlch mehr Ausblick auf die Seen!
Den Fragenkatalog habe ich nach besten Wissen ausgefüllt.
Bebauungsplan/Einschränkungen
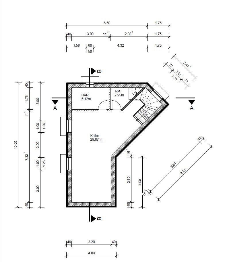
- Größe des Grundstücks: 640qm
- Hang: kein Hang
- Grundflächenzahl: 0,09
- Geschossflächenzahl: 0,13
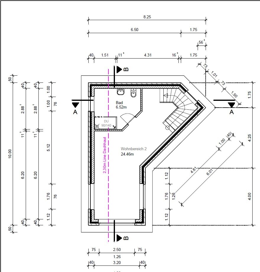
- Baufenster, Baulinie und -grenze: 3 Meter zu den Nachbargrundstücken, und der Waldschutzstreifen ist zu beachten, 55qm Grundbaufläche, Stellplatz (nur Carport, keine Garagen) außerhalb der überbaubaren Flächen 20qm
- Randbebauung: siehe Lageplan
- Anzahl Stellplatz: 1
- Geschossigkeit: 1,5
- Dachform: Satteldach, Pultdach, Nachbarn haben auch schon Flachdächer gebaut, unter der Berücksichtigung der Geschossigkeit musste die Decke bei einem drittel der Höhe auf 2,30 abgesenkt werden.
- Maximale Höhen/Begrenzungen: 8m
- weitere Vorgaben: Gebäudesockel 0,35m darf nicht überschritten werden
- Stilrichtung, Dachform, Gebäudetyp: Pultdach
- Keller, Geschosse: Keller +1,5 Geschosse
- Anzahl der Personen, Alter: 1 Person 42
- Raumbedarf im EG, OG: ca. 60qm
- Nutzung: zum Wohnen
- Schlafgäste pro Jahr: 25 (1-2 Personen zeitgleich exkl.mir)
- offene oder geschlossene Architektur: offene
- konservativ oder moderne Bauweise: moderrn
- offene Küche, Kochinsel: vorzugsweise Kochinsel
- Anzahl Essplätze: 2-4
- Kamin: nein
- Musik/Stereowand: nein
- Balkon, Dachterrasse: nein
- Garage, Carport: nein, vorerst nicht geplant
- Nutzgarten, Treibhaus: im kleinen Stil Gemüseanbau
- weitere Wünsche: eine Wohnküche ist wünschenswert (zur Info: für die Küche habe ich 20-25 TSD € eingeplant), wenn ich im EG noch irgendwo einen Fernseher unterbringen könnte wäre das ein Pluspunkt, aber kein Muss. Die bodentiefen Fenster werden alles Schiebetüren, da ich einen ebenerdigen Zugang zu meiner Terrasse bevorzuge. Diese wird sich noch etwas weiter in den Süden hinziehen, nicht wie im Moment eingezeichnet. Im DG plane ich ein Sitzfenster, im EG wäre ich auch nicht abgebeigt.
- Von wem stammt die Planung: von mir , und meine Familie (Onkel, Tanten geben auch gerne Ihren “Senf dazu 🙂)
- Planer eines Bauunternehmens: ich habe einen Zeichner, der auch schon lange mit meinem Bauunternehmer (ein sehr guter Freund von mir, der auch in dieser Siedlung genaut hat) zusamenarbeitet
- Was gefällt besonders? Warum?: Die Lage ist herausragend, da es mitten im Grünen ist, und man im DG Blick auf 2 Seen hat, im Winter auch im EG außerdem ist die Lage der kleinen Siedlung (ein ehemaliges Wochendhausgebiet) auf einem Berg in unserer Kleinstadt, und von viel befahrenen Straßen weit entfernt
- Was gefällt nicht? Warum?: ich kann nicht unbedingt sagen, dass es nicht gefällt, aber es ist durch das sehr eingeschränkte Baufeld und durch das Dadurch vorgegebene Baufenster kein 0815 Haus, der Grundriss ist ein unikat.
- Preisschätzung lt Architekt/Planer: 220.000€ (ohne Küche)
- Pers. Preislimit fürs Haus, inkl Ausstattung:280.000
- favorisierte Heiztechnik: Luft-Wasser-Wärmepumpe , Energieeffizenzklasse 55, mein Onkel ist mein Energieeffizienzberater
- könnt Ihr verzichten: Solar, Carport
- könnt Ihr nicht verzichten: Küche mit Essplatz
- Standardentwurf vom Planer: kein Standard, da Baufeld eingeschränkt, maximale bebaubare Grundläche ist 55 qm, und 1,5 geschossig
Die Planung der Küche inkl. Wohnbereich + Fenster (Größe, Anzahl, Positionen).Küche/ Wohnbereich sollen offen und gemütlich sein.
M
Melanie L.23.12.18 14:28Danke für den Hinweis, wie Du siehst rechne ich ich auch mit mehr. Aber das mit der Bausumme ist ja auch nicht "das Problem" Bitte nicht so sehr auf mein Geld achten, das mache ich schon alleine, bzw. mein Vermögensberater:-)
M
Melanie L.23.12.18 15:09Das wird ein Haus für eine Person, Dauerwohnsitz, ich kann mit der qm Anzahl sehr gut leben, habe jetzt in kleinerem Stadthaus ohne Garten weit aus weniger Platz zur Verfügung.
Wo würdest Du denn Wände empfehlen?
Der Preis ist wie geschrieben nicht das Thema, wenn jemand konkrete Gestantungsideen hätte wäre das eine Bereicherung.
Wo würdest Du denn Wände empfehlen?
Der Preis ist wie geschrieben nicht das Thema, wenn jemand konkrete Gestantungsideen hätte wäre das eine Bereicherung.
Ähnliche Themen