ᐅ Grundriss-Optimierung Einfamilienhaus, 2 Vollgeschosse, kein Keller
Erstellt am: 16.08.21 11:22
A
Alex1987Bebauungsplan/Einschränkungen
Größe des Grundstücks: 900 m²
Hang: Grundstück befindet sich ca. 2 Meter unterhalb Straßenniveau, sonst aber kein Hang
Grundflächenzahl: 0,6
Geschossflächenzahl: 1,0
Baufenster, Baulinie und -grenze
Randbebauung
Anzahl Stellplatz: 2
Geschossigkeit: 2
Dachform: Dachneigungen von 30 - 45° zulässig
Stilrichtung: -
Ausrichtung: -
Maximale Höhen/Begrenzungen: Traufhöhe 6,5 m
weitere Vorgaben: Zisterne
Anforderungen der Bauherren
Stilrichtung, Dachform, Gebäudetyp: Satteldach mit 3 Giebel
Keller, Geschosse: Kein Keller, 2 Geschosse
Anzahl der Personen, Alter: 2 (33 & 28 Jahre, 2 Kinder geplant)
Raumbedarf im EG, OG:
EG: Wohn/Essbereich, Küche, Hauswirtschaftsraum, Gäste-WC, Büro
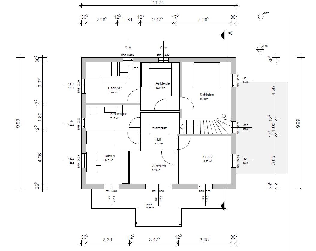
OG: Schlafzimmer, Ankleide, Elternbad, 2 Kinderzimmer, Kinderbad, Büro
Büro: 2 Büros da beide regelmäßig im Home Office sind
Schlafgäste pro Jahr: vernachlässigbar
offene oder geschlossene Architektur: geschlossen
konservativ oder moderne Bauweise
offene Küche, Kochinsel: abgetrennte Küche
Anzahl Essplätze: 6 - 8
Kamin: nein
Musik/Stereowand: nein
Balkon, Dachterrasse: Balkon
Garage, Carport: Carport
Nutzgarten, Treibhaus
weitere Wünsche/Besonderheiten/Tagesablauf, gern auch Begründungen, warum dieses oder das nicht sein soll
Hausentwurf
Von wem stammt die Planung:
- Mischung aus Do-it-Yourself und GU
Was gefällt besonders? Warum?: Großer Hauswirtschaftsraum, Elternbereich mit Bad+ Ankleide
Was gefällt nicht? Warum?
Preisschätzung lt Architekt/Planer:
Persönliches Preislimit fürs Haus, inkl Ausstattung:
favorisierte Heiztechnik: Luft-Wasser-Wärmepumpe
Wenn Ihr verzichten müsst, auf welche Details/Ausbauten
-könnt Ihr verzichten: Balkon
-könnt Ihr nicht verzichten:
Warum ist der Entwurf so geworden, wie er jetzt ist? ZB
Standardentwurf vom Planer?
Entsprechende/Welche Wünsche wurden vom Architekten umgesetzt?
Ein Gemisch aus vielen Beispielen aus div. Magazinen...
Was macht ihn in Euren Augen besonders gut oder schlecht?
Was ist die wichtigste/grundlegende Frage zum Grundriss in 130 Zeichen zusammengefasst?
Dem Grunde nach gefällt uns der Grundriss sehr gut, aber vielleicht fällt ja noch etwas aus was nicht passt / was evtl. noch besser geht.
Norden ist übrigens oben, dort verläuft auch die Straße. Im Westen des Grundstücks verläuft ein kleiner Bach entlang der Grundstücksgrenze und im Süden ist direkt anschließend eine Streuobstwiese vorgesehen. Im Osten wird ein weiteres Haus entstehen.


Größe des Grundstücks: 900 m²
Hang: Grundstück befindet sich ca. 2 Meter unterhalb Straßenniveau, sonst aber kein Hang
Grundflächenzahl: 0,6
Geschossflächenzahl: 1,0
Baufenster, Baulinie und -grenze
Randbebauung
Anzahl Stellplatz: 2
Geschossigkeit: 2
Dachform: Dachneigungen von 30 - 45° zulässig
Stilrichtung: -
Ausrichtung: -
Maximale Höhen/Begrenzungen: Traufhöhe 6,5 m
weitere Vorgaben: Zisterne
Anforderungen der Bauherren
Stilrichtung, Dachform, Gebäudetyp: Satteldach mit 3 Giebel
Keller, Geschosse: Kein Keller, 2 Geschosse
Anzahl der Personen, Alter: 2 (33 & 28 Jahre, 2 Kinder geplant)
Raumbedarf im EG, OG:
EG: Wohn/Essbereich, Küche, Hauswirtschaftsraum, Gäste-WC, Büro
OG: Schlafzimmer, Ankleide, Elternbad, 2 Kinderzimmer, Kinderbad, Büro
Büro: 2 Büros da beide regelmäßig im Home Office sind
Schlafgäste pro Jahr: vernachlässigbar
offene oder geschlossene Architektur: geschlossen
konservativ oder moderne Bauweise
offene Küche, Kochinsel: abgetrennte Küche
Anzahl Essplätze: 6 - 8
Kamin: nein
Musik/Stereowand: nein
Balkon, Dachterrasse: Balkon
Garage, Carport: Carport
Nutzgarten, Treibhaus
weitere Wünsche/Besonderheiten/Tagesablauf, gern auch Begründungen, warum dieses oder das nicht sein soll
Hausentwurf
Von wem stammt die Planung:
- Mischung aus Do-it-Yourself und GU
Was gefällt besonders? Warum?: Großer Hauswirtschaftsraum, Elternbereich mit Bad+ Ankleide
Was gefällt nicht? Warum?
Preisschätzung lt Architekt/Planer:
Persönliches Preislimit fürs Haus, inkl Ausstattung:
favorisierte Heiztechnik: Luft-Wasser-Wärmepumpe
Wenn Ihr verzichten müsst, auf welche Details/Ausbauten
-könnt Ihr verzichten: Balkon
-könnt Ihr nicht verzichten:
Warum ist der Entwurf so geworden, wie er jetzt ist? ZB
Standardentwurf vom Planer?
Entsprechende/Welche Wünsche wurden vom Architekten umgesetzt?
Ein Gemisch aus vielen Beispielen aus div. Magazinen...
Was macht ihn in Euren Augen besonders gut oder schlecht?
Was ist die wichtigste/grundlegende Frage zum Grundriss in 130 Zeichen zusammengefasst?
Dem Grunde nach gefällt uns der Grundriss sehr gut, aber vielleicht fällt ja noch etwas aus was nicht passt / was evtl. noch besser geht.
Norden ist übrigens oben, dort verläuft auch die Straße. Im Westen des Grundstücks verläuft ein kleiner Bach entlang der Grundstücksgrenze und im Süden ist direkt anschließend eine Streuobstwiese vorgesehen. Im Osten wird ein weiteres Haus entstehen.
RomeoZwo schrieb:
Wie kommt man in dem Carport, wenn das Grundstück und damit das EG 2m unterhalb des Strassenniveaus liegt?Ganz normal per Schiffshebewerk ;-)https://www.instagram.com/11antgmxde/
https://www.linkedin.com/company/bauen-jetzt/
RomeoZwo schrieb:
Wie kommt man in dem Carport, wenn das Grundstück und damit das EG 2m unterhalb des Strassenniveaus liegt?Da kann man bestimmt so schiefe Ebenen davorsetzen… 😀Ich mache es kurz, weil da muss man den Ansatz meiner Meinung nach nicht weiter verfolgen:
Eingangstür im Carport Nogo.
Das wäre bei der Neigung zusätzlich zum Manko ja noch lebensgefährlich.
Küchenfenster unter dem Carport Nogo. (Ok, kann man weglassen 😉)
Garderobe zu weit weg vom Eingang, da ist ja der ganze Flur schmuddelig.
Großer Hauswirtschaftsraum ist immer nett, aber dieser ist ja größer als jedes Zimmer oben. Mann kann es mit übriggebliebener Fläche auch übertreiben.
Bessere Raumnutzung wäre hier notwendig. Auch die Ankleide mit 3 Türen ist nicht gut gelungen (3,5 Schranklänge plus Kommode bekommt man auf halb soviel Fläche hin)
Kinderbad hat eine recht schmale Dusche.
Was mich interessiert: wie bekommt man in ein Satteldachhaus mit drittem Giebel auf alle vier Seiten Fenster im OG?
Eingangstür im Carport Nogo.
Das wäre bei der Neigung zusätzlich zum Manko ja noch lebensgefährlich.
Küchenfenster unter dem Carport Nogo. (Ok, kann man weglassen 😉)
Garderobe zu weit weg vom Eingang, da ist ja der ganze Flur schmuddelig.
Großer Hauswirtschaftsraum ist immer nett, aber dieser ist ja größer als jedes Zimmer oben. Mann kann es mit übriggebliebener Fläche auch übertreiben.
Bessere Raumnutzung wäre hier notwendig. Auch die Ankleide mit 3 Türen ist nicht gut gelungen (3,5 Schranklänge plus Kommode bekommt man auf halb soviel Fläche hin)
Kinderbad hat eine recht schmale Dusche.
Was mich interessiert: wie bekommt man in ein Satteldachhaus mit drittem Giebel auf alle vier Seiten Fenster im OG?
ypg schrieb:
Was mich interessiert: wie bekommt man in ein Satteldachhaus mit drittem Giebel auf alle vier Seiten Fenster im OG?Ohne Zweimeterlinie lässt sich dazu nichts sagen. 😕Ähnliche Themen