Hausbau - Ratgeber
Bauherrenhilfe
- Bauherrenhilfe vor Vertragsabschluss
-- Warum einen unabhängigen Baubetreuer?
-- Vertragsgrundlagen
-- Bausumme
-- Zahlungsplan zur Kostenkontrolle
-- Pflichten des Bauherren vor Vertragsabschluss
-- Unterlagen beim Hausbau vor Vertragsabschluss
- Bauherrenhilfe nach Vertragsabschluss
-- Bauantrag bei Behörden
-- Bau-Genehmigungsverfahren bei Baubehörden
-- Bauspezifische Versicherungen
-- Bauzeitenplan
-- Baubeginn - die Letzten Pflichten der Bauherrschaft
- Bauherrenhilfe während der Bauzeit
- Gewährleistungsansprüche
- Bauabnahme
Baufinanzierung
- Baufinanzierung - Allgemeine Fragen
- Kreditarten
- Kredit-Konditionen
- Bausparen
- Staatliche Förderungen
- Verkehrswert
- Haushaltsrechnung und Bonität
Hausbau Planung
- Haustypen
- Hausbau Vorbereitungsarbeiten
- Das Baugrundstück
- Baugrund beim Hausbau
- Baurecht
- Gebäudeschutz
- Erdarbeiten und Wasserhaltung
- Stützmauern
- Einfriedung
- Untergeschoss
- Kanalisation
- Tragende Elemente
- Nichttragende Innenwände
- Fundation / Fundament
- Deckenkonstruktionen
- Dächer
- Kaminanlagen
- Treppen Rampen Leitern
- Dachbeläge und Spengler
- Fenster
- Sonnen und Wetterschutz
- Aussenputze
- Einbauten, Küchen, Türen
- Bodenbeläge und Unterlagsböden
- Parkett
- Gips, Wand, Decke
Haustechnik und Energie
- Heiztechnik
- Lüftung und Klimatechnik
- Sanitärtechnik
- Elektrotechnik
- Erneuerbare Energie
Whirlpools / Jacuzzi
Hausbau Magazin
- Baufinanzierung trotz Krise?
- Das Blockhaus
- Moderne Dämmstoffe im Vergleich
- Erker Vor- und Nachteile
- Glasflächen beim Hausbau
- Günstig ein Haus Bauen
- Mediterraner Hausbaustil
- Mehrgenerationenhaus
- Moderne Architektur
- Gartengestaltung leicht gemacht
- Traditioneller Ziegelbau
- Villa als höchster Traum
- Im Eigenheim Ruhestand geniessen
- Altbau sanieren
- Kauf einer Holzgarage
- Immobilienmakler
- Arbeitshandschuhe für den Winter
- Zuhause verschönern
- Outdoor-Plissees
- Schlafzimmer planen
- Terrassenüberdachung
- Wohngebäudeversicherung
- Zaunarten und Eigenschaften
- Hauseingang gestalten
- Der perfekte Grundriss
- Sparsamer heizen im Altbau
- Einfamilienhaus smart finanzieren
- Planung einer PV-Anlage
- Neues Haus
- Immobilienfinanzierung
- Installation einer Photovoltaikanlage
- Asbest erkennen und entfernen
- Gartenpflege im Frühling – worauf achten
- Sauna im Fokus - Wellness zuhause
- Erfolgreich vermieten
- Die perfekte Winterbekleidung
- Das Niedrigenergiehaus
- Der April und seine Stürme
- Architektonische Vielfalt
- Ökologisch und nachhaltig bauen
- Das perfekte Schlafzimmer
- Nachhaltige Energieversorgung
- Zukunftsorientiert bauen
- Nachhaltigkeit beim Hausbau
- Tiny Houses
- Wärmepumpen als nachhaltige Heizvariante
- Maßgeschneiderten Kleiderschrank
- Der richtige Baukredit
- Ratgeber für erfolgreichen Hausbau
- Haus als Altersvorsorge
Do-it-yourself Anleitungen
- Verlegeanleitung für Bodenbeläge und Parkett
- Bodenbeläge und Parkett reinigen und pflegen
- Malerarbeiten am Haus
- Garten Tipps
- Umzug und Reinigung

ᐅ 1. Entwurf Grundriss Einfamilienhaus 150 qm

Erstellt am: 02.02.17 21:11
H
HansHaus
H
HansHaus
02.02.17 21:11
Hallo zusammen,
nach langem Stöbern in den Beiträgen möchte ich gerne unseren Entwurf eines Planers für ein Einfamilienhaus mit 150 qm Wohnfläche zur Diskussion einstellen. Er gefällt uns im Großen und Ganzen recht gut, trotzdem bin ich auf Meinungen gespannt. Vielleicht könnt ihr mal drüber schauen.



Bebauungsplan/Einschränkungen
Größe des Grundstücks: 711 qm
Hang: nein
Grundflächenzahl: 0,35
Geschossflächenzahl:
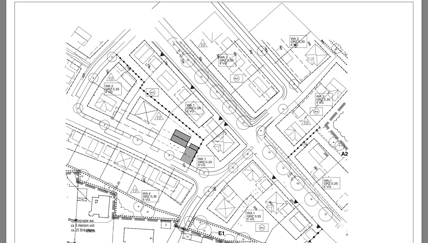
Baufenster, Baulinie und -grenze: ja, siehe Bild
Anzahl Stellplatz: 1 pro Wohneinheit
Geschossigkeit: 2
Dachform: Sättel-, Walm-, Zelt-, Pultdach
Stilrichtung: modern
Ausrichtung: Süd
Maximale Höhen/Begrenzungen: 6,50 m
weitere Vorgaben

Anforderungen der Bauherren
Stilrichtung, Dachform, Gebäudetyp: modern, Satteldach
Keller, Geschosse: kein Keller, 2 Voll
Anzahl der Personen, Alter: 2 (35), Kind evtl
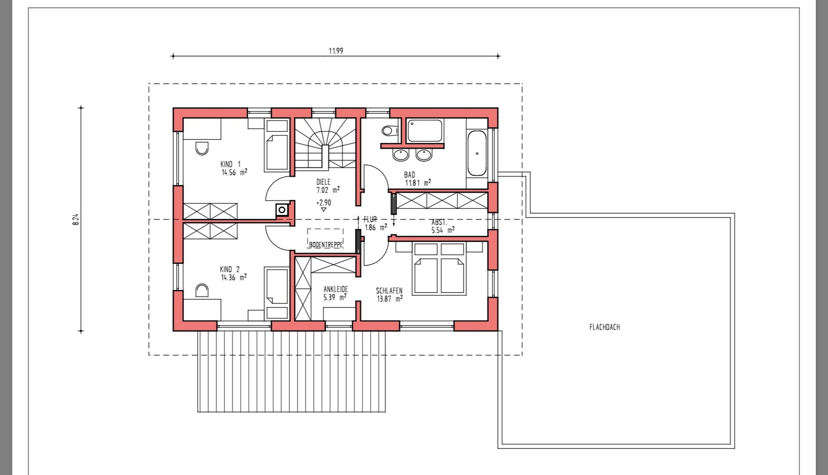
Raumbedarf im EG: Wohnen, Essen, Küche, Technik, Gäste Bad mit Dusche, Garderobe, im OG: Schlafzimmer mit Ankleide, 1Kinderzimmer, 1 Gäste/Büro, großes Bad
Büro: Familiennutzung
Schlafgäste pro Jahr: ca 5
offene oder geschlossene Architektur: eher offen
konservativ oder moderne Bauweise: modern
offene Küche, Kochinsel: ja
Anzahl Essplätze: 6
Kamin: ja
Musik/Stereowand: normale TV Wand
Balkon, Dachterrasse: nein
Garage, Carport: unschlüssig, jedoch doppelt
Nutzgarten, Treibhaus: nein
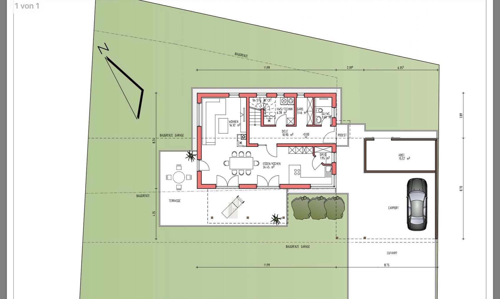
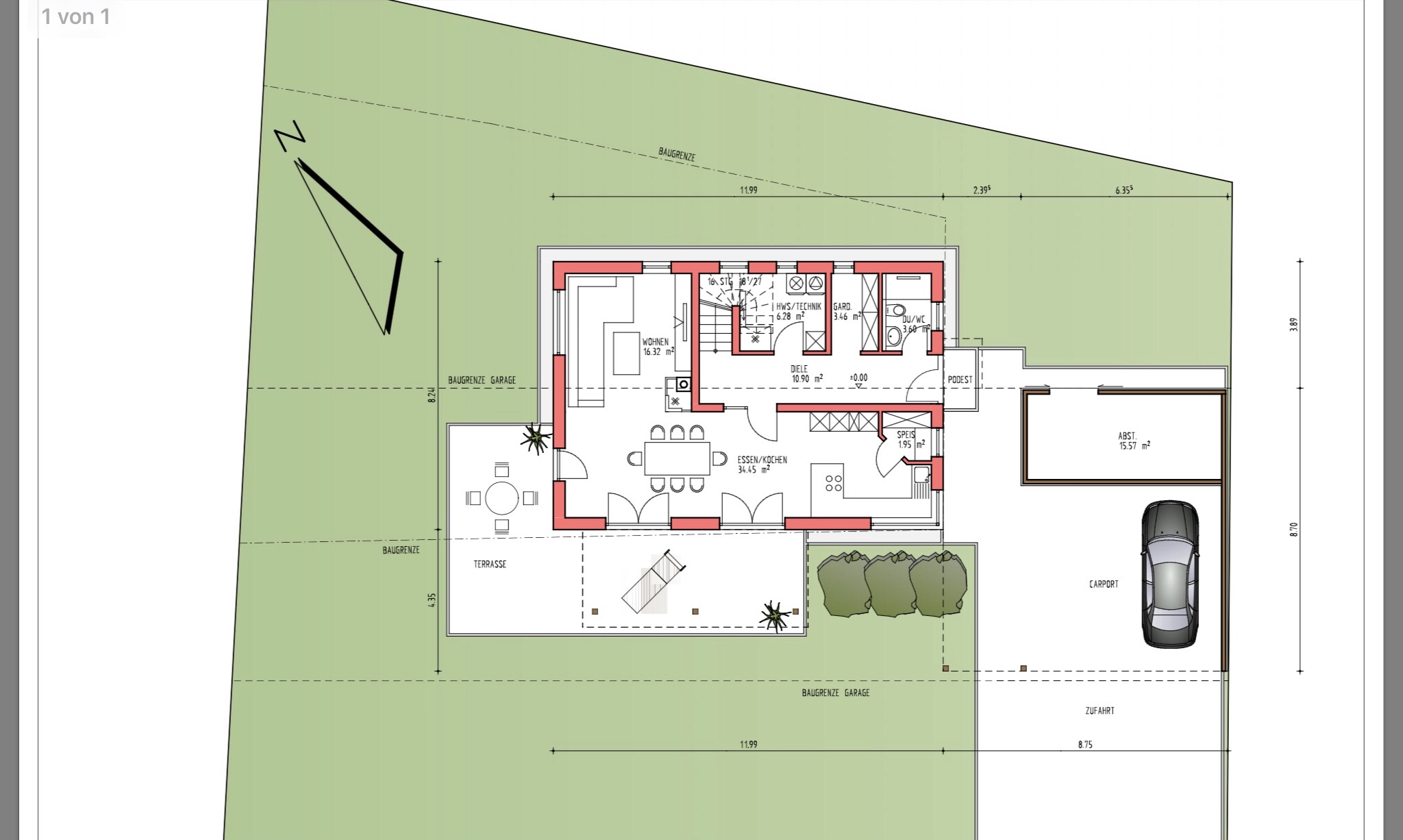
weitere Wünsche: hinter Carport/Garage Abstellraum, Überdachung bis zum Hauseingang

Hausentwurf
Von wem stammt die Planung: Planer (Architekt) eines Bauunternehmens
Was gefällt besonders? Warum? offener Wohn/Essbereich, Küche mit Eckfenster wurde realisiert, Bad im OG mit T-Lösung
Was gefällt nicht? Warum? 2geteilte Ankleide ("Ankleide" + "Abst."), evtl Positionierung der Speisekammer, Platzierung des Hauses auf dem Grundstück generell (dies wird aber dem Baufenster geschuldet sein, viel Platzverlust im Norden)
Preisschätzung lt Architekt/Planer: noch nicht vorhanden
Persönliches Preislimit fürs Haus, inkl Ausstattung: 350.000€
favorisierte Heiztechnik: Luft-Wasser-Wärmepumpe

Wenn Ihr verzichten müsst, auf welche Details/Ausbauten
-könnt Ihr verzichten: zweites Zimmer im OG gleich groß wie Kinderzimmer
-könnt Ihr nicht verzichten: ?

Dies ist ein erster Vorentwurf unseres Planers. Leider ohne Maße, die gibts erst wenn wir einen Entwurf absegnen.
Mit am schwierigsten finde ich die Positionierung des Hauses insgesamt, das Baufenster ist leider nicht optimal. Im Süden verläuft die Zufahrtsstraße. Und um das Grundstück optimal auszunutzen (Baufenster) müsste man das Haus eigentlich im Norden auf die Baugrenze stellen, dann steht es aber nicht parallel zur Straße

Ich würde mich über Meinungen und Ideen freuen!

Viele Grüße

Edit: Bilder hochladen funktioniert gerade nicht, ich arbeite daran
H
HansHaus
02.02.17 21:26

Grundriss Erdgeschoss: Wohn- und Essbereich, Küche, Diele, Terrasse, Garten, Carport.

Grundriss eines Obergeschosses: Schlafzimmer, zwei Kinderzimmer, Ankleide, Bad, Flur.

Schwarzweiß-Lageplan eines Baugebiets: Straßen, Grundstücke, Gebäude, Bäume.

Zweistöckiges Haus mit Metall-Dach, großen Fenstern und zwei Personen im Garten.

Architekturzeichnung eines zweistöckigen Hauses mit Carport, geneigtem Dach und Person am Eingang.

Zweistöckiges Haus mit Satteldach, Fenster, Eingang, seitlichem Anbau; Straßenseite mit Person.
1
11ant
02.02.17 21:52
HansHaus schrieb:

Dies ist ein erster Vorentwurf unseres Planers. Leider ohne Maße, die gibts erst wenn wir einen Entwurf absegnen.
Mit am schwierigsten finde ich die Positionierung des Hauses insgesamt, das Baufenster ist leider nicht optimal. Im Süden verläuft die Zufahrtsstraße. Und um das Grundstück optimal auszunutzen (Baufenster) müsste man das Haus eigentlich im Norden auf die Baugrenze stellen, dann steht es aber nicht parallel zur Straße

Eine saubere Planung, würde ich sagen. Für mich sieht das nach erfahrenem Unternehmer und Planer aus. Was juckt denn an einer Ausrichtung nicht parallel zur Straße (und wen) ?

Die klare Widmung der Ankleide als Ankleide für die Eltern mit separatem Abstellraum u.a. für die Klamotten der Kinder für die andere Saison wirst Du in der Praxis schätzen. Die Raumdimensionierung und -Anordnung scheint mir auch in diesem Bereich sehr gut abgewogen, das würde ich genau so lassen.

Der Carport scheint mir zu einem anderen Hausstil (modern mit Flachdach) besser zu passen, aber das kann sich je nach Materialwahl noch wegbügeln.
https://www.instagram.com/11antgmxde/
https://www.linkedin.com/company/bauen-jetzt/
Y
ypg
02.02.17 22:16
Ich würde die Speis weglassen sowie oben den Abstellraum als Ankleide nehmen.
Den anderen Raum vom Flur aus begehbar machen.

Mir gefällt es ansonsten auch gut. [emoji1417]


Grüsse
B
Bautraum2015
02.02.17 23:02
Gefällt mir sehr gut!
1
11ant
03.02.17 00:46
Ich weiß nicht warum Ihr die Speisekammer für ohne Sinn haltet - auch wenn mir wohl bewußt ist, daß sie unpopulär geworden ist, mangels erfahrener Großmütter vermutlich. Aber auch in solchen Details zeigt sich der erfahrene Planer. Nein, gewiß nicht weglassen.

Mit der Ankleide ist es eine Verhaltensfrage: wird sie tatsächlich zum Ankleiden genutzt, scheint mir der Einwand nachvollziehbar; als begehbarer Kleiderschrank gesehen relativiert sich das deutlich. Bei Gleittürenschränken wird mein Schlaf nicht gestört.
https://www.instagram.com/11antgmxde/
https://www.linkedin.com/company/bauen-jetzt/
ankleidebaufensterplanerküchecarportabstellraumentwurfdachformkellergarage