Ideensammlung zu Grundriss

4,00 Stern(e) 4 Votes
Zuletzt aktualisiert 22.11.2025
Sie befinden sich auf der Seite 8 der Diskussion zum Thema: Ideensammlung zu Grundriss
>> Zum 1. Beitrag <<

K

Kwasi

vielen Dank
Ich werde das vorbringen.
Aber eine Sache: Wenn die Wand wirklich 20cm nach rechts gerückt werden kann, dann kann der Schrank doch so wie in meiner Zeichnung stehen?
 
kbt09

kbt09

Du meinst hier:


im Vergleich zu hier:


Wand 20 cm nach rechts heißt ja immer noch:
ca. 336 cm
- 66 cm Schrank
- 210 cm Bett
---------------
bleiben 60 cm Bewegungsraum vorm Schrank.

In meiner Raumverplanung sind aktuell zwar auch nur knapp 63 cm rechts und links vom Bett, das ist aber nicht gleichzeitig noch Bewegungsraum vor dem Schrank. Und, bei Wand 20 cm nach rechts, wäre der Bewegungsraum rechts und links vom Bett dann eben 73 cm und der Raum zwischen den Schränken ca. 120 cm.

Es ist halt blöd, dass wg. der Fensterplatzierung die Badezimmerwand nicht weiter nach rechts rutschen kann, wenn man noch einen vernünftigen Stauraum im Dielenbereich haben möchte. Und den halte ich für sehr wichtig.

Mir würde für den Schlafbereich halt die klare Zonierung gefallen.

Und für den Balkon wäre das auch ein schöner Platz eine fixe Tischecke zu stellen, die dann keinen Ausgang blockiert. Und Südfenster sind im Schlafzimmer gar nicht so angenehm. Das kann im Sommer schon recht heiß werden.

Im Wohnbereich bleibt ein schöner großzügiger Platz in der Mitte.

Der Flur bietet verschließbaren Garderoben-Stauraum (Jacken der nicht aktuellen Saisons, Schuhe, Taschen, Mützen, Schals, die dann alle nicht in den individuellen Kleiderschränken lagern müssen) und bietet die Alltäglichkeits-Hänge-Garderobe (Jacken der Saison, aktuelle Schuhe etc.).

Außerdem ist auch die kleine Kammer in meiner Variante besser Möbliere- und nutzbar durch das Breitenmaß von gut 140 cm. Die Wasseranschlüsse lassen sich mit denen der Küche bündeln.

Und dann noch zur Küchenplanung .. so wie da Hochschränke angedeutet sind, geht das ja eher nicht.
 
Mycraft

Mycraft

Moderator
Was ich mit der Eingangssituation im EG meine ist: Jemand kommt nach Hause öffnet die Tür, welche ja nach innen aufgeht laut Plan und muss dann direkt rechts hoch mit den dreckigen Schuhen auf die Treppe, denn unten Schuhe ausziehen geht ja nicht man hat ja nur 1x1m Platz und der wird dann schon von der nach innen öffnenden Tür beansprucht.

Das zweite Szenario ist: Jemand kommt gerade die Treppe runter und will raus...unten angekommen öffnet sich plötzlich die Tür, weil jemand nach Hause kommt...wo soll jetzt der Mensch hin? Wieder die Treppe rauf? Sich an der Tür irgendwie vorbeiquetschen?
 
K

Kwasi

Das Bad wird jetzt recht klein .. 90 cm Dusche, 85 cm WC, 80 cm Waschtisch.

Dafür jetzt 1x200 und 1x150 cm Kleiderschrank gut nutzbar. Bett mit dem Kopf planunten und einer 160er Wand vom "Ankleidebereich" getrennt. Da sind dann zwar bei einem Bett mit 180 cm Matratzenbreite, also min. 185 cm Bettbreite, rechts und links nur ca. 65 cm. Da da dann aber nichts aus Schränken etc. entnommen werden müßte, sollte das gerade so gehen. Gut wäre es vielleicht die Wand noch 20 cm oder so nach rechts zu rücken.
Also mir gefällt das ganz gut und ich sehe auch ein, dass das Fenster gestrichen werden muss.
Was wirklich zu klein ist, ist das Bad. Immerhin muss sich da ja auch meine Frau ausbreiten können
Wie ist das Gefühl, wenn man am Fußende eine Wand hat? Die Decke ist ja nicht gerade sondern schräg. Ist so eine Wand dann nicht beengend?
Wo würde man denn dann die Dachfenster platzieren? 1,5qm sind erlaubt...

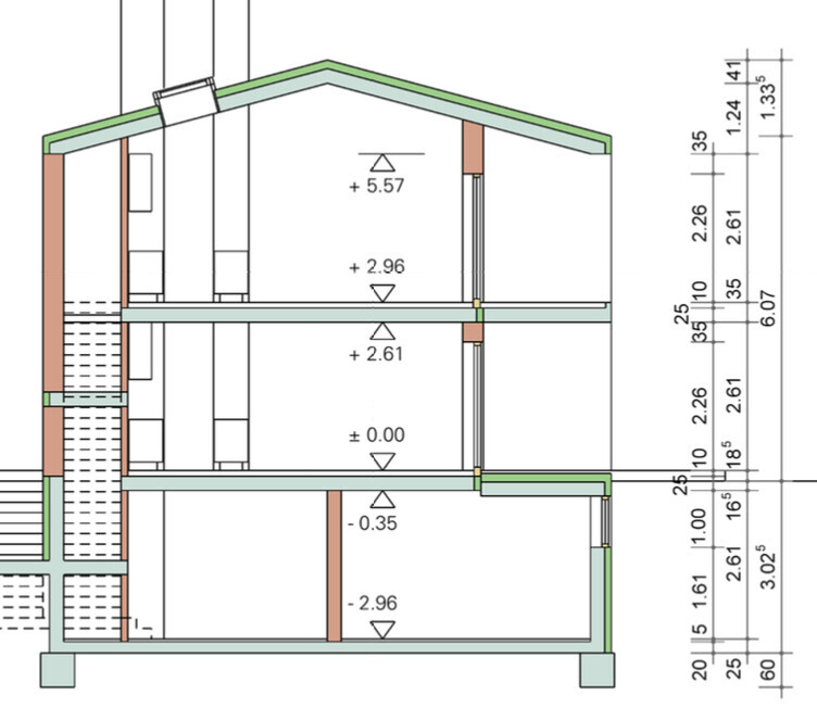
Querschnitt durch ein dreistöckiges Haus mit Dach, Wänden und Höhenangaben der Ebenen.
 
K

Kwasi

Was ich mit der Eingangssituation im EG meine ist: Jemand kommt nach Hause öffnet die Tür, welche ja nach innen aufgeht laut Plan und muss dann direkt rechts hoch mit den dreckigen Schuhen auf die Treppe, denn unten Schuhe ausziehen geht ja nicht man hat ja nur 1x1m Platz und der wird dann schon von der nach innen öffnenden Tür beansprucht.

Das zweite Szenario ist: Jemand kommt gerade die Treppe runter und will raus...unten angekommen öffnet sich plötzlich die Tür, weil jemand nach Hause kommt...wo soll jetzt der Mensch hin? Wieder die Treppe rauf? Sich an der Tür irgendwie vorbeiquetschen?
Ich werde einen Windfang anfragen. Ist natürlich preislich bestimmt nicht ohne...
Und so ganz ist das Problem damit ja auch nicht gelöst?
 
Mycraft

Mycraft

Moderator
Naja man braucht vor der Treppe definitiv Platz wo man aneinander vorbeilaufen kann und die Eingangstür nicht einem gleich vor den Kopf geschlagen wird....

Und eben auch ein Platz für Schuhe, ausser du möchtest regelmässig die Treppe fegen...
 
Zuletzt aktualisiert 22.11.2025
Im Forum Grundrissplanung / Grundstücksplanung gibt es 2535 Themen mit insgesamt 87982 Beiträgen


Ähnliche Themen zu Ideensammlung zu Grundriss
Nr.ErgebnisBeiträge
1Idee Schlafzimmer - Bett / Schrank Anordnung 32
2Häuser ohne Keller: Stauraum Hobby-Keller? - Seite 849
3Treppe im Flur, Grundriss steht eigentlich schon :o( - Seite 320
4Grundrissfrage, Treppe, Fenster, Ausrichtung 12
5 2 Vollgeschosse, Durchgang Garage, Hauswirtschaftsraum unter Treppe 25
6Grundrissfrage, Garage, Treppe 33
7Einfamilienhaus ca. 150 qm Grundriss - Treppe wie planen? 65
8Stadtvilla mit gerader Treppe, offene moderne Bauweise, 140m² - Seite 218
9Schrank unter der Treppe oder kleiner Abstellraum 11
10Treppe um 10cm versetzt, Optionen? - Seite 339
11Grundriss Bungalow mit 140 qm - passt der Stauraum? - Seite 14175
12Ikea Utrusta Scharnier am Schrank montieren, Montageanleitung - Seite 216
13Ikea Utrusta Hebe-Scharnier in Faktum Schrank einbauen - Seite 212
14IKEA Besta Schrank in sich schief - Was kann man tun? - Seite 211
15Ideen für Garderobe mit Sitzbank und viel Stauraum - Seite 322
16Unterste Schubladen beim Ikea Pax Schrank einbauen - Seite 314
17Einrichtung Ankleidezimmer Tür zum Badezimmer - Seite 334
18Wie findet ihr diesen Grundriss? - Seite 211
19Wohin mit der Treppe? Dachausbau Walmdachbungalow - Seite 219
20Was ist bei einer Treppe beachten/Unterschie Wendeluing 22

Oben