Ideensammlung zu Grundriss

4,00 Stern(e) 4 Votes
Zuletzt aktualisiert 09.10.2025
Sie befinden sich auf der Seite 7 der Diskussion zum Thema: Ideensammlung zu Grundriss
>> Zum 1. Beitrag <<

kbt09

kbt09

So geht der Schrank aber auch nicht

Was für ein Dach wird es denn?

Ich kenne es so, dass im oberstes Geschoss die tragenden Wände nicht mehr unbedingt übereinander sitzen müssen.
 
Kisska86

Kisska86

Das wollte ich gerade auch schreiben... Im OG müssen die tragenden Wände doch gar nicht mehr genau gleich? Woran liegt das denn?
 
K

Kwasi

Ein Satteldach... aber ziemlich flach. Galerie oder Speicher sind nicht möglich...
Ok, ich werde es anfragen mit der Wand.
Was wäre die Idee? Die linke Wand noch weiter nach rechts zu schieben?
 
kbt09

kbt09

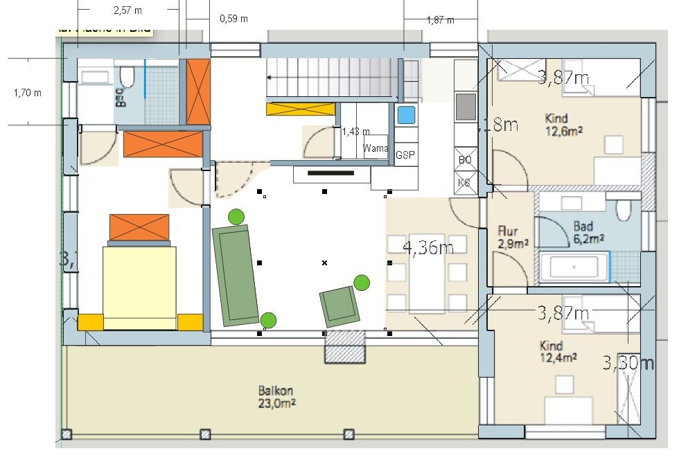
Ich habe auch noch mal geschoben. Die Wand zum Schlafzimmer bleibt. Terrassenzugang gestrichen , dafür Fenster planlinks an der Westwand.

Das Bad wird jetzt recht klein .. 90 cm Dusche, 85 cm WC, 80 cm Waschtisch.

Dafür jetzt 1x200 und 1x150 cm Kleiderschrank gut nutzbar. Bett mit dem Kopf planunten und einer 160er Wand vom "Ankleidebereich" getrennt. Da sind dann zwar bei einem Bett mit 180 cm Matratzenbreite, also min. 185 cm Bettbreite, rechts und links nur ca. 65 cm. Da da dann aber nichts aus Schränken etc. entnommen werden müßte, sollte das gerade so gehen. Gut wäre es vielleicht die Wand noch 20 cm oder so nach rechts zu rücken.

Im Flur zunächst 170 cm Stauraum für alle Jacken, Schuhe usw. (dunkelorange). Um die Ecke dann in ca. 40 cm Tiefe eine Wandgarderobe für die gerade aktuellen Jacken. Der Flur endet mit einer kleinen Abstellkammer. Platz für Waschmaschine, aber auch Staubsauger und Konsorten. Ein kleines Vorratsregal sollte auch noch passen. Der Wasseranschluss sollte da günstig in Kombination mit der Spülenzeile so gelegt werden können, dass er auf dem Weg nach unten auch die Küche unten mit anbindet.

Sofa jetzt mit 250x90 cm sowie ein Sessel. Ich würde da eher kleine Beistelltischchen nutzen.

Fernsehbank als Fortsetzung der Küchenzeile. Mit dem passendem Dekor könnte man das evtl. sogar aus einer Serie wählen. Sieht dann homogener aus.

Küche selber mit der Spülenhalbinsel und der Kochfeldzeile. Über der Treppe tiefenreduzierte Unterschränke. Diese Ecke kann man insbesondere als Stellplatz für div. Maschinen etc. benutzen.


Grundriss einer Wohnung mit Schlafzimmern, zwei Kinderzimmern, Bad, Küche, Flur und Balkon.
 
Zuletzt aktualisiert 09.10.2025
Im Forum Grundrissplanung / Grundstücksplanung gibt es 2513 Themen mit insgesamt 87219 Beiträgen


Ähnliche Themen zu Ideensammlung zu Grundriss
Nr.ErgebnisBeiträge
1Idee Schlafzimmer - Bett / Schrank Anordnung 32
2Fliesen oder Vinyl in Küche und Flur 19
3was für Farben für das Schlafzimmer ? - Seite 344
4Wohnen/Essen/Küche: Wie wohnt ihr oder werdet ihr wohnen? - Seite 852
5Grundriss Bungalow 150qm geschlossene Küche, überdachte Terrasse 40
6Standort Küche und Wohnzimmer 55
7Badewanne im Schlafzimmer - was haltet ihr davon? - Seite 435
8Grundriss Einfamilienhaus ohne Keller/Schlafzimmer und Bad im EG - Seite 427
9Grundriss Schlafzimmer mit Bad und Ankleide - Seite 362
10Flur-Grundriss vergrößern REH von 1921: Tipps? - Seite 227
11Massivhaus-Einfamilienhaus 142 m² Wohnfläche, Fragen zu Grundrissen/Baukosten - Seite 227
12Ankleide/Schlafzimmer Problem - Grundrissdiskussion 25
13Gestaltung Schlafzimmer 35
14Grundriss Elternbad und Durchgang zu Schlafzimmer 13
15Pfiffige Schlafzimmer Idee mit Ankleide gesucht 19
16Teppich im Schlafzimmer trotz Fußbodenheizung? - Seite 336
17Extra-Bad vom Schlafzimmer oder doch Abstellraum? - Seite 329
18Einteilung Grundriss Allraum Küche Wohnen Essen - Seite 558
19Kinderzimmer und Schlafzimmer - Welche Größe ist zu empfehlen? - Seite 256
20Verbindung Schlafzimmer / Ankleidezimmer / Bad 16

Oben