Ideensammlung zu Grundriss

4,00 Stern(e) 4 Votes
Zuletzt aktualisiert 06.10.2025
Sie befinden sich auf der Seite 10 der Diskussion zum Thema: Ideensammlung zu Grundriss
>> Zum 1. Beitrag <<

kbt09

kbt09

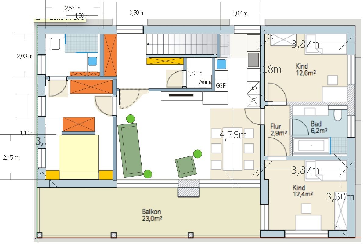
Ich habe auch mal noch 2 Varianten gemacht. So richtig finde ich aber keine Heizkörperposition.

Variante 3 (2 ist ausgefallen :

Grundriss einer Wohnung: Wohnzimmer, Küche, Flur, Bad, zwei Kinderzimmer, Schlafzimmer und Balkon.


Variante 5 (auch 4 ist ausgefallen):

Grundriss einer Wohnung: Wohnzimmer, Küche, Balkon, Flur, Bad, 2 Kinderzimmer, Schlafzimmer.
 
K

Kwasi

Variante 5 find ich gut, geht aber natürlich auch zu Lasten des Flurs.
Aber in meinem Plan ist doch ein Waschbecken? Im Bad, Ostwand?
 
kbt09

kbt09

So ähnlich wie deine Variante:


sah meine Nr. 4 aus, nur gespiegelt.
Problem sehe ich darin, dass nur 100 cm Trennwand von der Dusche nicht reichen, alles Spritzwasser aufzufangen, also müßte sie länger sein. Dann wird aber die Durchgangsecke Trennwand/Wandecke sehr eng. Bei mir lag es dann bei ca. 59 cm.
 
kbt09

kbt09

Ich finde, eine nur 140 bis 150 cm lange Dusche sollte grundsätzliche schließbar sein. Und bevorzuge dann Türlösungen, die in die Dusche öffnen. Ich mag es nämlich nicht, wenn vor der Dusche die Tür abtropft oder sich die Spritzer sammeln.
 
Zuletzt aktualisiert 06.10.2025
Im Forum Grundrissplanung / Grundstücksplanung gibt es 2510 Themen mit insgesamt 87171 Beiträgen


Ähnliche Themen zu Ideensammlung zu Grundriss
Nr.ErgebnisBeiträge
1größere Dusche im Grundriss unterbringen - Welche Größe wählen? - Seite 438
2Badplanung bei einem kleinen Bad mit Walkinn Dusche 22
38,02m Positionierung Waschbecken / Toilette 69
4Waschbecken im Wäscheraum? 18
5Badplanung - Wie den Platz für Waschbecken und Schränke nutzen 32
6In der Dusche kommt kein Warmwasser mehr an... 13
7Renovierung-Tipps für sehr kleines Bad mit Dusche statt Badewanne - Seite 336
8Grundrissplanung: Badezimmer Dusche 47
9Dusche - wie schließen? - Ideenfindung 11
10Badplanung - Dusche und Badewanne tauschen? - Seite 224
11Wäscheabwurf in Dusche einbauen? - Seite 996
12Badplanung - Spritzschutzwand der Walk-In Dusche lang genug? - Seite 214
13Bad-Grundriss 8,7qm, mit Dusche und Badewanne 16
14Nachträglicher Einbau Wanne oder Dusche? - Seite 227
15Kleine Walk-in-Dusche möglich? - Seite 211
16Badezimmer Grundriss 11
17Duschbeleuchtung Walk in Dusche - Seite 214
18Ablaufrinne Bodenebene Dusche mit Fußbodenheizung 44
19Anschluss Badewanne an Dusche 21
20Fliesenhöhe 2 m in Dusche genug? 18

Oben