
roteweste
Oben finde ich den Grundriss absolut gelungen. Besonders das Bad finde ich richtig gut. Eine gute Anordnung der Zonen, man schaut nicht direkt beim Reinkommen aufs Klo und an Schränke wurde auch gedacht. Wirklich top aus meiner Sicht.
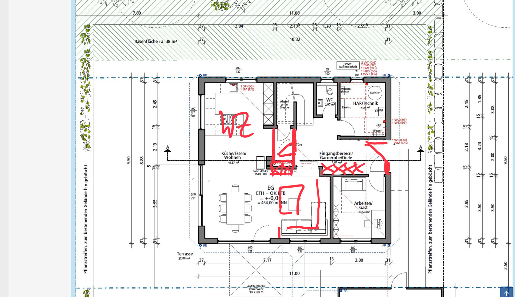
Unten bin ich froh, dass ihr euch gegen die Speise im Zentrum des Hauses entschieden habt. Die 6 m², die ihr gewonnen habt, tuen den Wohn-Ess-Kochbereich wirklich gut. Ihr habt jetzt schöne Flächen um euch zu bewegen und auch insgesamt wirkt der Raum jetzt viel harmonischer.
So richtig gefällt mir die Eingangs- bzw. Garderobensituation immer noch nicht. Da wo ihr im Flur Platz habt euch zu bewegen sind keine Möbel und umgekehrt. Aber ich kenne das Problem: Wir kommen auch über die lange Seite von Osten rein, was in der Konsequenz bedeutet, dass man zumindest durch sein halbes Haus laufen darf, bevor man im Wohn-Ess-Kochbereich ist, wenn man eine Anordnung über L will. Ich hab inzwischen meinen Frieden mit unseren Flur gemacht, aber vielleicht kann hier ja mal der ein oder andere Vielposter mal einen raushauen.
Unten bin ich froh, dass ihr euch gegen die Speise im Zentrum des Hauses entschieden habt. Die 6 m², die ihr gewonnen habt, tuen den Wohn-Ess-Kochbereich wirklich gut. Ihr habt jetzt schöne Flächen um euch zu bewegen und auch insgesamt wirkt der Raum jetzt viel harmonischer.
So richtig gefällt mir die Eingangs- bzw. Garderobensituation immer noch nicht. Da wo ihr im Flur Platz habt euch zu bewegen sind keine Möbel und umgekehrt. Aber ich kenne das Problem: Wir kommen auch über die lange Seite von Osten rein, was in der Konsequenz bedeutet, dass man zumindest durch sein halbes Haus laufen darf, bevor man im Wohn-Ess-Kochbereich ist, wenn man eine Anordnung über L will. Ich hab inzwischen meinen Frieden mit unseren Flur gemacht, aber vielleicht kann hier ja mal der ein oder andere Vielposter mal einen raushauen.