Grundstück- und Grundriss-Planung mit Zufahrt in Süd-Ost

4,60 Stern(e) 7 Votes
Zuletzt aktualisiert 03.01.2026
Sie befinden sich auf der Seite 2 der Diskussion zum Thema: Grundstück- und Grundriss-Planung mit Zufahrt in Süd-Ost
>> Zum 1. Beitrag <<

S

Schorsch_baut

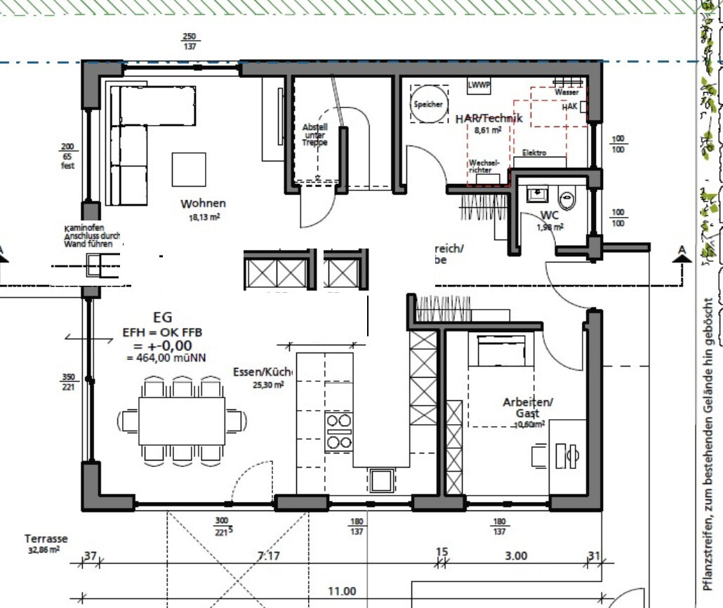
Ich würde statt der Kammer eine Hochschrankzeile setzen und die Insel verbreitern. Den Kamin an die Außenwand.


Grundriss eines Hauses: Wohnzimmer, Essbereich/Küche, Arbeitszimmer, WC, Technikraum, Terrasse.
 
roteweste

roteweste

Guck dir mal im Eingangsbeitrag die blau gestrichelten Linien an. Das sollte der Bereich sein, in dem das Haus stehen darf.
Mir ging es insbesondere um die Ausrichtung von Hauseingang und Allraum. Das Haus würde dann noch 1-2 Meter nach Süden rücken. Vorteil ist dann der schöne Ausblick auf unverbautes Grün. Sicher nicht ganz konventionell, aber eine Überlegung wert, wie ich finde. Das Grundstück ist auch groß genug für eine kleine Zweitterrasse im Süden. Ich bin gerade schon etwas neidisch.
 
A

Arauki11

Die Grundfläche hier .ist. ein Rechteck.
Ok, 11 zu 9,50m ist tatsächlich kein genaues Quadrat, das ist richtig. Beim Draufschauen, und das alleine habe ich gemacht, erscheint das auch nah Genuss eines alkoholfreien Bieres wie ein Quadrat bzw. zumindest nahe dran. Ich weiß selbst nicht, ob diese üblichen "Stadtvillen" (Frage an @11ant: Hast Du Dir Deine Bezeichnung eigentlich schon patentieren lassen?) immer cm-genau ein Quadrat darstellen, dennoch erinnere ich mich an immer ähnliche Probleme, nämlich dem zu viel an Raum in der Hausmitte und dem zu wenig anderswo. Genau daraus resultiert auch dieser m.E. sinnlose Block in der Mitte, der bei einem "ausgeprägten" Rechteck dort zum Glück niemals Platz hätte.
Ich befürchte, dass zuerst der Haustyp abgefragt wurde und dieser mit "gerne eine Stadtvilla" o.ä. beantwortet wurde und der Planer erst dann die Bedürfnisse seiner Kunden darin versteckt hat.
@Häuslebauer26 ist ja erkennbar unzufrieden bislang; ich denke, dass daher ein Plan neu gedacht werden sollte, frei von unnötigen Vorgaben an die verkaufsorientierten Begriffsbestimmungen. Wenn dann immer noch so ein Pseudo-Quadrat herauskommen ok, das glaube ich aber nicht wirklich.
Und es gibt jetzt auch vom Grundriss her wenig negative Eigenschaften, die eine konventionelle Anstattvilla besitzt.
Ich möchte den Grundriss damit keinesfalls als schlecht abtun, jedoch ist die verquerte Flursituation mit 2 Garderobenseiten nicht wirklich gelungen und ich für meinen Teil hätte lieber relativ frei in den hellen Wohnraum und/oder darüber hinaus ins Grüne geschaut als auf die Rückwand der Speisekammer. Das ist aber mein ureigenes Empfinden und lediglich (m)eine Meinung.
Sofern das EG noch eine Dusche bekommt, was ich bei dieser Familiensituation als zwingend ansehen würde, wird es ohnehnin knapp, auch weil der Technikraum nicht gerade üppig ist.
Will man diese Sachsen tatsächlich in der Ankleide oder im Hauswirtschaftsraum lagern?
sag Nichts gegen diese Sachsen, gell!
Die Idee von @Schorsch_baut gefällt mir schon gut, vielleicht würde ich den rechten Garderobenteil in die Dusche umwandeln. Falls der Kamin tatsächlich sein soll trotz FBHJ würde ich über einen Außenkamin nachdenken. Das spart innen Platz und sieht meiner Meinung nach auch schick aus; wir haben das so gemacht und mögen es auch von der Außenansicht.
 
11ant

11ant

Ich sehe hier auf den ersten Blick zwei Fehlkonstruktionen: die Speisekammer umschlossen von Wohnräumen, also rundum warmgehalten obwohl sie besser an der Nordwand läge, zudem zusätzlich "geheizt" durch den Kamin; zweitens der Kamin selbst: in einem Energieeinsparverordnung-Haus schon Quatsch, in einem Gebäudeenergiegesetz-Haus erst recht. Nehmt einen "Kamin21" (Black Matrix Display, Raspberry, Sound) - authentisch, erheblich billiger, emittiert keine Überwärme, der Schornsteinfeger ist arbeitslos.

Wir stehen an dem Punkt, dass die Entscheidung für einen Bauträger im Bereich Holzfertighaus [...] gefallen ist
"Entscheidung gefallen" weil Firma nett, andere Firma weniger nett, dritte Firma zu teuer und eine vierte kennt Ihr nicht und/oder.
(kleines Familienunternehmen, Ökologische Holztafel-Bauweise mit diffussionsoffenem Wandaufbau)
Wegen des langbärtigsten Marketingwitzes von der atmenden Wand?

Von wem stammt die Planung: Architekt des Bauträgers
Wie müssen wir uns das vorstellen: seid Ihr mit Wünschen dahin gegangen und der Entwurf stammt vom "Architekten", oder hat er schlicht Euren Eigenentwurf "sauber gezeichnet" ?
Ein Laienplan (der auch ein solcher bleibt, wenn ein Provi ihn abgemalt hat) weist typischerweise etwa 20% unerkannte Überfläche auf, hat also bei 160 qm das Potential, verlustfrei (!) um ca. 25 qm (= 75 k EUR) geschrumpft werden zu können - sind die bisher ausgelesenen Mitbewerber dann immer noch über dem Budget ?

Ich weiß selbst nicht, ob diese üblichen "Stadtvillen" (Frage an @11ant: Hast Du Dir Deine Bezeichnung eigentlich schon patentieren lassen?) immer cm-genau ein Quadrat darstellen, dennoch erinnere ich mich an immer ähnliche Probleme, nämlich dem zu viel an Raum in der Hausmitte und dem zu wenig anderswo. Genau daraus resultiert auch dieser m.E. sinnlose Block in der Mitte, der bei einem "ausgeprägten" Rechteck dort zum Glück niemals Platz hätte.
Ich befürchte, dass zuerst der Haustyp abgefragt wurde und dieser mit "gerne eine Stadtvilla" o.ä. beantwortet wurde und der Planer erst dann die Bedürfnisse seiner Kunden darin versteckt hat.
Das Problem der Anstattvilla (der Begriff ist nicht schutzfähig, was mich aber nicht stört) liegt an anderen Stellen begraben, betrifft diesen Entwurf aber nicht. Auch der (treffend formuliert) "sinnlose Block in der Mitte" ist hier nur energetisch ungünstig und zerschießt den Grundriss nicht im Ganzen, trägt aber wohl zur unerkannten Überfläche bei. Das Seitenverhältnis von 22:19 (etwa 1,15 : 1) ist "weit genug" vom in der Tat planerisch ungünstigen Exaktquadrat entfernt.
 
Zuletzt aktualisiert 03.01.2026
Im Forum Grundrissplanung / Grundstücksplanung gibt es 2563 Themen mit insgesamt 88709 Beiträgen


Ähnliche Themen zu Grundstück- und Grundriss-Planung mit Zufahrt in Süd-Ost
Nr.ErgebnisBeiträge
1Grundriss Entwurf Neubau Einfamilienhaus - Grundstück 610qm - Meinungen erwünscht - Seite 850
2Hausbau 2.0 - erster Grundriss-Entwurf 155
3Grundriss-Entwurf: Einfamilienhaus mit Keller; 560qm Grundstück - Seite 765
4Bitte schaut kritisch über unseren Grundriss-Entwurf 13
5Ideensammlung Grundriss Einfamilienhaus, Bauweise offen - Seite 543
6Feedback zum Grundriss - Einfamilienhaus Flachdach - Seite 434
7Grundriss: Offenes Wohnzimmer inkl. Kamin - Feedback 11
8Grundriss erster Entwurf - Meinungen erwünscht 21
9Entwurf Grundriss Bungalow Meinungen 22
10Einfamilienhaus-Grundriss Entwurf 23
11Unser Grundriss-Entwurf, eure Meinungen 20
12Grundriss-Entwurf Stadtvilla mit Doppelgarage - Seite 238
13Entwurf Grundriss Einfamilienhaus (als Zweifamilienhaus im Alter möglich) in Hanglage - Seite 753
14Grundriss-Entwurf für Einfamilienhaus 135 qm - Ideen und Ratschläge gesucht 29
15Grundriss: Planung Türen Wohnraum + Speisekammer 17
16Grundriss: Speisekammer oder größere Küche? Erfahrungen? 14
17Grundriss-Entwurf: Einfamilienhaus mit 4 Schlafzimmern und Büro, 160qm - Seite 1482
18Grundriss-Entwurf Einfamilienhaus in Hanglage, Einliegerwohnung, Doppelgarage - Seite 271
19Unser Grundriss-Entwurf für ein günstiges Haus - Seite 4348
20Entwurf - alle Richtungen bei Neubau vom Einfamilienhaus 91

Oben