P
Pfefferminz13.04.23 11:40Hi zusammen,
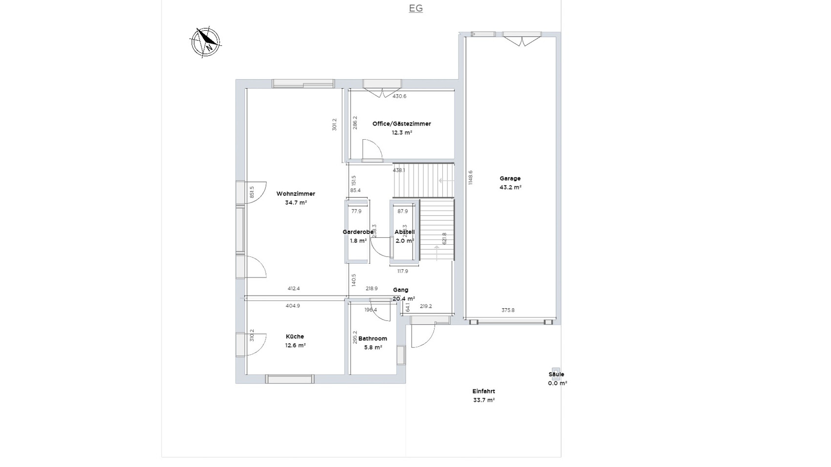
wir haben ein Grundstück im Neubaugebiet Jahnplatz in Lachen-Speyerdorf und hatten die ersten Gespräche mit einem Generalunternehmen (Massivbau). Der nachgebildete Plan (wir bekommen den richtigen Plan erst nach Unterschrift 🙄, ich hab ihn so gut es ging nachgestellt - Raumgrößen und grobe Masse sollten stimmen) entspricht unseren Wunschvorstellungen, passt aber definitiv nicht ins Budget. Gemäss Generalunternehmer wäre das kein Problem, wir tüfteln zusammen weiter bis wir auf einen Nenner kommen. Nächster Termin ist in 1 Monat. Wir haben 2 neue Pläne (1x weniger Grundfläche aber weiterhin mit Keller, 1x ohne Keller) mit Kalkulation angefordert, bis dahin wollte ich aber auch mal hier im Forum nach offensichtlichen Problemstellen/Verbesserungsvorschläge/Ideen fragen und weitere Meinungen einholen.
Bebauungsplan/Einschränkungen
Größe des Grundstücks: 480 m2 (16m x 30m)
Hang: Nein
Grundflächenzahl: 0.4
Geschossflächenzahl: -
Baufenster, Baulinie und -grenze: min. 3m zur Strasse, max. 19m
Randbebauung: 12m
Anzahl Stellplatz: 2
Geschossigkeit: Offiziell 2 Vollgeschosse, aber OG wird 2.30 Kniestock haben, da sonst maximale Höhe überschritten wird
Dachform
Stilrichtung: Satteldach
Ausrichtung: Nicht festgelegt
Maximale Höhen/Begrenzungen: 30-38°
weitere Vorgaben
Anforderungen der Bauherren
Stilrichtung, Dachform, Gebäudetyp: Standardhaus
Keller, Geschosse: 2 Geschosse, Keller falls machbar
Anzahl der Personen, Alter: 2 Erwachsene (35), 1 Kind (+1)
Raumbedarf im EG, OG: Büro für Homeoffice, sonst nur Schlafzimmer und nichts besonderes
Schlafgäste pro Jahr: 1x im Monat
offene oder geschlossene Architektur: offen
konservativ oder moderne Bauweise: modern? (was bedeutet konservativ?)
offene Küche, Kochinsel: offene Küche, 1/2 Kücheninsel
Anzahl Essplätze: 4 im Alltag, bis zu 8 sollte passen
Kamin: Nein
Musik/Stereowand: Nichts besonderes
Balkon, Dachterrasse: Nein
Garage, Carport: Eigentlich egal
Nutzgarten, Treibhaus: Nutzgarten und Rasen geplant
weitere Wünsche/Besonderheiten/Tagesablauf, gern auch Begründungen, warum dieses oder das nicht sein soll: nichts besonderes
Hausentwurf
Von wem stammt die Planung: Planer eines Bauunternehmens
Was gefällt besonders? Warum? Generell sind alle unsere Nice-To-Haves erfüllt, wir würden sofort einziehen.
Was gefällt nicht? Warum? Speisekammer scheint mir am falschen Ort, Garderobe fühlt sich ein wenig fehl am Platz an, Garage zu lange, Bad und Arbeitszimmer könnten kleiner sein
Preisschätzung lt Architekt/Planer: 648'000, inkl. Extras (Garage 46k, Belüftungsanlage 16k, Solar 10kwH 22k, pauschal Außenanlagen 25k), exklusive Erdarbeiten, Nebenkosten und sonstiges
Persönliches Preislimit fürs Haus, inkl Ausstattung: Alles zusammen mit allem drum und dran haben wir 600'000 angesetzt, d.h. wir würden gerne den Preis vom Haus auf 500k drücken, um genügend Puffer für den Rest zu haben (Einrichtung, Baunebenkosten, Puffer).
favorisierte Heiztechnik: Nahwärme ist vorgeschrieben
Wenn Ihr verzichten müsst, auf welche Details/Ausbauten
-könnt Ihr verzichten: Garage könnte zu Carport + Geräte/Fahrrad-Schuppen, Leseecke und Sitzecke im OG kann weg, Bad und Arbeitszimmer könnten kleiner sein. Ankleidezimmer ein nice-to-have, könnte auch anders aufgeteilt sein. Wenn es wirklich sein muss könnten wir bestimmt auch auf den Keller verzichten, aber dann muss das Dach für Stauraum ausgebaut werden und HA+Hauswirtschaftsraum irgendwo im EG/OG untergebracht werden. Speisekammer so wie es aktuell ist kein Sinn, alternativ vergrößern wir die Küche und nutzen hochschränke für Stauraum
-könnt Ihr nicht verzichten: Duschbad im EG, Küche mit 4m
Warum ist der Entwurf so geworden, wie er jetzt ist? ZB
Vorgelegter Raumplan wurde bis auf Kleinigkeiten gut und auf das Grundstück "individuel" angepasst umgesetzt, einige Sachen waren aber auch nur nice-to-haves, auf unser Budget ist bisher noch nicht wirklich eingegangen worden. Befürchte ein wenig, dass die 2 neuen Varianten auch nicht in unser Budget passen und frage mich dann, was wir noch optimieren könnten.
Was ist die wichtigste/grundlegende Frage zum Grundriss in 130 Zeichen zusammengefasst?
Wir kommen wir am besten in unser Budget? Können wir uns den Keller leisten, oder ist das Träumerei?
Ansonsten hoffe ich, dass ich mit meinem ersten Post nichts vergessen habe. Lese schon länger mit und habe hoffentlich die Grundlagen verstanden 😉 Danke schon einmal für eure Beteiligung!







wir haben ein Grundstück im Neubaugebiet Jahnplatz in Lachen-Speyerdorf und hatten die ersten Gespräche mit einem Generalunternehmen (Massivbau). Der nachgebildete Plan (wir bekommen den richtigen Plan erst nach Unterschrift 🙄, ich hab ihn so gut es ging nachgestellt - Raumgrößen und grobe Masse sollten stimmen) entspricht unseren Wunschvorstellungen, passt aber definitiv nicht ins Budget. Gemäss Generalunternehmer wäre das kein Problem, wir tüfteln zusammen weiter bis wir auf einen Nenner kommen. Nächster Termin ist in 1 Monat. Wir haben 2 neue Pläne (1x weniger Grundfläche aber weiterhin mit Keller, 1x ohne Keller) mit Kalkulation angefordert, bis dahin wollte ich aber auch mal hier im Forum nach offensichtlichen Problemstellen/Verbesserungsvorschläge/Ideen fragen und weitere Meinungen einholen.
Bebauungsplan/Einschränkungen
Größe des Grundstücks: 480 m2 (16m x 30m)
Hang: Nein
Grundflächenzahl: 0.4
Geschossflächenzahl: -
Baufenster, Baulinie und -grenze: min. 3m zur Strasse, max. 19m
Randbebauung: 12m
Anzahl Stellplatz: 2
Geschossigkeit: Offiziell 2 Vollgeschosse, aber OG wird 2.30 Kniestock haben, da sonst maximale Höhe überschritten wird
Dachform
Stilrichtung: Satteldach
Ausrichtung: Nicht festgelegt
Maximale Höhen/Begrenzungen: 30-38°
weitere Vorgaben
Anforderungen der Bauherren
Stilrichtung, Dachform, Gebäudetyp: Standardhaus
Keller, Geschosse: 2 Geschosse, Keller falls machbar
Anzahl der Personen, Alter: 2 Erwachsene (35), 1 Kind (+1)
Raumbedarf im EG, OG: Büro für Homeoffice, sonst nur Schlafzimmer und nichts besonderes
Schlafgäste pro Jahr: 1x im Monat
offene oder geschlossene Architektur: offen
konservativ oder moderne Bauweise: modern? (was bedeutet konservativ?)
offene Küche, Kochinsel: offene Küche, 1/2 Kücheninsel
Anzahl Essplätze: 4 im Alltag, bis zu 8 sollte passen
Kamin: Nein
Musik/Stereowand: Nichts besonderes
Balkon, Dachterrasse: Nein
Garage, Carport: Eigentlich egal
Nutzgarten, Treibhaus: Nutzgarten und Rasen geplant
weitere Wünsche/Besonderheiten/Tagesablauf, gern auch Begründungen, warum dieses oder das nicht sein soll: nichts besonderes
Hausentwurf
Von wem stammt die Planung: Planer eines Bauunternehmens
Was gefällt besonders? Warum? Generell sind alle unsere Nice-To-Haves erfüllt, wir würden sofort einziehen.
Was gefällt nicht? Warum? Speisekammer scheint mir am falschen Ort, Garderobe fühlt sich ein wenig fehl am Platz an, Garage zu lange, Bad und Arbeitszimmer könnten kleiner sein
Preisschätzung lt Architekt/Planer: 648'000, inkl. Extras (Garage 46k, Belüftungsanlage 16k, Solar 10kwH 22k, pauschal Außenanlagen 25k), exklusive Erdarbeiten, Nebenkosten und sonstiges
Persönliches Preislimit fürs Haus, inkl Ausstattung: Alles zusammen mit allem drum und dran haben wir 600'000 angesetzt, d.h. wir würden gerne den Preis vom Haus auf 500k drücken, um genügend Puffer für den Rest zu haben (Einrichtung, Baunebenkosten, Puffer).
favorisierte Heiztechnik: Nahwärme ist vorgeschrieben
Wenn Ihr verzichten müsst, auf welche Details/Ausbauten
-könnt Ihr verzichten: Garage könnte zu Carport + Geräte/Fahrrad-Schuppen, Leseecke und Sitzecke im OG kann weg, Bad und Arbeitszimmer könnten kleiner sein. Ankleidezimmer ein nice-to-have, könnte auch anders aufgeteilt sein. Wenn es wirklich sein muss könnten wir bestimmt auch auf den Keller verzichten, aber dann muss das Dach für Stauraum ausgebaut werden und HA+Hauswirtschaftsraum irgendwo im EG/OG untergebracht werden. Speisekammer so wie es aktuell ist kein Sinn, alternativ vergrößern wir die Küche und nutzen hochschränke für Stauraum
-könnt Ihr nicht verzichten: Duschbad im EG, Küche mit 4m
Warum ist der Entwurf so geworden, wie er jetzt ist? ZB
Vorgelegter Raumplan wurde bis auf Kleinigkeiten gut und auf das Grundstück "individuel" angepasst umgesetzt, einige Sachen waren aber auch nur nice-to-haves, auf unser Budget ist bisher noch nicht wirklich eingegangen worden. Befürchte ein wenig, dass die 2 neuen Varianten auch nicht in unser Budget passen und frage mich dann, was wir noch optimieren könnten.
Was ist die wichtigste/grundlegende Frage zum Grundriss in 130 Zeichen zusammengefasst?
Wir kommen wir am besten in unser Budget? Können wir uns den Keller leisten, oder ist das Träumerei?
Ansonsten hoffe ich, dass ich mit meinem ersten Post nichts vergessen habe. Lese schon länger mit und habe hoffentlich die Grundlagen verstanden 😉 Danke schon einmal für eure Beteiligung!
Pfefferminz schrieb:
Geschossigkeit: Offiziell 2 Vollgeschosse, aber OG wird 2.30 Kniestock haben, da sonst maximale Höhe überschritten wirdWie darf denn die Höhe sein? Und warum wird sie überschritten? Weil der Keller etwas aus dem Boden herauskommt?Warum darf die Grenzgarage länger als 9 m sein?
Budget .. kurz überschlagen, das sind gut 190 m² Wohnfläche in EG/OG plus Keller und den ganzen Wünschen. Da halte ich die Architektenschätzung für mehr als gerechtfertigt. Pi mal Daumen Formel von 3000 €/qm muss man da schon planen. D. h. meiner Meinung nach max. 150 qm plus Keller, wenn 500000 reichen sollen.
P
Pfefferminz13.04.23 12:31Also müssen etwa 20qm pro Stockwerk weg? Im OG geht das glaube ich recht gut, im EG fällt mir das nicht ganz so einfach. Das Arbeitszimmer kann wie gesagt gerne kleiner sein. Offiziell soll das Arbeitszimmer+Gäste-Kombi werden, dass im Alter auch als offizielles Schlafzimmer genutzt werden kann, dann darfs aber auch nicht zu schmal werden zum "einfachen" Einstieg ins Bett. Generell gefällt mir die Garderobe + Speisekammer/Abstelltraum nicht ganz so gut, aber die Treppe muss ja auch irgendwo hin.
Der Generalunternehmer "drängt" uns eher in Richtung ohne Keller zu planen, ein paar qm weniger würden nicht so viel einsparen. Der Wunsch nach zusätzlicher Kalkulation mit kleinerer Grundfläche + Keller kommt von uns, würde es einfach gerne durchkalkuliert bekommen.
Zur Höhe: Gebäudehöhe darf 132.50m über NHN sein, finde auf Anhieb aber die Angaben zur Strasse nicht mehr. Aktuell haben wir folgende Raumhöhen: KG 2.58m, EG 2.67m, DG Kniestock 2.30m und der Generalunternehmer meinte schon im ersten Gespräch, dass es aufgrund Maximalhöhe zum Kniestock kommt. Die gleiche Frage zum Keller habe ich auch gestellt, aber Erdgeschoss sollte eben zur Strasse sein, sonst bräuchten wir noch mehr. 2.30m ist für uns auch eigentlich recht in Ordnung. Worauf ziehlt deine Frage ab?
Uns wurde eine Randbebauung von 12m genannt, daher 11.60m die Garage + ein Sockel für das Vordach.
Der Generalunternehmer "drängt" uns eher in Richtung ohne Keller zu planen, ein paar qm weniger würden nicht so viel einsparen. Der Wunsch nach zusätzlicher Kalkulation mit kleinerer Grundfläche + Keller kommt von uns, würde es einfach gerne durchkalkuliert bekommen.
Zur Höhe: Gebäudehöhe darf 132.50m über NHN sein, finde auf Anhieb aber die Angaben zur Strasse nicht mehr. Aktuell haben wir folgende Raumhöhen: KG 2.58m, EG 2.67m, DG Kniestock 2.30m und der Generalunternehmer meinte schon im ersten Gespräch, dass es aufgrund Maximalhöhe zum Kniestock kommt. Die gleiche Frage zum Keller habe ich auch gestellt, aber Erdgeschoss sollte eben zur Strasse sein, sonst bräuchten wir noch mehr. 2.30m ist für uns auch eigentlich recht in Ordnung. Worauf ziehlt deine Frage ab?
Uns wurde eine Randbebauung von 12m genannt, daher 11.60m die Garage + ein Sockel für das Vordach.
Ich würde auch den Keller weglassen.
Zur Höhe: es ist ein Satteldach geplant: warum nutzt Ihr das nicht? Das wäre ein adäquater Wohnraum für die Schlafräume. Stattdessen plant ihr zwei Geschosse plus Dach. Das ist meiner Meinung nach eine Nummer… also ein Geschoss zu hoch. Also auch zum Keller.
Bei 500000 sehe ich zwei schöne Geschosse, wovon eins im Dach liegt. Ggf fällt dann zusätzlich noch ein Dachboden an, das kann ich in Kürze nicht prüfen.
Zum Entwurf: schon Eure Flure empfinde ich als viel zu groß.
Zur Höhe: es ist ein Satteldach geplant: warum nutzt Ihr das nicht? Das wäre ein adäquater Wohnraum für die Schlafräume. Stattdessen plant ihr zwei Geschosse plus Dach. Das ist meiner Meinung nach eine Nummer… also ein Geschoss zu hoch. Also auch zum Keller.
Bei 500000 sehe ich zwei schöne Geschosse, wovon eins im Dach liegt. Ggf fällt dann zusätzlich noch ein Dachboden an, das kann ich in Kürze nicht prüfen.
Zum Entwurf: schon Eure Flure empfinde ich als viel zu groß.
H
hanghaus202313.04.23 14:35Zu den Garagen In der Textfassung finde ich nur die Bemerkung.
"Allerdings werden Nebenanlagen zur Wahrung des Ortsbildes in der Kubatur begrenzt."
Gibt es dann im Plan eine Einschränkung?
"Allerdings werden Nebenanlagen zur Wahrung des Ortsbildes in der Kubatur begrenzt."
Gibt es dann im Plan eine Einschränkung?
C
Costruttrice13.04.23 14:35Wenn ihr mit dem Plan exklusive Erdarbeiten schon 150.000€ über Budget liegt, hilft es nicht, an dem Plan festzuhalten und hier und da ein paar qm einzusparen. Meines Erachtens müsst ihr ganz neu dran gehen und komplett neu planen lassen. Parallel würde ich auch andere Unternehmen anfragen.
Ähnliche Themen