Grundstück - Baufenster - Lage von Haus und Garage

5,00 Stern(e) 6 Votes
Zuletzt aktualisiert 04.10.2025
Sie befinden sich auf der Seite 5 der Diskussion zum Thema: Grundstück - Baufenster - Lage von Haus und Garage
>> Zum 1. Beitrag <<

Y

ypg

Der Keller hat sich wieder gedreht, oder?
Bekommt der noch einen Ausseneingang? Ansonsten ist es ein klassisches Foto einer Standard-Zeichnung ohne Bemaßung. Ob nun für Möbel verkleinert dargestellt werden oder nicht, kann nicht gesagt werden. Ich würde mir überlegen, ob die Möblierung so sein soll : Bad empfinde ich als kleine Katastrophe. Es ist mit nicht zeitgemäßen Sanitärobjekten ausgestattet, ob die Wanne bequeme 89 cm in der Breite hat, mag ich bezweifeln. Die Dusche im kleinen Bad: wie groß soll sie sein?
In einem Entwurf sind die Maße sehr wichtig. Nur mit denen kann man definitiv sagen, ob eine Breite von einem Raum ausreicht oder die Länge der Wand auch die gewollten Möbel aufnimmt. Auch Änderungen kann man schlecht auf eine unbemaßte Fläche bringen.

Habt ihr mit diesem Häuslebauer schon gesprochen? Wenn man mit den BU ein Haus erarbeitet, bekommt man kein Katalogbildchen, sondern einen Vermessenen Grundriss mit Lageplan.
 
S

skybiker2000

Hallo zusammen,

ich war wohl wieder zu schnell. Pläne ohne Maße bringen einfach nichts...
Hier nun ein neuer Plan mit Maßen.

Könnt ihr da vielleicht noch mal drüber schauen? Das wäre super!
Ich denke, dass eine Gerade Treppe, doch einfach sehr viel Platz benötigt!?

Vielen Dank für eure Rückmeldungen!

EG:

Grundriss eines Hauses: Küche, Ess- und Wohnzimmer, Büro, Diele, Dusche/Bad, Garderobe, Treppe.

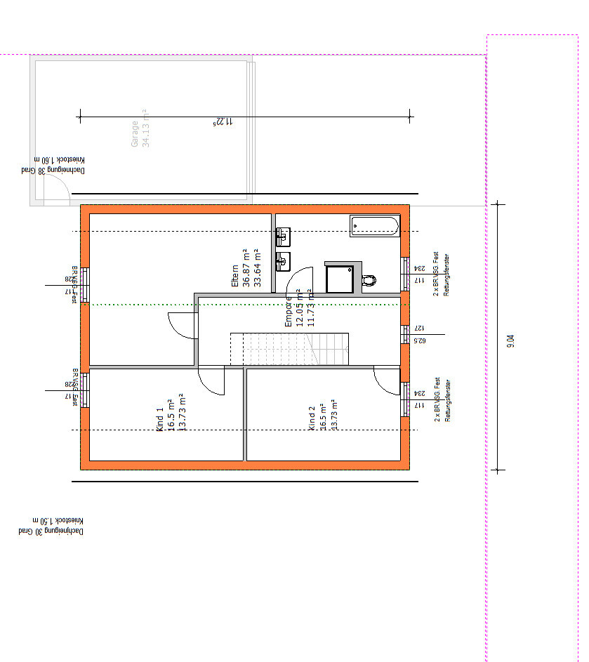
DG:

Grundriss eines Hauses: orange Außenwand, drei Zimmer (Eltern, Kind 1, Kind 2), Treppe, Bad.

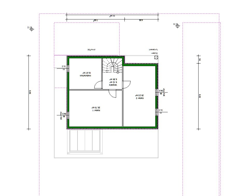
UG:

Grundriss eines Gebäudes: Garage links, zentrales Treppenhaus und mehrere Räume mit Türen.
 
Y

ypg

Du planst auf ca. 1050 Länge Essbereich und Küche, während letztere knappe 3 Meter Breite zur Verfügung steht. Da sieht man auch ohne Möblierung, dass das Verhältnis nicht stimmt: in der Breite schlecht zu möblieren, zu viel unnütze Fläche auf der Länge, das auch im Bereich des Wohnzimmereinganges.
Küchentür lässt keine sinnvolle Möblierung zu. Garderobe wären die Maße auch interessant.
 
kbt09

kbt09

Das sind doch schon wieder andere Pläne als in Beitrag 23. Möbliere die mal, die Türen sind teilweise an den unmöglichsten Stellen und zerstören viele Möblierungsmöglichkeiten.

Wie lang ist die Treppe? Anzahl Steigung/Auftrittstiefe? Welche Geschosshöhe (nicht Raumhöhe) muss überwunden werden?

Das Bad im OG finde ich leider überhaupt nicht toll. Du kommst in ein dunkles Loch rein.

Und ansonsten fehlen entscheidende Maße oder Möbliereungsansätze zur Beurteilung .. z. B. auch Elternschlafzimmer.
 
S

skybiker2000

Hallo zusammen,

wir sind nun wieder bei Yvonnes ursprünglicher Zeichnung gelandet.

In den Grundrissen ist lediglich noch der Eingang im Norden. Diesen wollen wir aber wieder nach Osten ausrichten. Möglicherweise opfern wir die Speisekammer für eine größere Diele.

Was habt ihr für eine Meinung zu folgenden Grundrissen?


Grundriss eines Einfamilienhauses von oben mit orange Umrandung, PKW-Parkplatz, Terrasse und Garten.

Grundriss eines Dachgeschosses mit Treppenaufgang, mehreren Zimmern und orange markierten Außenwänden

Grundriss eines Hauses mit Treppe, Innenwänden, Türen und grüner Außenwand.

Moderne weiße Villa mit dunklem Dach, Garage, Auto, Person mit Hund vor Eingang

Moderner weißer Hauskomplex mit Garten, Terrasse, Teich, gelbem Sonnenschirm und Bäumen.

Modernes zweistöckiges Haus mit dunklen Holzakzenten, Garage und Auto, Garten mit Topfpflanzen

Übersicht eines offenen Wohn- und Essbereichs mit Treppe, Arbeitszimmer und Fluren.


Ich sage schon mal Danke für eure Rückmeldungen!

Zur Garage:

Ich habe mir schon überlegt einen Durchgang zwischen Haus und Garage vorzusehen. So 1,5 m Abstand ist gut möglich. Würdet ihr das machen?
 
Zuletzt aktualisiert 04.10.2025
Im Forum Bauplanung gibt es 5061 Themen mit insgesamt 100646 Beiträgen


Ähnliche Themen zu Grundstück - Baufenster - Lage von Haus und Garage
Nr.ErgebnisBeiträge
1 2 Vollgeschosse, Durchgang Garage, Hauswirtschaftsraum unter Treppe 25
2Grundriss Einfamilienhaus ca. 135 m³, Grundriss. Garage, 1,5 Geschossig, 4 Personen 11
3Grundriss Stadtvilla 190 m² auf Bodenplatte - Seite 1171
4Möblierung unseres Wohn-/Essbereiches mit Split-Level 12
5Haus und Garage - Wie am besten auf den Grundstücken platzieren? - Seite 367
6Bebauungsplan: Garage auf Grenze außerhalb Baufenster 53
7Platzierung Haus und Garage auf leerem Grundstück - Ideen? 17
8"Überlappung" 1 Geschoss zur Treppe 11
9Neubau Einfamilienhaus ohne Garage in Eigenleistung - Seite 667
10Technikraum in Garage einbauen? Ist dies möglich? 35
11Haus ohne Garage und Keller? Ausbau Dachboden? Fresswarze? - Seite 585
12Grundriss Einfamilienhaus / Garage im EG? 10
13Lage von Haus & Garage im Baufenster planen *Vorplanung* - Seite 4129
14Grundriss, längliches Einfamilienhaus, integrierte Garage kein Keller 16
15Grundriss Einfamilienhaus (ca. 170 qm) mit Garage - Hanglage 35
16Grundriss 140 m2 Einfamilienhaus mit Garage - Hausausrichtung ok? - Seite 218
17Grundriss: 150qm Einfamilienhaus+Einliegerwohnung - Carport / Garage + Schuppen / Werkstatt - Seite 545
18Grundriss Einfamilienhaus mit Keller und Garage - Seite 650
19Grundriss Einfamilienhaus 240 m² mit teilüberbauter Garage 96
20Ideen für Anbau über Garage zusätzlicher Wohnraum - Seite 224

Oben