Grundrissplanung UG-EG - Hanggrundstück

4,20 Stern(e) 5 Votes
Zuletzt aktualisiert 20.12.2025
Sie befinden sich auf der Seite 2 der Diskussion zum Thema: Grundrissplanung UG-EG - Hanggrundstück
>> Zum 1. Beitrag <<

kaho674

kaho674

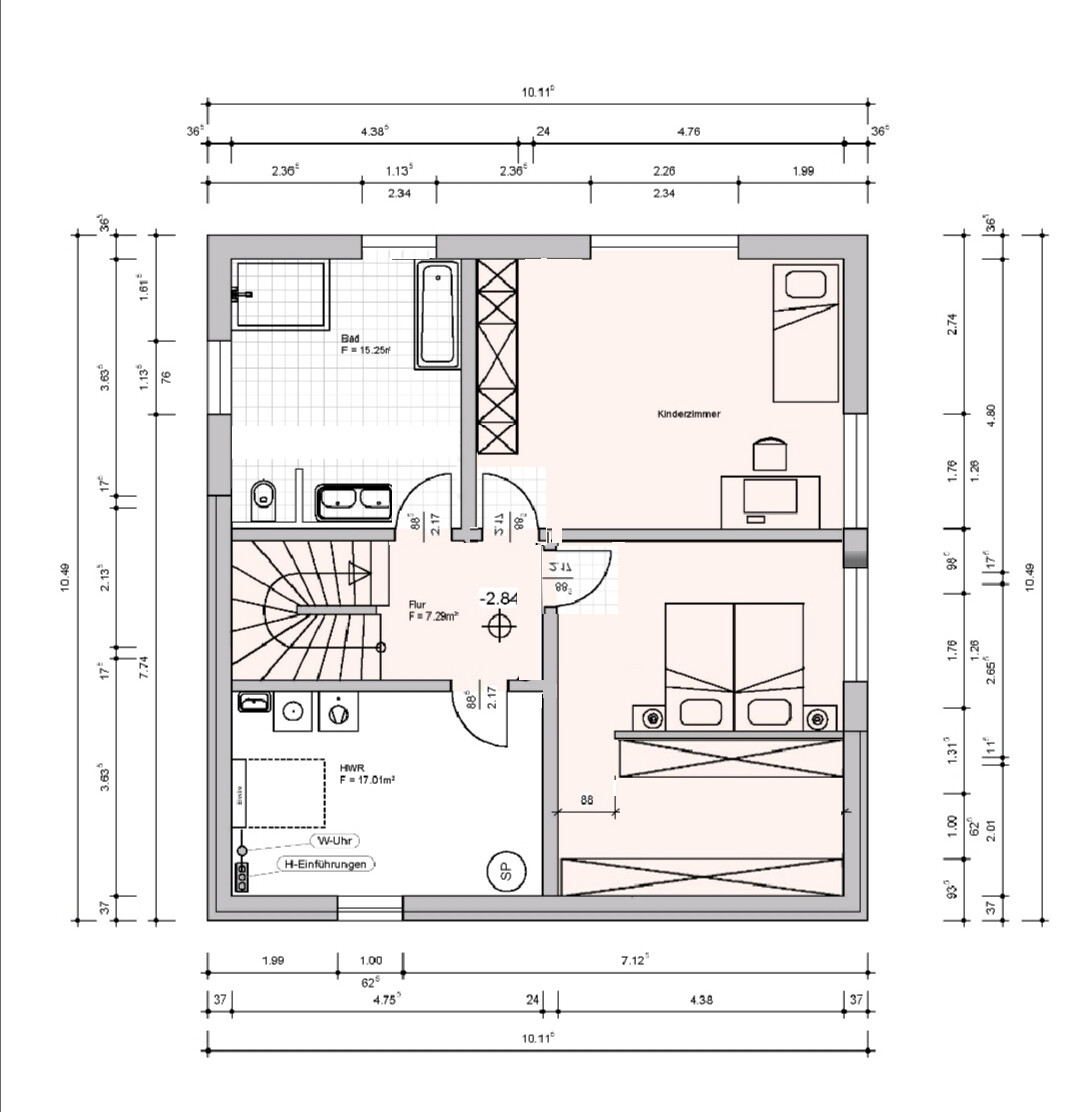
Der Zugang zum Garten ist echt verbaut. Einerseits find ich es nett, dass das Kind direkten Zugang hat. Andererseits kommt Ihr jetzt gar nicht in den Garten außer über das Bad. Das ist Schade. Wie kommen denn die Gäste in den Garten? Gibt es eine Außentreppe? Oder nutzt Ihr dann ausschließlich die Südterrasse mit Gästen?

Die Sache mit dem Bad und dem dreckigen Kind kann ich leider gar nicht nachvollziehen. Ich fände es gruselig, wenn ich in mein Wohlfühlbad komme und sich dort lauter Dreckbatzen und Sandkrümel auf den Fliesen verteilen. Zudem frag ich mich, wie lange der Sohn im Sandkasten spielen muss?

Diesen direkten Zugang zur Speis halt ich für bissl übertrieben. Da find ich andere Dinge doch wichtiger. Aber ok, wenn es denn so sein soll. Wir haben übrigens etwas über 4m2 für die Speis. Da sind drin: 1,5m regal für Dosen, Nudeln usw., gelber Sack, Papierkiste, Glaskiste, Wasserkisten (7!), Bierkiste, Weinregal, Regal für Handfeger, Tüten und dergleichen. Also seh ich bei Euch keine Gefahr, dass die Speis zu klein wird.

Mit dem Gäste-WC fast im Allraum find ich gar nicht gut. So hast Du die Klogeräusche direkt im Wohnzimmer. Die Tür allein schafft es nicht, die regelmäßigen Klospülungsgeräusche bei Gästen aufzuhalten. Das ist auch für die Gäste unangenehm. Wenn Ihr wirklich später oben schlafen wollt, wäre außerdem eine Dusche im Gäste-WC günstig.
 
H

haydee

Finde die Teilung vom Garten ungünstig. Sohn spielt unten und einer von euch muß mit. Wasser vergessen wieder hoch. Grillplatz alles nach unten und wieder hoch.

Bin für Tausch EG und UG.
Solltet ihr euch gegen einen Tausch entscheiden bitte einen direkten Zugang vom Flur zum Garten.

Käme nie auf die Idee mein Kind nach jeder Buddelaktion zu duschen. Da könnte ich sie zur Zeit 5x am Tag baden. Wenn Gastkinder da sind kommt es eh zur Dünenbildung im Haus. Sand ist überall.

Finde den Hauswirtschaftsraum für Technik, Abstell, Wäsche nicht zu groß.

EG wirkt altbacken und verschachtelt.

Überprüft mal den Essbereich sieht etwas zu klein aus. Kann leider keine Zahlen auf den Plan lesen. Qualität paßt nicht
 
S

Sternchen31

Der Zugang zum Garten ist echt verbaut. Einerseits find ich es nett, dass das Kind direkten Zugang hat. Andererseits kommt Ihr jetzt gar nicht in den Garten außer über das Bad. Das ist Schade. Wie kommen denn die Gäste in den Garten? Gibt es eine Außentreppe? Oder nutzt Ihr dann ausschließlich die Südterrasse mit Gästen?
Die 3D sind blöd, die sind noch nicht angepasst was die Außenanlage betrifft, das verwirrt Ja es sind auf beiden Seiten Möglichkeiten von oben vorne, runter in den hinteren Garten zu kommen. Wir haben beim Durchgang zwischen Garage und Hause eine Treppe nach unten geplant die seitlich zur Garage hinten bei der Garage runter geht. Ebenso wird die Terrasse nicht so weit ums Eck gepflastert und auch nur 1 Meter breiter als die Hausecke. Die restlichen 4 Meter bis zur Grundstücksgrenze werden ganz normal, natürliches abfallendes Gelände werden. Du kannst ganz normal von der Sonnenterrasse rechts neben dem Haus hinter in den hinteren Garten laufen und zurück.

Des weitern kommt man auch auf die Sonnenterrasse ohne ins Haus gehen zu müssen. Wir werden vor dem Haus ein kleines Tor in den Garten rein machen, so das man auch direkt von der Terrasse aus die Gäste im Garten empfangen kann.

Na so war das mit dem Bad auch nicht gemeint aber lieber so als durch unser Schlafzimmer und KZ Ich würde mich irgendwie nicht wohlfühlen wenn ich im Schlafzimmer oder KZ ne Tür hätte. Ich muss das noch mal überdenken.

Aha der Tipp mit eurer Speise ist gut, danke! Ich hab mal gehört, 5-6qm mind. um gut Platz zu haben, so kam es jetzt zur Größe
 
W

Würfel*

Also du hast das tatsächlich alles sehr gut durchdacht, so dass es für eure Familie gut passt. Toll wie Du alles begründen kannst. Und wenn das Haus 10 m weit von der Straße weg kommt, ist die Terrasse nach Süden auch ok. Hinten schauen ja auch Nachbarn darauf, also so "ruhig" wird's da vielleicht auch nicht.
Ich hab Deinen Grundriss gerade mal leicht überarbeitet und hier insbesondere die schrägen Wände eliminiert, das WZ vergrößert und das Gäste-WC vom WZ abgetrennt. Dusche ist ein guter Punkt, man könnte das WC da evtl noch Richtung Arbeitszimmer erweitern. Treppe sitzt nun nen Tick weiter südlich. Badmöblierung und Fenster müssen noch angepasst werden. Vielleicht hilft Dir ja die ein oder andere Idee weiter.
Grundriss Erdgeschoss: Wohnzimmer, Küche, Essbereich, Flur, Treppe, WC, Garage und Terrasse.

Grundriss eines Apartments: Flur, Bad, Küche/HWR, Kinderzimmer und Schlafzimmer.
 
11ant

11ant

Du hättest ruhig selber darauf kommen können, uns nicht vermeintlich bei Null zu diskutieren anfangen zu lassen. Gerade wollte ich Dir einen ähnlichen Thread verlinken, da sah ich, das war Dein eigener: https://www.hausbau-forum.de/threads/eg-ug-mit-schlafraeumen-Bad-im-ug-was-meint-ihr-zur-Planung.33637/ - und in dem da: https://www.hausbau-forum.de/threads/Hanglage-einschaetzen.32724/ gab es auch schon Infos aus dem Bebauungsplan dazu.

Die Doppelgarage (Fertiggarage) bekommt zum Gefälle hin statt einer Tieferfundamentierung eine quere Nutzgarage gestellt
... soll im Klartext meinen, daß unter das Talende der Doppelgarage um 90° verdreht noch eine dritte Raumzelle in Fertiggaragengestalt druntergeschoben wird ?
Der Hausentwurf wirkt auf mich wie nicht für diese Hanglage konzipiert, sondern als sei ein Schubladenentwurf des Bauunternehmers für eine Stadtvilla genommen worden, und dann das OG oben abgeschnitten und als teilweise freiliegender Keller wieder druntergestellt. Das Ergebnis ist dann, eine zusammen mit den Fertiggaragen nur aus erwiesenermaßen normalerweise funktionierenden Elementen bestehende, eigentlich idiotensichere Kombination von der Stange grandios daran vorbeischlittern zu lassen, zumindest "befriedigend" zu überzeugen. So einfach baut man aus verdreht zusammengetackerten unschuldigen Einzelteilen ein Fragezeichen und wundert sich, warum der Funke nicht überspringt, wo man doch nichts wirklich falsch gemacht hat :-(
 
H

hampshire

Schön wie Lebensvorstellung und Entwurf sich zusammenfinden. Gefällt mir.
Im Gartenbereich würde ich einen direkten Zugang aus dem Schlafzimmer überdenken - und wenn es ein durchschreitbares bodentiefes Fenster ist.
Im Wohnbereich ist wie Du auch schon geschrieben hast die Küche sehr groß und der Essbereich vergleichsweise klein. Möglicherweise kann ein Küchenplaner da noch etwas herausholen und die Küchenanforderung auf weniger Raum realisieren.
Lediglich 10k€ Spielraum zur Architektenschätzung könnte sich als knapp erweisen.
 
Zuletzt aktualisiert 20.12.2025
Im Forum Grundrissplanung / Grundstücksplanung gibt es 2552 Themen mit insgesamt 88532 Beiträgen


Ähnliche Themen zu Grundrissplanung UG-EG - Hanggrundstück
Nr.ErgebnisBeiträge
1Planung Gäste-WC im Neubau - Wie groß muss es sein? (DIN?) - Seite 5107
2Fenster im Gäste-WC/Gästezimmer trotz Garage möglich? - Seite 333
3 2 Vollgeschosse, Durchgang Garage, Hauswirtschaftsraum unter Treppe 25
4Ankleide/Schlafzimmer Problem - Grundrissdiskussion 25
5Unser Grundriss - Verbesserungsvorschläge? - Seite 332
6Und noch eine "Stadtvilla" - Seite 320
7Einfamilienhaus mit Doppelgarage - Seite 328
8Lichtanschluss falsche Stelle Gäste-WC - Seite 529
9Lage Gäste-WC - Eingangsbereich? 28
10Gäste-WC Anordnung - Tipps? 19
11Einfamilienhaus Staffelgeschoss Fertigbauweise - Seite 226
12Grundriss 200 m² Satteldachhaus auf 780 m² 42
13Grundriss Einfamilienhaus mit Keller, 150qm, nur eingeschossig erlaubt 115
14Grundrissplanung 170qm, Satteldach, 1.5 Geschosse - Seite 216
15Werkplanung Einfamilienhaus 180qm Flachdach mit Keller & Doppelgarage - Seite 3142
16Hausausrichtung / Hauseingang und Garage - Seite 214
17Garagennebentür öffnet nicht bei ebenerdiger Terrasse - Seite 531
18Planung Einfamilienhaus in Norden NRW´s - Meinungen zur Planung gewünscht... - Seite 213
19Bitte Tipps zum Grundriss - Seite 217
20Anregung - Kritik Grundriss Einfamilienhaus 320qm - Seite 229

Oben