Grundrissplanung eines Einfamilienhaus mit ca. 130qm2 Wohnfläche

4,60 Stern(e) 7 Votes
Zuletzt aktualisiert 21.11.2025
Sie befinden sich auf der Seite 5 der Diskussion zum Thema: Grundrissplanung eines Einfamilienhaus mit ca. 130qm2 Wohnfläche
>> Zum 1. Beitrag <<

Y

ypg

Wenn die Spitze ausgebaut werden soll, würde ich versuchen, dort die Technik unterzubringen und im EG nur einen Mini-Anschlussraum für Strom und Wasser zu planen.
Ich warne davor! Es gibt zur Lagerung von Sachen, die im Haus gelagert werden und kurzerhand verfügbar sein sollten, keine Alternative (Staubsauger, Wischmop, Glühbirnen, Batterien, Getränkekisten, ggf Gefrierschrank usw)
Dass dort eventuell ein kleiner Speicherraum entsteht, keine Frage. Irgendwo müssen Deko und die Koffer ja gelagert werden, aber grundsätzlich auf Abstellfläche im EG zu verzichten halte ich für falsch.
 
K a t j a

K a t j a

Ich warne davor! Es gibt zur Lagerung von Sachen, die im Haus gelagert werden und kurzerhand verfügbar sein sollten, keine Alternative (Staubsauger, Wischmop, Glühbirnen, Batterien, Getränkekisten, ggf Gefrierschrank usw)
Ein Abstellraum kann ja irgendwo sein, aber die Technik nimmt nur unnötig Platz weg. Aber ich denke, wenn der TE Geld hätte, das Dach auszubauen, würde er gleich größer bauen. Daher ist es wohl eh kein Thema.
 
J

jan_christlieb

Hallo zusammen,

@hanghaus2023 danke für deinen Bad-Tipp. Das habe ich direkt übernommen und 90cm Platz zwischen Waschbecken und Badewanne klingt jetzt unproblematisch.

@K a t j a & @ypg ein paar Gedanken zu euren Skizzen:
  • Das EG-Bad planrechtsoben ist eine Variante die mir auch gut gefällt. Da hätte dann noch eine Dusche Platz. Die mir allerdings nur als ein nice-to-have erscheint.
  • Wichtiger finde ich einen Garderobenbereich der gut funktioniert und vor allen Dingen auch Tageslicht hat. Das fand ich in meinem letzten Entwurf schon ganz gut gelöst.
  • mit der Küche planlinks und Wohnen planrechts kann ich mich nicht so anfreunden. Planrechts ist die Süd/West Richtung wo wir Abends noch Tageslicht / ggf. ein bisschen Sonne abgreifen. Das will ich gerne im Wohnbereich haben.
  • Ich habe in meinem neuesten Entwurf (siehe anbei) den Wohnbereich nochmal ein bisschen mehr abgetrennt, denke das ist gemütlicher als alles in einem großen Raum und gibt ggf. auch einen akzeptablen Schlafplatz für einen Übernachtungsgast
  • im OG sehe ich planlinksunten auf jeden Fall das Kinderzimmer wegen der besten Lichtverhältnisse
  • planrechtunten das Büro, da ich dort Vormittags und je nach Jahreszeit auch Nachmittags viel Tageslicht habe und ich das deutlich angenehmer finde als ein Büro nach Norden zu haben
  • planrechtsoben sehe ich das Schlafzimmer, da wir dort morgens Sonne bekommen

Ich denke, bald geht es so langsam zu der Außenansicht Fenster im Norden.
Gute Überleitung. Ein paar Grundgedanken:
  • bei der Fensteranordnung möchte ich mich primär an den Bedürfnissen von "innen nach außen" orientieren, also passt die Fensteranordnung zur Raumfunktion und wie attraktiv ist der Ausblick und wo will / will ich keine Blicke von außen haben
  • sekundär aber nicht komplett unwichtig ist dann der Blick von außen auf das Haus - im Ganzen sollte das auch eine gewisse Struktur / Harmonie haben und nicht total wild aussehen
Mein erster Entwurf ist anbei. Ich freue mich über Kritik, Tipps und Inspirationen.
Ansicht S/O eines zweigeschossigen Hauses mit rotem Dach, beige Fassade, grüne Fensterrahmen.

NW-Ansicht: Haus mit rotem Dach, beige Fassade, blaue Fenster mit grünen Rahmen, Anbau links.

S/W-Ansicht eines Hauses mit beige Fassade, grünen Fensterrahmen und Seitenanbau.

Technische Seitenansicht eines zweistöckigen Hauses mit Keller, Dachneigung und Fenstern.

Grundriss eines Hauses: Carport, Flachdach, Schlafzimmer, Büro, Kinderzimmer, Flur.

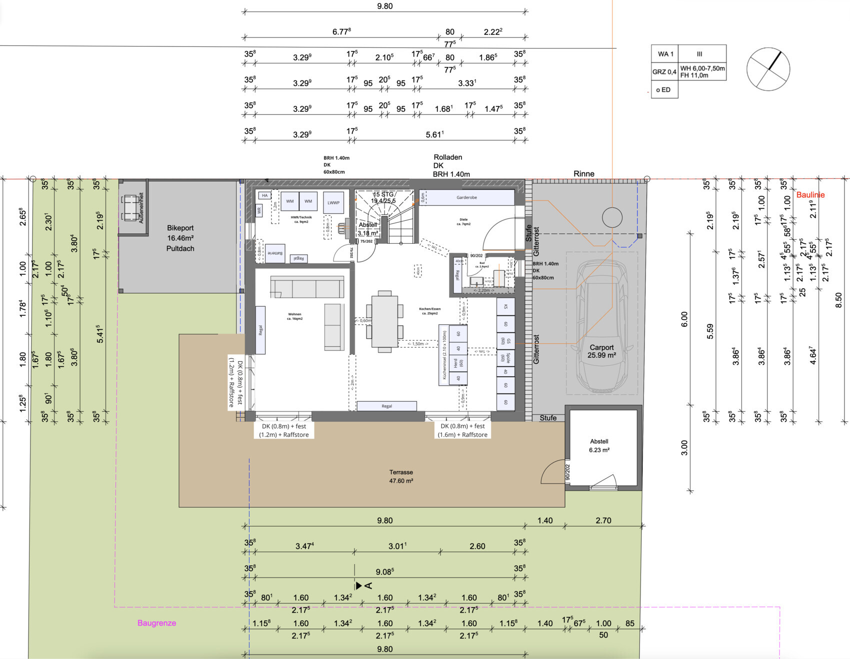
Grundriss eines Einfamilienhauses mit Terrasse, Carport, Abstellraum und Garten.
 
H

hanghaus2023

Die Vorwandelement in Dusche und WC können weg. Die integriert man in die Wand. Dann hast noch mindestens 20 cm mehr für die Dusche.
 
K a t j a

K a t j a

Nunja, das ist so lala. Mir ist der Grundriss zu offen. Das Gäste-WC ist im Grunde direkt neben dem Essplatz und Küche. Jeder, der da drauf muss, fühlt sich belauscht und hat Angst, die Tür zu öffnen, wenn es mal ein größeres Geschäft war.
Um den Essplatz sieht alles sehr eng und gepresst aus. Die Stühle werden vermutlich immer nerven, wenn man ins Wohnzimmer will.
Offene Treppe in einem kleinen Haus - da muss man sich bewusst machen, dass man oben alles hört, was unten passiert.
Ansonsten finde ich das Büro unnötig groß, aber im Wiederverkauf als 2. Kinderzimmer so sinnvoll.
 
Y

ypg

Das Gäste-WC ist im Grunde direkt neben dem Essplatz und Küche. Jeder, der da drauf muss, fühlt sich belauscht und hat Angst, die Tür zu öffnen, wenn es mal ein größeres Geschäft war.
Jetzt wirst Du aber päpstlicher als. Irgendwo hast Du immer „Kontakt“. Hier sind es Wände. Die Tür geht zur Diele, ja. Aber das ist ja immer so. Ich finde das völlig in Ordnung. Für mich sind dort Wände und zwei Ecken, die als Barriere dienen.
Offene Treppe in einem kleinen Haus - da muss man sich bewusst machen, dass man oben alles hört, was unten passiert.
Fast jedes RH kommt gut damit aus. Es scheint mir auch kein lautes Haus zu werden mit drei Personen.
Planrechts ist die Süd/West Richtung wo wir Abends noch Tageslicht / ggf. ein bisschen Sonne abgreifen. Das will ich gerne im Wohnbereich haben.
Du meinst, planlinks ist Westen.
Und genau deshalb sollte dort die Terrasse sein. Anhängig einer Terrasse gehört die Küche wegen der kurzen Wege. Die Terrasse dient ja im Sommer als Verlängerung des Aufenthaltsraumes. Dazu gehört Grillen, Kaffee Kuchen, Kind bedienen.
Ich weiß ehrlich nicht, was Du „in der Sonne“ im Wohnzimmer willst. Im Winter hat man drinnen die Südsonne oder es ist dunkel, weil nach 17 Uhr.
Die Wand gefällt mir auch gar nicht, die versaut einen schönen 40qm Allraum. Im Prinzip sind alle Wände jetzt zu nah dran.
Wenn Du eine Geschlossenheit innerhalb des EGs haben möchtest, dann würde ich das gleich planen. Aber jetzt nicht mit zusätzlichen überflüssigen Mäuerchen hier und da ankommen. Papier ist geduldig.
Essbereich gehört dem hellsten Bereich. Da gehört mM ein großes Fenster hin, wo der Esstisch steht.

Zu den Fenstern: Essbereich ist genannt.
Auf ein Fenster über einem Bett kann man verzichten, wenn es andere Möglichkeiten gibt.
Im Treppenbereich würde ich schon etwas größeres und erreichbares planen. Deins ist nicht erreichbar.
Ich würde ein Fensterband im Hauswirtschaftsraum einplanen oder tatsächlich nur eine Außentür (für Notfälle) mit Fenster.
 
Zuletzt aktualisiert 21.11.2025
Im Forum Grundrissplanung / Grundstücksplanung gibt es 2535 Themen mit insgesamt 87978 Beiträgen


Ähnliche Themen zu Grundrissplanung eines Einfamilienhaus mit ca. 130qm2 Wohnfläche
Nr.ErgebnisBeiträge
1Grundriss erster Entwurf - Meinungen erwünscht - Seite 321
2Planung unseres Einfamilienhaus - Was meint ihr zum Entwurf? - Seite 656
3Neubau Einfamilienhaus ca.220qm, 2. Entwurf Stadtvilla - Seite 959
4Hausbau 2.0 - erster Grundriss-Entwurf 155
5Grundriss Halboffene Küche mit großem Essbereich - Detailfragen 12
6Grundrissoptimierung Wohnbereich - Seite 242
7Grundriss (Einfamilienhaus / 1,5 Geschosse / ca. 170m²) 10
8Grundriss, Ideen zur räumlichen Trennung innerhalb der Küche 23
9Grundrissplanung / Entwurf Einfamilienhaus Flachdach mit Doppelgarage - Seite 787
10Grundriss Einfamilienhaus 110m² - EG + OG - erster Entwurf Einteilung Räume - Seite 16153
11Entwurf EFH, 2 Vollgeschosse, Satteldach, kein Keller, Doppelgarage - Seite 331
12Entwurf Grundriss Bungalow Meinungen - Seite 422
13Einfamilienhaus als Reihenmittelhaus an Hanglage - Entwurf - Seite 318
14Meinungen zu unserem Grundriss Entwurf erwünscht - Seite 670
15Einfamilienhaus mit 190qm - Was hält ihr von dem Entwurf? Feedback? 51
16Einfamilienhaus ~190qm, drei Kinderzimmer, ohne Keller - Feedback wäre mega - Seite 319
17Einfamilienhaus, ~160m², Bauhausstil; Erster Entwurf nach unseren Wünschen 420
18Einfamilienhaus 1,5-Geschosser ca. 150qm Grundrissplanung Do-It-Yourself Entwurf 23
19Einfamilienhaus ca. 185qm - Erster Entwurf - Verbesserungsvorschläge? 17
20Neubau Einfamilienhaus 160-170qm, 3 Kinderzimmer 39

Oben