Grundrissplanung eines Einfamilienhaus mit ca. 130qm2 Wohnfläche

4,60 Stern(e) 7 Votes
Zuletzt aktualisiert 21.11.2025
Sie befinden sich auf der Seite 3 der Diskussion zum Thema: Grundrissplanung eines Einfamilienhaus mit ca. 130qm2 Wohnfläche
>> Zum 1. Beitrag <<

Y

ypg

Treppe geht jetzt in die andere Richtung - kleines aber entscheidendes Detail. Danke.
Nein, Du hast es nicht wirklich verstanden. Damit meine ich auch nicht wirklich meine Ausführungen, sondern das Grundsätzliche.
Hier fehlt es an Plaungsgrundlagen.
Das Küchen-L geht jetzt zur anderen Seite, so habe ich an der Arbeitsfläche einen direkten Blick in den Garten / Die Küche wäre falls wirklich zu klein noch zu einem U erweiterbar.
Sie ist immer noch zu „klein“.
Sorry, aber es geht so nicht. Du hast keine Ausbildung noch wirklich planerisches Verständnis. Ein Programm zu bedienen reicht einfach nicht.
Ein Tipp, ein einziger, der gebraucht wird: es liegt an der Treppe/an den Treppen! Und das EG ist auch Mist, aber das wurde ja schon gesagt.
 
S

Schorsch_baut

Kann man auch etwas weniger heftig kritisieren.

Ich würde mehr nach fertigen Grundrissen schauen. Schau doch mal das Flair 130. Das hat funktionierende Grundrisse für Eure Bedürfnisse.
 
kbt09

kbt09

Du kannst definitiv die Treppe vom OG ins DG nicht so weit überbauen, dass du die Tür zum Abstellraum da noch setzt. Das sind mind. 4 bis 5 Stufen, die überbaut sind, du bist dann also schon auf Höhe 80 cm und stösst damit als 170 cm Mensch beim Raufgehen schon an die Decke. Beim Runtergehen ist es noch schlimmer, hier ein Beispiel, wo nur 3 Stufen überbaut sind.


Schnitt A-A: Innenansicht einer Treppe mit Geländer und einer stehenden Person auf der Treppe.


Treppen sollten sowieso eher immer übereinander angeordnet werden. Mit deiner zweiten Treppenposition verlierst du mit Treppen- und Antrittsfläche davor mind. 4 qm.

Küche ist wirklich nicht sehr groß ... Waschmaschine etc. würde ich vermutlich eher ins OG verfrachten und den Hauswirtschaftsraum kleiner machen.

Soll das DG mehr als Gästezimmer für eure Schlafgäste dienen? Dann ist das WC mit Dusche im EG an falscher Stelle. Im EG würde eigentlich ein WC reichen und dafür lieber ein kleines Bad im DG.
 
K a t j a

K a t j a

Der TE verzettelt sich hier mit der 2. Treppe im DG und dem imho überdimensionalen Technikraum.
Die Lösung für ersteres ist die Anhebung der Dachneigung auf 40°, um im DG sinnvolle Räume erschließen zu können. Dabei kann die Treppe dann über der anderen sein.
Die Aufteilung des Restes entspricht - wie schon von Yvonne erwähnt - einem Standardgrundriss, wo die Auswahl im Netz ausreichen dürfte, um etwas Ansprechendes zu finden. Bisher wurde aber auf Fragen zu Unsinnigkeiten wie dem Schrank im Extra-Flur oben nicht eingegangen.
Ohne Input kein Output.
 
J

jan_christlieb

Hallo zusammen,

nochmal Danke für euer Feedback Ich habe mich insbesondere mit den folgenden Kritikpunkten beschäftigt um den eingeschlagenen Holzweg bestenfalls wieder zu verlassen:
  • Verkleinerung des Technikraum
  • Treppe ins DG
Thema Dachgeschoss: Variante 1 wäre die Erhöhung der Dachneigung von 30 auf 45 Grad um das DG wirklich nutzbar zu machen, wie @K a t j a angemerkt hat. Das ist vom Bebauungsplan auch möglich (max. Neigung 45 Grad, max. Traufhöhe 11m). Was das für Mehrkosten bedeutet, kann ich aktuell nicht abschätzen. Als Alternative bleibt die Dachneigung bei 30 Grad und der Dachboden wird nicht ausgebaut, sondern nur mit einer Dachbodentreppe als Stauraum genutzt.

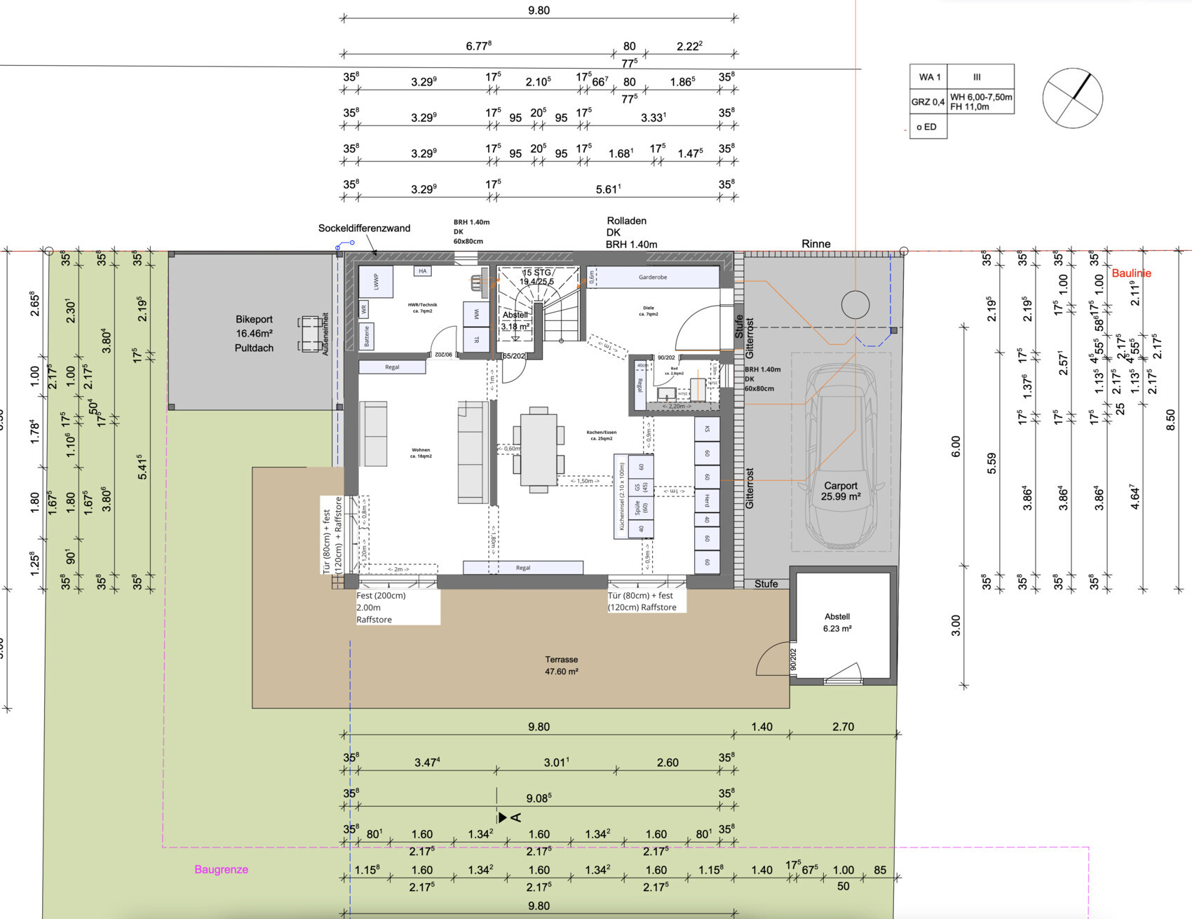
Thema Standardgrundrisse: Ich denke etliche Grundrisse passen nur auf den ersten Blick. Wir haben die Situation, dass wir direkt an den Gehweg bauen müssen, deshalb sind u.a. folgende Kriterien entscheidend:
  • Eingang seitlich
  • an der Straßenseite EG keine Wohnräume
  • Ausrichtung Kinderzimmer, Arbeitszimmer, Küche & Wohnzimmer idealerweise nach Süden oder Westen (viel Lichteinfall)
Ich habe mit dem Musterhaus Schwarzwald von Baufritz eigentlich nur einen Grundriss gefunden, der o.g. Kriterien erfüllt und mich auch an diesem weitestgehend orientiert. Falls ihr weitere Grundrisse kennt auf die o.g. Kriterien passen, freue ich mich über Hinweise.

An dem neuen Entwurf finde ich folgende Punkte aktuell nicht ideal:
  • Tür zum Hauswirtschaftsraum direkt am Wohnzimmer. Eine Idee war noch den Abstellraum unter der Treppe 1m nach hinten zu setzen und den Hauswirtschaftsraum Eingang dann seitlich unter der Treppe zu realisieren. Dazu würde mich mal eure Meinung interessieren.
  • Das Kinderzimmer und Büro im OG sind jetzt größer und meiner Meinung nach deutlich attraktiver, allerdings auf Kosten des zweiten Arbeitsplatzes. Habt ihr Ideen wie man in den Grundriss noch einen weiteren Arbeitsplatz/Ecke einbauen kann (vorausgesetzt der DG-Ausbau lässt sich nicht realisieren!) Oder will ich da einfach zu viel?!
  • Bad OG: Abstand zwischen Waschbecken und Badewanne sind nur 70cm. Hat damit einer praktische Erfahrungen? Funktioniert das oder ist das eher nicht zu empfehlen
Grundriss eines Hauses mit Carport, Terrasse, Abstell, Bikeport, Wohn- und Essbereich.

Grundriss eines Hauses mit Flur, Bad, Schlafzimmer, Büro, Kinderzimmer und Carport.

Grundriss eines Gebäudes: zwei Räume (27m2 und 16,5m2), Treppe, Dachfenster, Carport.
 
Zuletzt aktualisiert 21.11.2025
Im Forum Grundrissplanung / Grundstücksplanung gibt es 2535 Themen mit insgesamt 87978 Beiträgen


Ähnliche Themen zu Grundrissplanung eines Einfamilienhaus mit ca. 130qm2 Wohnfläche
Nr.ErgebnisBeiträge
1Stadtvilla mit ca. 200qm - ohne Keller. Bitte um Feedback - Seite 250
2Grundriss Zugang von Küche in Speis / Abstellraum - Seite 329
3auf welchen dieser Grundrisse können wir weiter aufbauen? - Seite 2287
4Grundriss 3 Kinderzimmer Einfamilienhaus - Potenziale? 43
5Minimale Grundfläche - Hauswirtschaftsraum und AZ im EG - Ohne Keller 19
6Reicht der Hauswirtschaftsraum auch als Abstellkammer aus? - Seite 422
7Einfamilienhaus mit 156 m² Grundfläche (2 Kinderzimmer + Homeoffice) 21
8Speisekammer vs. größere Küche vs. Hauswirtschaftsraum 13
9Geschlossene Küche planen mit Durchgang zum Hauswirtschaftsraum - Seite 318
10Küche und Abstellraum Etagenwohnung Grundriss optimieren 34
11Einfamilienhaus mit seitlichem Eingang -Grundrissdiskussion? 17
12 2 Vollgeschosse, Durchgang Garage, Hauswirtschaftsraum unter Treppe 25
13Grundriss Bungalow 150qm geschlossene Küche, überdachte Terrasse - Seite 240
14Neubau Einfamilienhaus 160-170qm, 3 Kinderzimmer 39
15Zugang von der Garage in den Hauswirtschaftsraum - Seite 549
16Erstentwurf Nolte Küche - Meinungen und Verbesserungsvorschläge - Seite 430
17Hauswirtschaftsraum im OG - Probleme mit Lärm? 27
18Grundriss Einfamilienhaus ohne Keller, 3 Kinderzimmer und Büro 18
19Grundriss, Ideen zur räumlichen Trennung innerhalb der Küche 23
20Grobe Schnitzer im Grundriss? Küche zu klein? 39

Oben