ᐅ Grundrissoptimierung - Planung Doppelhaushälfte ca. 200m² Wohnfläche
Erstellt am: 19.01.21 22:09
S
Stefan85Hallo zusammen,
wir planen (nach dem Abriss der bestehenden Doppelhaushälfte) den Neubau einer Doppelhaushälfte und haben hierfür schon einmal Grundrisse entworfen. Uns würden eure Meinung dazu und entsprechende Verbesserungsvorschläge sehr interessieren. Gerade mit der Aufteilung im Obergeschoss sind wir noch nicht wirklich zufrieden.
Vielen Dank schon einmal vorab für eure Anregungen und Kritik!
Bebauungsplan/Einschränkungen
Größe des Grundstücks - 640qm
Hang - nein
Randbebauung: Doppelhaushälfte
Grundflächenzahl: 0,4
Geschossflächenzahl: keine Vorgabe
Anzahl Stellplätze: 2
Geschossigkeit: keine Vorgabe (Anpassung an andere Doppelhaushälfte - EG, OG, DG)
Dachform: Satteldach, 38°
Stilrichtung: keine
Ausrichtung: Süden
Maximale Höhen/Begrenzungen: Satteldach-Traufhöhe 6,0 m; Satteldach-Firsthöhe 11,0m
Anforderungen der Bauherren
Stilrichtung, Dachform, Gebäudetyp: Satteldach
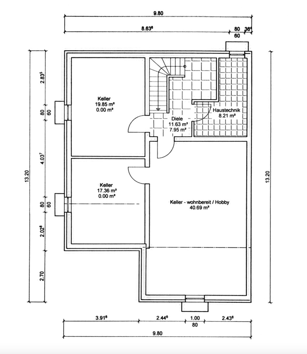
Keller, Geschosse: EG, OG, DG und Keller
Anzahl der Personen, Alter: 2 Personen (35, 29, Kinderwunsch vorhanden)
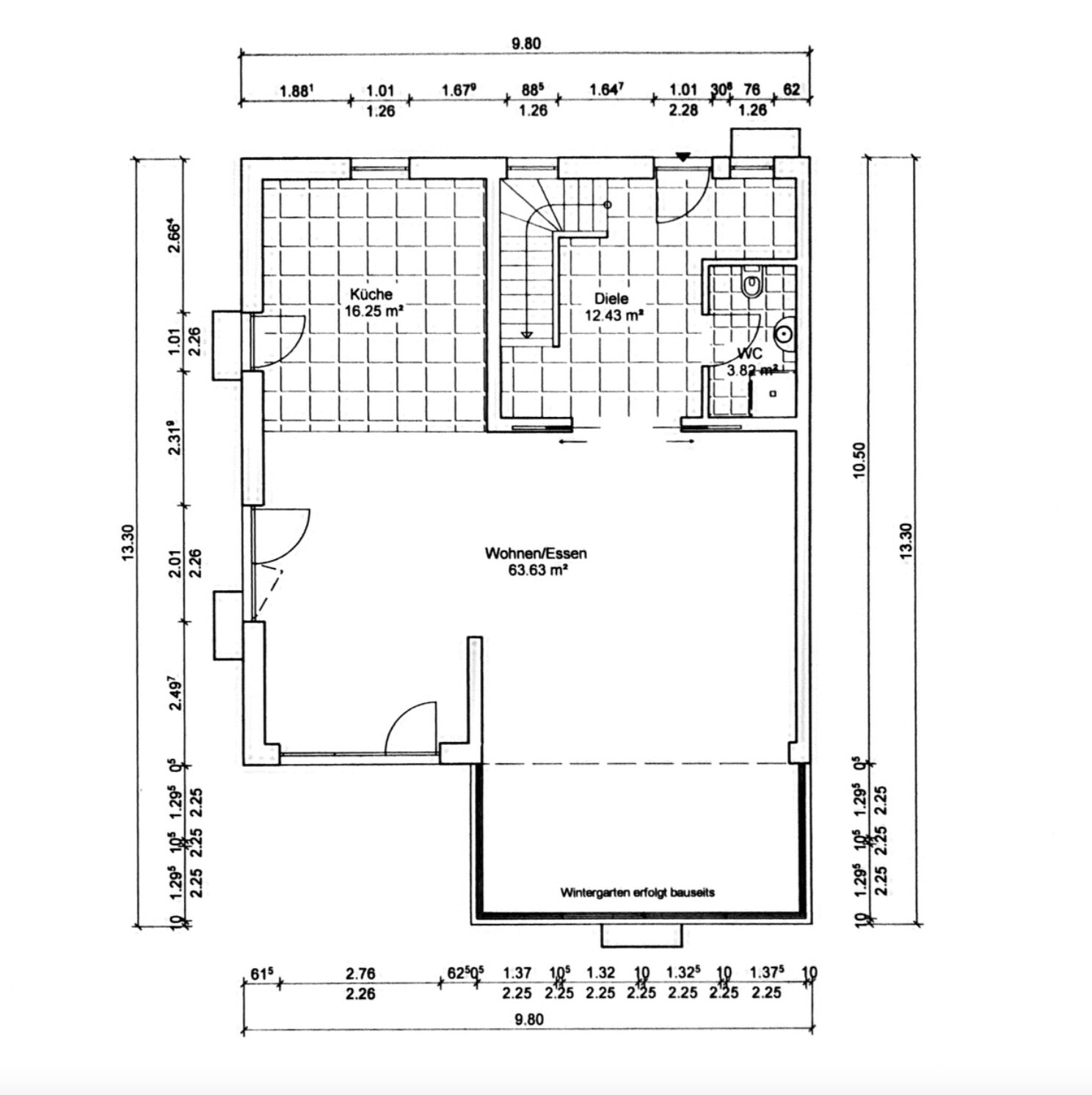
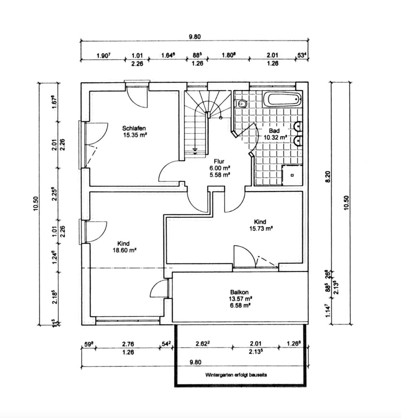
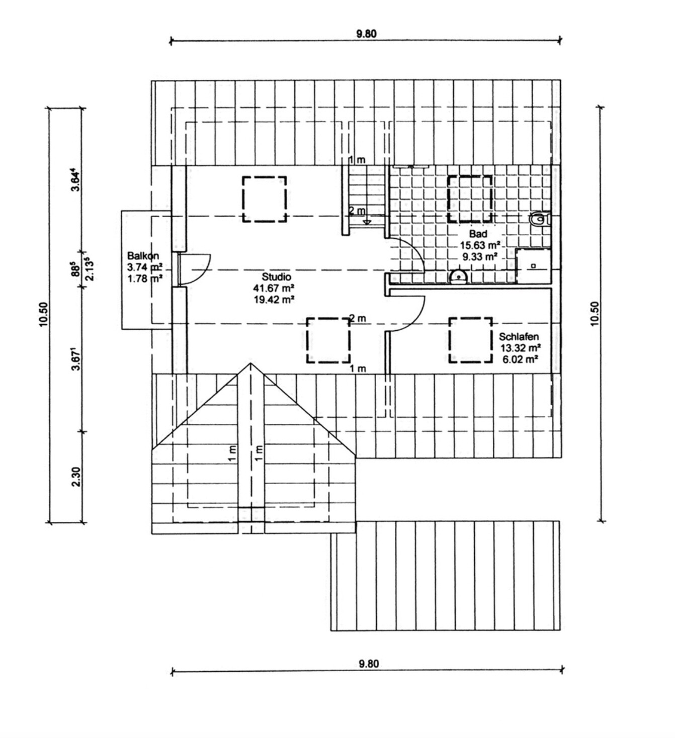
Raumbedarf im EG, OG - EG: Wohnen/Essen, offene Küche, WC/Bad. OG: 2 Kinderzimmer, Bad/WC (inkl. Badewanne). DG: Schlafzimmer, Bad/WC
Büro: Familiennutzung oder Homeoffice? - Homeoffice (1 Person, ca. 3 Tage/Woche)
Schlafgäste pro Jahr: 2 Personen, 1x pro Monat
offene oder geschlossene Architektur: offen
konservativ oder moderne Bauweise: modern
offene Küche, Kochinsel: ja
Anzahl Essplätze: 6 (Option auf 8-10)
Kamin: nein
Musik/Stereowand: nein
Balkon, Dachterrasse: ja, baulich bedingt (aufgrund Nachbar-Doppelhaushälfte) im OG nach Süden notwendig. Evtl. Balkon im DG nach Westen (Abendsonne).
Garage, Carport: Garage
Nutzgarten, Treibhaus: nein
Hausentwurf
Von wem stammt die Planung: Weitestgehend selber, bisher erst geringfügige Abstimmung mit Planer eines Bauunternehmens erfolgt
Was gefällt besonders? Warum?
- Aufteilung Wohn-, Essbereich
Was gefällt nicht? Warum?:
- Badezimmer im OG eventuell zu klein?
- Grundrissplanung im OG ("verschachtelte Zimmer")
Preisschätzung lt Architekt/Planer: ca. 480.000 (ohne Erdarbeiten & Aushub) + 90.000 geplanter Warmwintergarten
Persönliches Preislimit fürs Haus, inkl. Ausstattung: ca. 650.000
favorisierte Heiztechnik: unsicher, Fernwärme vs Wärmepumpe
Wenn Ihr verzichten müsst, auf welche Details/Ausbauten
- könnt Ihr verzichten: Dusche im EG
- könnt Ihr nicht verzichten: Gästezimmer, Wintergarten, offene Küche
Warum ist der Entwurf so geworden, wie er jetzt ist?
Offene Raumgestaltung mit großzügigem, offenem Wohn/Essbereich im EG gewünscht. Vorgaben durch Nachbar-Doppelhaushälfte (Balkon OG).
Standardentwurf vom Planer? nein
Was ist die wichtigste/grundlegende Frage zum Grundriss in 130 Zeichen zusammengefasst?
Wie könnte man den Grundriss im OG anders (weniger verschachtelt) gestalten?







wir planen (nach dem Abriss der bestehenden Doppelhaushälfte) den Neubau einer Doppelhaushälfte und haben hierfür schon einmal Grundrisse entworfen. Uns würden eure Meinung dazu und entsprechende Verbesserungsvorschläge sehr interessieren. Gerade mit der Aufteilung im Obergeschoss sind wir noch nicht wirklich zufrieden.
Vielen Dank schon einmal vorab für eure Anregungen und Kritik!
Bebauungsplan/Einschränkungen
Größe des Grundstücks - 640qm
Hang - nein
Randbebauung: Doppelhaushälfte
Grundflächenzahl: 0,4
Geschossflächenzahl: keine Vorgabe
Anzahl Stellplätze: 2
Geschossigkeit: keine Vorgabe (Anpassung an andere Doppelhaushälfte - EG, OG, DG)
Dachform: Satteldach, 38°
Stilrichtung: keine
Ausrichtung: Süden
Maximale Höhen/Begrenzungen: Satteldach-Traufhöhe 6,0 m; Satteldach-Firsthöhe 11,0m
Anforderungen der Bauherren
Stilrichtung, Dachform, Gebäudetyp: Satteldach
Keller, Geschosse: EG, OG, DG und Keller
Anzahl der Personen, Alter: 2 Personen (35, 29, Kinderwunsch vorhanden)
Raumbedarf im EG, OG - EG: Wohnen/Essen, offene Küche, WC/Bad. OG: 2 Kinderzimmer, Bad/WC (inkl. Badewanne). DG: Schlafzimmer, Bad/WC
Büro: Familiennutzung oder Homeoffice? - Homeoffice (1 Person, ca. 3 Tage/Woche)
Schlafgäste pro Jahr: 2 Personen, 1x pro Monat
offene oder geschlossene Architektur: offen
konservativ oder moderne Bauweise: modern
offene Küche, Kochinsel: ja
Anzahl Essplätze: 6 (Option auf 8-10)
Kamin: nein
Musik/Stereowand: nein
Balkon, Dachterrasse: ja, baulich bedingt (aufgrund Nachbar-Doppelhaushälfte) im OG nach Süden notwendig. Evtl. Balkon im DG nach Westen (Abendsonne).
Garage, Carport: Garage
Nutzgarten, Treibhaus: nein
Hausentwurf
Von wem stammt die Planung: Weitestgehend selber, bisher erst geringfügige Abstimmung mit Planer eines Bauunternehmens erfolgt
Was gefällt besonders? Warum?
- Aufteilung Wohn-, Essbereich
Was gefällt nicht? Warum?:
- Badezimmer im OG eventuell zu klein?
- Grundrissplanung im OG ("verschachtelte Zimmer")
Preisschätzung lt Architekt/Planer: ca. 480.000 (ohne Erdarbeiten & Aushub) + 90.000 geplanter Warmwintergarten
Persönliches Preislimit fürs Haus, inkl. Ausstattung: ca. 650.000
favorisierte Heiztechnik: unsicher, Fernwärme vs Wärmepumpe
Wenn Ihr verzichten müsst, auf welche Details/Ausbauten
- könnt Ihr verzichten: Dusche im EG
- könnt Ihr nicht verzichten: Gästezimmer, Wintergarten, offene Küche
Warum ist der Entwurf so geworden, wie er jetzt ist?
Offene Raumgestaltung mit großzügigem, offenem Wohn/Essbereich im EG gewünscht. Vorgaben durch Nachbar-Doppelhaushälfte (Balkon OG).
Standardentwurf vom Planer? nein
Was ist die wichtigste/grundlegende Frage zum Grundriss in 130 Zeichen zusammengefasst?
Wie könnte man den Grundriss im OG anders (weniger verschachtelt) gestalten?
Sind die beiden Doppelhaushälfte so unterschiedlich gepflegt, daß die Eurige alleine abrissreif ist ?
Unzufriedenheit mit dem OG ist ein klassisches Phänomen, wenn man das OG nach dem EG plant.
https://www.instagram.com/11antgmxde/
https://www.linkedin.com/company/bauen-jetzt/
Unzufriedenheit mit dem OG ist ein klassisches Phänomen, wenn man das OG nach dem EG plant.
https://www.instagram.com/11antgmxde/
https://www.linkedin.com/company/bauen-jetzt/
Hallo,
ihr baut eine Doppelhaushälfte mit Grenzbebauung und wollt den vollverglasten Warmwintergarten auf die Grenze setzen?
Auf dem Satellitenbild ist für mich nicht erkennbar, ob ihr nicht damit direkt mit Glasfront vor dem Schuppen/Hausende des Nachbarn landet...was sehr ärgerlich wäre!
Im OG hat 11ant es auf den Punkt gebracht. Eure Treppe aus dem EG lässt ein "Umstrukturieren" des OG nicht zu. Lieber nochmal neu im OG überlegen und dann auch meinen Punkt 1 mit der Platzierung des Wintergartens berücksichtigen!?
Ist das Elternschlafzimmer im DG/Studio geplant?
ihr baut eine Doppelhaushälfte mit Grenzbebauung und wollt den vollverglasten Warmwintergarten auf die Grenze setzen?
Auf dem Satellitenbild ist für mich nicht erkennbar, ob ihr nicht damit direkt mit Glasfront vor dem Schuppen/Hausende des Nachbarn landet...was sehr ärgerlich wäre!
Im OG hat 11ant es auf den Punkt gebracht. Eure Treppe aus dem EG lässt ein "Umstrukturieren" des OG nicht zu. Lieber nochmal neu im OG überlegen und dann auch meinen Punkt 1 mit der Platzierung des Wintergartens berücksichtigen!?
Ist das Elternschlafzimmer im DG/Studio geplant?
Die eine Doppelhaushälfte wurde bereits kernsaniert, das ist aber bei der anderen Doppelhaushälfte damals nicht erfolgt.
Die Seite des Wintergarten, die zum Nachbarn auf der Grenzbebauung seht, soll gemauert werden. Der Wintergarten soll dann nach zwei Seiten verglast werden.
Genau, das Elternschlafzimmer ist im DG geplant.
Die Seite des Wintergarten, die zum Nachbarn auf der Grenzbebauung seht, soll gemauert werden. Der Wintergarten soll dann nach zwei Seiten verglast werden.
Genau, das Elternschlafzimmer ist im DG geplant.
Ähnliche Themen