ᐅ Grundriss Doppelhaushälfte mit Pultdach und Balkonterrasse - Feedback
Erstellt am: 09.09.22 16:11
H
Hitokiri-1978H
Hitokiri-197809.09.22 16:11Servus,
so... was lange währt wird, vielleicht doch noch gut? Einen Fertighausanbieter haben wir und bald geht es zum Planungstermin mit dem Architekten. Ich muss gestehen, Aufgrund der vielen negativen Erfahrungen erhoffe ich mir nicht viel davon unsere Grundriss-Skizzen zu zeigen, aber wer weiß, vielleicht kommt doch jemand mit einer guten Idee um die Ecke. Mal schaun. Ich stell mich jedenfalls auf einen "schonungslosen, knallharten" Verriss ein 😀 Aber nur zu... perlt alles an mir ab 😀 So... Feuer frei!
Bebauungsplan/Einschränkungen
Größe des Grundstücks: 230 qm
Hang: nein
Grundflächenzahl ??
Geschossflächenzahl ??
Baufenster, Baulinie und -grenze lt. Bebauungsplan
Randbebauung: ein Grünstreifen mit Gehweg, sonst nur die asphaltierten Straßen und öffentliche Parkplaätze
Anzahl Stellplatz 2 (westlich vom Haus dann die Garage)
Geschossigkeit UG, EG, OG, DG
Dachform Pultdach
Stilrichtung modern, klassisch
Ausrichtung tiefe Dachrinne Neigung nach Nordnordost 12° Neigung
Maximale Höhen/Begrenzungen Tiefe Seite 8,50 m, hohe Seite 10,30 m
weitere Vorgaben Anbau im Süden als Balkon, darunter vollwertiger Wohnraum, muss eine optische Abgrenzung (Farbe aber auch geringer Versatz haben.
Anforderungen der Bauherren
Stilrichtung, Dachform, Gebäudetyp: klassisch, modern, Dachform durch Bebauungsplan festgesetzt ebenso wie Typ; Doppelhaushälfte
Keller, Geschosse: voll unterkellert, lt. Bebauungsplan
Anzahl der Personen, Alter: aktuell 3 (geplantes 2. Kind), Mann+Frau+Kleinkind: ca. 40, ca. 35, <5
Raumbedarf im EG, OG,: Was möglich ist
Büro: Familiennutzung oder Homeoffice? beides, vorrangig als Büro
Schlafgäste pro Jahr, <1
offene oder geschlossene Architektur, halboffen?
konservativ oder moderne Bauweise, ???
offene Küche, Kochinsel: geschlossene Küche, zwei Küchenzeilen
Anzahl Essplätze 6-8
Kamin nein
Musik/Stereowand nein
Balkon, Dachterrasse, ja, unnötig groß, 6,7 m x 2,50 m (ggf. wird die Südwand OG einen Meter in den Balkon versetzt, dann wäre dieser immer noch 6,7 x 1,5 m groß
Garage, Carport, ja + ein Stellplatz
Nutzgarten, Treibhaus, ein Grill und ein Handtuch passen rein, sonst wars das, ok und eine Terrasse mit Gartenmöbeln
weitere Wünsche/Besonderheiten/Tagesablauf, gern auch Begründungen, warum dieses oder das nicht sein soll:
Auf jeden Fall eine gerade (wegen Raumbedarf entfallen) Treppe, daher eine Podesttreppe mit 1m Breite. Süd, u. Westfenster sollen Markisen zusätzlich zu elekt. Rollos bekommen die an allen Fenstern sind. (Verschattung!), ein Aquarium soll im EG Platz finden (ca. 120 x 40 x 50 cm), Photovoltaikanlage, mit Batterie, Luftwasser-Wärmepumpe,
Hausentwurf
Von wem stammt die Planung: meiner Frau und mir
-Planer eines Bauunternehmens
-Architekt
-Do-it-Yourself
Was gefällt besonders? Warum? alles ist drin was wir drin haben wollen, im OG gibt es im Nordwesten ein Spielzimmer für mich mit Platz für ein Renncockpit und TV, Büro, Schlafzimmer, Kinderzimmer, Küche, WZ und Bäder kommen gut unter, bekommen hoffentlich genug Licht, aber auch nicht zu viel
Was gefällt nicht? Warum? leider kein Einfamilienhaus, praktisch keine Vegetation drumherum, nur Felder, neues Grass und frisch geplfanzte Baumsetzlinge. Neubaugebiet eben
Preisschätzung lt Architekt/Planer: 480.000 + 30.000 Eigenleistung + 90.000 (Keller + Aushub + 24.000 Photovoltaik+Batterie + 70.000 Nebenkosten = 694.000
Persönliches Preislimit fürs Haus, inkl Ausstattung: 700.000
favorisierte Heiztechnik: Luftwasser-Wärmepumpe mit Bodenheizung und Lüftung mit Kühlfunktion: Tecalor
Wenn Ihr verzichten müsst, auf welche Details/Ausbauten
-könnt Ihr verzichten: ne bescheuerte Begrünung die auf das Flachdach der Garage (und Müllhäuschen) soll, ggf. in dem ich Solarpanale dort aufstelle, eine Bodentiefe Dusche mit Glastür, Glasschiebetür im EG zur Terrasse, einige Fenster doch ohne elekt. Rollos, Aquarium??, Glühbirnen statt Lampen :/ viel mehr streichen geht kaum
-könnt Ihr nicht verzichten: Bett, 😀 es ist kein kostenintensiver Schnickschnack drin, Podesstreppe, Keller, Photovoltaikanlage wegen der Heizung,
Warum ist der Entwurf so geworden, wie er jetzt ist? ZB
Standardentwurf vom Planer? nein von uns
Entsprechende/Welche Wünsche wurden vom Architekten umgesetzt? sehen wir dann wenn es soweit ist
Ein Gemisch aus vielen Beispielen aus div. Magazinen... ??
Was macht ihn in Euren Augen besonders gut oder schlecht? Er nutzt den gegebenen Raum, maximal aus, kein Fleck wird ungenutzt, das Bad im DG ist aktuell etwas bescheuert angelegt, da man nur über das Büro rein kommt. Der Hintergrund ist, dass wir mit einem Beistellbett für ein 2. Kind planen, aber auch das bleibt ja nicht ewig und dann müsste man ggf. das Elternbett umpositionieren. Da sind wir noch nicht wirklich glücklich mit der Aufteilung
Was ist die wichtigste/grundlegende Frage zum Grundriss in 130 Zeichen zusammengefasst?
Wir hatten unsprünglich die Wände in Roomsketcher (dem Programm zum erstellen der Skizzen) die Wandstärken viel zu dünn angegeben. Nach der Anpassung mussten wir alles neu konzipieren auch den Standort vom Treppenhaus. Den Keller haben wir für den neue Entwurf noch nicht geplant, da wir jetzt bald ohnehin den Architektentermin haben.
Auch ist die Aufteilung und Position der Badtür nicht ideal, ggf. tauschen wir doch noch das Büro und das Eltern-Schlafzimmer. Der Gedanke war, dass man im HO die Nachmittags Sonne nicht voll abkriegen will und sich der Raum zu stark aufheizt. Gleiches gilt aber auch für das Schlafzimmer, da möchte man Abend nicht in einen Glutoffen sich schlafen legen.
Den Keller wird es so nicht mehr geben, die Außentreppe haben wir schon gestrichen. Nur die Aufteilung wird in etwa so bleiben.






so... was lange währt wird, vielleicht doch noch gut? Einen Fertighausanbieter haben wir und bald geht es zum Planungstermin mit dem Architekten. Ich muss gestehen, Aufgrund der vielen negativen Erfahrungen erhoffe ich mir nicht viel davon unsere Grundriss-Skizzen zu zeigen, aber wer weiß, vielleicht kommt doch jemand mit einer guten Idee um die Ecke. Mal schaun. Ich stell mich jedenfalls auf einen "schonungslosen, knallharten" Verriss ein 😀 Aber nur zu... perlt alles an mir ab 😀 So... Feuer frei!
Bebauungsplan/Einschränkungen
Größe des Grundstücks: 230 qm
Hang: nein
Grundflächenzahl ??
Geschossflächenzahl ??
Baufenster, Baulinie und -grenze lt. Bebauungsplan
Randbebauung: ein Grünstreifen mit Gehweg, sonst nur die asphaltierten Straßen und öffentliche Parkplaätze
Anzahl Stellplatz 2 (westlich vom Haus dann die Garage)
Geschossigkeit UG, EG, OG, DG
Dachform Pultdach
Stilrichtung modern, klassisch
Ausrichtung tiefe Dachrinne Neigung nach Nordnordost 12° Neigung
Maximale Höhen/Begrenzungen Tiefe Seite 8,50 m, hohe Seite 10,30 m
weitere Vorgaben Anbau im Süden als Balkon, darunter vollwertiger Wohnraum, muss eine optische Abgrenzung (Farbe aber auch geringer Versatz haben.
Anforderungen der Bauherren
Stilrichtung, Dachform, Gebäudetyp: klassisch, modern, Dachform durch Bebauungsplan festgesetzt ebenso wie Typ; Doppelhaushälfte
Keller, Geschosse: voll unterkellert, lt. Bebauungsplan
Anzahl der Personen, Alter: aktuell 3 (geplantes 2. Kind), Mann+Frau+Kleinkind: ca. 40, ca. 35, <5
Raumbedarf im EG, OG,: Was möglich ist
Büro: Familiennutzung oder Homeoffice? beides, vorrangig als Büro
Schlafgäste pro Jahr, <1
offene oder geschlossene Architektur, halboffen?
konservativ oder moderne Bauweise, ???
offene Küche, Kochinsel: geschlossene Küche, zwei Küchenzeilen
Anzahl Essplätze 6-8
Kamin nein
Musik/Stereowand nein
Balkon, Dachterrasse, ja, unnötig groß, 6,7 m x 2,50 m (ggf. wird die Südwand OG einen Meter in den Balkon versetzt, dann wäre dieser immer noch 6,7 x 1,5 m groß
Garage, Carport, ja + ein Stellplatz
Nutzgarten, Treibhaus, ein Grill und ein Handtuch passen rein, sonst wars das, ok und eine Terrasse mit Gartenmöbeln
weitere Wünsche/Besonderheiten/Tagesablauf, gern auch Begründungen, warum dieses oder das nicht sein soll:
Auf jeden Fall eine gerade (wegen Raumbedarf entfallen) Treppe, daher eine Podesttreppe mit 1m Breite. Süd, u. Westfenster sollen Markisen zusätzlich zu elekt. Rollos bekommen die an allen Fenstern sind. (Verschattung!), ein Aquarium soll im EG Platz finden (ca. 120 x 40 x 50 cm), Photovoltaikanlage, mit Batterie, Luftwasser-Wärmepumpe,
Hausentwurf
Von wem stammt die Planung: meiner Frau und mir
-Planer eines Bauunternehmens
-Architekt
-Do-it-Yourself
Was gefällt besonders? Warum? alles ist drin was wir drin haben wollen, im OG gibt es im Nordwesten ein Spielzimmer für mich mit Platz für ein Renncockpit und TV, Büro, Schlafzimmer, Kinderzimmer, Küche, WZ und Bäder kommen gut unter, bekommen hoffentlich genug Licht, aber auch nicht zu viel
Was gefällt nicht? Warum? leider kein Einfamilienhaus, praktisch keine Vegetation drumherum, nur Felder, neues Grass und frisch geplfanzte Baumsetzlinge. Neubaugebiet eben
Preisschätzung lt Architekt/Planer: 480.000 + 30.000 Eigenleistung + 90.000 (Keller + Aushub + 24.000 Photovoltaik+Batterie + 70.000 Nebenkosten = 694.000
Persönliches Preislimit fürs Haus, inkl Ausstattung: 700.000
favorisierte Heiztechnik: Luftwasser-Wärmepumpe mit Bodenheizung und Lüftung mit Kühlfunktion: Tecalor
Wenn Ihr verzichten müsst, auf welche Details/Ausbauten
-könnt Ihr verzichten: ne bescheuerte Begrünung die auf das Flachdach der Garage (und Müllhäuschen) soll, ggf. in dem ich Solarpanale dort aufstelle, eine Bodentiefe Dusche mit Glastür, Glasschiebetür im EG zur Terrasse, einige Fenster doch ohne elekt. Rollos, Aquarium??, Glühbirnen statt Lampen :/ viel mehr streichen geht kaum
-könnt Ihr nicht verzichten: Bett, 😀 es ist kein kostenintensiver Schnickschnack drin, Podesstreppe, Keller, Photovoltaikanlage wegen der Heizung,
Warum ist der Entwurf so geworden, wie er jetzt ist? ZB
Standardentwurf vom Planer? nein von uns
Entsprechende/Welche Wünsche wurden vom Architekten umgesetzt? sehen wir dann wenn es soweit ist
Ein Gemisch aus vielen Beispielen aus div. Magazinen... ??
Was macht ihn in Euren Augen besonders gut oder schlecht? Er nutzt den gegebenen Raum, maximal aus, kein Fleck wird ungenutzt, das Bad im DG ist aktuell etwas bescheuert angelegt, da man nur über das Büro rein kommt. Der Hintergrund ist, dass wir mit einem Beistellbett für ein 2. Kind planen, aber auch das bleibt ja nicht ewig und dann müsste man ggf. das Elternbett umpositionieren. Da sind wir noch nicht wirklich glücklich mit der Aufteilung
Was ist die wichtigste/grundlegende Frage zum Grundriss in 130 Zeichen zusammengefasst?
Wir hatten unsprünglich die Wände in Roomsketcher (dem Programm zum erstellen der Skizzen) die Wandstärken viel zu dünn angegeben. Nach der Anpassung mussten wir alles neu konzipieren auch den Standort vom Treppenhaus. Den Keller haben wir für den neue Entwurf noch nicht geplant, da wir jetzt bald ohnehin den Architektentermin haben.
Auch ist die Aufteilung und Position der Badtür nicht ideal, ggf. tauschen wir doch noch das Büro und das Eltern-Schlafzimmer. Der Gedanke war, dass man im HO die Nachmittags Sonne nicht voll abkriegen will und sich der Raum zu stark aufheizt. Gleiches gilt aber auch für das Schlafzimmer, da möchte man Abend nicht in einen Glutoffen sich schlafen legen.
Den Keller wird es so nicht mehr geben, die Außentreppe haben wir schon gestrichen. Nur die Aufteilung wird in etwa so bleiben.
Wieso planst Du ein halbes Doppelhaus, nur mit Deiner Frau und einem Bauunternehmen, aber nicht mit Eurem Nachbarn - kennst Du den Goalkeeper-Thread nicht ?
https://www.instagram.com/11antgmxde/
https://www.linkedin.com/company/bauen-jetzt/
https://www.instagram.com/11antgmxde/
https://www.linkedin.com/company/bauen-jetzt/
Ein paar Maße würde dem Plan sehr gut tun.
Und warum willst du die Außentreppe zum Keller weglassen? Die Kellertreppe selber ist an der falschen Stelle und passt nicht zu den anderen Grundrissen.
Generell denke ich, da sind viel zu viele Schnörkel in den Räumen. Wohnzimmer z. B. der Eingangsbereich .. aber, wie gesagt, ein paar Maße wären gut. Grundstück .. wie breit? 17,5 m? Ich gehe davon aus, dass der Lageplan genordet ist.
Büro ... zu zweit im Homeoffice? Wäre es nicht sinnvoller, 2 getrennte Büros zu planen und dann ist das eine eben auch dein Spielzimmer?
Und warum willst du die Außentreppe zum Keller weglassen? Die Kellertreppe selber ist an der falschen Stelle und passt nicht zu den anderen Grundrissen.
Generell denke ich, da sind viel zu viele Schnörkel in den Räumen. Wohnzimmer z. B. der Eingangsbereich .. aber, wie gesagt, ein paar Maße wären gut. Grundstück .. wie breit? 17,5 m? Ich gehe davon aus, dass der Lageplan genordet ist.
Büro ... zu zweit im Homeoffice? Wäre es nicht sinnvoller, 2 getrennte Büros zu planen und dann ist das eine eben auch dein Spielzimmer?
kbt09 schrieb:
Wäre es nicht sinnvoller, 2 getrennte Büros zu planen und dann ist das eine eben auch dein Spielzimmer?Das habe ich erfolgreich mit meines Kompagnons Junior so exerziert: beim "Pauken" der Englisch-Vokabeln dürfte er im Rennsimulator sitzen, und schon war aller Widerstand gegen das Lernen futsch 🙂https://www.instagram.com/11antgmxde/
https://www.linkedin.com/company/bauen-jetzt/
H
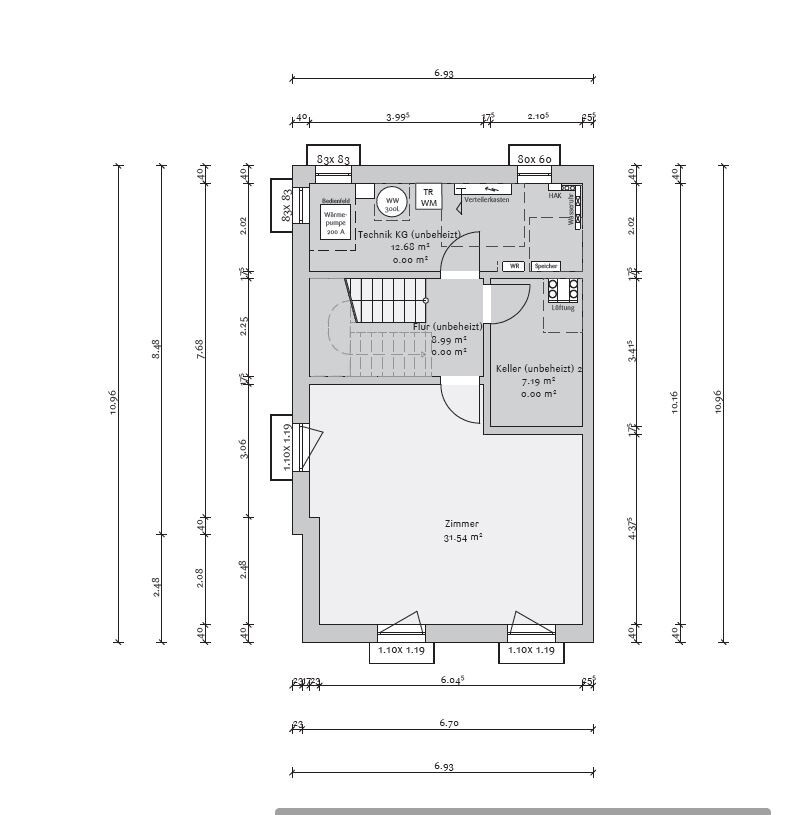
Hitokiri-197809.09.22 17:49Sorry, ich lad noch einen Grundriss mit rein, der die Außenbemassungen zumindest wieder gibt. ABER!! Das ist der alte Grundriss, die Aufteilung dort, ist mittlerweile hinfällig!
Generell, die Doppelhaushälfte darf 7m breit und 8,5 m tief/lang sein. Dazu kommt dann noch ein Anbau von 2,5m der einen unsinnigen (vom Bebauungsplan Architekten) Versatz von ca 20-30 cm haben MUSS und damit das Innenmaß vergrößert. Grob kann man also von einer Grundfläche von 7m x 11m rechnen. Wir hätten eine 40cm Außenwand haben können, aber haben uns jetzt für die 34 cm Wand entschlossen die nur um 6 cm weniger Polystyrol Dämmung hat. Laut den U-Wert Angaben von Haas ist der Unterschied minimal. Es soll etwas mehr (knapp 4,3 qm im ganze Haus) bringen.

Generell, die Doppelhaushälfte darf 7m breit und 8,5 m tief/lang sein. Dazu kommt dann noch ein Anbau von 2,5m der einen unsinnigen (vom Bebauungsplan Architekten) Versatz von ca 20-30 cm haben MUSS und damit das Innenmaß vergrößert. Grob kann man also von einer Grundfläche von 7m x 11m rechnen. Wir hätten eine 40cm Außenwand haben können, aber haben uns jetzt für die 34 cm Wand entschlossen die nur um 6 cm weniger Polystyrol Dämmung hat. Laut den U-Wert Angaben von Haas ist der Unterschied minimal. Es soll etwas mehr (knapp 4,3 qm im ganze Haus) bringen.
11ant schrieb:Hatte ich vergessen zu erwähnen. Seit dem Vergabetermin stehen wir mit denen in Kontakt. Die bauen auch mit Haas, wollen alle Maße voll ausnutzen und auch wie wir mit Keller bauen. Von daher haben wir jetzt auch ein Angebot für einen Keller samt Aushub. Vermessung hatten wir auch schon gemeinsam beauftragt. Die Kommunwand wird entsprechend ohne weitere Außendämmung eher wie eine Innenwand gebaut, wodurch sich aber für beide diese wie eine Außenwand ergibt. Ich hoffe ihr wisst was ich mein. Das spart Material und gibt ein klein wenig mehr Innenfläche.
aber nicht mit Eurem Nachbarn
kbt09 schrieb:7m x 11m Grundfälche, 34 cm Außenwand, max Höhe: 10,3m.
Ein paar Maße würde dem Plan sehr gut tun.
kbt09 schrieb:Kostenfaktor. Ich hätte sie gern drin, aber das Abdichten der letzten Stufe vor der Türe sei wohl recht aufwändig. Es hieß die würde ca. 7.000 Euro kosten. Und vermutlich würden wir sie nur 1-2 mal im Jahr nutzen.
Und warum willst du die Außentreppe zum Keller weglassen?
kbt09 schrieb:Ja wie gesagt... wir mussten die Grundrisse neu erstellen und hatten den Keller dabei vergessen. Dadurch, dass wir hoffentlich bald den Architektentermin haben und auch so schon wissen, was wir wollen, können wir das dann direkt mit ihm besprechen. Ich habs hier nur mit angegeben um eine Idee der Raumaufteilung zu geben.
Die Kellertreppe selber ist an der falschen Stelle und passt nicht zu den anderen Grundrissen.
kbt09 schrieb:Warum nicht? Ich telefonier kaum und hab auch sonst fast immer die Kopfhörer auf. Außerdem kommt man so eher noch in einer Arbeitssituation als wie wenn ich vor bunten Excellisten alleine hock und neben mir ist die Playstation... 😉 Nene... das wird akkurat getrennt. Außerdem... wer bringt mir den Kaffee wenn nicht meine private Sekretärin aka Ehefrau 😀 :p
Büro ... zu zweit im Homeoffice? Wäre es nicht sinnvoller, 2 getrennte Büros zu planen und dann ist das eine eben auch dein Spielzimmer?
Naja, die Maße täten auch den anderen Geschossen gut. Es ist mühsam sich da jetzt die Raumbreiten etc. auszurechnen. Denn ich finde das knapp genäht.
Und, wie breit ist denn nun das Grundstück? 17,5 m oder wie? Also dann 3,5 m für Garagenbreite? Soll die als Fertigteil ran oder die Hausaußenwand mit nutzen? Und muss es eine Garage sein?
Kelleraußentreppe ... Rasenmäher? Fahrräder? Habt ihr euch dazu Gedanken gemacht?
Und, wenn ihr so gut zusammen im Büro auskommt, dann kann das doch abends und am Wochenende auch zur Spielstation werden. Warum so ein kleines Extra-Loch?
Und, wie breit ist denn nun das Grundstück? 17,5 m oder wie? Also dann 3,5 m für Garagenbreite? Soll die als Fertigteil ran oder die Hausaußenwand mit nutzen? Und muss es eine Garage sein?
Kelleraußentreppe ... Rasenmäher? Fahrräder? Habt ihr euch dazu Gedanken gemacht?
Und, wenn ihr so gut zusammen im Büro auskommt, dann kann das doch abends und am Wochenende auch zur Spielstation werden. Warum so ein kleines Extra-Loch?
Ähnliche Themen