ᐅ Grundrissoptimierung Einfamilienhaus 140m2 auf schmalem Grundstück
Erstellt am: 21.08.24 22:51
J
JP_2024Hallo zusammen,
wir haben die Möglichkeit, ein Grundstück inklusive Haus zu erwerben. Das bestehende Haus ist allerdings in einem Zustand, der einen Abriss erforderlich macht. Unser Plan ist es, ein neues, kleines Einfamilienhaus mit etwa 140 m² Wohnfläche zu bauen. Da wir gerne mit Keller bauen möchten und das bestehende Haus einen Keller hatte, sind wir in der Positionierung des neuen Hauses etwas eingeschränkt.
Wir haben bereits einen ersten Entwurf von einem Fertighaushersteller erhalten. Diesen Grundriss habe ich in den Lageplan eingezeichnet und eine grobe Planung der Außenanlagen vorgenommen. Jetzt würde ich gerne eure Expertenmeinungen zu diesem Entwurf einholen. In naher Zukunft plane ich, auch mit einem lokalen Bauunternehmen oder Architekten Kontakt aufzunehmen, um ein weiteres Angebot einzuholen – dann vielleicht schon mit einer konkreteren Vorstellung des Grundrisses.
Bebauungsplan/Einschränkungen
Größe des Grundstücks : 710m²
Hang: nein
Grundflächenzahl: -
Geschossflächenzahl: 2
Baufenster, Baulinie und -grenze: eingezeichnete Baulinie existiert laut Städtischer Baurechtsabteilung nicht
Randbebauung: -
Anzahl Stellplatz: -
Geschossigkeit: -
Dachform: -
Stilrichtung: -
Ausrichtung: -
Maximale Höhen/Begrenzungen: -
weitere Vorgaben: -
Anforderungen der Bauherren
Stilrichtung, Dachform, Gebäudetyp: Satteldach, oder Walmdach
Keller, Geschosse: mit Keller + 1,5, oder 2
Anzahl der Personen, Alter: 2 Erwachsene (30/31 Jahre) 1 Kind (1 Jahr), ein weiteres Kind geplant
Raumbedarf im EG, OG: EG gerne mit Büro und Speisekammer, OG Schlafzimmer mit kleiner Ankleide, zwei Kinderzimmer und einem Bad
Büro: Familiennutzung oder Homeoffice: Homeoffice, soll wenn möglich aber auch Platz für ein Schlafsofa (Gästezimmer) beinhalten
Schlafgäste pro Jahr: 2-3
offene oder geschlossene Architektur: -
konservativ oder moderne Bauweise: moderne Bauweise
offene Küche, Kochinsel: offene Küche
Anzahl Essplätze: min. 4, aber für bestimmte Anlässe erweiterbar auf ca. 12 Personen
Kamin: muss nicht sein
Musik/Stereowand: nein
Balkon, Dachterrasse: nein
Garage, Carport: Garage sofern das Budget dafür da ist
Nutzgarten, Treibhaus
weitere Wünsche/Besonderheiten/Tagesablauf, gern auch Begründungen, warum dieses oder das nicht sein soll: Haus sollte mit Keller geplant werden, da Kelleraushub nach Abriss ja schon vorhanden.
Hausentwurf
Von wem stammt die Planung: Fertighaushersteller
-Planer eines Bauunternehmens
-Architekt
-Do-it-Yourself
Was gefällt besonders? Warum?
Der Grundriss erfüllt im Erdgeschoss weitgehend unsere Wünsche: Ein Eingang an der Nordseite, ein Büro mit Blick auf die Hofeinfahrt, eine Küche mit angrenzender Speisekammer und ein offener Wohn- und Essbereich. Im Obergeschoss besteht die Option, einen zweiten Home-Office-Platz einzurichten, falls wir beide gleichzeitig von Zuhause aus arbeiten möchten.
Was gefällt nicht? Warum?
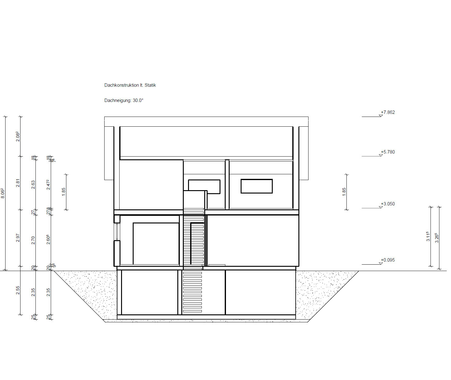
Die gerade Treppe, die optisch ansprechend ist, nimmt im Obergeschoss leider viel Platz weg, wodurch die Kinderzimmer recht klein ausfallen. Außerdem bietet das Büro im Erdgeschoss keinen Platz für ein Schlafsofa. Auch die Anordnung der Türen im Eingangsbereich sowie der Treppenaufstieg vom Wohn- und Essbereich ins Obergeschoss sind mit Kindern nicht ideal.
Preisschätzung laut Architekt/Planer: 300t.€ ab OK Bodenplatte (exkl. Bodenbelag, Malerarbeiten, Innentüren, etc.)
Persönliches Preislimit fürs Haus, inkl. Ausstattung:
favorisierte Heiztechnik: Luft-Wasser Wärmepumpe
Wenn Ihr verzichten müsst, auf welche Details/Ausbauten
-könnt Ihr verzichten: Speisekammer/ gerade Treppe
-könnt Ihr nicht verzichten: Büro, Keller
Warum ist der Entwurf so geworden, wie er jetzt ist? ZB
Standardentwurf vom Planer? Standardgrundriss vom Fertighaushersteller
Entsprechende/Welche Wünsche wurden vom Architekten umgesetzt?
Ein Gemisch aus vielen Beispielen aus div. Magazinen...
Was macht ihn in Euren Augen besonders gut oder schlecht?
Vielen herzlichen Dank für eure Meinungen und Unterstützung.










wir haben die Möglichkeit, ein Grundstück inklusive Haus zu erwerben. Das bestehende Haus ist allerdings in einem Zustand, der einen Abriss erforderlich macht. Unser Plan ist es, ein neues, kleines Einfamilienhaus mit etwa 140 m² Wohnfläche zu bauen. Da wir gerne mit Keller bauen möchten und das bestehende Haus einen Keller hatte, sind wir in der Positionierung des neuen Hauses etwas eingeschränkt.
Wir haben bereits einen ersten Entwurf von einem Fertighaushersteller erhalten. Diesen Grundriss habe ich in den Lageplan eingezeichnet und eine grobe Planung der Außenanlagen vorgenommen. Jetzt würde ich gerne eure Expertenmeinungen zu diesem Entwurf einholen. In naher Zukunft plane ich, auch mit einem lokalen Bauunternehmen oder Architekten Kontakt aufzunehmen, um ein weiteres Angebot einzuholen – dann vielleicht schon mit einer konkreteren Vorstellung des Grundrisses.
Bebauungsplan/Einschränkungen
Größe des Grundstücks : 710m²
Hang: nein
Grundflächenzahl: -
Geschossflächenzahl: 2
Baufenster, Baulinie und -grenze: eingezeichnete Baulinie existiert laut Städtischer Baurechtsabteilung nicht
Randbebauung: -
Anzahl Stellplatz: -
Geschossigkeit: -
Dachform: -
Stilrichtung: -
Ausrichtung: -
Maximale Höhen/Begrenzungen: -
weitere Vorgaben: -
Anforderungen der Bauherren
Stilrichtung, Dachform, Gebäudetyp: Satteldach, oder Walmdach
Keller, Geschosse: mit Keller + 1,5, oder 2
Anzahl der Personen, Alter: 2 Erwachsene (30/31 Jahre) 1 Kind (1 Jahr), ein weiteres Kind geplant
Raumbedarf im EG, OG: EG gerne mit Büro und Speisekammer, OG Schlafzimmer mit kleiner Ankleide, zwei Kinderzimmer und einem Bad
Büro: Familiennutzung oder Homeoffice: Homeoffice, soll wenn möglich aber auch Platz für ein Schlafsofa (Gästezimmer) beinhalten
Schlafgäste pro Jahr: 2-3
offene oder geschlossene Architektur: -
konservativ oder moderne Bauweise: moderne Bauweise
offene Küche, Kochinsel: offene Küche
Anzahl Essplätze: min. 4, aber für bestimmte Anlässe erweiterbar auf ca. 12 Personen
Kamin: muss nicht sein
Musik/Stereowand: nein
Balkon, Dachterrasse: nein
Garage, Carport: Garage sofern das Budget dafür da ist
Nutzgarten, Treibhaus
weitere Wünsche/Besonderheiten/Tagesablauf, gern auch Begründungen, warum dieses oder das nicht sein soll: Haus sollte mit Keller geplant werden, da Kelleraushub nach Abriss ja schon vorhanden.
Hausentwurf
Von wem stammt die Planung: Fertighaushersteller
-Planer eines Bauunternehmens
-Architekt
-Do-it-Yourself
Was gefällt besonders? Warum?
Der Grundriss erfüllt im Erdgeschoss weitgehend unsere Wünsche: Ein Eingang an der Nordseite, ein Büro mit Blick auf die Hofeinfahrt, eine Küche mit angrenzender Speisekammer und ein offener Wohn- und Essbereich. Im Obergeschoss besteht die Option, einen zweiten Home-Office-Platz einzurichten, falls wir beide gleichzeitig von Zuhause aus arbeiten möchten.
Was gefällt nicht? Warum?
Die gerade Treppe, die optisch ansprechend ist, nimmt im Obergeschoss leider viel Platz weg, wodurch die Kinderzimmer recht klein ausfallen. Außerdem bietet das Büro im Erdgeschoss keinen Platz für ein Schlafsofa. Auch die Anordnung der Türen im Eingangsbereich sowie der Treppenaufstieg vom Wohn- und Essbereich ins Obergeschoss sind mit Kindern nicht ideal.
Preisschätzung laut Architekt/Planer: 300t.€ ab OK Bodenplatte (exkl. Bodenbelag, Malerarbeiten, Innentüren, etc.)
Persönliches Preislimit fürs Haus, inkl. Ausstattung:
favorisierte Heiztechnik: Luft-Wasser Wärmepumpe
Wenn Ihr verzichten müsst, auf welche Details/Ausbauten
-könnt Ihr verzichten: Speisekammer/ gerade Treppe
-könnt Ihr nicht verzichten: Büro, Keller
Warum ist der Entwurf so geworden, wie er jetzt ist? ZB
Standardentwurf vom Planer? Standardgrundriss vom Fertighaushersteller
Entsprechende/Welche Wünsche wurden vom Architekten umgesetzt?
Ein Gemisch aus vielen Beispielen aus div. Magazinen...
Was macht ihn in Euren Augen besonders gut oder schlecht?
Vielen herzlichen Dank für eure Meinungen und Unterstützung.
JP_2024 schrieb:
Persönliches Preislimit fürs Haus, inkl. Ausstattung:?JP_2024 schrieb:
Preisschätzung laut Architekt/Planer: 300t.€ ab OK Bodenplatte (exkl. Bodenbelag, Malerarbeiten, Innentüren, etc.)Ist das ein Ausbauhaus, welches auf bestehendem Keller gebaut wird?ypg schrieb:
?
Ist das ein Ausbauhaus, welches auf bestehendem Keller gebaut wird?Persönliches Limit sind: ca. 350t.€ (exkl. Keller, Garage, Photovoltaikanlage, Sanitärobjekte, Bodenbeläge, Innentüren, Malerarbeiten, Küche, Baunebenkosten sowie Außenanlage)Nein, der Keller muss mit abgerissen werden.
K
K a t j a22.08.24 07:38JP_2024 schrieb:
Persönliches Limit sind: ca. 350t.€ (exkl. Keller, Garage, Photovoltaikanlage, Sanitärobjekte, Bodenbeläge, Innentüren, Malerarbeiten, Küche, Baunebenkosten sowie Außenanlage)Und wie ist das Budget für die aufgezählten Positionen? JP_2024 schrieb:
Nein, der Keller muss mit abgerissen werden.Warum? Mich würde auch das Problem des Bestandshauses interessieren, welches es "unrettbar" macht. Ist da der Schwamm drin? Holzwurm im Dach? Wände gerissen?K a t j a schrieb:
Und wie ist das Budget für die aufgezählten Positionen?
Warum? Mich würde auch das Problem des Bestandshauses interessieren, welches es "unrettbar" macht. Ist da der Schwamm drin? Holzwurm im Dach? Wände gerissen?Folgendes habe ich für die gelisteten Positionen eingeplant:- Keller: 100t.€
- Garage: 40t.€ (optional)
- Photovoltaikanlage inkl. Speicher: 21t.€
- Sanitärobjekte: 15t.€ Montage in Eigenleistung
- Bodenbeläge: 7t.€ (keine Fliesen) Verlegen in Eigenleistung
- Innentüren: 5t.€ Montage in Eigenleistung
- Malerarbeiten: 10t.€ mit Eigenleistung und einer Verwandten zusammen, diese macht auch Fugenlose Bäder, daher keine Fliesen
- Küche: 20t.€
- Baunebenkosten: ca. 50t.€ (ohne Abriss gerechnet)
- Außenanlage: 20t.€
Folgend ein paar Eckdaten zum bestehende Objekt:
- keine Sanierungen wurden vorgenommen
- Haus wurde nicht sonderlich gepflegt -> viel Schimmel an den Wänden
- Kellerhöhe sehr niedrig
- Elektrik noch 2-Adrig
- Das Haus hat nur 99 m² und die Raumaufteilung ist so ungünstig, dass man fast jede Innenwand verschieben müsste, um einen halbwegs vernünftigen Grundriss zu erreichen.
- Aufgrund der geringen größe, müssten wir einen Anbau machen
- Dach müsste neu gemacht werden
- Fenster neu
- Fassadendämmung
- Heizung neu
etc.
Wenn wir das Haus komplett sanieren, bezweifle ich, dass wir günstiger wegkommen, vor allem mit einem Anbau. Am Ende hätten wir ein Haus mit vielen Kompromissen, das trotzdem noch aus dem Baujahr 1955 stammt.
Ich habe mich auch unabhängig mit zwei Bekannten beraten (einer war Architekt, der andere Maurer), und beide sind der Meinung, dass es wenig Sinn macht, an dem bestehenden Gebäude festzuhalten.
Der Verkaufspreis ist dementsprechend auch so, dass wir eigentlich nur das Grundstück bezahlen würden.
K
K a t j a22.08.24 08:48Vielen Dank für die Auflistung. Das macht es etwas einfacher nachzuvollziehen.
Zum Grundriss: Ich würde zunächst über die Ausrichtung nachdenken. Der Garten ist das zweite Wohnzimmer im Sommer. Deshalb würde ich die Haupträume dorthin ausrichten (Und nicht zum Nachbarn!). Das Wohnzimmer im Nordosten, Küche und Esszimmer im Südosten.
Die gerade Treppe ist m.E. nicht ideal. Mit Keller ist ein U bei kleineren Häusern meist besser. Wieso Ihr vom Büro aus unbedingt auf die Straße sehen wollt, hab ich noch nicht verstanden. Kommen da Besucher oder Kunden?
Zum Grundriss: Ich würde zunächst über die Ausrichtung nachdenken. Der Garten ist das zweite Wohnzimmer im Sommer. Deshalb würde ich die Haupträume dorthin ausrichten (Und nicht zum Nachbarn!). Das Wohnzimmer im Nordosten, Küche und Esszimmer im Südosten.
Die gerade Treppe ist m.E. nicht ideal. Mit Keller ist ein U bei kleineren Häusern meist besser. Wieso Ihr vom Büro aus unbedingt auf die Straße sehen wollt, hab ich noch nicht verstanden. Kommen da Besucher oder Kunden?
Ähnliche Themen