Hallo zusammen,
seit einigen Monaten sind wir stolze Besitzer eines Grundstücks mit Altbestand und wollen im nächsten Jahr das Bauen beginnen.
Nach einigen Runden mit Architekten und GUs sind noch zwei im GUs Rennen und wir wollen uns spätestens im nächsten Monat entscheiden mit wem wir bauen.
Der Entwurf wurde größtenteils von meinen Skizzen übernommen und umso ernster es wird, desto unsicherer werde ich, wie stimmig die Planung ist.
Ich verfolge das Forum schon seit längerer Zeit und bin auf Euer ehrliches feedback gespannt und hoffe nicht zu sehr in der "Höhle der Löwen" zerfleischt zu werden.
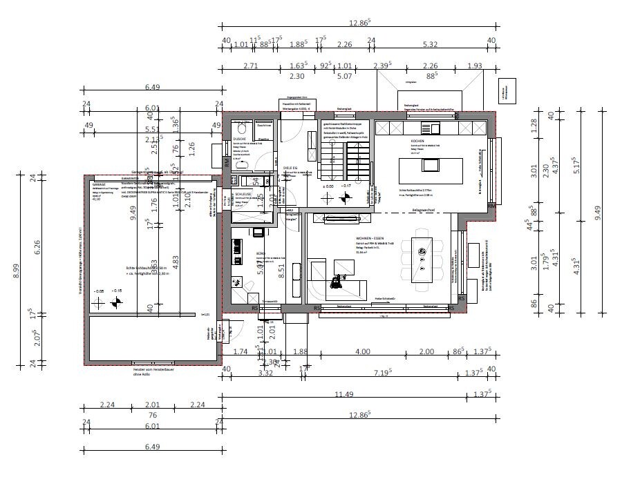
P.S. Der Lageplan stimmt nicht zu 100%, da wir das EG in der letzten Runde etwas vergrößert haben.
Bebauungsplan/Einschränkungen
Größe des Grundstücks 777m²
Hang nein
Grundflächenzahl 0,4
Geschossflächenzahl 0,8
Baufenster, Baulinie und -grenze: 3m Richtung (Spiel-)Straße, BayBO
Randbebauung
Anzahl Stellplatz: 2
Geschossigkeit: 2
Dachform: Walmdach
Stilrichtung: modern
Ausrichtung: Garten zeigt Richtung SW
Maximale Höhen/Begrenzungen
weitere Vorgaben: Spielstraße
Anforderungen der Bauherren
Stilrichtung, Dachform, Gebäudetyp: modern, Stadtvilla
Keller, Geschosse: ja
Anzahl der Personen, Alter: 4, 37+36+1+unterwegs
Raumbedarf im EG, OG
Büro: Familiennutzung oder Homeoffice? Homeoffice
Schlafgäste pro Jahr: 10
offene oder geschlossene Architektur: offen
konservativ oder moderne Bauweise: modern
offene Küche, Kochinsel: Kochinsel + offen
Anzahl Essplätze: 6
Kamin: nein
Musik/Stereowand: ja
Balkon, Dachterrasse: nein
Garage, Carport: Doppelgarage gemauert
Nutzgarten, Treibhaus: nein
weitere Wünsche/Besonderheiten/Tagesablauf, gern auch Begründungen, warum dieses oder das nicht sein soll
Hausentwurf
Von wem stammt die Planung:
-Bauzeichner eines GUs, Übernahme von do-it-yourself Plänen
Was gefällt besonders? Warum?
Was gefällt nicht? Warum?
Optimierungspotential sehe ich im Bad im OG; Hausansicht NO
Preisschätzung lt Architekt/Planer: 550.000€ ohne Baunebenkosten und Einrichtung
Persönliches Preislimit fürs Haus, inkl Ausstattung
favorisierte Heiztechnik: Luft-Wasser-Wärmepumpe + Photovoltaik
Wenn Ihr verzichten müsst, auf welche Details/Ausbauten
-könnt Ihr verzichten: direkter Zugang Garage ins Haus, Sitzfenster hinter esstisch
-könnt Ihr nicht verzichten:
Warum ist der Entwurf so geworden, wie er jetzt ist? ZB
Entsprechende/Welche Wünsche wurden vom Architekten umgesetzt?
KfW55, offene Wohnküche mit Glasfront Richtung Garten, Büro im EG, Ankleide im Schlafzimmer, annäherend zwei gleich große Kinderzimmer in Richtung Garten, möglicher Wohnraum für Gäste (später evtl. Kinder) im Keller vorsehen
Was ist die wichtigste/grundlegende Frage zum Grundriss in 130 Zeichen zusammengefasst?
s.o.






seit einigen Monaten sind wir stolze Besitzer eines Grundstücks mit Altbestand und wollen im nächsten Jahr das Bauen beginnen.
Nach einigen Runden mit Architekten und GUs sind noch zwei im GUs Rennen und wir wollen uns spätestens im nächsten Monat entscheiden mit wem wir bauen.
Der Entwurf wurde größtenteils von meinen Skizzen übernommen und umso ernster es wird, desto unsicherer werde ich, wie stimmig die Planung ist.
Ich verfolge das Forum schon seit längerer Zeit und bin auf Euer ehrliches feedback gespannt und hoffe nicht zu sehr in der "Höhle der Löwen" zerfleischt zu werden.
P.S. Der Lageplan stimmt nicht zu 100%, da wir das EG in der letzten Runde etwas vergrößert haben.
Bebauungsplan/Einschränkungen
Größe des Grundstücks 777m²
Hang nein
Grundflächenzahl 0,4
Geschossflächenzahl 0,8
Baufenster, Baulinie und -grenze: 3m Richtung (Spiel-)Straße, BayBO
Randbebauung
Anzahl Stellplatz: 2
Geschossigkeit: 2
Dachform: Walmdach
Stilrichtung: modern
Ausrichtung: Garten zeigt Richtung SW
Maximale Höhen/Begrenzungen
weitere Vorgaben: Spielstraße
Anforderungen der Bauherren
Stilrichtung, Dachform, Gebäudetyp: modern, Stadtvilla
Keller, Geschosse: ja
Anzahl der Personen, Alter: 4, 37+36+1+unterwegs
Raumbedarf im EG, OG
Büro: Familiennutzung oder Homeoffice? Homeoffice
Schlafgäste pro Jahr: 10
offene oder geschlossene Architektur: offen
konservativ oder moderne Bauweise: modern
offene Küche, Kochinsel: Kochinsel + offen
Anzahl Essplätze: 6
Kamin: nein
Musik/Stereowand: ja
Balkon, Dachterrasse: nein
Garage, Carport: Doppelgarage gemauert
Nutzgarten, Treibhaus: nein
weitere Wünsche/Besonderheiten/Tagesablauf, gern auch Begründungen, warum dieses oder das nicht sein soll
Hausentwurf
Von wem stammt die Planung:
-Bauzeichner eines GUs, Übernahme von do-it-yourself Plänen
Was gefällt besonders? Warum?
Was gefällt nicht? Warum?
Optimierungspotential sehe ich im Bad im OG; Hausansicht NO
Preisschätzung lt Architekt/Planer: 550.000€ ohne Baunebenkosten und Einrichtung
Persönliches Preislimit fürs Haus, inkl Ausstattung
favorisierte Heiztechnik: Luft-Wasser-Wärmepumpe + Photovoltaik
Wenn Ihr verzichten müsst, auf welche Details/Ausbauten
-könnt Ihr verzichten: direkter Zugang Garage ins Haus, Sitzfenster hinter esstisch
-könnt Ihr nicht verzichten:
Warum ist der Entwurf so geworden, wie er jetzt ist? ZB
Entsprechende/Welche Wünsche wurden vom Architekten umgesetzt?
KfW55, offene Wohnküche mit Glasfront Richtung Garten, Büro im EG, Ankleide im Schlafzimmer, annäherend zwei gleich große Kinderzimmer in Richtung Garten, möglicher Wohnraum für Gäste (später evtl. Kinder) im Keller vorsehen
Was ist die wichtigste/grundlegende Frage zum Grundriss in 130 Zeichen zusammengefasst?
s.o.
W
Wintersonne22.08.20 23:14Ich kann dir nicht so viel zum Grundriss sagen, da sind andere qualifizierter, aber ich finde die Außenansichten - Südosten und Südwesen - z. T. noch etwas unharmonisch (ich kann den Grundriss auch nicht vergrößern, um alles lesen zu können).
Darf ich fragen, mit wie viel € ihr die Fenster angesetzt habt? Vor allem das 6-m-Fenster?
Darf ich fragen, mit wie viel € ihr die Fenster angesetzt habt? Vor allem das 6-m-Fenster?
Wintersonne schrieb:
aber ich finde die Außenansichten - Südosten und Südwesen - z. T. noch etwas unharmonischJa. Es gibt viel zu viele Fensterfomate. Auch die Senkrechtlinien wirken nicht harmonisch.zum Grundriss: Garderobe finde ich gelungen.
Die 7,19 in der Länge (WZ) sollte mal real möblieren um festzustellen, dass es nicht so großzügig ist wie erscheint.
Ich finde, dass der Zutritt zum Allraum überhaupt keine Beachtung im Plan bekommen hat. Das hat er (und die Podesttreppe) wirklich nicht verdient.
Ich würde ggü der Treppe eine schöne Flügeltür setzen. Ggf dafür WZ und Küche tauschen. Grundsätzlich finde ich es sehr unglücklich, wenn man erst imWinkel mehrere Meter gehen muss, um an den Ort des Geschehens zu kommen. Insofern wäre bei mir Eingangstür und Treppe getauscht, sodass ich beim Eintreten in den Allraum schauen kann und nicht auf eine Tür, die in einen Nebenraum führt.
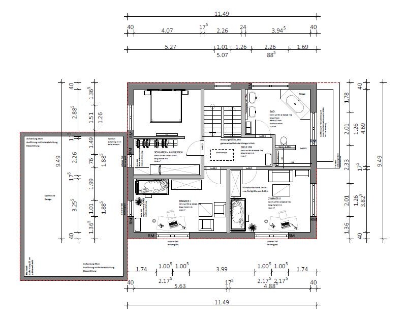
Oben werden die 2,88 im Rohbau nicht für ein Erwachsenenbett plus Durchgang reichen. Im Bad Duschzugang wechseln.
Ysop*** schrieb:
Ich hätte auch Wohnzimmer und Küche getauscht. Planoben rechts finde ich wohnen gemütlicher.Genau, für Küche und Esstisch sollten 7,19 auch reichen. Für Eckcouch und Esstisch wird es zu eng.WZ als gefangenen Raum eher als als Durchgangsraum.
HappyEnd schrieb:
Ich verfolge das Forum schon seit längerer Zeit und bin auf Euer ehrliches feedback gespannt und hoffe nicht zu sehr in der "Höhle der Löwen" zerfleischt zu werden. Dann kennst Du auch Foren-Gepflogenheiten und gibst Stellung zu den Antworten?!Ähnliche Themen