ᐅ Grundrissideen für ein modernes Einfamilienhaus mit ca. 150m², ohne Keller
Erstellt am: 26.06.19 20:55
T
Thorsten78T
Thorsten7826.06.19 20:55Hallo zusammen,
wir haben gerade ein Grundstück erworben und sind nun bei der Hausplanung angelangt.
Im Moment sind wir mit einem regionalen Fertighausbauer (Holzständer) in Kontakt, den wir auf einer Baumesse kennengelernt haben.
Wir haben diesen bereits besucht und das erste Vorgespräch geführt.
Da wir uns aber noch nicht abschließend über die Bauart (Holzständer oder Massiv) sicher sind, werden wir uns nächste Woche noch mit einem GU treffen.
Ich sehe momentan leichte Vorteile bei der Holzständervariante (größere Wohnfläche bei gleicher Grundfläche, Standardwand bereits Kfw 40, Eigenleistungen leichter umsetzbar).
Bei unseren Grundrissentwurf habe ich mich aus mehreren Quellen bedient, aber leider sind wir noch nicht zufrieden damit.
Bebauungsplan/Einschränkungen
Größe des Grundstücks 760m²
Hang nein
Grundflächenzahl 0,3 (wurde aber durch vorherige Bauten nicht eingehalten)
Geschossflächenzahl 0,6 (wurde aber durch vorherige Bauten nicht eingehalten)
Baufenster, Baulinie und -grenze siehe Anhang
Randbebauung ja, Garage
Anzahl Stellplatz zwei pro Grundstück, min. 5m vor der Garage
Geschossigkeit Kniestock Max. 0,50m (wurde aber durch vorherige Bauten
nicht eingehalten)
Dachform Satteldach 30-38°, Walmdach, Pult-/Flachdach 25%
Stilrichtung ---
Ausrichtung ---
Maximale Höhen/Begrenzungen ---
weitere Vorgaben naturrote Ziegeln
Anforderungen der Bauherren
Wir sind eine kleine Familie, zwei Erwachsene 41 Jahre und ein Kind 6 Jahre. Die Familienplanung ist abgeschlossen.
Wir hätten gerne ein Einfamilienhaus mit zwei Vollgeschossen, ohne Keller, mit Doppelgarage und Abstellraum als Kellerersatz.
Die Dachform ist zweitrangig, es sollte einfach zum Haus und der Umgebung passen.
Im Baugebiet gibt es einige Walmdächer und viele Satteldächer mit Dachneigungen zwischen 25-40°.
Die Architektur sollte modern, hell und mit offenen Wohn-/ Ess-/ Küchenbereich sein.
Da wir nur ein Kind haben, wollten wir im OG ein Schlafzimmer und ein Spiel-/Wohnzimmer fürs das Kind einrichten.
Stilrichtung, Dachform, Gebäudetyp
modern, Satteldach 20-25° mit Kniestock 1,80-2,20m oder Walmdach, Pultdach, Flachdach
große Fenster für viel Licht im Haus, inkl. Raffstores für die Beschattung
Keller, Geschosse
nein, zwei Vollgeschosse
Anzahl der Personen, Alter
2 Erwachsene 41 Jahre und ein Kind 6 Jahre
Raumbedarf im EG, OG
Gesamtwohnfläche 150-160m²
Büro: Familiennutzung oder Homeoffice?
Büro im EG das später evtl. als Schlafzimmer umgebaut oder als Gästezimmer genutzt werden kann
Schlafgäste pro Jahr
keine geplant
offene oder geschlossene Architektur
offen
konservativ oder moderne Bauweise
modern
offene Küche, Kochinsel
ja, ja
Anzahl Essplätze
Esstisch mit Platz für 6-8 Personen
Kamin
Nein
Musik/Stereowand
wenn möglich Multiroom Audio
Balkon, Dachterrasse
Nein
Garage, Carport
Doppelgarage + Abstellraum als Kellerersatz
Nutzgarten, Treibhaus
pflegeleichter Garten, Rasen mit Bewässerungsanlage und evtl. Hochbeete
weitere Wünsche/Besonderheiten:
Photovoltaik inkl. Batteriespeicher, KNX Smarthome
Hausentwurf
Von wem stammt die Planung:
-Planer eines Bauunternehmens
nein
-Architekt
nein
-Do-it-Yourself
ja, Ideenfindung aus dem Internet und Zeitungen
Was gefällt besonders? Warum?
Windfang, der Schmutz soll nicht im Flur sein,
trockener Zugang von Garage zum Haus,
geräumige Küche
Was gefällt nicht? Warum?
Allgemeine Optik, könnte etwas moderner sein, Fensteranordnung überzeugt uns noch nicht
Preisschätzung lt Architekt/Planer:
400.000 Euro (Haus KFW 40+ inkl. Doppelgarage
Persönliches Preislimit komplett:
520.000 Euro inkl. Grundstück (65.000 Euro), Außenanlage, Küche, Einrichtung
favorisierte Heiztechnik:
luftwärmepumpe
Wenn Ihr verzichten müsst, auf welche Details/Ausbauten
-könnt Ihr verzichten:
auf SmartHome und Batteriespeicher
-könnt Ihr nicht verzichten:
zwei Vollgeschosse, Doppelgarage, offene moderne Bauweise
Warum ist der Entwurf so geworden, wie er jetzt ist?
Ein Gemisch aus vielen Beispielen aus div. Magazinen...
Wir wollten das bestmögliche aus dem Grundstück herausholen. Grundsätzlich wollten wir die Terrasse gerne Richtung SW ausrichten, doch da ist leider die Straße und ich möchte nicht direkt auf dem Präsentierteller sitzen. Zudem ist der Westen die Wetterseite mit viel Wind.
Was macht ihn in Euren Augen besonders gut oder schlecht?
- gute Ausnutzung vom Grundstück (wenig freie Fläche im Norden und Osten)
- Waschmaschine und Trockner sollten noch in den Technikraum
- Eingang sollte nicht seitlich sondern vorne mit kleiner Überdachung zur Garage sein
Was ist die wichtigste/grundlegende Frage zum Grundriss in 130 Zeichen zusammengefasst?
Was haltet Ihr von dem Entwurf bzw. was könnte man anders machen?
Sollten wir lieber eine Podesttreppe planen?
Den Kniestock vielleicht auf 2,20m und dafür bodentiefe Fenster im OG?
Ist das Bad im OG zu groß?
Wie groß sollte der Technikraum sein, wenn auch Waschmaschine und Trockner rein soll?
Dürfte ein Technikraum auf der Nachbarsgrenze gebaut werden?
Wo könnte ich evtl. noch einen Abstellraum als Kellerersatz unterbringen? Dachte schon an eine Erweiterung auf der gepflasterten Fläche hinter der Garage. Oder ein Satteldach auf der Garage?
Wenn der Eingang nach vorne kommt, könnte ich mir vorstellen die Speise rechts neben dem Windfang zu planen. Das hätte den Vorteil, dass in der Küche mehr Platz wäre.
Wir wären euch für jede Idee bzw. konstruktive Kritik sehr dankbar.









wir haben gerade ein Grundstück erworben und sind nun bei der Hausplanung angelangt.
Im Moment sind wir mit einem regionalen Fertighausbauer (Holzständer) in Kontakt, den wir auf einer Baumesse kennengelernt haben.
Wir haben diesen bereits besucht und das erste Vorgespräch geführt.
Da wir uns aber noch nicht abschließend über die Bauart (Holzständer oder Massiv) sicher sind, werden wir uns nächste Woche noch mit einem GU treffen.
Ich sehe momentan leichte Vorteile bei der Holzständervariante (größere Wohnfläche bei gleicher Grundfläche, Standardwand bereits Kfw 40, Eigenleistungen leichter umsetzbar).
Bei unseren Grundrissentwurf habe ich mich aus mehreren Quellen bedient, aber leider sind wir noch nicht zufrieden damit.
Bebauungsplan/Einschränkungen
Größe des Grundstücks 760m²
Hang nein
Grundflächenzahl 0,3 (wurde aber durch vorherige Bauten nicht eingehalten)
Geschossflächenzahl 0,6 (wurde aber durch vorherige Bauten nicht eingehalten)
Baufenster, Baulinie und -grenze siehe Anhang
Randbebauung ja, Garage
Anzahl Stellplatz zwei pro Grundstück, min. 5m vor der Garage
Geschossigkeit Kniestock Max. 0,50m (wurde aber durch vorherige Bauten
nicht eingehalten)
Dachform Satteldach 30-38°, Walmdach, Pult-/Flachdach 25%
Stilrichtung ---
Ausrichtung ---
Maximale Höhen/Begrenzungen ---
weitere Vorgaben naturrote Ziegeln
Anforderungen der Bauherren
Wir sind eine kleine Familie, zwei Erwachsene 41 Jahre und ein Kind 6 Jahre. Die Familienplanung ist abgeschlossen.
Wir hätten gerne ein Einfamilienhaus mit zwei Vollgeschossen, ohne Keller, mit Doppelgarage und Abstellraum als Kellerersatz.
Die Dachform ist zweitrangig, es sollte einfach zum Haus und der Umgebung passen.
Im Baugebiet gibt es einige Walmdächer und viele Satteldächer mit Dachneigungen zwischen 25-40°.
Die Architektur sollte modern, hell und mit offenen Wohn-/ Ess-/ Küchenbereich sein.
Da wir nur ein Kind haben, wollten wir im OG ein Schlafzimmer und ein Spiel-/Wohnzimmer fürs das Kind einrichten.
Stilrichtung, Dachform, Gebäudetyp
modern, Satteldach 20-25° mit Kniestock 1,80-2,20m oder Walmdach, Pultdach, Flachdach
große Fenster für viel Licht im Haus, inkl. Raffstores für die Beschattung
Keller, Geschosse
nein, zwei Vollgeschosse
Anzahl der Personen, Alter
2 Erwachsene 41 Jahre und ein Kind 6 Jahre
Raumbedarf im EG, OG
Gesamtwohnfläche 150-160m²
Büro: Familiennutzung oder Homeoffice?
Büro im EG das später evtl. als Schlafzimmer umgebaut oder als Gästezimmer genutzt werden kann
Schlafgäste pro Jahr
keine geplant
offene oder geschlossene Architektur
offen
konservativ oder moderne Bauweise
modern
offene Küche, Kochinsel
ja, ja
Anzahl Essplätze
Esstisch mit Platz für 6-8 Personen
Kamin
Nein
Musik/Stereowand
wenn möglich Multiroom Audio
Balkon, Dachterrasse
Nein
Garage, Carport
Doppelgarage + Abstellraum als Kellerersatz
Nutzgarten, Treibhaus
pflegeleichter Garten, Rasen mit Bewässerungsanlage und evtl. Hochbeete
weitere Wünsche/Besonderheiten:
Photovoltaik inkl. Batteriespeicher, KNX Smarthome
Hausentwurf
Von wem stammt die Planung:
-Planer eines Bauunternehmens
nein
-Architekt
nein
-Do-it-Yourself
ja, Ideenfindung aus dem Internet und Zeitungen
Was gefällt besonders? Warum?
Windfang, der Schmutz soll nicht im Flur sein,
trockener Zugang von Garage zum Haus,
geräumige Küche
Was gefällt nicht? Warum?
Allgemeine Optik, könnte etwas moderner sein, Fensteranordnung überzeugt uns noch nicht
Preisschätzung lt Architekt/Planer:
400.000 Euro (Haus KFW 40+ inkl. Doppelgarage
Persönliches Preislimit komplett:
520.000 Euro inkl. Grundstück (65.000 Euro), Außenanlage, Küche, Einrichtung
favorisierte Heiztechnik:
luftwärmepumpe
Wenn Ihr verzichten müsst, auf welche Details/Ausbauten
-könnt Ihr verzichten:
auf SmartHome und Batteriespeicher
-könnt Ihr nicht verzichten:
zwei Vollgeschosse, Doppelgarage, offene moderne Bauweise
Warum ist der Entwurf so geworden, wie er jetzt ist?
Ein Gemisch aus vielen Beispielen aus div. Magazinen...
Wir wollten das bestmögliche aus dem Grundstück herausholen. Grundsätzlich wollten wir die Terrasse gerne Richtung SW ausrichten, doch da ist leider die Straße und ich möchte nicht direkt auf dem Präsentierteller sitzen. Zudem ist der Westen die Wetterseite mit viel Wind.
Was macht ihn in Euren Augen besonders gut oder schlecht?
- gute Ausnutzung vom Grundstück (wenig freie Fläche im Norden und Osten)
- Waschmaschine und Trockner sollten noch in den Technikraum
- Eingang sollte nicht seitlich sondern vorne mit kleiner Überdachung zur Garage sein
Was ist die wichtigste/grundlegende Frage zum Grundriss in 130 Zeichen zusammengefasst?
Was haltet Ihr von dem Entwurf bzw. was könnte man anders machen?
Sollten wir lieber eine Podesttreppe planen?
Den Kniestock vielleicht auf 2,20m und dafür bodentiefe Fenster im OG?
Ist das Bad im OG zu groß?
Wie groß sollte der Technikraum sein, wenn auch Waschmaschine und Trockner rein soll?
Dürfte ein Technikraum auf der Nachbarsgrenze gebaut werden?
Wo könnte ich evtl. noch einen Abstellraum als Kellerersatz unterbringen? Dachte schon an eine Erweiterung auf der gepflasterten Fläche hinter der Garage. Oder ein Satteldach auf der Garage?
Wenn der Eingang nach vorne kommt, könnte ich mir vorstellen die Speise rechts neben dem Windfang zu planen. Das hätte den Vorteil, dass in der Küche mehr Platz wäre.
Wir wären euch für jede Idee bzw. konstruktive Kritik sehr dankbar.
Also dann mach ich mal den Anfang.
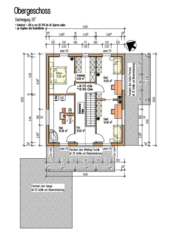
Mir persönlich gefällt der Grundriss vom Grundgedanke sehr gut, für meinen Geschmack hat er an allerdings an ein paar Ecken Krücken.
- Die gerade Treppe schränkt Euch ein. Mir gefallen gerade Treppen, wenn das aber für Euch kein Muss ist würde ich darüber als erstes nachdenken, damit holst vermutlich am meisten Optimierungsmöglichkeit raus.
- Flurfläche grob überschlagen knapp 30qm Flurfläche (inkl. Windfang) ist ganz schön viel. Großteil wegen gerader Treppe man könnte aber auch mit auf ein bisschen weniger kommen.
- Garderobe? Wo soll die hin?
- Küche, mir gefällt die Idee, ist nicht so langweilig wie in einem Schlauch, da ihr aber noch die Speis von dem Raum abkapselt wird's unpraktisch. Die Insel ist keine Insel sondern eher eine Warze Welches Maß soll die haben? 1,20m? Wenn da kein 60er Kochfeld nimmst sondern heute oft genommen was mit 80cm (Muldenlüfter oder ähnliches?) Dann bleibt da nicht viel übrig. Ist es eine Option die Speis wegzulassen und einfach die drei Hochschränke die dort eingezeichnet sind zur Küche dazu zu nehmen? Bist deutlich flexibler.
- OG sind durch die gerade Treppe bedingt die Räume schmal. 2,90 ist Rohbaumaß, oder? Da geht dann noch bisschen was weg, dann Rechne mal 2m Bett plus Rahmen/Kopfteil. Da wird's schon grenzwertig. Je nach Dachneigung und Kniestock können die Zimmer im OG mit der Dachschräge auch etwas klein wirken. Ist aber sicher auch Geschmacksache.
- Stauraum, wird auf dem Dachboden auch nicht sonderlich viel geben. Wäre mir im ganzen Haus auch zu wenig aber es gibt ja Minimalisten. Unter der Treppe geht noch was.
- Wenn Eure Familienplanung tatsächlich abgeschlossen ist, braucht Euer Kind dann tatsächlich ein 2. Wohn-/Spielzimmer?
Fazit:
Grundsätzlich mag ich den Grundriss und ich glaube man könnte mit etwas Optimierung was draus machen. Auch wenn das Haus vielleicht 1 m zu schmal ist für eine gerade Treppe. Ich frag mich nur ob er zu Euch und Euren Anforderungen passt?
Euch fehlt Stauraum/Garderobe, habt zu viel Flurfläche und ein Zimmer zu viel!?
Meiner Meinung nach kann man jetzt versuchen aus dem bestehenden Entwurf noch was raus zu holen oder Du hast es selber ins Spiel gebracht, versuchs mit einer anderen Treppe und dann schau von dem was Ihr zu viel habt lieber eine anständige Garderobe hinbekommt, oben vielleicht lieber ein großes Zimmer für den Sprössling und dafür eine Hauswirtschaftsraum oben mit noch etwas Stauraum zusätzlich.
Mir persönlich gefällt der Grundriss vom Grundgedanke sehr gut, für meinen Geschmack hat er an allerdings an ein paar Ecken Krücken.
- Die gerade Treppe schränkt Euch ein. Mir gefallen gerade Treppen, wenn das aber für Euch kein Muss ist würde ich darüber als erstes nachdenken, damit holst vermutlich am meisten Optimierungsmöglichkeit raus.
- Flurfläche grob überschlagen knapp 30qm Flurfläche (inkl. Windfang) ist ganz schön viel. Großteil wegen gerader Treppe man könnte aber auch mit auf ein bisschen weniger kommen.
- Garderobe? Wo soll die hin?
- Küche, mir gefällt die Idee, ist nicht so langweilig wie in einem Schlauch, da ihr aber noch die Speis von dem Raum abkapselt wird's unpraktisch. Die Insel ist keine Insel sondern eher eine Warze Welches Maß soll die haben? 1,20m? Wenn da kein 60er Kochfeld nimmst sondern heute oft genommen was mit 80cm (Muldenlüfter oder ähnliches?) Dann bleibt da nicht viel übrig. Ist es eine Option die Speis wegzulassen und einfach die drei Hochschränke die dort eingezeichnet sind zur Küche dazu zu nehmen? Bist deutlich flexibler.
- OG sind durch die gerade Treppe bedingt die Räume schmal. 2,90 ist Rohbaumaß, oder? Da geht dann noch bisschen was weg, dann Rechne mal 2m Bett plus Rahmen/Kopfteil. Da wird's schon grenzwertig. Je nach Dachneigung und Kniestock können die Zimmer im OG mit der Dachschräge auch etwas klein wirken. Ist aber sicher auch Geschmacksache.
- Stauraum, wird auf dem Dachboden auch nicht sonderlich viel geben. Wäre mir im ganzen Haus auch zu wenig aber es gibt ja Minimalisten. Unter der Treppe geht noch was.
- Wenn Eure Familienplanung tatsächlich abgeschlossen ist, braucht Euer Kind dann tatsächlich ein 2. Wohn-/Spielzimmer?
Fazit:
Grundsätzlich mag ich den Grundriss und ich glaube man könnte mit etwas Optimierung was draus machen. Auch wenn das Haus vielleicht 1 m zu schmal ist für eine gerade Treppe. Ich frag mich nur ob er zu Euch und Euren Anforderungen passt?
Euch fehlt Stauraum/Garderobe, habt zu viel Flurfläche und ein Zimmer zu viel!?
Meiner Meinung nach kann man jetzt versuchen aus dem bestehenden Entwurf noch was raus zu holen oder Du hast es selber ins Spiel gebracht, versuchs mit einer anderen Treppe und dann schau von dem was Ihr zu viel habt lieber eine anständige Garderobe hinbekommt, oben vielleicht lieber ein großes Zimmer für den Sprössling und dafür eine Hauswirtschaftsraum oben mit noch etwas Stauraum zusätzlich.
Finde den Ansatz auch nicht schlecht, schließe mich aber bei vielen Sachen meinem Vorredner an. Vor allem die Speis ist mir ein Dorn im Auge. Sie ist quasi der Eingang in die Küche. Das ist beschissen. Wenn mal Gäste kommen, gehen die erst mal durch die Rumpelkammer, um die Köchin zu begrüßen. Keiner rennt erst außen rum.
Kinderzimmer + Gast haben eine ungefällige Form. Bad ist zu groß. Ein Hauswirtschaftsraum hätte da sicher noch Platz.
Da würd ich einfach mal sagen, nah dran aber bitte neuer Versuch.
Kinderzimmer + Gast haben eine ungefällige Form. Bad ist zu groß. Ein Hauswirtschaftsraum hätte da sicher noch Platz.
Da würd ich einfach mal sagen, nah dran aber bitte neuer Versuch.
T
Thorsten7827.06.19 12:18Danke für deine Anregungen!
Ich werde mich die nächsten Tage hinsetzen und ein paar Änderungen im Grundriss einzeichnen.
Eine eigene Garderobe hatten wir nicht geplant. Nasse Schuhe und Jacken wollten wir im Windfang unterbringen und unter der Treppe hätte meine Frau gerne einen Einbauschrank für die restlichen Sachen.
Mit der Speise hatte ich auch schon überlegt diese nach rechts neben den Windfang anzubauen. Das hätte natürlich den Vorteil das die Kochinsel größer ausfallen könnte. Somit könnte auch die gerade Treppe weiter Richtung Windfang rutschen und den Flur etwas verkleinern.
Bzgl. Dachboden hatte ich ganz vergessen das wir uns einen offenen Dachstuhl wünschen. Somit wäre das Thema Dachboden vom Tisch.
Ich werde mich mal austoben.
Ich werde mich die nächsten Tage hinsetzen und ein paar Änderungen im Grundriss einzeichnen.
Eine eigene Garderobe hatten wir nicht geplant. Nasse Schuhe und Jacken wollten wir im Windfang unterbringen und unter der Treppe hätte meine Frau gerne einen Einbauschrank für die restlichen Sachen.
Mit der Speise hatte ich auch schon überlegt diese nach rechts neben den Windfang anzubauen. Das hätte natürlich den Vorteil das die Kochinsel größer ausfallen könnte. Somit könnte auch die gerade Treppe weiter Richtung Windfang rutschen und den Flur etwas verkleinern.
Bzgl. Dachboden hatte ich ganz vergessen das wir uns einen offenen Dachstuhl wünschen. Somit wäre das Thema Dachboden vom Tisch.
Ich werde mich mal austoben.
Thorsten78 schrieb:
Eine eigene Garderobe hatten wir nicht geplant.Damit war nicht ein eigener Raum gemeint. Egal ob Einbauschrank oder sonst wie, irgendwo müssen ja Jacken/Schuhe etc. hin. und das solltest von Anfang an mit einplanen, die übrig gebliebene Ecke dafür zu nutzen funktioniert meistens nicht. Am Besten gleich den Schrank dafür einzeichnen (lassen).
Thorsten78 schrieb:
Mit der Speise hatte ich auch schon überlegt diese nach rechts neben den Windfang anzubauen. Das hätte natürlich den Vorteil das die Kochinsel größer ausfallen könnte. Somit könnte auch die gerade Treppe weiter Richtung Windfang rutschen und den Flur etwas verkleinern.Wenn das Budget das hergibt würdest damit ein paar Krücken gleichzeitig ausmerzen können. Bin ich sehr dafür und hätte auch ganz andere Möglichkeiten im OG zur Folge.
Thorsten78 schrieb:
Bzgl. Dachboden hatte ich ganz vergessen das wir uns einen offenen Dachstuhl wünschen. Somit wäre das Thema Dachboden vom Tisch.
Ich werde mich mal austoben.Ja dann solltest definitiv über Stauraum nachdenken! Oben hättest ja QM zur Verfügung.
Mir gefällt die Küche überhaupt nicht - insbesondere der Schlauch zum Esszimmer. Ich bin eingefleischter Speis-Fan, aber die hier würde ich nicht wollen. Sie rechts neben den Eingang zu bauen, wäre eine Idee. Könnte man in der Küche das EG erweitern, so daß die Küche breiter wird - so breit wie die Terrasse?
Gut, das sagt jetzt eine, der die Küche nie groß genug sein kann... aber dann hätte man bei weitem mehr Möglichkeiten.
Oder, um den oben genannten "Schlauch" zu entschärften, die Ecke Terrasse, die in die Küche ragt, dieser zuschlagen, also bis zur Terrassentüre und dann erst wird das EG zurück versetzt?
Im OG: Eingang zum Schlafzimmer bitte über Ankleide. Ich finde das Bad nicht zu groß, aber wenn man (da die Tür ins Schlafzimmer wegfällt) dem Schlafzimmer ein paar cm klaut, dann hätte man zwischen Bad und Schlafzimmer Platz für einen kleinen Hauswirtschaftsraum und Waschmaschine und Trockner müßten nicht im Bad stehen.
Insgesamt: seid ihr sicher, daß ihr das Schlafzimmer im Westen haben wollt?
Ihr plant keine Gäste und keinen weiteren Nachwuchs, warum das Riesenzimmer im OG? Büro ist unten - soll das Zimmer leer stehen, weil man halt oben zwei Zimmer zum Schlafzimmer dazu hat?
Da würde ich meinem Kind ein extra kleines Bad noch gönnen, ggf. eine Zweizimmerlösung, also keines Schlafzimmer, kleines Bad, Kinderzimmer. Das wird jetzt noch nicht interessant sein, aber wenn der Nachwuchs älter ist, ist das prima! Und Platz wäre da.
Knackpunkt Stauraum wurde auch schon angesprochen. Seid ihr solche Puristen, daß ihr keinen braucht?
Finde das Konzept für eure Situation nicht ganz passend.
Gut, das sagt jetzt eine, der die Küche nie groß genug sein kann... aber dann hätte man bei weitem mehr Möglichkeiten.
Oder, um den oben genannten "Schlauch" zu entschärften, die Ecke Terrasse, die in die Küche ragt, dieser zuschlagen, also bis zur Terrassentüre und dann erst wird das EG zurück versetzt?
Im OG: Eingang zum Schlafzimmer bitte über Ankleide. Ich finde das Bad nicht zu groß, aber wenn man (da die Tür ins Schlafzimmer wegfällt) dem Schlafzimmer ein paar cm klaut, dann hätte man zwischen Bad und Schlafzimmer Platz für einen kleinen Hauswirtschaftsraum und Waschmaschine und Trockner müßten nicht im Bad stehen.
Insgesamt: seid ihr sicher, daß ihr das Schlafzimmer im Westen haben wollt?
Ihr plant keine Gäste und keinen weiteren Nachwuchs, warum das Riesenzimmer im OG? Büro ist unten - soll das Zimmer leer stehen, weil man halt oben zwei Zimmer zum Schlafzimmer dazu hat?
Da würde ich meinem Kind ein extra kleines Bad noch gönnen, ggf. eine Zweizimmerlösung, also keines Schlafzimmer, kleines Bad, Kinderzimmer. Das wird jetzt noch nicht interessant sein, aber wenn der Nachwuchs älter ist, ist das prima! Und Platz wäre da.
Knackpunkt Stauraum wurde auch schon angesprochen. Seid ihr solche Puristen, daß ihr keinen braucht?
Finde das Konzept für eure Situation nicht ganz passend.
Ähnliche Themen