ᐅ Grundriss 200m² Einfamilienhaus, Hochparterre, Bestandsgrundstück, Doppelgarage
Erstellt am: 06.02.25 23:45
G
Gustav5789G
Gustav578906.02.25 23:45Sehr geehrte Schwarmintelligenz,
wir möchten gerne bei den Schwiegereltern aufs Grundstück unser Einfamilienhaus bauen. Ziel sind es 200m² mit Doppelgarage. Unser Architekt ist dabei sehr kreativ, was uns etwas misfällt und ich hier Hilfe suche
Größe des Grundstücks: 1200m², unser Bereich soll künftig ca 550m² haben
Kein Hang vorhanden -> Acker (1549) liegt aber 1m unter dem Grundstück
Grundflächenzahl unbekannt
Geschossflächenzahl unbekannt
Baufenster, Baulinie und -grenze unbekannt
Randbebauung unbekannt
Anzahl Stellplatz 1.5
Geschossigkeit 2
Dachform keine Vorgaben
Stilrichtung keine Vorgaben
Ausrichtung keine Vorgaben
Maximale Höhen/Begrenzungen unbekannt
weitere Vorgaben
bestehende Abstandsflächenübernahme muss neu beantragt werden
Anforderungen der Bauherren
Stilrichtung, Dachform, Gebäudetyp
klassisches Einfamilienhaus mit Satteldach
Keller, Geschosse
kein Keller, zwei Vollgeschosse
Anzahl der Personen, Alter
5 Personen, 33, 31, 2, 0, in Planung
Raumbedarf im EG, OG
Büro:
Homeoffice P1 4 Tage + P2 2 Tage
Schlafgäste pro Jahr
keine
offene oder geschlossene Architektur
offen
konservativ oder moderne Bauweise
modern
offene Küche, Kochinsel
offene Küche, G-Form
Anzahl Essplätze
mind. 8 optimal 10
Kamin
Kaminofen (optional)
Musik/Stereowand
Stereowand (optional)
Balkon, Dachterrasse
kein Balkon, Dachterrasse (optional)
Garage, Carport
Doppelgarage, extra breit/tief (7.5x9)
Nutzgarten, Treibhaus
Nutzgarten
weitere Wünsche/Besonderheiten/Tagesablauf, gern auch Begründungen, warum dieses oder das nicht sein soll
Aufgrund von Hochwasserereignissen soll das Haus 1m über Grundhöhe erstellt werden, Garagen dürfen ebenerdig bleiben
Bestandsgebäude braucht mehr als die vorhandene Doppelgarage an Stellplätzen, mind. 3
Garagen auf der Ostseite, da im Flurstück 1560/6 eine Durchgehende 10-12m hohe Baum/Buschfront an der Grenze hat
Hausentwurf
Do-it-Yourself
Was gefällt besonders? Warum?
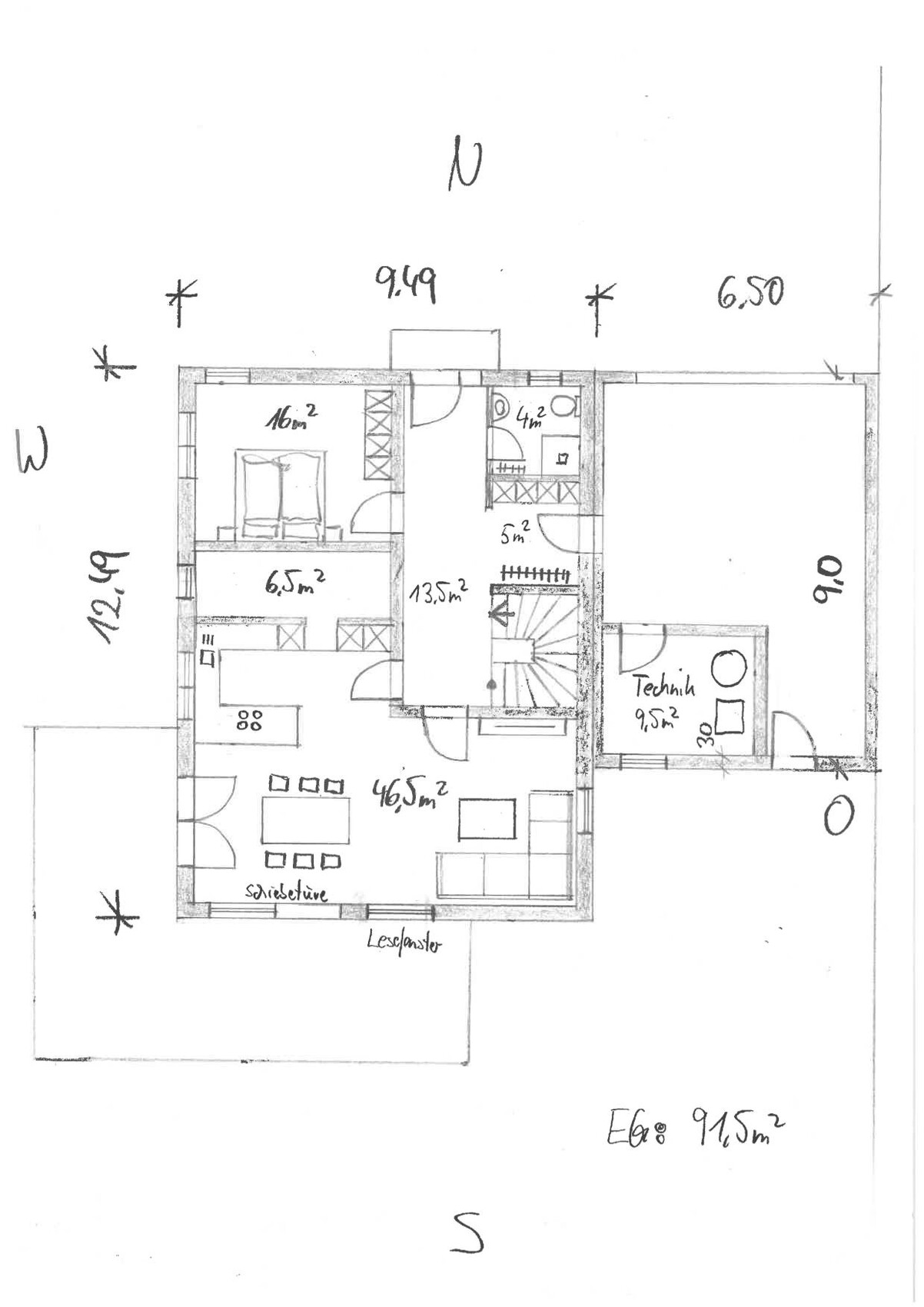
EG: Offener Wohn Essbereich, Küche ist direkt im Leben am Tisch integriert
EG: Zwischen Arbeitsbereich und Küche liegt die Speiß als Akustikbremse
Was gefällt nicht? Warum?
EG: TV sollte mit Stereo eigentlich Richtung Tisch zeigen um den ganzen Raum zu beschallen
OG: Zu verwinkelt, Kinderzimmer haben keine 15m²+
OG: Kein Platz für Wäschetrocknen/Bügeln
Garage: Technikraum würde bei Hochwasser absaufen
Preisschätzung laut Architekt/Planer:
750.000€
favorisierte Heiztechnik:
Wärmepumpe
Wenn Ihr verzichten müsst, auf welche Details/Ausbauten
-könnt Ihr verzichten:
Dachterrasse
KFW 40 Standard
Kaminofen
breite Garage
Nutzgarten
15m² pro Kinderzimmer
-könnt Ihr nicht verzichten:
drei Kinderzimmer,
HomeOffice Büro
offener Wohnbereich
zweiter Badebereich
Warum ist der Entwurf so geworden, wie er jetzt ist?
Ein Gemisch aus vielen Beispielen, versuch m² einzusparen und alles auf 180m² unterzubringen, aber inzwischen bauen wir gerne größer, da die Vorgenehmigung bis zu 272m² zugesagt hat
Entsprechende/Welche Wünsche wurden vom Architekten umgesetzt? noch keine, er hat noch nichts geliefert nur Vorschläge geliefert, die wir nicht unbedingt gut finden
Was macht ihn in Euren Augen besonders gut oder schlecht?
Die Aufteilung des EG gefällt uns gut, Technik kann wenig Lärm im Haus verursachen, da sie ausgelagert ist
Original: https://www.hausbau-forum.de/threads/kombination-massivhaus-vs-holzrahmenbau.48745/
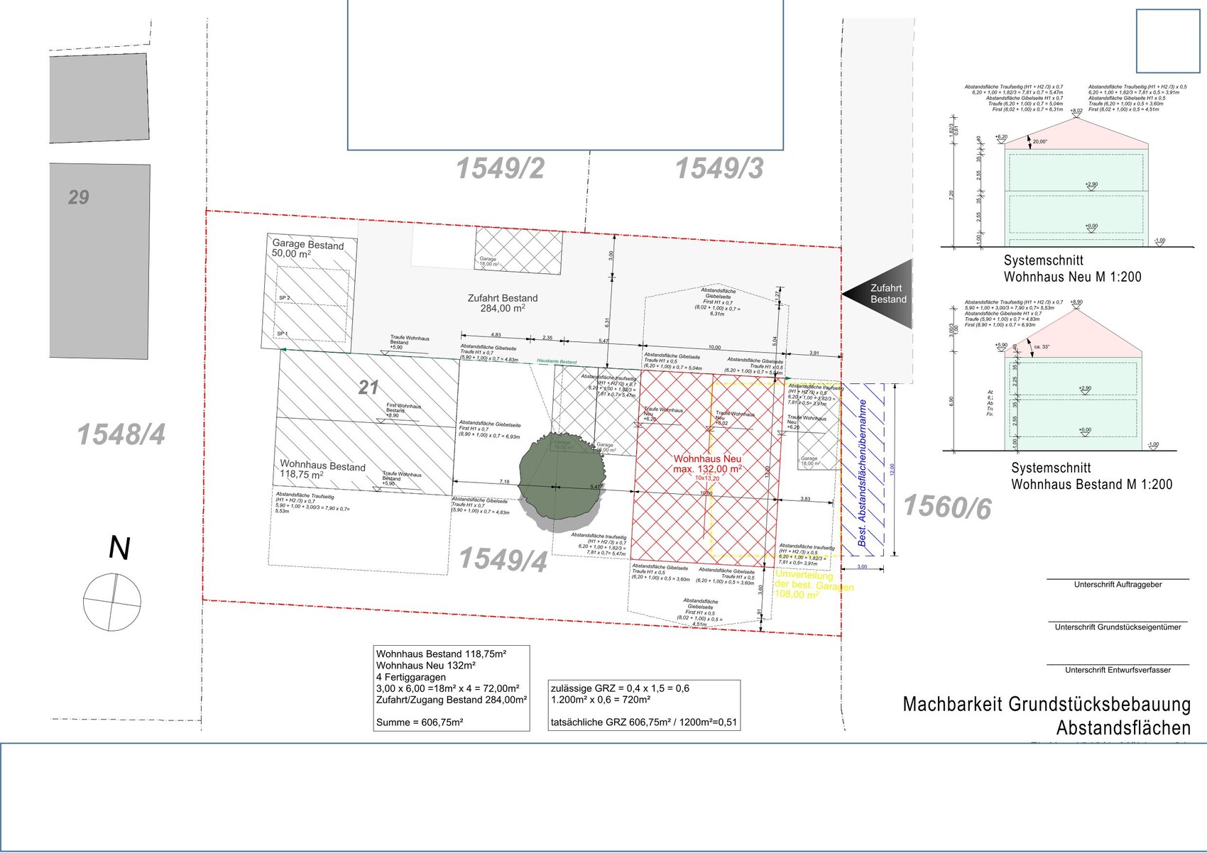
Der Grundstücksplan sah ursprünglich vor vorhandene Fertiggaragen wiederzuverwenden, allerdings sind diese verkauft und wir haben freie Hand





wir möchten gerne bei den Schwiegereltern aufs Grundstück unser Einfamilienhaus bauen. Ziel sind es 200m² mit Doppelgarage. Unser Architekt ist dabei sehr kreativ, was uns etwas misfällt und ich hier Hilfe suche
Größe des Grundstücks: 1200m², unser Bereich soll künftig ca 550m² haben
Kein Hang vorhanden -> Acker (1549) liegt aber 1m unter dem Grundstück
Grundflächenzahl unbekannt
Geschossflächenzahl unbekannt
Baufenster, Baulinie und -grenze unbekannt
Randbebauung unbekannt
Anzahl Stellplatz 1.5
Geschossigkeit 2
Dachform keine Vorgaben
Stilrichtung keine Vorgaben
Ausrichtung keine Vorgaben
Maximale Höhen/Begrenzungen unbekannt
weitere Vorgaben
bestehende Abstandsflächenübernahme muss neu beantragt werden
Anforderungen der Bauherren
Stilrichtung, Dachform, Gebäudetyp
klassisches Einfamilienhaus mit Satteldach
Keller, Geschosse
kein Keller, zwei Vollgeschosse
Anzahl der Personen, Alter
5 Personen, 33, 31, 2, 0, in Planung
Raumbedarf im EG, OG
Büro:
Homeoffice P1 4 Tage + P2 2 Tage
Schlafgäste pro Jahr
keine
offene oder geschlossene Architektur
offen
konservativ oder moderne Bauweise
modern
offene Küche, Kochinsel
offene Küche, G-Form
Anzahl Essplätze
mind. 8 optimal 10
Kamin
Kaminofen (optional)
Musik/Stereowand
Stereowand (optional)
Balkon, Dachterrasse
kein Balkon, Dachterrasse (optional)
Garage, Carport
Doppelgarage, extra breit/tief (7.5x9)
Nutzgarten, Treibhaus
Nutzgarten
weitere Wünsche/Besonderheiten/Tagesablauf, gern auch Begründungen, warum dieses oder das nicht sein soll
Aufgrund von Hochwasserereignissen soll das Haus 1m über Grundhöhe erstellt werden, Garagen dürfen ebenerdig bleiben
Bestandsgebäude braucht mehr als die vorhandene Doppelgarage an Stellplätzen, mind. 3
Garagen auf der Ostseite, da im Flurstück 1560/6 eine Durchgehende 10-12m hohe Baum/Buschfront an der Grenze hat
Hausentwurf
Do-it-Yourself
Was gefällt besonders? Warum?
EG: Offener Wohn Essbereich, Küche ist direkt im Leben am Tisch integriert
EG: Zwischen Arbeitsbereich und Küche liegt die Speiß als Akustikbremse
Was gefällt nicht? Warum?
EG: TV sollte mit Stereo eigentlich Richtung Tisch zeigen um den ganzen Raum zu beschallen
OG: Zu verwinkelt, Kinderzimmer haben keine 15m²+
OG: Kein Platz für Wäschetrocknen/Bügeln
Garage: Technikraum würde bei Hochwasser absaufen
Preisschätzung laut Architekt/Planer:
750.000€
favorisierte Heiztechnik:
Wärmepumpe
Wenn Ihr verzichten müsst, auf welche Details/Ausbauten
-könnt Ihr verzichten:
Dachterrasse
KFW 40 Standard
Kaminofen
breite Garage
Nutzgarten
15m² pro Kinderzimmer
-könnt Ihr nicht verzichten:
drei Kinderzimmer,
HomeOffice Büro
offener Wohnbereich
zweiter Badebereich
Warum ist der Entwurf so geworden, wie er jetzt ist?
Ein Gemisch aus vielen Beispielen, versuch m² einzusparen und alles auf 180m² unterzubringen, aber inzwischen bauen wir gerne größer, da die Vorgenehmigung bis zu 272m² zugesagt hat
Entsprechende/Welche Wünsche wurden vom Architekten umgesetzt? noch keine, er hat noch nichts geliefert nur Vorschläge geliefert, die wir nicht unbedingt gut finden
Was macht ihn in Euren Augen besonders gut oder schlecht?
Die Aufteilung des EG gefällt uns gut, Technik kann wenig Lärm im Haus verursachen, da sie ausgelagert ist
Original: https://www.hausbau-forum.de/threads/kombination-massivhaus-vs-holzrahmenbau.48745/
Der Grundstücksplan sah ursprünglich vor vorhandene Fertiggaragen wiederzuverwenden, allerdings sind diese verkauft und wir haben freie Hand
Die Erschließung läuft via GFL-Korridor über 1549/3, die im letzten Bild gezeigten Garagen sind schon weg und ungefähr dort soll auch das Haus hinkommen, das rot gitterschraffierte "neue" Haus ist aber eine nicht verwirklichte frühere Planung ?
Von der (ohne Hebewerk wohl zwangsläufig ebenerdig anfahrbaren) Garage geht eine Zwischentür ins 1m aufgestelzte Haus, da kann ich nicht ganz folgen. Diskrete Schranktürdurchschlupfe in Speisekammern findest Du hier mehrfach skeptisch diskutiert. Die Grundrisse sind nicht das Gelbe vom Ei des Kolumbus, aber endlich ´mal handgekritzelt statt Klickibunti 3D. Ich vermute, das sind Skizzen aus dem Stadium "vor der Architekteneinschaltung" (?)
Du erkennst hoffentlich, daß ohne nähere Erläuterungen nur eher ungelenke Spekulationen möglich sind.
https://www.instagram.com/11antgmxde/
https://www.linkedin.com/company/bauen-jetzt/
Von der (ohne Hebewerk wohl zwangsläufig ebenerdig anfahrbaren) Garage geht eine Zwischentür ins 1m aufgestelzte Haus, da kann ich nicht ganz folgen. Diskrete Schranktürdurchschlupfe in Speisekammern findest Du hier mehrfach skeptisch diskutiert. Die Grundrisse sind nicht das Gelbe vom Ei des Kolumbus, aber endlich ´mal handgekritzelt statt Klickibunti 3D. Ich vermute, das sind Skizzen aus dem Stadium "vor der Architekteneinschaltung" (?)
Du erkennst hoffentlich, daß ohne nähere Erläuterungen nur eher ungelenke Spekulationen möglich sind.
https://www.instagram.com/11antgmxde/
https://www.linkedin.com/company/bauen-jetzt/
R
roteweste07.02.25 06:55Hallo Gustav,
unser Haus soll ganz ähnliche Anforderungen erfüllen, daher sind mir ein paar Dinge sofort aufgefallen.
Was mir auf die Schnelle auffällt:
Technik in der Garage: Ist das technisch so einfach umsetzbar? Was passiert, wenn Wasser in der Garage steht? Wie wirkt sich die fehlende Dämmung aus? Und wie sieht es mit den Hausanschlüssen aus?
Ihr habt einen langen Weg vom Haupteingang zur Garderobe.
Speisekammer möglicherweise überflüssig. Ich würde mich auch noch nicht zwingend auf die Küche festlegen. Wir wollten zunächst eine U-Form und sind nun bei einer L-Form mit Insel gelandet.
unser Haus soll ganz ähnliche Anforderungen erfüllen, daher sind mir ein paar Dinge sofort aufgefallen.
Gustav5789 schrieb:Vielleicht solltet ihr dann einen Architekten suchen, mit dem ihr besser harmoniert?
Unser Architekt ist dabei sehr kreativ, was uns etwas missfällt.
Was mir auf die Schnelle auffällt:
Technik in der Garage: Ist das technisch so einfach umsetzbar? Was passiert, wenn Wasser in der Garage steht? Wie wirkt sich die fehlende Dämmung aus? Und wie sieht es mit den Hausanschlüssen aus?
Ihr habt einen langen Weg vom Haupteingang zur Garderobe.
Speisekammer möglicherweise überflüssig. Ich würde mich auch noch nicht zwingend auf die Küche festlegen. Wir wollten zunächst eine U-Form und sind nun bei einer L-Form mit Insel gelandet.
G
Gustav578907.02.25 09:04Die Erschließung läuft via GFL-Korridor über 1549/3, die im letzten Bild gezeigten Garagen sind schon weg und ungefähr dort soll auch das Haus hinkommen, das rot gitterschraffierte "neue" Haus ist von einer früheren Planung bei der wir grundsätzlich wissen wollten welche Auflagen wir erfüllen müssen für den Bau.
Von der Garage geht eine Zwischentür ins 1m aufgestelzte Haus, hier habe ich nur vergessen eine Treppe in der Garage einzuzeichnen. Die Skizzen sind vor dem Architekten entstanden und sollen unsere Wünsche/Gedanken zur Innenraumplanung wiedergeben.
Da wir bei Antrag auf Vorbescheid kaum Auflagen bekommen haben, möchten wir jetzt abweichend vom Plan ein klassisches Haus mit Doppelgarage. Bei Technik in der Garage hätten wir auch auf Wärmeschutz achten müssen. Außerdem hätten wir Probleme beim Hochwasser, warum die neue Idee(vom Architekten) war, diesen auf die Garage zu setzen, während wir den Technikraum im Haus integriert hätten.
Speisekammer deswegen, weil wir nirgends einen wirklichen Abstellraum haben.
Von der Garage geht eine Zwischentür ins 1m aufgestelzte Haus, hier habe ich nur vergessen eine Treppe in der Garage einzuzeichnen. Die Skizzen sind vor dem Architekten entstanden und sollen unsere Wünsche/Gedanken zur Innenraumplanung wiedergeben.
Da wir bei Antrag auf Vorbescheid kaum Auflagen bekommen haben, möchten wir jetzt abweichend vom Plan ein klassisches Haus mit Doppelgarage. Bei Technik in der Garage hätten wir auch auf Wärmeschutz achten müssen. Außerdem hätten wir Probleme beim Hochwasser, warum die neue Idee(vom Architekten) war, diesen auf die Garage zu setzen, während wir den Technikraum im Haus integriert hätten.
Speisekammer deswegen, weil wir nirgends einen wirklichen Abstellraum haben.
K
K a t j a07.02.25 17:23Kannst Du noch mehr zum Vorbeischeid sagen? Wofür gelten die 272qm? Nur für s Haus?
Gustav5789 schrieb:
Von der Garage geht eine Zwischentür ins 1m aufgestelzte Haus, hier habe ich nur vergessen eine Treppe in der Garage einzuzeichnen.Weder sehe ich da sechs Steigungen gescheit hineinpassen noch Dich mehr als nur gebückt durchschlupfen können, wenn die Garage keine mächtige Überhöhe haben soll.Suche und zeige doch mal Darstellungen der Höhen des Grundstückes und einer Hochwassersimulation darauf. Da muß es doch gescheitere Lösungen des Hochwasserschutzes geben als das Haus als Pfahlbau. Die Aufstelzung würde auch den erlaubten Höhen nicht zugeschlagen. Und wo soll überhaupt Euer Bootssteg sein, von dem Ihr ins Haus geht bzw. die Feuerwehr Euch retten müßte?
https://www.instagram.com/11antgmxde/
https://www.linkedin.com/company/bauen-jetzt/
Ähnliche Themen