ᐅ Grundrissplanung Stadtvilla mit Doppelgarage ca. 150m²
Erstellt am: 19.11.20 08:53
Hallo zusammen,
gerne würde ich über Erfahrungen und Meinungen zu unserer aktuellen Planung befragen. Wir befinden uns noch ganz am Anfang der Planungsphase.
Bebauungsplan/Einschränkungen
Größe des Grundstücks: ca. 524
Hang: nein
Grundflächenzahl: 0,3
Geschossflächenzahl: -
Baufenster, Baulinie und -grenze:
Randbebauung:
Anzahl Stellplatz
Geschossigkeit
Dachform
Stilrichtung
Ausrichtung
Maximale Höhen/Begrenzungen
weitere Vorgaben
Anforderungen der Bauherren
Stilrichtung, Dachform, Gebäudetyp:
Keller, Geschosse:
Anzahl der Personen, Alter: 2 Personen anfang 20, 2 Kinder geplant
Raumbedarf im EG, OG:
Büro: Familiennutzung oder Homeoffice?-> HomeOffice
Schlafgäste pro Jahr: wenige
offene oder geschlossene Architektur: offen
konservativ oder moderne Bauweise: modern
offene Küche, Kochinsel: offen + Insel
Anzahl Essplätze: 6-8
Kamin: ja (noch nicht in den Plänen vorhanden)
Musik/Stereowand: nein
Balkon, Dachterrasse: nein
Garage, Carport: Doppelgarage
Nutzgarten, Treibhaus: nein
weitere Wünsche/Besonderheiten/Tagesablauf, gern auch Begründungen, warum dieses oder das nicht sein soll
Wir würden gerne eine Wallbox in der Doppelgarage installieren um zukünftig ein E-Fzg als Zweitwagen nutzen zu können. Aufgrund aktueller Förderungen, sowie einer Kombination mit einer Photovoltaikanlage scheint es eine interessante Lösung für uns zu sein.
Hausentwurf
Von wem stammt die Planung: Architekt
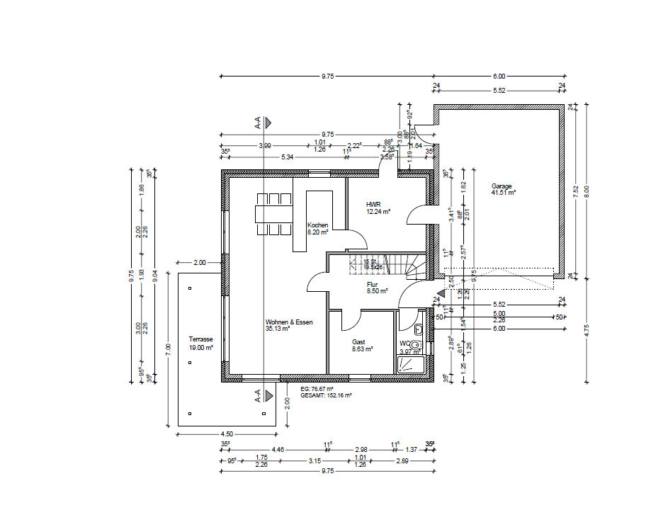
Was gefällt besonders? Warum? große Zimmer im OG
Was gefällt nicht? Warum? Durchgang von Garage über den Hauswirtschaftsraum in die Küche. Eigentlich war eine separate Speisekammer geplant und der Hauswirtschaftsraum sollte in den Flur führen. Aufgrund der Grundstücksbegebenheiten scheint mir jedoch die Lösung des Architekten am zweckmäßigsten. Anfangs war das Büro im OG geplant, somit wären alle Zimmer kleiner geworden. Büro im EG gefällt uns trotzdem.
Preisschätzung lt Architekt/Planer: noch k.A
Persönliches Preislimit fürs Haus, inkl Ausstattung: 400k
favorisierte Heiztechnik: noch kein Favorit
Wenn Ihr verzichten müsst, auf welche Details/Ausbauten
-könnt Ihr verzichten: -
-könnt Ihr nicht verzichten: -
Warum ist der Entwurf so geworden, wie er jetzt ist? ZB
Standardentwurf vom Planer?
Entsprechende/Welche Wünsche wurden vom Architekten umgesetzt? Wunsch nach Büro und zwei gleich großen Kinderzimmer, sowie Schlafzimmer mit Ankleide wurden umgesetzt. Ebenso DG mit Durchgang in das Haus. Terrassenüberdachung wurde auch nach unserem Wunsch geplant.
Was macht ihn in Euren Augen besonders gut oder schlecht?
Was ist die wichtigste/grundlegende Frage zum Grundriss in 130 Zeichen zusammengefasst?
Da unser Grundstück nicht sonderlich groß ist und wir uns am Ende einer Privatstraße befinden wollen wir natürlich das beste aus der Fläche rausholen. Alles in allem sind wir mit dem ersten Entwurf sehr zufrieden, sind aber noch für externe Anregungen offen. Da wir beide noch sehr jung sind und wenig konstruktiver Input aus Familien- und Bekanntenkreis kommt sind wir gespannt was hier im Forum für Ideen aufkommen.






gerne würde ich über Erfahrungen und Meinungen zu unserer aktuellen Planung befragen. Wir befinden uns noch ganz am Anfang der Planungsphase.
Bebauungsplan/Einschränkungen
Größe des Grundstücks: ca. 524
Hang: nein
Grundflächenzahl: 0,3
Geschossflächenzahl: -
Baufenster, Baulinie und -grenze:
Randbebauung:
Anzahl Stellplatz
Geschossigkeit
Dachform
Stilrichtung
Ausrichtung
Maximale Höhen/Begrenzungen
weitere Vorgaben
Anforderungen der Bauherren
Stilrichtung, Dachform, Gebäudetyp:
Keller, Geschosse:
Anzahl der Personen, Alter: 2 Personen anfang 20, 2 Kinder geplant
Raumbedarf im EG, OG:
Büro: Familiennutzung oder Homeoffice?-> HomeOffice
Schlafgäste pro Jahr: wenige
offene oder geschlossene Architektur: offen
konservativ oder moderne Bauweise: modern
offene Küche, Kochinsel: offen + Insel
Anzahl Essplätze: 6-8
Kamin: ja (noch nicht in den Plänen vorhanden)
Musik/Stereowand: nein
Balkon, Dachterrasse: nein
Garage, Carport: Doppelgarage
Nutzgarten, Treibhaus: nein
weitere Wünsche/Besonderheiten/Tagesablauf, gern auch Begründungen, warum dieses oder das nicht sein soll
Wir würden gerne eine Wallbox in der Doppelgarage installieren um zukünftig ein E-Fzg als Zweitwagen nutzen zu können. Aufgrund aktueller Förderungen, sowie einer Kombination mit einer Photovoltaikanlage scheint es eine interessante Lösung für uns zu sein.
Hausentwurf
Von wem stammt die Planung: Architekt
Was gefällt besonders? Warum? große Zimmer im OG
Was gefällt nicht? Warum? Durchgang von Garage über den Hauswirtschaftsraum in die Küche. Eigentlich war eine separate Speisekammer geplant und der Hauswirtschaftsraum sollte in den Flur führen. Aufgrund der Grundstücksbegebenheiten scheint mir jedoch die Lösung des Architekten am zweckmäßigsten. Anfangs war das Büro im OG geplant, somit wären alle Zimmer kleiner geworden. Büro im EG gefällt uns trotzdem.
Preisschätzung lt Architekt/Planer: noch k.A
Persönliches Preislimit fürs Haus, inkl Ausstattung: 400k
favorisierte Heiztechnik: noch kein Favorit
Wenn Ihr verzichten müsst, auf welche Details/Ausbauten
-könnt Ihr verzichten: -
-könnt Ihr nicht verzichten: -
Warum ist der Entwurf so geworden, wie er jetzt ist? ZB
Standardentwurf vom Planer?
Entsprechende/Welche Wünsche wurden vom Architekten umgesetzt? Wunsch nach Büro und zwei gleich großen Kinderzimmer, sowie Schlafzimmer mit Ankleide wurden umgesetzt. Ebenso DG mit Durchgang in das Haus. Terrassenüberdachung wurde auch nach unserem Wunsch geplant.
Was macht ihn in Euren Augen besonders gut oder schlecht?
Was ist die wichtigste/grundlegende Frage zum Grundriss in 130 Zeichen zusammengefasst?
Da unser Grundstück nicht sonderlich groß ist und wir uns am Ende einer Privatstraße befinden wollen wir natürlich das beste aus der Fläche rausholen. Alles in allem sind wir mit dem ersten Entwurf sehr zufrieden, sind aber noch für externe Anregungen offen. Da wir beide noch sehr jung sind und wenig konstruktiver Input aus Familien- und Bekanntenkreis kommt sind wir gespannt was hier im Forum für Ideen aufkommen.
N
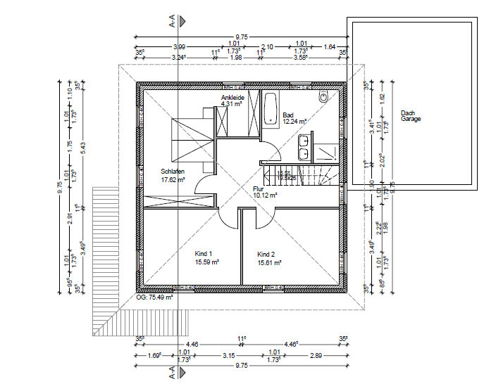
NatureSys19.11.20 09:13Mir erschließt sich nicht ganz der Zweck des Flurstreifens vor dem Kinderzimmer 2. Das Flurfenster könnte man doch auch über die Treppe setzen und würde dann vermutlich 2 qm weniger Flur im OG haben.
Ist die Möblierung im Essbereich so geplant? Das könnte knapp werden für 6 Plätze. Wenn ich das richtig abschätze bleiben da 3m. Als Tisch ist das viel, aber wenn da noch Platz zum dran vorbei gehen bleiben soll wird das knapp. Die Küchen-Eßlösung gefällt mir so gar nicht. Wohnzimmer ist dann in der anderen Ecke und in der Mitte viel ungenutzter Raum.
Ist ein Keller geplant oder ist der Hauswirtschaftsraum auch TK-Raum? Ohne Keller habe ich unter der Treppe Platz für Garderobe, ansonsten wird das knapp in dem Flur.
Die Tür vom Hauswirtschaftsraum in die Garage (und vice versa) streichen. Das bringt nix, kostet aber enorm an Stellplatz und wird teuer.
Im OG gefällt mir die Lösung für Schlafzimmer/Ankleide überhaupt nicht. Das hat ein "echter" Architekt gezeichnet? Hat der einen Kurs "wie verhuddle ich viel Raum ohne Nutzen" besucht?
Tür direkt ins Schlafzimmer streichen. Schrank an der planunteren Wand weg, Bett nach planunten. Eingang über Ankleide, die dann bis planlinks vergrößert werden kann.
So wie jetzt macht das doch überhaupt keinen Sinn! Ein paar Meter Schrank direkt am Bett und ein par scheißdreckerl Schrank in der sog. Ankleide (die m.E. den Namen so nicht verdient).
Der Nordpfeil fehlt mir, aber ich gehe davon aus, daß Süden an der planlinken Seite ist. Dann würde ich oben ganz umplanen und das arme Kind 2 aus seiner Dunkelkammer holen und mit dem Schlafzimmer/Ankleide tauschen. Wie NatureSys schon gesagt hat: diesen Flurstreifen streichen und daraus Schlafzimmer/Ankleide machen (am besten mit Ankleide als Trennung zum Kind1) und den Kindern die Sonne gönnen und dafür ein kühleres Schlafzimmer haben.
Auch die Aufteilung im Bad mag mir so nicht gefallen. Da stehst du beim Zähneputzen am WB und immer rennt dir jemand im Rücken. Bei einem Familienbad mit vielleicht zwei Kindern passiert am meisten am WB und das steht hier mitten in der Verkehrszone. Unbedingt umplanen!
Ist ein Keller geplant oder ist der Hauswirtschaftsraum auch TK-Raum? Ohne Keller habe ich unter der Treppe Platz für Garderobe, ansonsten wird das knapp in dem Flur.
Die Tür vom Hauswirtschaftsraum in die Garage (und vice versa) streichen. Das bringt nix, kostet aber enorm an Stellplatz und wird teuer.
Im OG gefällt mir die Lösung für Schlafzimmer/Ankleide überhaupt nicht. Das hat ein "echter" Architekt gezeichnet? Hat der einen Kurs "wie verhuddle ich viel Raum ohne Nutzen" besucht?
Tür direkt ins Schlafzimmer streichen. Schrank an der planunteren Wand weg, Bett nach planunten. Eingang über Ankleide, die dann bis planlinks vergrößert werden kann.
So wie jetzt macht das doch überhaupt keinen Sinn! Ein paar Meter Schrank direkt am Bett und ein par scheißdreckerl Schrank in der sog. Ankleide (die m.E. den Namen so nicht verdient).
Der Nordpfeil fehlt mir, aber ich gehe davon aus, daß Süden an der planlinken Seite ist. Dann würde ich oben ganz umplanen und das arme Kind 2 aus seiner Dunkelkammer holen und mit dem Schlafzimmer/Ankleide tauschen. Wie NatureSys schon gesagt hat: diesen Flurstreifen streichen und daraus Schlafzimmer/Ankleide machen (am besten mit Ankleide als Trennung zum Kind1) und den Kindern die Sonne gönnen und dafür ein kühleres Schlafzimmer haben.
Auch die Aufteilung im Bad mag mir so nicht gefallen. Da stehst du beim Zähneputzen am WB und immer rennt dir jemand im Rücken. Bei einem Familienbad mit vielleicht zwei Kindern passiert am meisten am WB und das steht hier mitten in der Verkehrszone. Unbedingt umplanen!
N
Nice-Nofret19.11.20 10:05ist der Flurplan genordet?
Gut am Bad ist, dass es an keinen Schlafraum grenzt, ansonsten ist unpraktisch geplant;
Elternschlaf inkl. Ankleide ist Platzverschwendung pur; und das bei miniKomfort mit MiniNachttischen. Das Bett könnte z.B: an die Wand ggüber. Betreten sollte man das Schlafzimmer, wenn immer möglich über die Ankleide, so dass man sich bei unterschiedlichen Bettzeiten nicht ggseitig stört.
Am Besten jedoch die Schlaf-Etage nochmal umplanen.
EG: Zugang zum Allraum eine grosszügige Doppeltüre geben (z.B. 100-120cm lichte Breite)
Küche - Hauswirtschaftsraum - Garage: die Türen sollten einander gegenüberliegen und ca 70-75cm von der Wand entfernt geplant werden um den Raum besser möblieren zu können; Mittige Türen sind maximal unpraktisch. Also die Türen nach planoben rücken. Das verbessert dann auch automatisch die Küchenplanung.
Gut am Bad ist, dass es an keinen Schlafraum grenzt, ansonsten ist unpraktisch geplant;
Elternschlaf inkl. Ankleide ist Platzverschwendung pur; und das bei miniKomfort mit MiniNachttischen. Das Bett könnte z.B: an die Wand ggüber. Betreten sollte man das Schlafzimmer, wenn immer möglich über die Ankleide, so dass man sich bei unterschiedlichen Bettzeiten nicht ggseitig stört.
Am Besten jedoch die Schlaf-Etage nochmal umplanen.
EG: Zugang zum Allraum eine grosszügige Doppeltüre geben (z.B. 100-120cm lichte Breite)
Küche - Hauswirtschaftsraum - Garage: die Türen sollten einander gegenüberliegen und ca 70-75cm von der Wand entfernt geplant werden um den Raum besser möblieren zu können; Mittige Türen sind maximal unpraktisch. Also die Türen nach planoben rücken. Das verbessert dann auch automatisch die Küchenplanung.
NatureSys schrieb:
Mir erschließt sich nicht ganz der Zweck des Flurstreifens vor dem Kinderzimmer 2. Das Flurfenster könnte man doch auch über die Treppe setzen und würde dann vermutlich 2 qm weniger Flur im OG haben.Da hast du absolut Recht! Ist mir gar nicht aufgefallen, danke dafür.
Climbee schrieb:
Ist die Möblierung im Essbereich so geplant? Das könnte knapp werden für 6 Plätze. Wenn ich das richtig abschätze bleiben da 3m. Als Tisch ist das viel, aber wenn da noch Platz zum dran vorbei gehen bleiben soll wird das knapp. Die Küchen-Eßlösung gefällt mir so gar nicht. Wohnzimmer ist dann in der anderen Ecke und in der Mitte viel ungenutzter Raum.
Ist ein Keller geplant oder ist der Hauswirtschaftsraum auch TK-Raum? Ohne Keller habe ich unter der Treppe Platz für Garderobe, ansonsten wird das knapp in dem Flur.
Die Tür vom Hauswirtschaftsraum in die Garage (und vice versa) streichen. Das bringt nix, kostet aber enorm an Stellplatz und wird teuer.
Im OG gefällt mir die Lösung für Schlafzimmer/Ankleide überhaupt nicht. Das hat ein "echter" Architekt gezeichnet? Hat der einen Kurs "wie verhuddle ich viel Raum ohne Nutzen" besucht?
Tür direkt ins Schlafzimmer streichen. Schrank an der planunteren Wand weg, Bett nach planunten. Eingang über Ankleide, die dann bis planlinks vergrößert werden kann.
So wie jetzt macht das doch überhaupt keinen Sinn! Ein paar Meter Schrank direkt am Bett und ein par scheißdreckerl Schrank in der sog. Ankleide (die m.E. den Namen so nicht verdient).
Der Nordpfeil fehlt mir, aber ich gehe davon aus, daß Süden an der planlinken Seite ist. Dann würde ich oben ganz umplanen und das arme Kind 2 aus seiner Dunkelkammer holen und mit dem Schlafzimmer/Ankleide tauschen. Wie NatureSys schon gesagt hat: diesen Flurstreifen streichen und daraus Schlafzimmer/Ankleide machen (am besten mit Ankleide als Trennung zum Kind1) und den Kindern die Sonne gönnen und dafür ein kühleres Schlafzimmer haben.
Auch die Aufteilung im Bad mag mir so nicht gefallen. Da stehst du beim Zähneputzen am WB und immer rennt dir jemand im Rücken. Bei einem Familienbad mit vielleicht zwei Kindern passiert am meisten am WB und das steht hier mitten in der Verkehrszone. Unbedingt umplanen!Vielen Dank erstmal für die vielen Anregungen.
Die Küche und Essbereich sind so defintiv nicht geplant und wahrscheinlich ein Standard des Architekten.
Es ist kein Keller geplant, somit ist der Hauswirtschaftsraum auch SK. Die Tür zusätzliche Tür im Hauswirtschaftsraum gefällt uns auch gar nicht und werden wir streichen. Allerdings hätten wir trotzdem einen Durchgang von Garage ins Haus. Ursprünglich war auch ein Durchgang über Hauswirtschaftsraum in den Flur geplant und eine separate SK.
Bzgl OG:
Ja das ist tatsächlich von einem Architekten.. Die Ankleide schien uns auch etwas klein, aber wir hatten keinen Vergleich. Deine Idee mit dem Eingang über Ankleide finde ich sehr gut !
Ich habe die Pläne etwas unvorteilhaft ausgeschnitten, somit ist der Nordpfeil nicht mehr sichtbar. Aber alle Pläne sind auf Norden ausgerichtet. Tausch von Schlafzimmer und Kinderzimmer find eich auch vorteilhaft.
Nice-Nofret schrieb:
ist der Flurplan genordet?
Gut am Bad ist, dass es an keinen Schlafraum grenzt, ansonsten ist unpraktisch geplant;
Elternschlaf inkl. Ankleide ist Platzverschwendung pur; und das bei miniKomfort mit MiniNachttischen. Das Bett könnte z.B: an die Wand ggüber. Betreten sollte man das Schlafzimmer, wenn immer möglich über die Ankleide, so dass man sich bei unterschiedlichen Bettzeiten nicht ggseitig stört.
Am Besten jedoch die Schlaf-Etage nochmal umplanen.
EG: Zugang zum Allraum eine grosszügige Doppeltüre geben (z.B. 100-120cm lichte Breite)
Küche - Hauswirtschaftsraum - Garage: die Türen sollten einander gegenüberliegen und ca 70-75cm von der Wand entfernt geplant werden um den Raum besser möblieren zu können; Mittige Türen sind maximal unpraktisch. Also die Türen nach planoben rücken. Das verbessert dann auch automatisch die Küchenplanung.OG werden wir nach den ganzen Anregungen defintiv umplanen lassen. Die Planung mit den Türen behalten wir auch, danke dafür.
Küche gefällt nicht. Für eine richtige Insel mit mind. 90 cm Tiefe reicht der platz so nicht aus. Essbereich kann richtig eng werden, wenn mal Besuch kommt.
Drei Türen engen die Möblierung des HWRs ein, obwohl er ja recht gross ist. Ich würde auch auf den Zugang vom Flur aus machen. Möglichkeit unter der Treppe wäre gegeben. Garderobenplatz fehlt dann. Da würde ich noch eine Garderobenkammer im Schnittbereich Küche/Hauswirtschaftsraum/Flur setzen.
Der fragliche Flur neben der Treppe gibt etwas mehr Großzügigkeit. Man kann natürlich auch den Bereich schliessen, dann hätte man aber eine Treppe zwischen zwei Wänden - da muss man abwägen.
Das Bett hat eine ganz schreckliche Lage. Schöner ist es, wenn man auf ein Bett zugeht. davon aber mal abgesehen, hat das Bett auf der Kopfseite links und rechts Zugänge, bzw Türen. Das lässt so manchen schlecht schlafen. Behaglichkeit ist etwas anderes. Gefangene Ankleide, dazu wurde schon etwas gesagt.
Bad: Waschtische im Dunkeln, Dusche am Fenster. Das gehört anders herum. Bevor man zum Grundriss sein OK gibt, unbedingt schon die Badplanung fertig haben. Ansonsten kann man später Probleme beim Möblieren bekommen.
Drei Türen engen die Möblierung des HWRs ein, obwohl er ja recht gross ist. Ich würde auch auf den Zugang vom Flur aus machen. Möglichkeit unter der Treppe wäre gegeben. Garderobenplatz fehlt dann. Da würde ich noch eine Garderobenkammer im Schnittbereich Küche/Hauswirtschaftsraum/Flur setzen.
Der fragliche Flur neben der Treppe gibt etwas mehr Großzügigkeit. Man kann natürlich auch den Bereich schliessen, dann hätte man aber eine Treppe zwischen zwei Wänden - da muss man abwägen.
Das Bett hat eine ganz schreckliche Lage. Schöner ist es, wenn man auf ein Bett zugeht. davon aber mal abgesehen, hat das Bett auf der Kopfseite links und rechts Zugänge, bzw Türen. Das lässt so manchen schlecht schlafen. Behaglichkeit ist etwas anderes. Gefangene Ankleide, dazu wurde schon etwas gesagt.
Bad: Waschtische im Dunkeln, Dusche am Fenster. Das gehört anders herum. Bevor man zum Grundriss sein OK gibt, unbedingt schon die Badplanung fertig haben. Ansonsten kann man später Probleme beim Möblieren bekommen.
Ähnliche Themen