ᐅ Optimierung 150m² Einfamilienhaus @ 470m² & 19m schmalem Grundstück
Erstellt am: 12.02.21 18:29
C
candinoGuten Abend liebe Mitglieder,
nachdem wir vor Kurzem unser Grundstück erworben haben, stehen wir nun vor der Herausforderung, ein passendes Häuschen dafür zu planen.
Denkt man zunächst, dass es doch kein allzu großer Akt sein kann, ein angemessenes Fertighaus quasi aus der Schublade oder den unendlichen Weiten des www zu ziehen, wird man - ob der zahlreichen persönlichen Anforderungen und verfügbarer Varianten - ziemlich schnell eines Besseren belehrt.
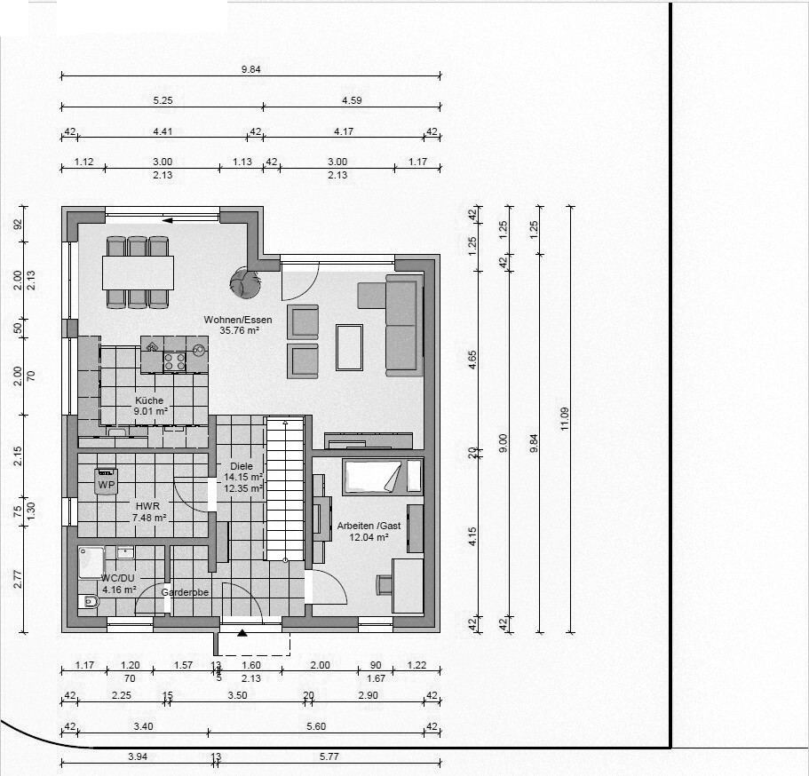
Das Grundstück befindet sich an einer Privatstraße direkt neben dem Wendehammer in nahezu optimaler SW-Ausrichtung mit unverbaubarem Blick auf ein Feld.
Links und rechts gibt es keine direkten Nachbarn, da beide Grundstück nicht bebaut werden.
Aktuell wohnen wir auf 95m² und 2 Räumen. Seitdem wir zu dritt sind, fehlt schlicht ein dritter Raum.
Unser Wohnzimmer ist offen geschnitten und hat inkl. Küche m. Insel 45m². Nur ungern wollen wir uns durch einen Hausbau diesbzgl. verkleinern.
Zwar haben wir unserem Bauträger ein ziemlich genaues Bild unserer Wünsche und vermeintlichen First-World-Problems vermittelt, die Umsetzung allerdings ist gefühlt einfach nicht das, was wir uns vors
Bebauungsplan/Einschränkungen
kein Bebauungsplan, §34
Größe des Grundstücks - 470m²
Hang - nein
Grundflächenzahl
Geschossflächenzahl
Baufenster, Baulinie und -grenze
Randbebauung
Anzahl Stellplatz - 2
Geschossigkeit - 2
Dachform - Walmdach
Stilrichtung - modern
Ausrichtung - SW
Maximale Höhen/Begrenzungen
weitere Vorgaben
Anforderungen der Bauherren
Stilrichtung, Dachform, Gebäudetyp
Keller, Geschosse - o.Keller
Anzahl der Personen, Alter: 40, 34, 2
Raumbedarf im EG, OG
Büro: Homeoffice, Flexibilität im Alter (?)
Schlafgäste pro Jahr - 1-2
offene oder geschlossene Architektur - unbedingt offen
konservativ oder moderne Bauweise - modern, zeitlos
offene Küche, Kochinsel - offen m. Kochinsel
Anzahl Essplätze - 4-6
Kamin - ja - nur wo?
Musik/Stereowand - nein
Balkon, Dachterrasse - nein
Garage, Carport - Doppel-Carport statt Garage, da letztere das Grundstück "zumauern" würde
Nutzgarten, Treibhaus - nein
weitere Wünsche/Besonderheiten/Tagesablauf, gern auch Begründungen, warum dieses oder das nicht sein soll
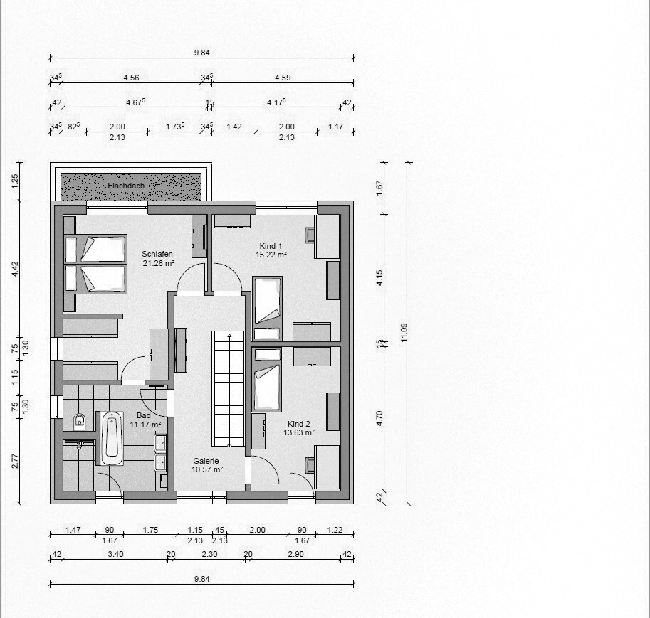
Wie bekommen wir trotz offener Bauweise Privatsphäre in die obere Etage?
Die Fensteranordnung im Bad finden wir zu offenherzig
Das Galeriefenster im OG ist eine schöne Sachse aber ggü. wird auch ein Haus stehen
Hausentwurf
Von wem stammt die Planung:
- Skizze d. Bauherren - Übersetzung durch Planer eines Bauunternehmens
Was gefällt besonders? Warum?
Großer offener Wohn-, Ess-, Kochbereich, Erker zur Wohnraumerweiterung
Was gefällt nicht? Warum?
Eingangsbereich inkl. Garderobe, Gästebad, Hauswirtschaftsraum - finden wir zu klein/eng für den Alltag mit Kind(ern)
Viel Stauraum lässt sich gefühlt nicht mit der Bauweise vereinbaren - oder doch?
Wäre eine Podesttreppe besser?
Preisschätzung lt Architekt/Planer: 300k
Persönliches Preislimit fürs Haus, inkl Ausstattung: 330k
favorisierte Heiztechnik: Luftwärmepumpe
Wenn Ihr verzichten müsst, auf welche Details/Ausbauten
-könnt Ihr verzichten: T-Lösung, Ankleide, ggf. Galerie, gerade Treppe
-könnt Ihr nicht verzichten: Grundriss. offenen Wohn/Essbereich und Schlafzimmer mit großen Fenstern zum Garten
Warum ist der Entwurf so geworden, wie er jetzt ist? ZB
Standardentwurf vom Planer? eigene Vorstellungen, angepasst an Grundstück
Entsprechende/Welche Wünsche wurden vom Architekten Planer umgesetzt?
10m Hausbreite wurden um 50cm reduziert, um auf dem schmalen Grundstück noch Platz f. ein 6m-Doppelcarport zu lassen
Was macht ihn in Euren Augen besonders gut oder schlecht?
Was ist die wichtigste/grundlegende Frage zum Grundriss in 130 Zeichen zusammengefasst?
Wie kann man das Grundstück mit einem 2-Geschosser so bebauen, dass man möglichst wenig davon verschwendet, trotz offener Bauweise und großzügigen Räumen genug Privatsphäre und Stauraum -besonders in der Diele erreicht.
Ich freue mich auf Eure Ideen und Verbesserungsvorschläge.



nachdem wir vor Kurzem unser Grundstück erworben haben, stehen wir nun vor der Herausforderung, ein passendes Häuschen dafür zu planen.
Denkt man zunächst, dass es doch kein allzu großer Akt sein kann, ein angemessenes Fertighaus quasi aus der Schublade oder den unendlichen Weiten des www zu ziehen, wird man - ob der zahlreichen persönlichen Anforderungen und verfügbarer Varianten - ziemlich schnell eines Besseren belehrt.
Das Grundstück befindet sich an einer Privatstraße direkt neben dem Wendehammer in nahezu optimaler SW-Ausrichtung mit unverbaubarem Blick auf ein Feld.
Links und rechts gibt es keine direkten Nachbarn, da beide Grundstück nicht bebaut werden.
Aktuell wohnen wir auf 95m² und 2 Räumen. Seitdem wir zu dritt sind, fehlt schlicht ein dritter Raum.
Unser Wohnzimmer ist offen geschnitten und hat inkl. Küche m. Insel 45m². Nur ungern wollen wir uns durch einen Hausbau diesbzgl. verkleinern.
Zwar haben wir unserem Bauträger ein ziemlich genaues Bild unserer Wünsche und vermeintlichen First-World-Problems vermittelt, die Umsetzung allerdings ist gefühlt einfach nicht das, was wir uns vors
Bebauungsplan/Einschränkungen
kein Bebauungsplan, §34
Größe des Grundstücks - 470m²
Hang - nein
Grundflächenzahl
Geschossflächenzahl
Baufenster, Baulinie und -grenze
Randbebauung
Anzahl Stellplatz - 2
Geschossigkeit - 2
Dachform - Walmdach
Stilrichtung - modern
Ausrichtung - SW
Maximale Höhen/Begrenzungen
weitere Vorgaben
Anforderungen der Bauherren
Stilrichtung, Dachform, Gebäudetyp
Keller, Geschosse - o.Keller
Anzahl der Personen, Alter: 40, 34, 2
Raumbedarf im EG, OG
Büro: Homeoffice, Flexibilität im Alter (?)
Schlafgäste pro Jahr - 1-2
offene oder geschlossene Architektur - unbedingt offen
konservativ oder moderne Bauweise - modern, zeitlos
offene Küche, Kochinsel - offen m. Kochinsel
Anzahl Essplätze - 4-6
Kamin - ja - nur wo?
Musik/Stereowand - nein
Balkon, Dachterrasse - nein
Garage, Carport - Doppel-Carport statt Garage, da letztere das Grundstück "zumauern" würde
Nutzgarten, Treibhaus - nein
weitere Wünsche/Besonderheiten/Tagesablauf, gern auch Begründungen, warum dieses oder das nicht sein soll
Wie bekommen wir trotz offener Bauweise Privatsphäre in die obere Etage?
Die Fensteranordnung im Bad finden wir zu offenherzig
Das Galeriefenster im OG ist eine schöne Sachse aber ggü. wird auch ein Haus stehen
Hausentwurf
Von wem stammt die Planung:
- Skizze d. Bauherren - Übersetzung durch Planer eines Bauunternehmens
Was gefällt besonders? Warum?
Großer offener Wohn-, Ess-, Kochbereich, Erker zur Wohnraumerweiterung
Was gefällt nicht? Warum?
Eingangsbereich inkl. Garderobe, Gästebad, Hauswirtschaftsraum - finden wir zu klein/eng für den Alltag mit Kind(ern)
Viel Stauraum lässt sich gefühlt nicht mit der Bauweise vereinbaren - oder doch?
Wäre eine Podesttreppe besser?
Preisschätzung lt Architekt/Planer: 300k
Persönliches Preislimit fürs Haus, inkl Ausstattung: 330k
favorisierte Heiztechnik: Luftwärmepumpe
Wenn Ihr verzichten müsst, auf welche Details/Ausbauten
-könnt Ihr verzichten: T-Lösung, Ankleide, ggf. Galerie, gerade Treppe
-könnt Ihr nicht verzichten: Grundriss. offenen Wohn/Essbereich und Schlafzimmer mit großen Fenstern zum Garten
Warum ist der Entwurf so geworden, wie er jetzt ist? ZB
Standardentwurf vom Planer? eigene Vorstellungen, angepasst an Grundstück
Entsprechende/Welche Wünsche wurden vom Architekten Planer umgesetzt?
10m Hausbreite wurden um 50cm reduziert, um auf dem schmalen Grundstück noch Platz f. ein 6m-Doppelcarport zu lassen
Was macht ihn in Euren Augen besonders gut oder schlecht?
Was ist die wichtigste/grundlegende Frage zum Grundriss in 130 Zeichen zusammengefasst?
Wie kann man das Grundstück mit einem 2-Geschosser so bebauen, dass man möglichst wenig davon verschwendet, trotz offener Bauweise und großzügigen Räumen genug Privatsphäre und Stauraum -besonders in der Diele erreicht.
Ich freue mich auf Eure Ideen und Verbesserungsvorschläge.
P
pagoni202012.02.21 18:51Ich würde das Haus in den Vordergund stellen und daher keinesfalls 50cm dafür hergeben, nur um einen derart breiten Carport bauen. 50cm innen können einen sehr großen Unterschied machen, fürs Auto wirds andere Lösungen geben.
Kamin könnte knapp werden, da dieser schon etwas raumgreifend ist bzw. man Abstand davon haben sollte.
Wichtig, wie immer, reale Möbelmasse einzeichnen, sonst gibts böse Überraschungen.
Von der Grundausrichtung finde ich das EG nicht schlecht, vlt. bekommst ja hier noch Tipps wg. Treppe, Garderobe, Stellfläche usw.
Büro könnte je nach Notwendigkeit auch TV-Raum sein und dann könnte man WZ freier stellen. Insbes. könnte man der Wand dort auch etwas an Fenster gönnen.
Das OG gefällt mir so nicht, nach evtl. geänderter Treppe bekommst da aber auch andere Optionen hin.
Nicht machen würde ich zwei Türen zum Bad, dann gehe ich eben selbst über den Flur, es ist ja in der Familie. Erstens vergibst Du Dir Platz und zweitens wirkt es unruhig und wer mag denn immer 2 Türen abschließen UND wieder aufschließen. Notfalls kann man das in der Wand vorsehen für später, falls Kinder mal weg sind abewr bis dahin hat man sichn dran gewöhnt.
Auch der Zugang zum Schlafzimmer wirkt etwas verzwickt und man hat quasi auch 2 Zugänge zum Schlafzimmer.
Schlafzimmer würde ich evtl. mit einem Kinderzimmer tauschen.
Sobald die 2. Tür im Bad weg ist bekommst mit 11qm auch ein schönes Bad ohne dieses T.
Vorsicht bei Kinderzimmer 2: Könnte sich evctl. zum Vampir entwickeln wg. ständiger Dunkelheit alleine durch diesen Lichtschlitz. 😱
Kamin könnte knapp werden, da dieser schon etwas raumgreifend ist bzw. man Abstand davon haben sollte.
Wichtig, wie immer, reale Möbelmasse einzeichnen, sonst gibts böse Überraschungen.
Von der Grundausrichtung finde ich das EG nicht schlecht, vlt. bekommst ja hier noch Tipps wg. Treppe, Garderobe, Stellfläche usw.
Büro könnte je nach Notwendigkeit auch TV-Raum sein und dann könnte man WZ freier stellen. Insbes. könnte man der Wand dort auch etwas an Fenster gönnen.
Das OG gefällt mir so nicht, nach evtl. geänderter Treppe bekommst da aber auch andere Optionen hin.
Nicht machen würde ich zwei Türen zum Bad, dann gehe ich eben selbst über den Flur, es ist ja in der Familie. Erstens vergibst Du Dir Platz und zweitens wirkt es unruhig und wer mag denn immer 2 Türen abschließen UND wieder aufschließen. Notfalls kann man das in der Wand vorsehen für später, falls Kinder mal weg sind abewr bis dahin hat man sichn dran gewöhnt.
Auch der Zugang zum Schlafzimmer wirkt etwas verzwickt und man hat quasi auch 2 Zugänge zum Schlafzimmer.
Schlafzimmer würde ich evtl. mit einem Kinderzimmer tauschen.
Sobald die 2. Tür im Bad weg ist bekommst mit 11qm auch ein schönes Bad ohne dieses T.
Vorsicht bei Kinderzimmer 2: Könnte sich evctl. zum Vampir entwickeln wg. ständiger Dunkelheit alleine durch diesen Lichtschlitz. 😱
candino schrieb:
Links und rechts gibt es keine direkten Nachbarn, da beide Grundstück nicht bebaut werden.Haben die Kinder der Reservegrundstückseigentümer schon anderswo gebaut und die Enkel sind noch so klein, daß dies quasi als noch ewig garantiert gesehen wird ?Einen Bauträger hat man auf seinem eigenen Grundstück übrigens nicht, da ist es dann ein Generalunternehmer. Immerhin habt Ihr den Architekten im Fragebogen durchgestrichen, also zumindest den Unterschied Zeichenknecht / Architekt schon´mal erkannt. Welche "First World Problems" hätte ich hier als vom GU nicht verstanden erkennen sollen ?
Erst´mal herzlichen Dank, daß ich das noch erleben darf: auf die Idee, im Fragebogen die Antworten farblich abzusetzen, kommen leider nicht´mal ein Prozent der Fragesteller. Daher mein Like !
https://www.instagram.com/11antgmxde/
https://www.linkedin.com/company/bauen-jetzt/
Vielen Dank für die promten Rückmeldungen. Ich habe den Eingangspost nochmal ergänzt.
pagoni2020 schrieb:Wäre ein Zugang über die Ankleide in beide Räume besser? Hier würde uns der Fakt stören, dass Kind (und Freunde) den selben Weg nähmen. Kinderbad kommt nicht in die Tüte.
Nicht machen würde ich zwei Türen zum Bad, dann gehe ich eben selbst über den Flur, es ist ja in der Familie. Erstens vergibst Du Dir Platz und zweitens wirkt es unruhig und wer mag denn immer 2 Türen abschließen UND wieder aufschließen. Notfalls kann man das in der Wand vorsehen für später, falls Kinder mal weg sind abewr bis dahin hat man sichn dran gewöhnt.
Auch der Zugang zum Schlafzimmer wirkt etwas verzwickt und man hat quasi auch 2 Zugänge zum Schlafzimmer.
11ant schrieb:Grundstück 3 ist mit dem darüber zusammengelegt und wird nur im nördlichen Teil bebaut. Grundstück 5 bleibt unbebaut, da der Eigentümer dessen als auch der dahinterliegenden Immobilie mit Gästebetrieb glücklicherweise auf seine freie Sichtachse besteht.
Haben die Kinder der Reservegrundstückseigentümer schon anderswo gebaut und die Enkel sind noch so klein, daß dies quasi als noch ewig garantiert gesehen wird ?
11ant schrieb:Nach der Grobplanung und -Kalkulation geht es zum A., der sodann jede einzelne Wand nochmal feinplant, den Bauantrag anfertigt usw.
Einen Bauträger hat man auf seinem eigenen Grundstück übrigens nicht, da ist es dann ein Generalunternehmer. Immerhin habt Ihr den Architekten im Fragebogen durchgestrichen, also zumindest den Unterschied Zeichenknecht / Architekt schon´mal erkannt.
11ant schrieb:Wenn sich schon jemand die Zeit freiwillig nimmt, uns zu helfen ist das doch das Mindeste.
Erst´mal herzlichen Dank, daß ich das noch erleben darf: auf die Idee, im Fragebogen die Antworten farblich abzusetzen, kommen leider nicht´mal ein Prozent der Fragesteller. Daher mein Like !
11ant schrieb:
Einen Bauträger hat man auf seinem eigenen Grundstück übrigens nicht, da ist es dann ein Generalunternehmer.Alles klar, danke. In unserem Fall sag ich einfach „Fertighausanbieter“.11ant schrieb:
Welche "First World Problems" hätte ich hier als vom GU nicht verstanden erkennen sollen ?Der Satz war eher so gemeint, dass es bei aller Liebe um „Jammern auf sehr hohem Niveau“ geht. Dennoch sind es wichtige Entscheidungen, die wir treffen müssen.P
pagoni202012.02.21 20:57candino schrieb:
Kinderbad kommt nicht in die Tüte.Endlich......es gibt es also doch noch !Ich würde in diesem Fall dann das Bad ganz normal vom Flur aus begehbar machen. Bad en suite ist schön hat aber eben auch Nachteile. Zudem ist der Flur im OG ja eh privat. Oder ihr bekommt noch ein ganz kleines DU/WC als ensuite-Lösung. Das hatte ich mal so nach dem Umbau und ich mochte es. Wirklich ganz klein, DU/WC., diesen Galeriebereich hättest ja als Fläche.
Ähnliche Themen