Hallo Zusammen,
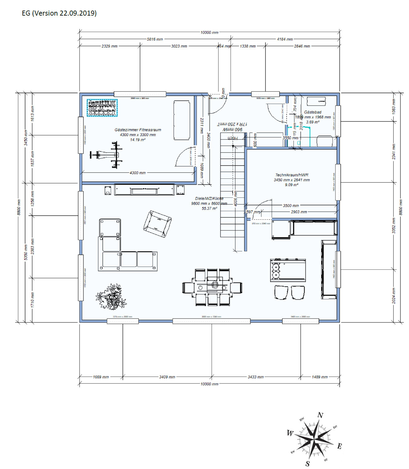
meine Partnerin und ich haben nun endlich ein großes Grundstück mit 437qm² in München-Eching gekauft und werden demnächst darauf unser Fertig-Einfamilienhaus über Streif Haus bauen. Geplant sind um die 145qm² Wohnfläche auf 9,96 m x 8,71m. Mehr ist einfach aufgrund des Budgets nicht möglich
(z.B. kosten 1m Länge mehr auf einer Seite ca. 30k mehr).
Bisher habe ich alle Grundrisspläne mit dem einem Tool erstellt. Letzten Freitag hatten wir unseren ersten Termin mit dem Architekten. Leider hat er einiges von unseren Wünschen über Bord geworfen:
- Galerie über das OG,
Anordnung der Räume im OG (Beide Kinderzimer sollen südlich ausgerichtet sein, Schlafzimmer und Badezimmer nördlich, obwohl wir es gerne andersherum hätten)
- Alle Terrassenwünsche
- Gestaltung Badezimmer (wir wollten eine T-Form, d.h. waschbecken etwas mehr im Raum, dahinter Toilette und Dusche. Badewanne freistehend im Raum.
usw.
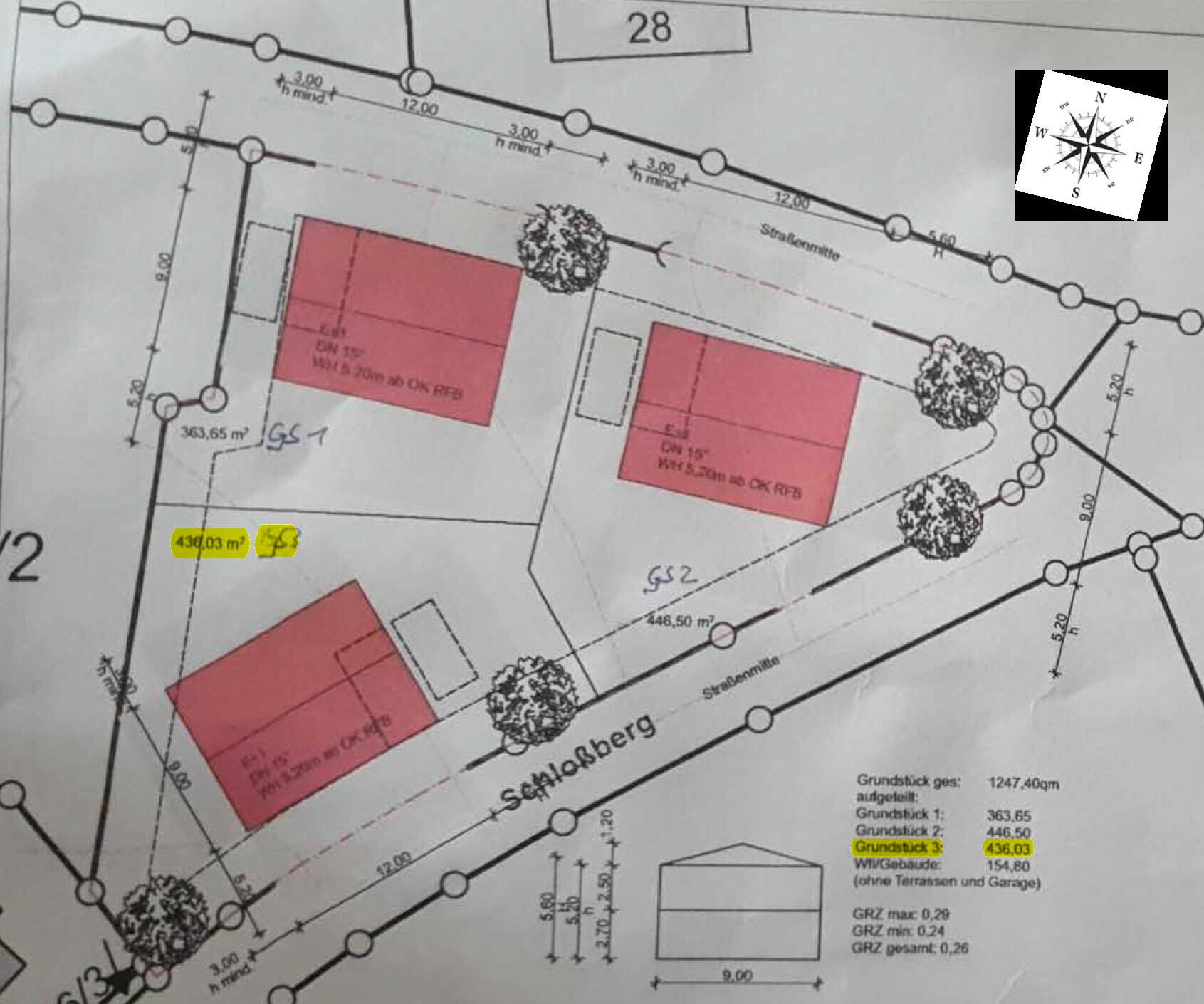
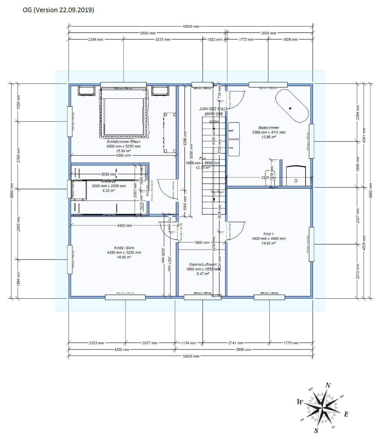
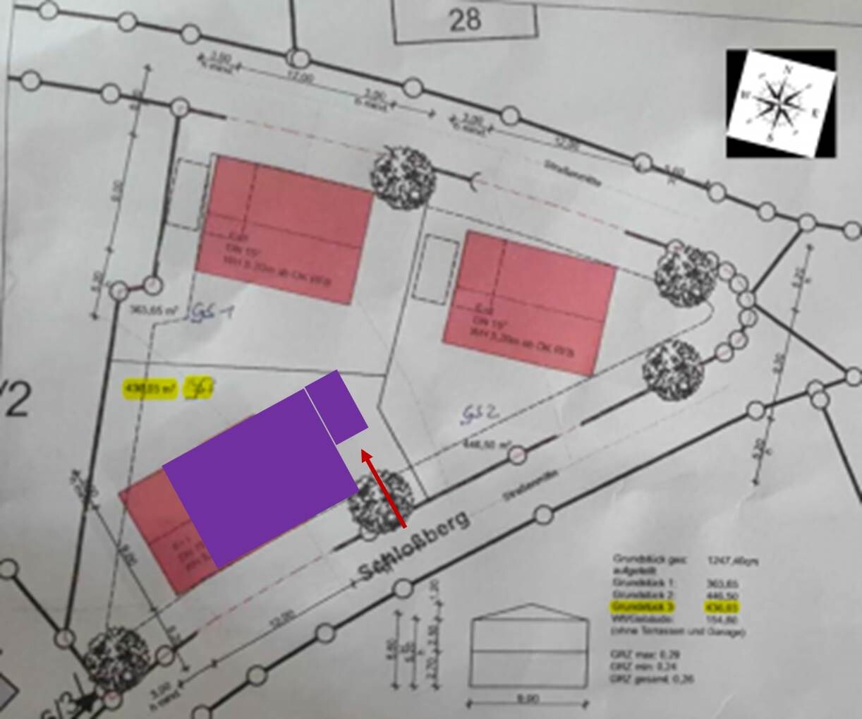
Meinen Pläne für EG/OG habe ich angehängt. Da das Grundstück nicht rechteckig sondern sehr verwinkelt ist, ist allein die Position des Hauses schwer zu planen, da man natürlich mit dem Garten und den größten Fenstern im Wohnzimmer und Küche südlich ausgerichtet sein möchte. Im angehängten Lageplan ist das Haus noch sehr zentral (mit 12x9m) positioniert. Wir werden so weit wie möglich nach rechts in den Osten schieben.
Wir hatten auch überlegt, die Treppenart zu ändern (Podesttreppe z.B.), aber laut Architekt gehört die gerade Treppe zum Haustyp "Stadtvilla" von STREIF. Hierzu auch gerne Meinungen von Euch. Wenn ich die Treppenart ändere, wird der ganze Grundriss über Board geworfen und die Planung fängt wieder bei Null an - das wäre aber dann auch in Ordnung, da es um eine "große" Sache geht.
Der Architekt plant den Eingang nicht südlich direkt über die Straße Schlossberg, sondern nördlich - indem man über die Straße auf das Grundstück geht, das Haus seitlich über die Garage entlang läuft und nach dem Knick im Norden reingeht. Also entgegengesetzt als im Lageplan vorgesehen. Das ist ein ziemlich "weiter" Weg. Was haltet Ihr davon?
Anmerkungen findet Ihr dann unten bei den Fragen. Feedback zum Grundriss sind erwünscht!
Bebauungsplan/Einschränkungen
Größe des Grundstücks: 437qm²
Hang: nein
Grundflächenzahl
Geschossflächenzahl
Baufenster, Baulinie und -grenze: Baulinie mit Haus im Nordwesten (auf Lageplan noch nicht richtig positioniert)
Randbebauung soweit Nordöstlich auf dem Grundstück wie möglich, mit Einhaltung der gesetzl. Abstandsflächen zu den Nachbarn 6m.
Anzahl Stellplatz: Geplant 1 Carport, 1 Garage.
Geschossigkeit: 2 (ohne Keller)
Dachform: Walmdach oder Satteldach
Stilrichtung: modern
Ausrichtung: Südwestlich
Maximale Höhen/Begrenzungen n/a
weitere Vorgaben n/a
Anforderungen der Bauherren
Stilrichtung, Dachform, Gebäudetyp: Fertighaus Fa. STREIF, Typ "Cityvilla", kein Erker, rechtekig
Keller, Geschosse: ohne Keller, 1,5 Geschosse (ohne Dachschrägen, mit Dachluke zum kleinen nicht bewohnbaren Dachgeschoss)
Anzahl der Personen, Alter: 2 Personen, 36 und 30 Jahre alt.
Raumbedarf im EG, OG:
EG: großes WZ, offene Küche und Essen, Hauswirtschaftsraum/Technik/Speisekamer (Anbindung über Küche), Gästebad, Flur, Gästezimmer/Büro/Hobbyraum.
OG: Schlafzimmer, 2 KZ, großes Badezimmer, ggf. Galerie
Büro: Familiennutzung oder Homeoffice?: Beides - oben kommt das Büro da oftmals auch laut Musik gehört wird und unten ist der Hobbyraum mit Fitnessgeräte geplant. Das kann sich ändern wenn Kinder mal da sind.
Schlafgäste pro Jahr: 10 Tage
offene oder geschlossene Architektur: offen
konservativ oder moderne Bauweise: modern
offene Küche, Kochinsel: offen, bevorzugt mit Kochinsel und Zugang zum Hauswirtschaftsraum/Speisekammer
Anzahl Essplätze: 4-6
Kamin: erwünscht, wird allerdings noch geplant, d.h. vorher eingeplant, später aus Prioritäts- und Budgetgründen gebaut.
Musik/Stereowand: ja, mit Standboxen und ext. Subwoofer.
Balkon, Dachterrasse: nein. (war zuerst erwünscht, aber Nutzen/Kostenfaktor ist nicht ansprechend da ein großer Garten vorhanden ist.
Garage, Carport: Zuerst Garage, danach Carport (2 Plätze sind vorgeschrieben).
Nutzgarten, Treibhaus: nein.
weitere Wünsche/Besonderheiten/Tagesablauf, gern auch Begründungen, warum dieses oder das nicht sein soll:
Das Gästezimmer/Fitnesszimmer ist bewusst groß geplant da ich einige Geräte unterbringen möchte. GGf. wird im Winter auch eine Tischtennisplatte im Raum genutzt.
Hier wird noch über Sinnhaftigkeit überlegt. Ein Keller ist nicht vorhanden. Später soll im Garten noch ein Gartenhaus entstehen.
Da wir wenig Platz haben, ist jeder Tipp bzgl. Lagerung von Dingen die normalerweise in den Keller gehören hilfreich!
Ankleideraum im Schlafzimmer ist gewünscht.
Hausentwurf
Von wem stammt die Planung: Von Mir via Tool.
-Architekt:
Einen Architektentermin hatten wir bereits. Einige Wünsche wurden uns bereits "ausgeredet", wie überdachte Garage (Östlich), überdachte Terrasse in den Garten (Südwesten) oder auch die Galerie vom 1. OG.
- Der Architekt empfiehlt alle Sanitäranlagen auf einer "Ebene" zu haben, d.h. Gästebad/Technikraum im EG liegen genau unter dem Badezimmer im OG.
- Er empfiehlt, die Kinderzimmer südlich auszurichten und nicht das Schlafzimmer oder Bad wie zuerst von uns gewünscht. (Kinder spielen mehr im Zimmer bei Sonne). Gerne hätten wir aber im Schlafzimmer oder beim Baden (Bad vorm Fenster mit Sichtschutz geplant) die Sonne da der Raum heller und entspannter ist.
-Planer eines Bauunternehmens: Fertighaus wird mit STREIF Haus gebaut. Architekt ist ein STREIF Architekt.
-Do-it-Yourself: Wir haben das Produkt FastFertigPLUS erworben. D.h. Wand-, Boden und Gartenarbeit wird in Eigenleistung erbracht. Da ich handwerklich geschickt bin, sollten Wand und Bodenarbeit kein Problem sein. Beim Terrassenbau und Gartenanlage wird noch überlegt, ob man das in prof. Händen übergibt.
Was gefällt besonders?
Warum? Großes Grundstück mit Einfamilienhaus (für Münchner-Verhältnisse).
Bei der Aufteilung das offene Raumgefühl mit großem Wohnzimmer und Essbereich sowie offene Küche.
Was gefällt nicht? Warum?
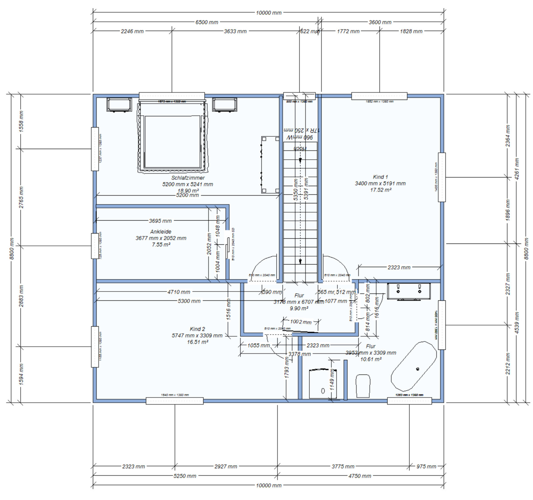
Der Flur nimmt insbesondere oben sehr viel Platz weg. Sofern man den Flur auf die vordere Seite beschränkt, können die Räume größer auf Kosten der Offenheit geplant werden (siehe Anlage, Testentwurf). Ob das so Sinn macht oder eher oben alles einengt?
Das Grundstück ist zwar groß, aber nicht rechtekig. So ist die Planung bzgl. Position des Hauses mit Südausrichtung unter Einhaltung des Mindestabstandes sehr schwierig.
Preisschätzung lt Architekt/Planer: 306.000 € für das fertiggestellte Haus ohne Nebenkosten und Planungskosten.
Persönliches Preislimit fürs Haus, inkl Ausstattung: circa 15.000 € können noch eingeplant werden. Wir rechnen mit höheren Kosten nach der Bemusterung, insbesondere für Sanitär, Schiebefenster und elektronische Rollos im EG (im OG mit "Standard" Ausführung).
Photovoltaikanlage mit Speicher (inkl. Zuschuss über Kfw 40+) und Garage kommen noch in die Überlegung.
favorisierte Heiztechnik: Luft-luftwärmepumpe. Im Bad Bodenheizung.
Ggf. kommt eine Photovoltaikanlage mit Speicher hinzu. Hierzu lassen wir uns über Kosten/Nutzen informieren.
Wenn Ihr verzichten müsst, auf welche Details/Ausbauten
-könnt Ihr verzichten: Galerie im OG zur Vergrößerung des Schlaf- und Kinderzimmers. Allerdings geht die Optik ein wenig verloren sowie das helle und offene Wohngefühl.
-könnt Ihr nicht verzichten: Photovoltaikanlage, Carport (neben Garage)
Warum ist der Entwurf so geworden, wie er jetzt ist? ZB
Standardentwurf vom Planer? Selbst erstellt.
Entsprechende/Welche Wünsche wurden vom Architekten umgesetzt? Alle Sanitäranlagen in einer "Linie" in die Höhe. Verzicht auf überdachte Terrassen/Balkone oder grd. Überdachung. Eingang in das Haus über die Nordseite, dh. nicht direkt von der Straße aus, sondern einmal 90 Grad ums Haus. macht das Sinn?
Ein Gemisch aus vielen Beispielen aus div. Magazinen... Teilweise stand das STREIF Musterhaus in Köln Pate. z.b. die Galerie.
Was macht ihn in Euren Augen besonders gut oder schlecht?
Da es eher mein eigener Plan ist, schwer zu sagen. Der Architekt plant den Ausgang über das große Fenster im Essbereich (macht auch Sinn). Allerdings gelangt man dann zum größten Bereich des Gartens, sondern eher näher anliegend auf die Straße. Man müsste erst einmal kurz ums Haus gehen, um in den "Haupt" Garten zu gelangen (Im Grunde Ausgang über das WZ). Mit der Anordnung und Ausgang in den Garten bin ich noch nicht ganz zufrieden.




meine Partnerin und ich haben nun endlich ein großes Grundstück mit 437qm² in München-Eching gekauft und werden demnächst darauf unser Fertig-Einfamilienhaus über Streif Haus bauen. Geplant sind um die 145qm² Wohnfläche auf 9,96 m x 8,71m. Mehr ist einfach aufgrund des Budgets nicht möglich
(z.B. kosten 1m Länge mehr auf einer Seite ca. 30k mehr).
Bisher habe ich alle Grundrisspläne mit dem einem Tool erstellt. Letzten Freitag hatten wir unseren ersten Termin mit dem Architekten. Leider hat er einiges von unseren Wünschen über Bord geworfen:
- Galerie über das OG,
Anordnung der Räume im OG (Beide Kinderzimer sollen südlich ausgerichtet sein, Schlafzimmer und Badezimmer nördlich, obwohl wir es gerne andersherum hätten)
- Alle Terrassenwünsche
- Gestaltung Badezimmer (wir wollten eine T-Form, d.h. waschbecken etwas mehr im Raum, dahinter Toilette und Dusche. Badewanne freistehend im Raum.
usw.
Meinen Pläne für EG/OG habe ich angehängt. Da das Grundstück nicht rechteckig sondern sehr verwinkelt ist, ist allein die Position des Hauses schwer zu planen, da man natürlich mit dem Garten und den größten Fenstern im Wohnzimmer und Küche südlich ausgerichtet sein möchte. Im angehängten Lageplan ist das Haus noch sehr zentral (mit 12x9m) positioniert. Wir werden so weit wie möglich nach rechts in den Osten schieben.
Wir hatten auch überlegt, die Treppenart zu ändern (Podesttreppe z.B.), aber laut Architekt gehört die gerade Treppe zum Haustyp "Stadtvilla" von STREIF. Hierzu auch gerne Meinungen von Euch. Wenn ich die Treppenart ändere, wird der ganze Grundriss über Board geworfen und die Planung fängt wieder bei Null an - das wäre aber dann auch in Ordnung, da es um eine "große" Sache geht.
Der Architekt plant den Eingang nicht südlich direkt über die Straße Schlossberg, sondern nördlich - indem man über die Straße auf das Grundstück geht, das Haus seitlich über die Garage entlang läuft und nach dem Knick im Norden reingeht. Also entgegengesetzt als im Lageplan vorgesehen. Das ist ein ziemlich "weiter" Weg. Was haltet Ihr davon?
Anmerkungen findet Ihr dann unten bei den Fragen. Feedback zum Grundriss sind erwünscht!
Bebauungsplan/Einschränkungen
Größe des Grundstücks: 437qm²
Hang: nein
Grundflächenzahl
Geschossflächenzahl
Baufenster, Baulinie und -grenze: Baulinie mit Haus im Nordwesten (auf Lageplan noch nicht richtig positioniert)
Randbebauung soweit Nordöstlich auf dem Grundstück wie möglich, mit Einhaltung der gesetzl. Abstandsflächen zu den Nachbarn 6m.
Anzahl Stellplatz: Geplant 1 Carport, 1 Garage.
Geschossigkeit: 2 (ohne Keller)
Dachform: Walmdach oder Satteldach
Stilrichtung: modern
Ausrichtung: Südwestlich
Maximale Höhen/Begrenzungen n/a
weitere Vorgaben n/a
Anforderungen der Bauherren
Stilrichtung, Dachform, Gebäudetyp: Fertighaus Fa. STREIF, Typ "Cityvilla", kein Erker, rechtekig
Keller, Geschosse: ohne Keller, 1,5 Geschosse (ohne Dachschrägen, mit Dachluke zum kleinen nicht bewohnbaren Dachgeschoss)
Anzahl der Personen, Alter: 2 Personen, 36 und 30 Jahre alt.
Raumbedarf im EG, OG:
EG: großes WZ, offene Küche und Essen, Hauswirtschaftsraum/Technik/Speisekamer (Anbindung über Küche), Gästebad, Flur, Gästezimmer/Büro/Hobbyraum.
OG: Schlafzimmer, 2 KZ, großes Badezimmer, ggf. Galerie
Büro: Familiennutzung oder Homeoffice?: Beides - oben kommt das Büro da oftmals auch laut Musik gehört wird und unten ist der Hobbyraum mit Fitnessgeräte geplant. Das kann sich ändern wenn Kinder mal da sind.
Schlafgäste pro Jahr: 10 Tage
offene oder geschlossene Architektur: offen
konservativ oder moderne Bauweise: modern
offene Küche, Kochinsel: offen, bevorzugt mit Kochinsel und Zugang zum Hauswirtschaftsraum/Speisekammer
Anzahl Essplätze: 4-6
Kamin: erwünscht, wird allerdings noch geplant, d.h. vorher eingeplant, später aus Prioritäts- und Budgetgründen gebaut.
Musik/Stereowand: ja, mit Standboxen und ext. Subwoofer.
Balkon, Dachterrasse: nein. (war zuerst erwünscht, aber Nutzen/Kostenfaktor ist nicht ansprechend da ein großer Garten vorhanden ist.
Garage, Carport: Zuerst Garage, danach Carport (2 Plätze sind vorgeschrieben).
Nutzgarten, Treibhaus: nein.
weitere Wünsche/Besonderheiten/Tagesablauf, gern auch Begründungen, warum dieses oder das nicht sein soll:
Das Gästezimmer/Fitnesszimmer ist bewusst groß geplant da ich einige Geräte unterbringen möchte. GGf. wird im Winter auch eine Tischtennisplatte im Raum genutzt.
Hier wird noch über Sinnhaftigkeit überlegt. Ein Keller ist nicht vorhanden. Später soll im Garten noch ein Gartenhaus entstehen.
Da wir wenig Platz haben, ist jeder Tipp bzgl. Lagerung von Dingen die normalerweise in den Keller gehören hilfreich!
Ankleideraum im Schlafzimmer ist gewünscht.
Hausentwurf
Von wem stammt die Planung: Von Mir via Tool.
-Architekt:
Einen Architektentermin hatten wir bereits. Einige Wünsche wurden uns bereits "ausgeredet", wie überdachte Garage (Östlich), überdachte Terrasse in den Garten (Südwesten) oder auch die Galerie vom 1. OG.
- Der Architekt empfiehlt alle Sanitäranlagen auf einer "Ebene" zu haben, d.h. Gästebad/Technikraum im EG liegen genau unter dem Badezimmer im OG.
- Er empfiehlt, die Kinderzimmer südlich auszurichten und nicht das Schlafzimmer oder Bad wie zuerst von uns gewünscht. (Kinder spielen mehr im Zimmer bei Sonne). Gerne hätten wir aber im Schlafzimmer oder beim Baden (Bad vorm Fenster mit Sichtschutz geplant) die Sonne da der Raum heller und entspannter ist.
-Planer eines Bauunternehmens: Fertighaus wird mit STREIF Haus gebaut. Architekt ist ein STREIF Architekt.
-Do-it-Yourself: Wir haben das Produkt FastFertigPLUS erworben. D.h. Wand-, Boden und Gartenarbeit wird in Eigenleistung erbracht. Da ich handwerklich geschickt bin, sollten Wand und Bodenarbeit kein Problem sein. Beim Terrassenbau und Gartenanlage wird noch überlegt, ob man das in prof. Händen übergibt.
Was gefällt besonders?
Warum? Großes Grundstück mit Einfamilienhaus (für Münchner-Verhältnisse).
Bei der Aufteilung das offene Raumgefühl mit großem Wohnzimmer und Essbereich sowie offene Küche.
Was gefällt nicht? Warum?
Der Flur nimmt insbesondere oben sehr viel Platz weg. Sofern man den Flur auf die vordere Seite beschränkt, können die Räume größer auf Kosten der Offenheit geplant werden (siehe Anlage, Testentwurf). Ob das so Sinn macht oder eher oben alles einengt?
Das Grundstück ist zwar groß, aber nicht rechtekig. So ist die Planung bzgl. Position des Hauses mit Südausrichtung unter Einhaltung des Mindestabstandes sehr schwierig.
Preisschätzung lt Architekt/Planer: 306.000 € für das fertiggestellte Haus ohne Nebenkosten und Planungskosten.
Persönliches Preislimit fürs Haus, inkl Ausstattung: circa 15.000 € können noch eingeplant werden. Wir rechnen mit höheren Kosten nach der Bemusterung, insbesondere für Sanitär, Schiebefenster und elektronische Rollos im EG (im OG mit "Standard" Ausführung).
Photovoltaikanlage mit Speicher (inkl. Zuschuss über Kfw 40+) und Garage kommen noch in die Überlegung.
favorisierte Heiztechnik: Luft-luftwärmepumpe. Im Bad Bodenheizung.
Ggf. kommt eine Photovoltaikanlage mit Speicher hinzu. Hierzu lassen wir uns über Kosten/Nutzen informieren.
Wenn Ihr verzichten müsst, auf welche Details/Ausbauten
-könnt Ihr verzichten: Galerie im OG zur Vergrößerung des Schlaf- und Kinderzimmers. Allerdings geht die Optik ein wenig verloren sowie das helle und offene Wohngefühl.
-könnt Ihr nicht verzichten: Photovoltaikanlage, Carport (neben Garage)
Warum ist der Entwurf so geworden, wie er jetzt ist? ZB
Standardentwurf vom Planer? Selbst erstellt.
Entsprechende/Welche Wünsche wurden vom Architekten umgesetzt? Alle Sanitäranlagen in einer "Linie" in die Höhe. Verzicht auf überdachte Terrassen/Balkone oder grd. Überdachung. Eingang in das Haus über die Nordseite, dh. nicht direkt von der Straße aus, sondern einmal 90 Grad ums Haus. macht das Sinn?
Ein Gemisch aus vielen Beispielen aus div. Magazinen... Teilweise stand das STREIF Musterhaus in Köln Pate. z.b. die Galerie.
Was macht ihn in Euren Augen besonders gut oder schlecht?
Da es eher mein eigener Plan ist, schwer zu sagen. Der Architekt plant den Ausgang über das große Fenster im Essbereich (macht auch Sinn). Allerdings gelangt man dann zum größten Bereich des Gartens, sondern eher näher anliegend auf die Straße. Man müsste erst einmal kurz ums Haus gehen, um in den "Haupt" Garten zu gelangen (Im Grunde Ausgang über das WZ). Mit der Anordnung und Ausgang in den Garten bin ich noch nicht ganz zufrieden.
Wenn ich Budgetsensibel planen würde, stünden die Möglichkeit "oder Walmdach" und der Luftraum gewiß viel weiter oben auf meiner Abschlußliste als Grundflächenquadratmeter. Mit Walmdach wäre ohnehin ein anderer Grundtyp angesagt, das tendiet mit Kniestock zu luxuriös mit Sternchen. Was sagt der Bebauungsplan überhaupt zu Dachform und -Neigung (und Firstrichtung) ? - die Haussymbole im Lageplan lassen gar befürchten, eine eindeutige Hausachse auch hinsichtlich des Seitenverhältnisses könne gewünscht sein.
Der Eingang liegt hier eigentlich an der Langseite an der Straße - was meint der Architekt also damit, ihn an die Seite legen zu wollen ?
Wie gewiß ist also hier überhaupt das richtige Ausgangsmodell gewählt ?
Das Planungstool ist wenig hilfreich - weder die rein symbolischen Wandstärken noch die genauen Maße irrelevanter Größen (wie z.B. Abstände von Fenstermittelachsen) machen sich der Diskussion nützlich.
https://www.instagram.com/11antgmxde/
https://www.linkedin.com/company/bauen-jetzt/
Der Eingang liegt hier eigentlich an der Langseite an der Straße - was meint der Architekt also damit, ihn an die Seite legen zu wollen ?
Wie gewiß ist also hier überhaupt das richtige Ausgangsmodell gewählt ?
Das Planungstool ist wenig hilfreich - weder die rein symbolischen Wandstärken noch die genauen Maße irrelevanter Größen (wie z.B. Abstände von Fenstermittelachsen) machen sich der Diskussion nützlich.
https://www.instagram.com/11antgmxde/
https://www.linkedin.com/company/bauen-jetzt/
Ein Chaos.
Erstmal möchte ich Dir sagen, dass Du ein ein sehr kleines Grundstück hast. Auch wenn es für Münchener Verhältnisse vielleicht ein Riese ist, bleibt es beim Bauen ein Zwerg. Du hast ja schon Probleme, Dein kleines Haus zu platzieren.
Natürlich ist es sinnvoll, bei kleinen Häusern die Treppenform zu wählen, die den kleinsten Platzbedarf hat. Das wäre wohl mit 2,20m x 2,20m die halb Gewendelte. Kommt aber immer auch auf die sonstigen Wünsche an.
Habt Ihr bei Streif Haus Haus schon unterschrieben? Wenn ja warum?
Ich sehe nicht, dass Ihr mit 15K Aufmusterung auskommt. Die Budgetfrage find ich kriminell, wenn das Euer ganzer Puffer ist.
Zum Grundriss:
Ich kenne mich mit Streif Haus Haus nicht aus aber offenbar versucht der Architekt Euch einen Grundriss aus der Schublade zu verkaufen - vermutlich um irgendwie im Budget zu bleiben. Da die Auswahl begrenzt ist, bietet er die gerade Treppe und Eingang von hinten an.
Wie flexibel ist denn der Grundriss überhaupt bei Streif Haus Haus? Was kostet eine Planung nach Deinen eigenen Vorschlägen extra?
Da hier alles so knapp ist, wird eine Diskussion erst interessant, wenn Du die genauen Grundstücksmaße einstellst. Dann kann man sich über die exakte Positionierung des Hauses unterhalten. Daraus ergäbe sich dann eine sinnvolle Aufteilung und dann kann man sehen, was vom Geld noch übrig ist.
Erstmal möchte ich Dir sagen, dass Du ein ein sehr kleines Grundstück hast. Auch wenn es für Münchener Verhältnisse vielleicht ein Riese ist, bleibt es beim Bauen ein Zwerg. Du hast ja schon Probleme, Dein kleines Haus zu platzieren.
Natürlich ist es sinnvoll, bei kleinen Häusern die Treppenform zu wählen, die den kleinsten Platzbedarf hat. Das wäre wohl mit 2,20m x 2,20m die halb Gewendelte. Kommt aber immer auch auf die sonstigen Wünsche an.
Habt Ihr bei Streif Haus Haus schon unterschrieben? Wenn ja warum?
Ich sehe nicht, dass Ihr mit 15K Aufmusterung auskommt. Die Budgetfrage find ich kriminell, wenn das Euer ganzer Puffer ist.
Zum Grundriss:
Ich kenne mich mit Streif Haus Haus nicht aus aber offenbar versucht der Architekt Euch einen Grundriss aus der Schublade zu verkaufen - vermutlich um irgendwie im Budget zu bleiben. Da die Auswahl begrenzt ist, bietet er die gerade Treppe und Eingang von hinten an.
Wie flexibel ist denn der Grundriss überhaupt bei Streif Haus Haus? Was kostet eine Planung nach Deinen eigenen Vorschlägen extra?
Da hier alles so knapp ist, wird eine Diskussion erst interessant, wenn Du die genauen Grundstücksmaße einstellst. Dann kann man sich über die exakte Positionierung des Hauses unterhalten. Daraus ergäbe sich dann eine sinnvolle Aufteilung und dann kann man sehen, was vom Geld noch übrig ist.
Ach Du meine Güte! Was haben die Euch denn für nen Mist erzählt?
Dein Puffer steht mit dem was da steht schon bei –35k€. Was da nicht steht kommt noch mal on top.
Was willst Du mit einer Luft-luftwärmepumpe? Hast Du eine Ahnung was die an Strom frisst? Da hilft Dir die Photovoltaikanlage nichts, wenn ab Ende Nov-Ende Feb nur 10-20% herunterkommen. Das reicht gerade mal für die Grundlast und ggf. Warmwasser. Die Heizung ist dann komplett außen vor! Den Speicher kannst Du dann auch für 3 Monate ausschalten, weil der nicht voll wird und Du direkt alles verbrauchst.
Zum Grundriss mag ich gar nichts, sagen! Soviel schöne große Fläche im EG und soviel Murks. Man oh man!
Dein Puffer steht mit dem was da steht schon bei –35k€. Was da nicht steht kommt noch mal on top.
Was willst Du mit einer Luft-luftwärmepumpe? Hast Du eine Ahnung was die an Strom frisst? Da hilft Dir die Photovoltaikanlage nichts, wenn ab Ende Nov-Ende Feb nur 10-20% herunterkommen. Das reicht gerade mal für die Grundlast und ggf. Warmwasser. Die Heizung ist dann komplett außen vor! Den Speicher kannst Du dann auch für 3 Monate ausschalten, weil der nicht voll wird und Du direkt alles verbrauchst.
Zum Grundriss mag ich gar nichts, sagen! Soviel schöne große Fläche im EG und soviel Murks. Man oh man!
Um erst mal nur auf die Lage des Hauses auf dem Grundstück einzugehen, sehe ich auf jeden Fall einen Eingang im Nordosten (falls der Südosten vermieden werden soll, da Terrassen Bereich).
Ich hab mal 2 mögliche Positionen angehängt - je nach Zulässigkeit des Bebauungsplan. Aus deine Angabe "Baulinie im Nordwesten" werde ich nicht schlau. Ist die Linie zur Straße eine Baulinie (wäre dann Südosten) oder nur eine Baugrenze? Falls Baulinie würde Variante 1 nicht mehr funktionieren. Umso mehr ich es mir anschaue, gefällt mir Variante 2 besser. Die Terrasse könnte im Südwesten sein, leicht in den Nordwesten ums Eck gezogen mit Tagsüber auch einem schattigen Plätzchen und später schöne Abendsonne - herrlich!
(1)

(2)

Den Eingang sehe ich im Osten (oder im Süden), nicht im Norden oder Süden. Für den Grundriss ist es zwar schöner den Eingang im Norden zu haben, aber du gewährst Postboten, Handwerkern, etc. immer den Einblick in dein ganzes Grundstück. Mit Eingang im Osten bleibt der Nordwest-Teil des Grundstücks "Privat" und hat nebenher noch herrliche Abendsonne.
Das "Eck" im Garten könnte durch eine "kreative" Garage, also frei geplant, keine Fertiggarage genutzt werden, z.B. als Abstellplatz für Fahrräder oder Werkstattecke.
Zum Grundriss: Bei der eher geringen Grundfläche würde ich auf Späße wie Galerie verzichten. Sind jetzt eigentlich 2 Vollgeschosse geplant (Streif Haus Haus Stadtvilla) oder 1,5 Geschosse?
Wenn ich mir Streif Haus Haus WD1000 als Grundentwurf anschaue, würde ich das Haus so drehen, dass der Eingang im Nordosten ist, die Raumanordnung im EG spiegeln (Hauswirtschaftsraum und Dusche im Norden) und im OG so lassen (Kinderzimmer im Süden, Schlafzimmer im Nordwesten, Bad im Nordosten). Der Nordwesten wird bei euch auch die ruhigste Ecke sein (Entfernung zur Straße).
Kinderzimmern im Süden macht schon Sinn - die Kinder wollen Licht und auch mal sehen was auf der Straße los ist.
Seid ihr an Streif Haus Haus gebunden? Eine Variante vom Bien-Zenker Haus Evolution könnte vll. ganz gut auf das Grundstück passen - z.B. das Evolution Stuttgart, oder das EVOLUTION 134 V4.
Ich hab mal 2 mögliche Positionen angehängt - je nach Zulässigkeit des Bebauungsplan. Aus deine Angabe "Baulinie im Nordwesten" werde ich nicht schlau. Ist die Linie zur Straße eine Baulinie (wäre dann Südosten) oder nur eine Baugrenze? Falls Baulinie würde Variante 1 nicht mehr funktionieren. Umso mehr ich es mir anschaue, gefällt mir Variante 2 besser. Die Terrasse könnte im Südwesten sein, leicht in den Nordwesten ums Eck gezogen mit Tagsüber auch einem schattigen Plätzchen und später schöne Abendsonne - herrlich!
(1)
(2)
Den Eingang sehe ich im Osten (oder im Süden), nicht im Norden oder Süden. Für den Grundriss ist es zwar schöner den Eingang im Norden zu haben, aber du gewährst Postboten, Handwerkern, etc. immer den Einblick in dein ganzes Grundstück. Mit Eingang im Osten bleibt der Nordwest-Teil des Grundstücks "Privat" und hat nebenher noch herrliche Abendsonne.
Das "Eck" im Garten könnte durch eine "kreative" Garage, also frei geplant, keine Fertiggarage genutzt werden, z.B. als Abstellplatz für Fahrräder oder Werkstattecke.
Zum Grundriss: Bei der eher geringen Grundfläche würde ich auf Späße wie Galerie verzichten. Sind jetzt eigentlich 2 Vollgeschosse geplant (Streif Haus Haus Stadtvilla) oder 1,5 Geschosse?
Wenn ich mir Streif Haus Haus WD1000 als Grundentwurf anschaue, würde ich das Haus so drehen, dass der Eingang im Nordosten ist, die Raumanordnung im EG spiegeln (Hauswirtschaftsraum und Dusche im Norden) und im OG so lassen (Kinderzimmer im Süden, Schlafzimmer im Nordwesten, Bad im Nordosten). Der Nordwesten wird bei euch auch die ruhigste Ecke sein (Entfernung zur Straße).
Kinderzimmern im Süden macht schon Sinn - die Kinder wollen Licht und auch mal sehen was auf der Straße los ist.
Seid ihr an Streif Haus Haus gebunden? Eine Variante vom Bien-Zenker Haus Evolution könnte vll. ganz gut auf das Grundstück passen - z.B. das Evolution Stuttgart, oder das EVOLUTION 134 V4.
Ähnliche Themen