Hallo zusammen,
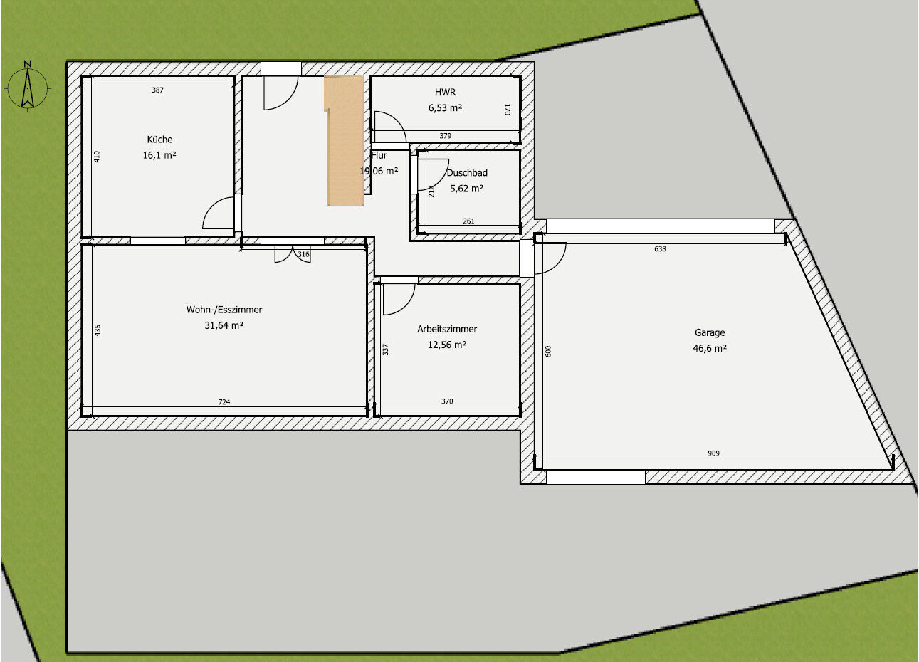
wir haben gerade ein Grundstück gekauft (siehe Bild) auf welches wir ein Einfamilienhaus stellen wollen. Nachdem wir nun doch schon einige Häuser und Grundrisse angeschaut haben, sind wir mal bei dem angehängten ersten selbst erstellten Entwurfs gelandet. Hier würde ich mich freuen, wenn ihr mal Eure Meinung dazu abgegeben würdet - speziell auch, wo ihr Fenster platzieren würdet. Aktuell haben wir primär nur das EG geplant, da das OG dann sowieso groß genug ist um die benötigten Zimmer unterzubringen.
Viele Grüße & herzlichen Dank für Eure Zeit
g00dy
Hier die ausgefüllte Frageliste:
Bebauungsplan/Einschränkungen
Größe des Grundstücks: 544qm
Hang: nein
Grundflächenzahl: -
Geschossflächenzahl: 0,3
Baufenster, Baulinie und -grenze: siehe Bild (grauer Bereich = Baufenster, grüner Bereich = Grundstück, dunkelgrauer Bereich = Straße) an der südlichen Grenze des Grundstückes fließt in 15m Entfernung ein kleiner Bach vorbei (-> schöne Aussicht, keine Bebauung), kein Baumbestand
Randbebauung: nur östlich möglich
Anzahl Stellplatz: 2
Geschossigkeit: keine
Dachform: keine (ab weniger als 7° muss Flachdach begrünt werden)
Stilrichtung: keine
Ausrichtung: keine
Maximale Höhen/Begrenzungen: 9,0m
weitere Vorgaben: max. Wandhöhe 6,5m
Anforderungen der Bauherren
Stilrichtung, Dachform, Gebäudetyp Satteldach: ~25°
Keller, Geschosse Keller, OG mit Kniestock: 1,5-2,2m (hier sind wir uns noch nicht so sicher)
Anzahl der Personen, Alter: 2 Erwachsene (+2 Kinder geplant)
Raumbedarf im EG, OG: EG Küche (geschlossen), Wohn-/Essbereich, Büro (für alter evtl. als Schlafzimmer), Durchgang zur Garage, Hauswirtschaftsraum (Durchgang nicht über Hauswirtschaftsraum), Duschbad; OG 3 Schlafzimmer, kleines Büro/Spielzimmer, Bad
Büro: Familiennutzung oder Homeoffice? EG Homeoffice, OG evtl. Familiennutzung/Spielzimmer
Schlafgäste pro Jahr: keine
offene oder geschlossene Architektur: Küche geschlossen, allerdings mit großer Schiebetür zu Wohn-/Essbereich, Flur geschlossen zu Wohn-/Essbereich
konservativ oder moderne Bauweise: modern
offene Küche, Kochinsel: nein, Kochinsel, falls möglich
Anzahl Essplätze: 4-8
Kamin: evtl. später
Musik/Stereowand: ja inkl. TV Lowboard
Balkon, Dachterrasse: nein
Garage, Carport: Doppelgarage
Nutzgarten, Treibhaus: nein
weitere Wünsche/Besonderheiten/Tagesablauf, gern auch Begründungen, warum dieses oder das nicht sein soll: Durchgangsmöglichkeit von Doppelgarage ins Haus, allerdings nicht über Hauswirtschaftsraum, da Hauswirtschaftsraum nicht als Schmutzschleuse verwendet werden soll
Hausentwurf
Von wem stammt die Planung:
-Planer eines Bauunternehmens: nein
-Architekt: nein
-Do-it-Yourself: ja (Abwandlung Weberhaus Balance 300)
Was gefällt besonders? Warum?
Was gefällt nicht? Warum?
Preisschätzung lt Architekt/Planer: noch offen
Persönliches Preislimit fürs Haus, inkl Ausstattung: 500k€
favorisierte Heiztechnik: Lüftungskonzept inkl. Fußbodenheizung (macht das Sinn?)
Wenn Ihr verzichten müsst, auf welche Details/Ausbauten
-könnt Ihr verzichten: Hauswirtschaftsraum (da mit Keller geplant wird)
-könnt Ihr nicht verzichten: Büro im EG
Warum ist der Entwurf so geworden, wie er jetzt ist?
Ein Gemisch aus vielen Beispielen aus div. Magazinen und den von uns gestellten Anforderungen
Was ist die wichtigste/grundlegende Frage zum Grundriss in 130 Zeichen zusammengefasst?
Ist der Wohn-/Essbereich so wie er aktuell ist großzügig/ausreichend groß für einen 8 Personen esstisch?
Ist die Küche zu groß?
Ist das Duschbad groß genug dimensioniert?


wir haben gerade ein Grundstück gekauft (siehe Bild) auf welches wir ein Einfamilienhaus stellen wollen. Nachdem wir nun doch schon einige Häuser und Grundrisse angeschaut haben, sind wir mal bei dem angehängten ersten selbst erstellten Entwurfs gelandet. Hier würde ich mich freuen, wenn ihr mal Eure Meinung dazu abgegeben würdet - speziell auch, wo ihr Fenster platzieren würdet. Aktuell haben wir primär nur das EG geplant, da das OG dann sowieso groß genug ist um die benötigten Zimmer unterzubringen.
Viele Grüße & herzlichen Dank für Eure Zeit
g00dy
Hier die ausgefüllte Frageliste:
Bebauungsplan/Einschränkungen
Größe des Grundstücks: 544qm
Hang: nein
Grundflächenzahl: -
Geschossflächenzahl: 0,3
Baufenster, Baulinie und -grenze: siehe Bild (grauer Bereich = Baufenster, grüner Bereich = Grundstück, dunkelgrauer Bereich = Straße) an der südlichen Grenze des Grundstückes fließt in 15m Entfernung ein kleiner Bach vorbei (-> schöne Aussicht, keine Bebauung), kein Baumbestand
Randbebauung: nur östlich möglich
Anzahl Stellplatz: 2
Geschossigkeit: keine
Dachform: keine (ab weniger als 7° muss Flachdach begrünt werden)
Stilrichtung: keine
Ausrichtung: keine
Maximale Höhen/Begrenzungen: 9,0m
weitere Vorgaben: max. Wandhöhe 6,5m
Anforderungen der Bauherren
Stilrichtung, Dachform, Gebäudetyp Satteldach: ~25°
Keller, Geschosse Keller, OG mit Kniestock: 1,5-2,2m (hier sind wir uns noch nicht so sicher)
Anzahl der Personen, Alter: 2 Erwachsene (+2 Kinder geplant)
Raumbedarf im EG, OG: EG Küche (geschlossen), Wohn-/Essbereich, Büro (für alter evtl. als Schlafzimmer), Durchgang zur Garage, Hauswirtschaftsraum (Durchgang nicht über Hauswirtschaftsraum), Duschbad; OG 3 Schlafzimmer, kleines Büro/Spielzimmer, Bad
Büro: Familiennutzung oder Homeoffice? EG Homeoffice, OG evtl. Familiennutzung/Spielzimmer
Schlafgäste pro Jahr: keine
offene oder geschlossene Architektur: Küche geschlossen, allerdings mit großer Schiebetür zu Wohn-/Essbereich, Flur geschlossen zu Wohn-/Essbereich
konservativ oder moderne Bauweise: modern
offene Küche, Kochinsel: nein, Kochinsel, falls möglich
Anzahl Essplätze: 4-8
Kamin: evtl. später
Musik/Stereowand: ja inkl. TV Lowboard
Balkon, Dachterrasse: nein
Garage, Carport: Doppelgarage
Nutzgarten, Treibhaus: nein
weitere Wünsche/Besonderheiten/Tagesablauf, gern auch Begründungen, warum dieses oder das nicht sein soll: Durchgangsmöglichkeit von Doppelgarage ins Haus, allerdings nicht über Hauswirtschaftsraum, da Hauswirtschaftsraum nicht als Schmutzschleuse verwendet werden soll
Hausentwurf
Von wem stammt die Planung:
-Planer eines Bauunternehmens: nein
-Architekt: nein
-Do-it-Yourself: ja (Abwandlung Weberhaus Balance 300)
Was gefällt besonders? Warum?
Was gefällt nicht? Warum?
Preisschätzung lt Architekt/Planer: noch offen
Persönliches Preislimit fürs Haus, inkl Ausstattung: 500k€
favorisierte Heiztechnik: Lüftungskonzept inkl. Fußbodenheizung (macht das Sinn?)
Wenn Ihr verzichten müsst, auf welche Details/Ausbauten
-könnt Ihr verzichten: Hauswirtschaftsraum (da mit Keller geplant wird)
-könnt Ihr nicht verzichten: Büro im EG
Warum ist der Entwurf so geworden, wie er jetzt ist?
Ein Gemisch aus vielen Beispielen aus div. Magazinen und den von uns gestellten Anforderungen
Was ist die wichtigste/grundlegende Frage zum Grundriss in 130 Zeichen zusammengefasst?
Ist der Wohn-/Essbereich so wie er aktuell ist großzügig/ausreichend groß für einen 8 Personen esstisch?
Ist die Küche zu groß?
Ist das Duschbad groß genug dimensioniert?
O
Obstlerbaum19.11.18 19:52Wie wäre der Eingang von der Garagenseite aus, dafür das Duschbad nach Norden. Dann fällt der nutzlose Zweiteingang von der Garage aus weg...
Würde den Eingang verlegen
Hauswirtschaftsraum in den Keller
Mit den Raumprogramm zum Architekten gehen
Jeden Entwurf, ob selber erstellt oder vom Architekten, maßstabsgetreu die Wunschmöbel einzeichnen
Es fehlt Garderobe, der schmale Flur ist furchtbar und Platzverschwendung.
Hauswirtschaftsraum in den Keller
Mit den Raumprogramm zum Architekten gehen
Jeden Entwurf, ob selber erstellt oder vom Architekten, maßstabsgetreu die Wunschmöbel einzeichnen
Es fehlt Garderobe, der schmale Flur ist furchtbar und Platzverschwendung.
Äh... Geschossflächenzahl 0.3 (ohne Nebenanlagen)
Du weißt, was das bedeutet? Das kannst Du Dir gern mal ausrechnen, wo Du mit gewünschten Kniestock und DN landest.
Im EG sind’s ja schon ü100qm.
Was passiert denn im Keller? Was für Räume sind da geplant?
Der Schneckengang ist nicht schön... und auf die Größe des Hauses bezogen auch irgendwie alles etwas „uncharmant“.
Vom Balance 300 ist leider auch nichts mehr übrig 🙁
Du weißt, was das bedeutet? Das kannst Du Dir gern mal ausrechnen, wo Du mit gewünschten Kniestock und DN landest.
Im EG sind’s ja schon ü100qm.
Was passiert denn im Keller? Was für Räume sind da geplant?
Der Schneckengang ist nicht schön... und auf die Größe des Hauses bezogen auch irgendwie alles etwas „uncharmant“.
Vom Balance 300 ist leider auch nichts mehr übrig 🙁
Ähnliche Themen