Hallo zusammen,
lange war ich stiller Mitleser. Jetzt würde mich trotzdem eure Meinung zu unserem Grundriss interessieren. Wir sind gerade dabei mit eine GU die Planung voranzutreiben. Die Erschließung des Grundstückes läuft bereits.
Hier die allgemein Dinge:
Bebauungsplan/Einschränkungen
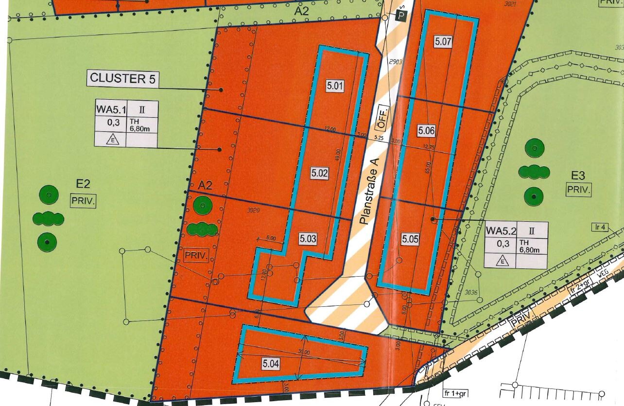
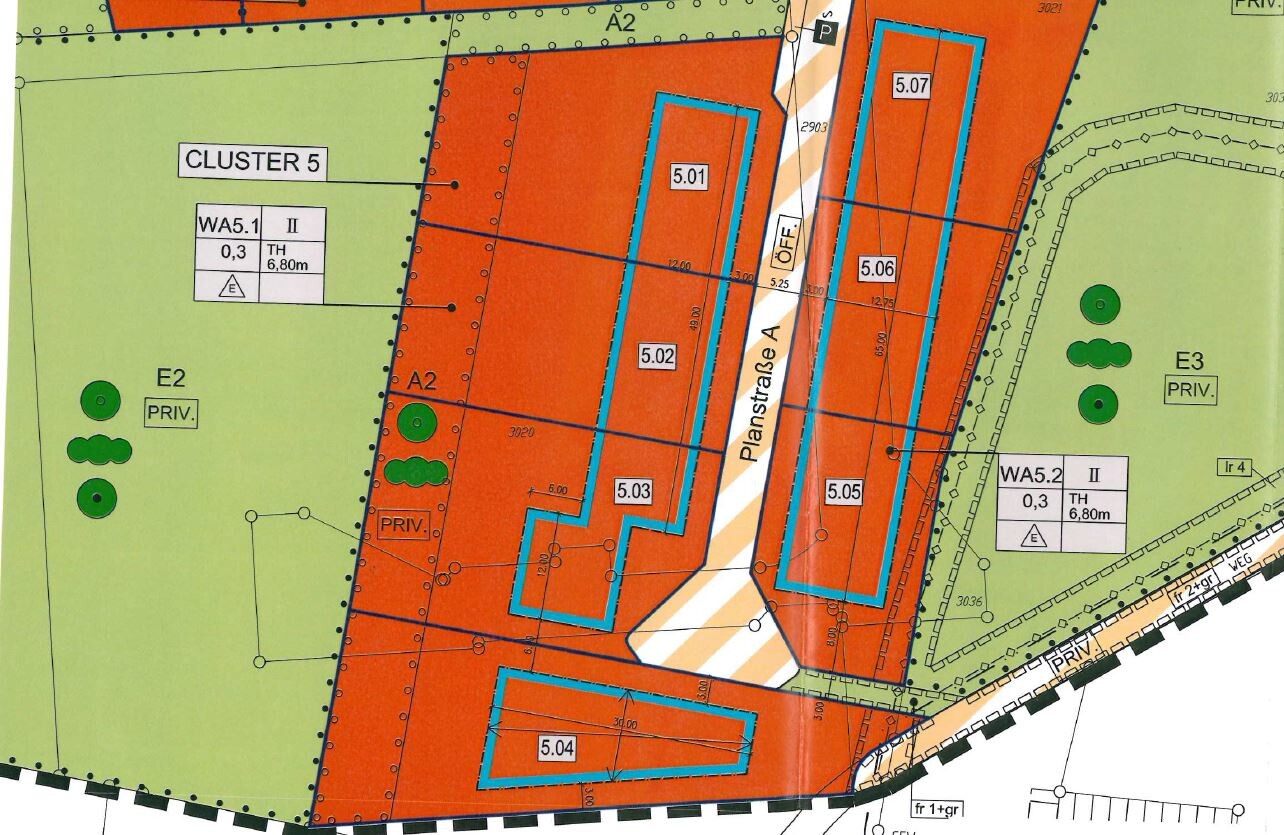
Größe des Grundstücks: 762qm plus Grünfläche (ca. 437qm)
Hang: -
Grundflächenzahl: 0,3
Geschossflächenzahl: 2
Baufenster, Baulinie und –grenze: 19 x 12m
Geschossigkeit: 2 Vollgeschosse
Dachform: Zeltdach
Stilrichtung: Stadtvilla
Ausrichtung: Wohnzimmer ziemlich genau nach Westen (evtl. könnte man von Südwest Ausrichtung sprechen?)
Maximale Höhen/Begrenzungen: TH 6,80
Hausentwurf
Von wem stammt die Planung:
- Planer eines Bauunternehmens, der im Anschluss auch der Bauleiter sein wird
Aktuell warten wir auf das erste Angebot zur Umsetzung - wir wollen Schlüsselfertig bauen. Als Eigenleistung ist aktuell "nur" Streichen und Fußboden angedacht.
Was haltet ihr von dem Grundriss und habt ihr evtl. irgendwelche Empfehlungen oder Tipps?
Im Anhang ein PDF mit den Ansichten und Grundrissen, sowie ein ausgeschnittenes JPG als Lageplan. Unser Grundstück wäre die 5.02.
Danke für eure Tipps.

lange war ich stiller Mitleser. Jetzt würde mich trotzdem eure Meinung zu unserem Grundriss interessieren. Wir sind gerade dabei mit eine GU die Planung voranzutreiben. Die Erschließung des Grundstückes läuft bereits.
Hier die allgemein Dinge:
Bebauungsplan/Einschränkungen
Größe des Grundstücks: 762qm plus Grünfläche (ca. 437qm)
Hang: -
Grundflächenzahl: 0,3
Geschossflächenzahl: 2
Baufenster, Baulinie und –grenze: 19 x 12m
Geschossigkeit: 2 Vollgeschosse
Dachform: Zeltdach
Stilrichtung: Stadtvilla
Ausrichtung: Wohnzimmer ziemlich genau nach Westen (evtl. könnte man von Südwest Ausrichtung sprechen?)
Maximale Höhen/Begrenzungen: TH 6,80
Hausentwurf
Von wem stammt die Planung:
- Planer eines Bauunternehmens, der im Anschluss auch der Bauleiter sein wird
Aktuell warten wir auf das erste Angebot zur Umsetzung - wir wollen Schlüsselfertig bauen. Als Eigenleistung ist aktuell "nur" Streichen und Fußboden angedacht.
Was haltet ihr von dem Grundriss und habt ihr evtl. irgendwelche Empfehlungen oder Tipps?
Im Anhang ein PDF mit den Ansichten und Grundrissen, sowie ein ausgeschnittenes JPG als Lageplan. Unser Grundstück wäre die 5.02.
Danke für eure Tipps.
Auf den ersten Blick ganz nett.
Scheint mir eher ein Katalogentwurf zu sein.
Fenster im Schlafzimmer ist ein Witz 😉
Ich würde den Windfang völlig wegplanen, auch die Wand zur Treppe. WC einkürzen.
Eventuell das ganze EG spiegeln, sodass die Küche einen Ausgang in den Garten bekommt. Speisetür würde ich von der Diele begehen, dann hat man in der Küche noch wertvolle Stellfläche für hochschränke gewonnen.
Edit: ich würd auf jeden Fall spiegeln und Hauswirtschaftsraum und WC Rtg Carport.
Gruß Yvonne
Scheint mir eher ein Katalogentwurf zu sein.
Fenster im Schlafzimmer ist ein Witz 😉
Ich würde den Windfang völlig wegplanen, auch die Wand zur Treppe. WC einkürzen.
Eventuell das ganze EG spiegeln, sodass die Küche einen Ausgang in den Garten bekommt. Speisetür würde ich von der Diele begehen, dann hat man in der Küche noch wertvolle Stellfläche für hochschränke gewonnen.
Edit: ich würd auf jeden Fall spiegeln und Hauswirtschaftsraum und WC Rtg Carport.
Gruß Yvonne
L
Lassemann13.08.15 13:46Hallo Tom,
finde ich Grundstück. sinnvoll und gut. Zugunsten etwas mehr "Grosszügigkeit" würde ich im EG auf Windfang verzichten, eine große Schiebetür zwischen Küche und Essen setzen. Im OG würde ich - sofern möglich - zugunsten eines etwas größeren Bades und größeren Räumen (kind 1, Kind 2 und Eltern) auf das Büro verzichten.
Viel Glück
finde ich Grundstück. sinnvoll und gut. Zugunsten etwas mehr "Grosszügigkeit" würde ich im EG auf Windfang verzichten, eine große Schiebetür zwischen Küche und Essen setzen. Im OG würde ich - sofern möglich - zugunsten eines etwas größeren Bades und größeren Räumen (kind 1, Kind 2 und Eltern) auf das Büro verzichten.
Viel Glück
Hallo,
das ging ja schnell. Danke schonmal. Katalogentwurf ist das nicht ganz. Aber der GU hat tatsächlich ein paar Muster in einem Katalog.
Mit der Wand weglassen im EG hatte ich auch schon überlegt. Bin mir da aber aktuell nicht sicher, da es ein Massivhaus wird. Das nehme ich aber definitiv mal mit.
Der Tipp mit der Speisekammer von außen "begehbar" finde ich spitze und frage ich definitiv an. Ich kann mir eh gerade nicht so recht vorstellen, wie das unter der Holztreppe gehen soll bzw. wie das dann optisch von außen aussieht.
Das Fenster im Schlafzimmer? Hm... Habt ihr da noch Ideen?
Am Ende finde ich das aber gar nicht so schlecht - Schlafzimmer ist zum schlafen da 😉
Bzgl. spiegeln habe ich eher Bedenken, dass es im Hauswirtschaftsraum (dort ist es nicht so schlimm) oder im Gäste-WC zu dunkel wird.
Das Büro oben brauche ich, da ich pro Woche 1 Homeoffice Tag fest habe.
Über weitere Vorschläge bin ich dankbar.
Grüße
Thomas
das ging ja schnell. Danke schonmal. Katalogentwurf ist das nicht ganz. Aber der GU hat tatsächlich ein paar Muster in einem Katalog.
Mit der Wand weglassen im EG hatte ich auch schon überlegt. Bin mir da aber aktuell nicht sicher, da es ein Massivhaus wird. Das nehme ich aber definitiv mal mit.
Der Tipp mit der Speisekammer von außen "begehbar" finde ich spitze und frage ich definitiv an. Ich kann mir eh gerade nicht so recht vorstellen, wie das unter der Holztreppe gehen soll bzw. wie das dann optisch von außen aussieht.
Das Fenster im Schlafzimmer? Hm... Habt ihr da noch Ideen?
Am Ende finde ich das aber gar nicht so schlecht - Schlafzimmer ist zum schlafen da 😉
Bzgl. spiegeln habe ich eher Bedenken, dass es im Hauswirtschaftsraum (dort ist es nicht so schlimm) oder im Gäste-WC zu dunkel wird.
Das Büro oben brauche ich, da ich pro Woche 1 Homeoffice Tag fest habe.
Über weitere Vorschläge bin ich dankbar.
Grüße
Thomas
Fenster im Schlafzimmer nicht übers Bett, sondern an die andere Außenwand.
Würde wohl auch spiegeln und in Kauf nehmen, dass das WC ohne Fenster ist. Genauso würde ich auch die Windfang-Abgrenzung weglassen. Das macht die Diele gleich großzügiger.
Im OG-Bad würde ich nochmal überlegen, ob man nicht eine Konstellation hinbekommt, wo nicht gleich die hohe Dusche (abgemauert?) am Eingang platziert ist.
Würde wohl auch spiegeln und in Kauf nehmen, dass das WC ohne Fenster ist. Genauso würde ich auch die Windfang-Abgrenzung weglassen. Das macht die Diele gleich großzügiger.
Im OG-Bad würde ich nochmal überlegen, ob man nicht eine Konstellation hinbekommt, wo nicht gleich die hohe Dusche (abgemauert?) am Eingang platziert ist.
Zugänge zu den Kinderzimmer finde ich nicht ideal.
Hauswirtschaftsraum ist sehr überschaubar und ewige Lauferei um mal Wäsche nach draußen zu schaffen.
Badaufteilung würde ich ändern
Spiegeln finde ich gut - Eingang näher am Auto. Garage oder Carport? Bei letzterem mach ne Fenstertür (Hauswirtschaftsraum) und ein Fenster (WC) dorthin.
zieh die Wand vom WC zurück, Wand zu Treppe vom Eingang aus gesehen als Geländer runterziehen, Wand von Windfang zum Flur weg -wurde so oder so ähnlich ja schon gesagt.
Massiv sollte dem nicht im Wege stehen. Da gibt es andere Spannweiten.
Hauswirtschaftsraum ist sehr überschaubar und ewige Lauferei um mal Wäsche nach draußen zu schaffen.
Badaufteilung würde ich ändern
Spiegeln finde ich gut - Eingang näher am Auto. Garage oder Carport? Bei letzterem mach ne Fenstertür (Hauswirtschaftsraum) und ein Fenster (WC) dorthin.
zieh die Wand vom WC zurück, Wand zu Treppe vom Eingang aus gesehen als Geländer runterziehen, Wand von Windfang zum Flur weg -wurde so oder so ähnlich ja schon gesagt.
Massiv sollte dem nicht im Wege stehen. Da gibt es andere Spannweiten.
Ähnliche Themen