J
JayneCobb23.11.20 16:56Hallo zusammen,
wie ich hier im allgemeinen Forum vorgestellt habe, hatten wir einige Gespräche mit verschiedenen GUs, sowohl massive als auch Holzbauweise.
Wir sind jetzt soweit, dass wir einige Grundrissvorschläge vorliegen haben.
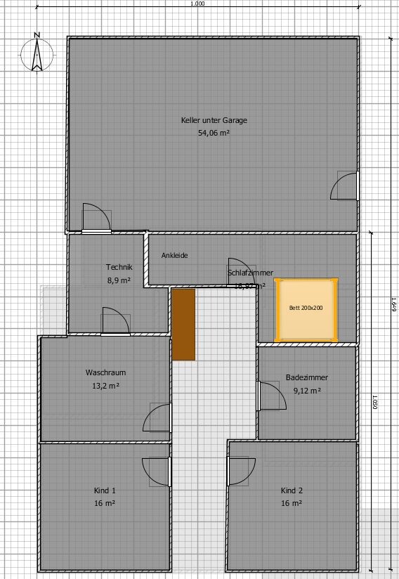
Ich möchte Euch hier (zuerst?) den Entwurf der Firma Holz 1 vorstellen, der uns besonders wegen der Galerie gut gefällt und der sehr viel von dem enthält, was wir vorab an Wünschen kommuniziert haben.
Ich habe diesen selber nachgezeichnet, insofern verzeiht bitte, wenn manche Dinge laienhaft dargestellt sind.
Die Fenster habe ich größtenteils nicht reingezeichnet. Was uns extrem gut gefallen würde, wäre die (vermutlich sehr teure) Idee, die östliche Glasfläche an der Südostecke über zwei Etagen laufen zu lassen, diese Darstellung habe ich auf die Schnelle im Programm nur nicht gefunden.
Das größere Bett im EG habe ich der Größenverhältnisse wegen eingezeichnet (weil dies potenziell später als Schlafzimmer für uns dienen könnte).
Was im oben verlinkten Thread schon herauskam, war, dass mehrere Forenmitglieder Wohnen/Essen nach unten auf Gartenebene verlegen würden und dafür die Schlafebene nach oben.
Unsere Gründe, es so zu planen (wir sind aber noch nicht ganz festgefahren):
-deutlich geringere Wege zum Einkäufe schleppen, Müll wegbringen, ...
-schönerer Ausblick vom Wohnbereich ins Grüne/in das von mir beschriebene Mini-Tal als im UG
-Großzügigeres Wohngefühl durch eine offengelassene Decke/die Galerie
-reinkommen und "sich fallenlassen" können
-einfache Ermöglichung eines Gebrechlichkeitsszenarios (potenziell später auf einer Ebene leben können, zumindest für eine gewisse Zeit)
Über weitere Anmerkungen, Ideen etc. freuen wir uns, vielen Dank schon mal!
Bebauungsplan/Einschränkungen
Größe des Grundstücks: 791 qm
Hang: ja
Grundflächenzahl: 0,35
Geschossflächenzahl: 0,6
Baufenster, Baulinie und -grenze: siehe Anhang
Anzahl Stellplatz: 2 (Doppelgarage angedacht)
Geschossigkeit 2-2,5 (Gartengeschoss, Erdgeschoss und eventuell halbes Dachgeschoss als Galerie mit Luftraum über EG)
Dachform: Satteldach (35-42° vorgegeben)
Ausrichtung: noch offen
Maximale Höhen/Begrenzungen: WH: 6,5 m; FH: 11,5 m
weitere Vorgaben: Abstand Haus von Straße ca. 4,50 m (Gelände fällt von Straße nach unten ab)
Anforderungen der Bauherren
Stilrichtung, Dachform, Gebäudetyp:
Leider sind wir durch den Bebauungsplan auf ein Satteldach festgelegt; bei freier Wahl hätte ich mich für eine klare Bauhausform entschieden.
Keller, Geschosse:
Gartengeschoss 1/4 Keller, 3/4 Schlafbereich. Darüber EG als Wohnbereich, eventuell noch halbes offenes DG (Galerie mit Luftraum + 1 Zimmer).
Anzahl der Personen, Alter:
3-4 Personen: 44 und 46; Sohn 1,5 Jahre sowie 12-jährige Tochter von Mann (diese kommt entweder 14-tägig am Wochenende oder wohnt komplett dort)
Raumbedarf im EG, OG:
Da die Garage wegen der Hanglage wohl eh unterkellert werden muss, haben wir uns dort den Keller (Stauraum, evtl. Werkraum) hingedacht mit Zugang sowohl von Gartenseite als auch vom Haus aus. Im Garten-/Kellergeschoss selber wäre dann der Technik- und Waschraum sowie drei Schlafzimmer und das Hauptbad. Im EG (von Straße aus ebenerdig zugängig, ebenso von Garage aus) ist der Wohnbereich angedacht mit Küche, offenem Wohn- und Essbereich, Speisekammer/Hauswirtschaftsraum, einem Büro/Gästezimmer und einem Gästebad. Ein Architekt eines Bauträgers stellte uns noch die Möglichkeit eines halben DGs als Galerie mit Luftraum über dem Wohnbereich und einem kleinen Zimmer (GZ, Büro) vor, was mir sehr gut gefällt.
Büro: Familiennutzung oder Homeoffice?
Homeoffice wird auf alle Fälle anteilsmäßig gemacht.
Schlafgäste pro Jahr:
Schwierig zu sagen, aber kleines Gästezimmer ist angedacht.
offene oder geschlossene Architektur:
Eher offen im Wohnbereich, vor allem soll Blick ins unverbaubare, abfallende Grüne (Südosten) durch hohe Decken (dort keine Zwischendecke) und große Fenster betont werden.
offene Küche, Kochinsel:
Küche abtrennbar mit Schiebetür, Kochinsel nicht nötig
Anzahl Essplätze:
6
Kamin:
Gerne (bzw. Schwedenofen), aber kein Muss
Musik/Stereowand:
Ja
Balkon, Dachterrasse:
Balkon im EG Richtung Südosten (am liebsten einen Teil ins Haus ziehen, aber dafür wohl zu wenig Platz?), Süden
Garage, Carport:
Garage bevorzugt
Nutzgarten, Treibhaus:
Teils Nutzgarten, teils zum buddeln und dann hübsch anzusehen, teils Spielmöglichkeiten für unseren Sohn
weitere Wünsche/Besonderheiten/Tagesablauf, gern auch Begründungen, warum dieses oder das nicht sein soll:
Wir stellen uns ein KfW55-Haus vor mit einer (vorbereiteten) Photovoltaikanlage.
Ich möchte das EG so auslegen, dass man später, falls man nicht mehr so gut unterwegs ist, nicht sofort ausziehen muss, sondern auf einer Ebene leben kann. Daher ist ein Extrazimmer im EG als Muss, das aktuell als Büro/Gästezimmer genutzt wird und später zu einem Schlafzimmer umgewandelt werden könnte. Das Gästebad soll aus demselben Grund auch schon eine Dusche haben, und irgendwo im EG Waschmachinenanschluss etc. berücksichtigt werden.
Ich selber tendiere zu Großzügigkeit, viel Wohnraum und würde mir viele Zimmer wünschen, merke aber leider, dass das Budget dem deutliche Grenzen aufzeigt. Mein Freund ist eher der Minimaltyp und nicht böse drum, wenn das Haus nicht allzu groß wird.
Hausentwurf
Von wem stammt die Planung:
-Planer eines Bauunternehmens
Was gefällt besonders? Warum?:
Galerie/Luftraum (Offenheit)
Was gefällt nicht? Warum?
weniger Platz (z. B. aktuell kleines Bad, natürlich noch anpassbar) --> bugetgeschuldet
Preisschätzung lt Architekt/Planer:
520.000-550.000 Euro brutto (sehr grobe Abschätzung, noch kein Richtpreisangebot vorhanden)
Persönliches Preislimit fürs Haus, inkl Ausstattung:
530.000 Euro (aber sag niemals nie)
favorisierte Heiztechnik:
Luft-Wasser-Wärmepumpe
Wenn Ihr verzichten müsst, auf welche Details/Ausbauten
-könnt Ihr verzichten:
Garage darf kürzer sein
-könnt Ihr nicht verzichten:
Irgendwas Offenes (irgendein Kniff, der was Besonderes/Schönes ist)
Aussicht auf Biotopstreifen südöstlich
Warum ist der Entwurf so geworden, wie er jetzt ist?
Entsprechende/Welche Wünsche wurden vom Architekten umgesetzt?
Ja.
Was macht ihn in Euren Augen besonders gut oder schlecht?
luftig, genügende Anzahl an Räumen
Was ist die wichtigste/grundlegende Frage zum Grundriss in 130 Zeichen zusammengefasst?
Ist die Aufteilung des Hauses gut, um auf unsere Wünsche einzugehen?







wie ich hier im allgemeinen Forum vorgestellt habe, hatten wir einige Gespräche mit verschiedenen GUs, sowohl massive als auch Holzbauweise.
Wir sind jetzt soweit, dass wir einige Grundrissvorschläge vorliegen haben.
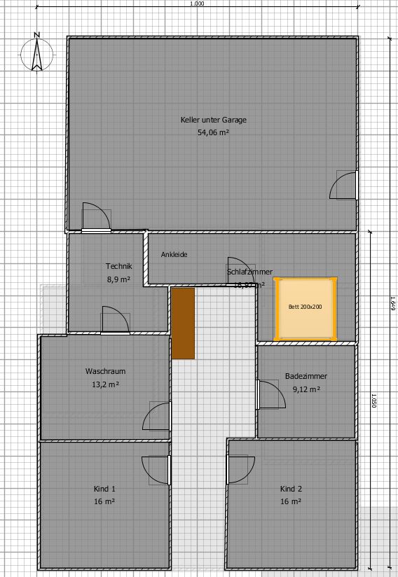
Ich möchte Euch hier (zuerst?) den Entwurf der Firma Holz 1 vorstellen, der uns besonders wegen der Galerie gut gefällt und der sehr viel von dem enthält, was wir vorab an Wünschen kommuniziert haben.
Ich habe diesen selber nachgezeichnet, insofern verzeiht bitte, wenn manche Dinge laienhaft dargestellt sind.
Die Fenster habe ich größtenteils nicht reingezeichnet. Was uns extrem gut gefallen würde, wäre die (vermutlich sehr teure) Idee, die östliche Glasfläche an der Südostecke über zwei Etagen laufen zu lassen, diese Darstellung habe ich auf die Schnelle im Programm nur nicht gefunden.
Das größere Bett im EG habe ich der Größenverhältnisse wegen eingezeichnet (weil dies potenziell später als Schlafzimmer für uns dienen könnte).
Was im oben verlinkten Thread schon herauskam, war, dass mehrere Forenmitglieder Wohnen/Essen nach unten auf Gartenebene verlegen würden und dafür die Schlafebene nach oben.
Unsere Gründe, es so zu planen (wir sind aber noch nicht ganz festgefahren):
-deutlich geringere Wege zum Einkäufe schleppen, Müll wegbringen, ...
-schönerer Ausblick vom Wohnbereich ins Grüne/in das von mir beschriebene Mini-Tal als im UG
-Großzügigeres Wohngefühl durch eine offengelassene Decke/die Galerie
-reinkommen und "sich fallenlassen" können
-einfache Ermöglichung eines Gebrechlichkeitsszenarios (potenziell später auf einer Ebene leben können, zumindest für eine gewisse Zeit)
Über weitere Anmerkungen, Ideen etc. freuen wir uns, vielen Dank schon mal!
Bebauungsplan/Einschränkungen
Größe des Grundstücks: 791 qm
Hang: ja
Grundflächenzahl: 0,35
Geschossflächenzahl: 0,6
Baufenster, Baulinie und -grenze: siehe Anhang
Anzahl Stellplatz: 2 (Doppelgarage angedacht)
Geschossigkeit 2-2,5 (Gartengeschoss, Erdgeschoss und eventuell halbes Dachgeschoss als Galerie mit Luftraum über EG)
Dachform: Satteldach (35-42° vorgegeben)
Ausrichtung: noch offen
Maximale Höhen/Begrenzungen: WH: 6,5 m; FH: 11,5 m
weitere Vorgaben: Abstand Haus von Straße ca. 4,50 m (Gelände fällt von Straße nach unten ab)
Anforderungen der Bauherren
Stilrichtung, Dachform, Gebäudetyp:
Leider sind wir durch den Bebauungsplan auf ein Satteldach festgelegt; bei freier Wahl hätte ich mich für eine klare Bauhausform entschieden.
Keller, Geschosse:
Gartengeschoss 1/4 Keller, 3/4 Schlafbereich. Darüber EG als Wohnbereich, eventuell noch halbes offenes DG (Galerie mit Luftraum + 1 Zimmer).
Anzahl der Personen, Alter:
3-4 Personen: 44 und 46; Sohn 1,5 Jahre sowie 12-jährige Tochter von Mann (diese kommt entweder 14-tägig am Wochenende oder wohnt komplett dort)
Raumbedarf im EG, OG:
Da die Garage wegen der Hanglage wohl eh unterkellert werden muss, haben wir uns dort den Keller (Stauraum, evtl. Werkraum) hingedacht mit Zugang sowohl von Gartenseite als auch vom Haus aus. Im Garten-/Kellergeschoss selber wäre dann der Technik- und Waschraum sowie drei Schlafzimmer und das Hauptbad. Im EG (von Straße aus ebenerdig zugängig, ebenso von Garage aus) ist der Wohnbereich angedacht mit Küche, offenem Wohn- und Essbereich, Speisekammer/Hauswirtschaftsraum, einem Büro/Gästezimmer und einem Gästebad. Ein Architekt eines Bauträgers stellte uns noch die Möglichkeit eines halben DGs als Galerie mit Luftraum über dem Wohnbereich und einem kleinen Zimmer (GZ, Büro) vor, was mir sehr gut gefällt.
Büro: Familiennutzung oder Homeoffice?
Homeoffice wird auf alle Fälle anteilsmäßig gemacht.
Schlafgäste pro Jahr:
Schwierig zu sagen, aber kleines Gästezimmer ist angedacht.
offene oder geschlossene Architektur:
Eher offen im Wohnbereich, vor allem soll Blick ins unverbaubare, abfallende Grüne (Südosten) durch hohe Decken (dort keine Zwischendecke) und große Fenster betont werden.
offene Küche, Kochinsel:
Küche abtrennbar mit Schiebetür, Kochinsel nicht nötig
Anzahl Essplätze:
6
Kamin:
Gerne (bzw. Schwedenofen), aber kein Muss
Musik/Stereowand:
Ja
Balkon, Dachterrasse:
Balkon im EG Richtung Südosten (am liebsten einen Teil ins Haus ziehen, aber dafür wohl zu wenig Platz?), Süden
Garage, Carport:
Garage bevorzugt
Nutzgarten, Treibhaus:
Teils Nutzgarten, teils zum buddeln und dann hübsch anzusehen, teils Spielmöglichkeiten für unseren Sohn
weitere Wünsche/Besonderheiten/Tagesablauf, gern auch Begründungen, warum dieses oder das nicht sein soll:
Wir stellen uns ein KfW55-Haus vor mit einer (vorbereiteten) Photovoltaikanlage.
Ich möchte das EG so auslegen, dass man später, falls man nicht mehr so gut unterwegs ist, nicht sofort ausziehen muss, sondern auf einer Ebene leben kann. Daher ist ein Extrazimmer im EG als Muss, das aktuell als Büro/Gästezimmer genutzt wird und später zu einem Schlafzimmer umgewandelt werden könnte. Das Gästebad soll aus demselben Grund auch schon eine Dusche haben, und irgendwo im EG Waschmachinenanschluss etc. berücksichtigt werden.
Ich selber tendiere zu Großzügigkeit, viel Wohnraum und würde mir viele Zimmer wünschen, merke aber leider, dass das Budget dem deutliche Grenzen aufzeigt. Mein Freund ist eher der Minimaltyp und nicht böse drum, wenn das Haus nicht allzu groß wird.
Hausentwurf
Von wem stammt die Planung:
-Planer eines Bauunternehmens
Was gefällt besonders? Warum?:
Galerie/Luftraum (Offenheit)
Was gefällt nicht? Warum?
weniger Platz (z. B. aktuell kleines Bad, natürlich noch anpassbar) --> bugetgeschuldet
Preisschätzung lt Architekt/Planer:
520.000-550.000 Euro brutto (sehr grobe Abschätzung, noch kein Richtpreisangebot vorhanden)
Persönliches Preislimit fürs Haus, inkl Ausstattung:
530.000 Euro (aber sag niemals nie)
favorisierte Heiztechnik:
Luft-Wasser-Wärmepumpe
Wenn Ihr verzichten müsst, auf welche Details/Ausbauten
-könnt Ihr verzichten:
Garage darf kürzer sein
-könnt Ihr nicht verzichten:
Irgendwas Offenes (irgendein Kniff, der was Besonderes/Schönes ist)
Aussicht auf Biotopstreifen südöstlich
Warum ist der Entwurf so geworden, wie er jetzt ist?
Entsprechende/Welche Wünsche wurden vom Architekten umgesetzt?
Ja.
Was macht ihn in Euren Augen besonders gut oder schlecht?
luftig, genügende Anzahl an Räumen
Was ist die wichtigste/grundlegende Frage zum Grundriss in 130 Zeichen zusammengefasst?
Ist die Aufteilung des Hauses gut, um auf unsere Wünsche einzugehen?
ypg schrieb:
😱 Ist das Maßstabsgetreu?die Frage habe ich mir auch gestellt.
euer Budget ist zu niedrig für das Haus. Nachdem einer von euch verkleinern will würde ich da ansetzten. Warum die Garage unterkellern?
Die hat doch gar nicht soviel Gefälle
jede Baggerschaufel kostet
Zeichnet immer in jeden Grundriss eure möblierung ein im Maßstab
JayneCobb schrieb:
Ich habe diesen selber nachgezeichnet, insofern verzeiht bitte, wenn manche Dinge laienhaft dargestellt sind.Fotos von Originalzeichnungen helfen besser weiter - selbst wenn Du die Kamera nicht ganz gerade hältst. Auf den Dreideh-Darstellungen ;-) erkenne ich wenig, ich kriege sie nicht groß gezogen (?)https://www.instagram.com/11antgmxde/
https://www.linkedin.com/company/bauen-jetzt/
G
GeradeSchräg23.11.20 19:52Das Haus ist großzügig geschnitten aber das Badezimmer <10m² ? Würde ich auf jeden fall ändern.. dann lieber Luftraum und Galarie kleiner
Zudem würde ICH (meine persönliche Meinung) mich, als Eltern, im OG einquartieren samt Badezimmer und Ankleide.. Innenliegende Fenster in Richtung Luftraum.. Dann habt ihr auch direkt morgens einen super Ausblick.
Dann reicht auch das kleibe Bad für die Kinder
Sehe ich auch so... Loch in die Decke für Wartungsarbeiten am Auto =D
Zudem würde ICH (meine persönliche Meinung) mich, als Eltern, im OG einquartieren samt Badezimmer und Ankleide.. Innenliegende Fenster in Richtung Luftraum.. Dann habt ihr auch direkt morgens einen super Ausblick.
Dann reicht auch das kleibe Bad für die Kinder
haydee schrieb:
euer Budget ist zu niedrig für das Haus. Nachdem einer von euch verkleinern will würde ich da ansetzten. Warum die Garage unterkellern?
Sehe ich auch so... Loch in die Decke für Wartungsarbeiten am Auto =D
Ähnliche Themen